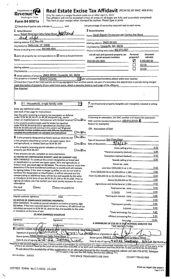
Property
Account |
| Property ID: | 197370 | Abbreviated Legal Description: | BRETLANDS SUB LOT 8 LOT 7 NLY 100' OF SLY 400' ELY OF BRETLAND RD INCL ADJ TIDES |
| Geographic ID: | S6165-00-07008-0 | Agent Code: | |
| Type: | Real | | |
| Tax Area: | 542 - APPRAISER-Stan/Cam Schl Dist, Special Dist, improved, greater than 1 acre | Land Use Code | 11 |
| Open Space: | N | DFL | N |
| Historic Property: | N | Remodel Property: | N |
| Multi-Family Redevelopment: | N | | |
| Township: | | Section: | |
| Range: | |
Location |
| Address: | 2475 BRETLAND RD CAMANO ISLAND, WA 98282 | Mapsco: | |
| Neighborhood: | Cycle 5 | Map ID: | 854 |
| Neighborhood CD: | 5 |
Owner |
| Name: | MCDONALD, BRYAN | Owner ID: | 61780 |
| Mailing Address: | KRISTIN HATMAKER 2475 BRETLAND RD CAMANO ISLAND, WA 98282 | % Ownership: | 100.0000000000% |
| | | Exemptions: | |
Taxes and Assessment Details
Values
| (+) Improvement Homesite Value: | + | $0 | |
| (+) Improvement Non-Homesite Value: | + | $655,107 | |
| (+) Land Homesite Value: | + | $0 | |
| (+) Land Non-Homesite Value: | + | $576,000 | |
| (+) Curr Use (HS): | + | $0 | $0 |
| (+) Curr Use (NHS): | + | $0 | $0 |
| | | -------------------------- | |
| (=) Market Value: | = | $1,231,107 | |
| (–) Productivity Loss: | – | $0 | |
| | | -------------------------- | |
| (=) Subtotal: | = | $1,231,107 | |
| (+) Senior Appraised Value: | + | $0 | |
| (+) Non-Senior Appraised Value: | + | $1,231,107 | |
| | | -------------------------- | |
| (=) Total Appraised Value: | = | $1,231,107 | |
| (–) Senior Exemption Loss: | – | $0 | |
| (–) Exemption Loss: | – | $0 | |
| | | -------------------------- | |
| (=) Taxable Value: | = | $1,231,107 | |
Taxing Jurisdiction
| Owner: | MCDONALD, BRYAN | | |
| % Ownership: | 100.0000000000% | | |
| Total Value: | $1,231,107 | | |
| Tax Area: | 542 - APPRAISER-Stan/Cam Schl Dist, Special Dist, improved, greater than 1 acre |
| CF | Conservation Futures | 0.0316035091 | $1,231,107 | $1,231,107 | $38.91 | | |
| EMS1 | Fire & Rescue Dist #1 Camano GEN (EMS) | 0.3677864386 | $1,231,107 | $1,231,107 | $452.78 | | |
| FIRE1 | Fire & Rescue Dist #1 Camano GEN | 1.2502910536 | $1,231,107 | $1,231,107 | $1,539.24 | | |
| FIRE1BOND | Fire & Rescue Dist #1 Camano BOND | 0.1570001679 | $1,231,107 | $1,231,107 | $193.28 | | |
| CE | County Current Expense | 0.3708482477 | $1,231,107 | $1,231,107 | $456.55 | | |
| CR | County Roads | 0.4584763726 | $1,231,107 | $1,231,107 | $564.43 | | |
| LCIB | Library Sno-Isle BOND (Camano Island) | 0.0396325772 | $1,231,107 | $1,231,107 | $48.79 | | |
| LIB | Library Sno-Isle GEN | 0.3153421757 | $1,231,107 | $1,231,107 | $388.22 | | |
| SCH205_401 | School 205-401 Enrichment | 1.2698420524 | $1,231,107 | $1,231,107 | $1,563.31 | | |
| SCH205BOND | School 205-401 BOND | 0.9396497583 | $1,231,107 | $1,231,107 | $1,156.81 | | |
| ST | State School | 1.3035497053 | $1,231,107 | $1,231,107 | $1,604.81 | | |
| ST2 | State School Part 2 | 0.8169543533 | $1,231,107 | $1,231,107 | $1,005.76 | | |
| | Total Tax Rate: | 7.3209764117 | | | | | |
| | | | | Taxes w/Current Exemptions: | $9,012.89 | | |
| | | | | Taxes w/o Exemptions: | $9,012.89 | | |
Improvement / Building
| Improvement #1: | RESIDENTIAL | State Code: | Y | 2892.8 sqft | Value: | $655,107 |
| Bathrooms: | 4 | Bedrooms: | 3 | | Ceiling: | DRYWALL PAINTED | Exterior Wall/Cover: | WOOD SIDING | | Floor Covering: | HARDWOOD/CARP 60-40 | Floor Structure: | WOOD W/SUBFLOOR | | Foundation: | CONCRETE | Heating: | FHA GAS | | Interior Finish: | DRYWALL PAINT | Plumbing Fixture Cnt: | 17 | | Roof Slope: | 18" IN 12" | Roof Structure/Cover: | CJ ASPHALT |
|
| | Type | Description | Class CD | Sub Class CD | Year Built | Area |
| | BAS | BASE/MAIN FLOOR | 4 | 0 | 2002 | 2032.8 |
| | OP4 | OPEN PORCH W/CEILING-ROOF | 4 | 0 | 2002 | 39.8 |
| | BIG | BUILT IN GARAGE | 4 | 0 | 2002 | 641.7 |
| | UPS | UPPER STORY | 4 | 0 | 2002 | 860.0 |
| | ATU | ATTIC UNFINISHED | 4 | 0 | 2002 | 526.0 |
| | OWP | OPEN WOOD PORCH W/STEPS | 4 | 0 | 2002 | 69.7 |
| | OWP | OPEN WOOD PORCH W/STEPS | 4 | 0 | 2002 | 126.5 |
| | OWC | OPEN WOOD PORCH W/STEPS/ROOF/C | 4 | 0 | 2002 | 175.8 |
Sketch
Property Image
Land
| 1 | HB | HIGH BLUFF | 1.2900 | 56192.40 | 100.00 | 0.00 | 1.00 | $575,000 | $0 |
| 2 | 55 | TIDES | 0.0000 | 0.00 | 100.00 | 0.00 | 1.00 | $1,000 | $0 |
Roll Value History
| 2026 | N/A | N/A | N/A | N/A | N/A |
| 2025 | $655,107 | $576,000 | $0 | $1,231,107 | $1,231,107 |
| 2024 | $662,794 | $576,000 | $0 | $1,238,794 | $1,238,794 |
| 2023 | $676,734 | $551,000 | $0 | $1,227,734 | $1,227,734 |
| 2022 | $619,813 | $476,000 | $0 | $1,095,813 | $1,095,813 |
| 2021 | $529,558 | $426,000 | $0 | $955,558 | $955,558 |
| 2020 | $514,302 | $316,000 | $0 | $830,302 | $830,302 |
| 2019 | $399,264 | $326,000 | $0 | $725,264 | $725,264 |
| 2018 | $400,349 | $301,000 | $0 | $701,349 | $701,349 |
| 2017 | $402,215 | $251,000 | $0 | $653,215 | $653,215 |
| 2016 | $406,556 | $251,000 | $0 | $657,556 | $657,556 |
| 2015 | $406,005 | $251,000 | $0 | $657,005 | $657,005 |
| 2014 | $410,534 | $251,000 | $0 | $661,534 | $661,534 |
| 2013 | $411,911 | $201,000 | $0 | $612,911 | $612,911 |
| 2012 | $411,911 | $217,871 | $0 | $629,782 | $629,782 |
| 2011 | $411,911 | $272,089 | $0 | $684,000 | $684,000 |
| 2010 | $424,531 | $346,016 | $0 | $770,547 | $770,547 |
| 2009 | $432,835 | $371,985 | $0 | $804,820 | $804,820 |
| 2008 | $437,652 | $210,730 | $0 | $648,382 | $648,382 |
| 2007 | $447,016 | $210,030 | $0 | $657,046 | $657,046 |
Deed and Sales History
| 1 | 12/22/1999 | WD | Warranty Deed | TODD, MASON J | MCDONALD, BRYAN | | | $89,335.00 | 95252 | 99029166 |
| 2 | 03/01/1982 | CD | DNU - Correction Deed | TODD, MASON J | TODD, MASON J | | | $1.00 | 20829 | 395089 |
| 3 | 01/01/1900 | OTHER | Other - Misc. Documents | Unknown | TODD, MASON J | | | $0.00 | 0 | 0 |
Payout Agreement
| No payout information available.. |