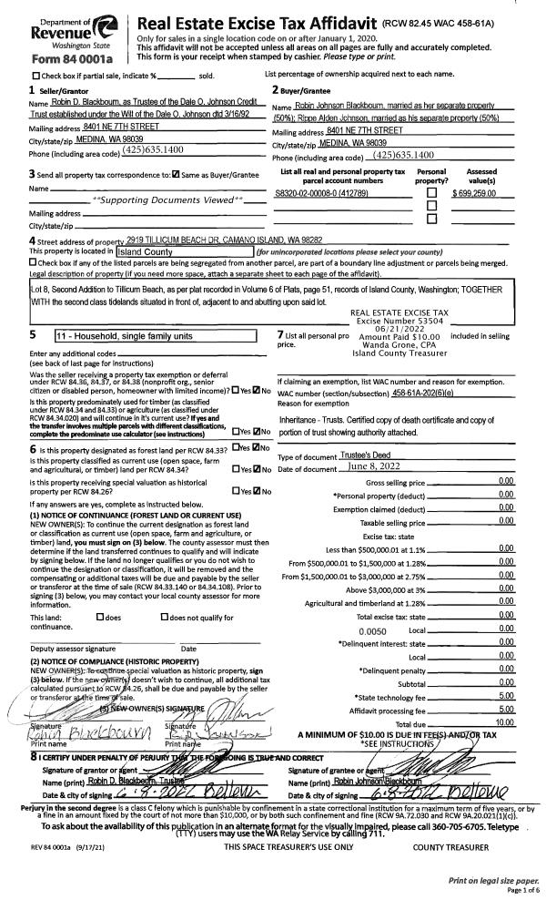
Property
Account |
| Property ID: | 197450 | Abbreviated Legal Description: | BRETLANDS TRACT 11, SELY 20' TRACT 10 & NWLY 10' TRACT 12 INCL ADJ TIDES |
| Geographic ID: | S6165-00-11000-0 | Agent Code: | |
| Type: | Real | | |
| Tax Area: | 540 - APPRAISER-Stan/Cam Schl Dist, Special Dist, improved & less than 1 acre | Land Use Code | 11 |
| Open Space: | N | DFL | N |
| Historic Property: | N | Remodel Property: | N |
| Multi-Family Redevelopment: | N | | |
| Township: | | Section: | |
| Range: | |
Location |
| Address: | 2413 BRETLAND RD CAMANO ISLAND, WA 98282 | Mapsco: | |
| Neighborhood: | Cycle 5 | Map ID: | 854 |
| Neighborhood CD: | 5 |
Owner |
| Name: | LLOYD, NOEL G | Owner ID: | 61789 |
| Mailing Address: | 2301 NE BLAKELY ST SUITE 102 SEATTLE, WA 98105 | % Ownership: | 100.0000000000% |
| | | Exemptions: | |
Taxes and Assessment Details
Values
| (+) Improvement Homesite Value: | + | $0 | |
| (+) Improvement Non-Homesite Value: | + | $295,627 | |
| (+) Land Homesite Value: | + | $0 | |
| (+) Land Non-Homesite Value: | + | $1,101,130 | |
| (+) Curr Use (HS): | + | $0 | $0 |
| (+) Curr Use (NHS): | + | $0 | $0 |
| | | -------------------------- | |
| (=) Market Value: | = | $1,396,757 | |
| (–) Productivity Loss: | – | $0 | |
| | | -------------------------- | |
| (=) Subtotal: | = | $1,396,757 | |
| (+) Senior Appraised Value: | + | $0 | |
| (+) Non-Senior Appraised Value: | + | $1,396,757 | |
| | | -------------------------- | |
| (=) Total Appraised Value: | = | $1,396,757 | |
| (–) Senior Exemption Loss: | – | $0 | |
| (–) Exemption Loss: | – | $0 | |
| | | -------------------------- | |
| (=) Taxable Value: | = | $1,396,757 | |
Taxing Jurisdiction
| Owner: | LLOYD, NOEL G | | |
| % Ownership: | 100.0000000000% | | |
| Total Value: | $1,396,757 | | |
| Tax Area: | 540 - APPRAISER-Stan/Cam Schl Dist, Special Dist, improved & less than 1 acre |
| CF | Conservation Futures | 0.0316035091 | $1,396,757 | $1,396,757 | $44.14 | | |
| EMS1 | Fire & Rescue Dist #1 Camano GEN (EMS) | 0.3677864386 | $1,396,757 | $1,396,757 | $513.71 | | |
| FIRE1 | Fire & Rescue Dist #1 Camano GEN | 1.2502910536 | $1,396,757 | $1,396,757 | $1,746.35 | | |
| FIRE1BOND | Fire & Rescue Dist #1 Camano BOND | 0.1570001679 | $1,396,757 | $1,396,757 | $219.29 | | |
| CE | County Current Expense | 0.3708482477 | $1,396,757 | $1,396,757 | $517.98 | | |
| CR | County Roads | 0.4584763726 | $1,396,757 | $1,396,757 | $640.38 | | |
| LCIB | Library Sno-Isle BOND (Camano Island) | 0.0396325772 | $1,396,757 | $1,396,757 | $55.36 | | |
| LIB | Library Sno-Isle GEN | 0.3153421757 | $1,396,757 | $1,396,757 | $440.46 | | |
| SCH205_401 | School 205-401 Enrichment | 1.2698420524 | $1,396,757 | $1,396,757 | $1,773.66 | | |
| SCH205BOND | School 205-401 BOND | 0.9396497583 | $1,396,757 | $1,396,757 | $1,312.46 | | |
| ST | State School | 1.3035497053 | $1,396,757 | $1,396,757 | $1,820.74 | | |
| ST2 | State School Part 2 | 0.8169543533 | $1,396,757 | $1,396,757 | $1,141.09 | | |
| | Total Tax Rate: | 7.3209764117 | | | | | |
| | | | | Taxes w/Current Exemptions: | $10,225.62 | | |
| | | | | Taxes w/o Exemptions: | $10,225.62 | | |
Improvement / Building
| Improvement #1: | RESIDENTIAL | State Code: | Y | 2841.0 sqft | Value: | $295,627 |
| Bathrooms: | 2 | Bedrooms: | 0 | | Ceiling: | TONGUE & GROOVE | Exterior Wall/Cover: | WOOD SIDING | | Floor Covering: | CARPET/VINYL 60-40 | Floor Structure: | WOOD W/SUBFLOOR | | Foundation: | CONCRETE | Heating: | FHA ELECTRIC | | Interior Finish: | DRYWALL PAINT | Plumbing Fixture Cnt: | 10 | | Roof Slope: | 3" IN 12" | Roof Structure/Cover: | BEAM WOOD SHAKES |
|
| | Type | Description | Class CD | Sub Class CD | Year Built | Area |
| | BAS | BASE/MAIN FLOOR | 3 | 0 | 1974 | 1120.0 |
| | OWP | OPEN WOOD PORCH W/STEPS | 3 | 0 | 1974 | 558.0 |
| | OWP | OPEN WOOD PORCH W/STEPS | 3 | 0 | 1974 | 160.0 |
| | UPH | HALF STORY | 3 | 0 | 1974 | 461.0 |
| | LOF | LOFT | 3 | 0 | 1974 | 180.0 |
| | DWN | DOWNSTAIRS LIVING AREA | 3 | 0 | 1974 | 1080.0 |
Sketch
Property Image
Land
| 1 | LB | LOW BANK | 0.8000 | 34848.00 | 140.00 | 0.00 | 1.00 | $1,100,000 | $0 |
| 2 | 55 | TIDES | 0.0000 | 0.00 | 113.00 | 0.00 | 1.00 | $1,130 | $0 |
Roll Value History
| 2026 | N/A | N/A | N/A | N/A | N/A |
| 2025 | $295,627 | $1,101,130 | $0 | $1,396,757 | $1,396,757 |
| 2024 | $299,720 | $1,101,130 | $0 | $1,400,850 | $1,400,850 |
| 2023 | $303,810 | $1,101,130 | $0 | $1,404,940 | $1,404,940 |
| 2022 | $278,809 | $1,051,130 | $0 | $1,329,939 | $1,329,939 |
| 2021 | $224,278 | $526,130 | $0 | $750,408 | $750,408 |
| 2020 | $219,581 | $456,130 | $0 | $675,711 | $675,711 |
| 2019 | $174,558 | $501,130 | $0 | $675,688 | $675,688 |
| 2018 | $175,131 | $501,130 | $0 | $676,261 | $676,261 |
| 2017 | $176,274 | $501,130 | $0 | $677,404 | $677,404 |
| 2016 | $178,564 | $501,130 | $0 | $679,694 | $679,694 |
| 2015 | $160,098 | $501,130 | $0 | $661,228 | $661,228 |
| 2014 | $162,612 | $501,130 | $0 | $663,742 | $663,742 |
| 2013 | $165,125 | $951,130 | $0 | $1,116,255 | $1,116,255 |
| 2012 | $167,639 | $967,074 | $0 | $1,134,713 | $1,134,713 |
| 2011 | $170,155 | $1,208,560 | $0 | $1,378,715 | $1,378,715 |
| 2010 | $183,009 | $1,208,560 | $0 | $1,391,569 | $1,391,569 |
| 2009 | $188,415 | $1,299,117 | $0 | $1,487,532 | $1,487,532 |
| 2008 | $190,986 | $1,299,117 | $0 | $1,490,103 | $1,490,103 |
| 2007 | $193,556 | $1,131,510 | $0 | $1,325,066 | $1,325,066 |
Deed and Sales History
| 1 | 03/01/1987 | WD | Warranty Deed | BELL, GLEN W | LLOYD, NOEL G | | | $174,000.00 | 70678 | 87003662 |
| 2 | 12/01/1981 | TRUSTEED | Trustee's Deed | HALBERG, E A | BELL, GLEN W | | | $276,040.00 | 20028 | 391804 |
| 3 | 01/01/1900 | OTHER | Other - Misc. Documents | Unknown | HALBERG, E A | | | $0.00 | 0 | 0 |
Payout Agreement
| No payout information available.. |