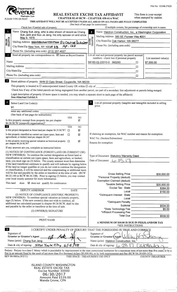
Property
Account |
| Property ID: | 197511 | Abbreviated Legal Description: | BRIARWOOD LOT 2 |
| Geographic ID: | S6170-00-00002-0 | Agent Code: | |
| Type: | Real | | |
| Tax Area: | 112 - APPRAISER-OH Schl Dist, outside OH, improved, greater than 1 acre | Land Use Code | 11 |
| Open Space: | N | DFL | N |
| Historic Property: | N | Remodel Property: | N |
| Multi-Family Redevelopment: | N | | |
| Township: | | Section: | |
| Range: | |
Location |
| Address: | 2090 BRIARWOOD DR OAK HARBOR, WA 98277 | Mapsco: | |
| Neighborhood: | Cycle 1 | Map ID: | 138 |
| Neighborhood CD: | 1 |
Owner |
| Name: | POPE, MATTHEW | Owner ID: | 281159 |
| Mailing Address: | MONA GALOPE 2090 BRIARWOOD DR OAK HARBOR, WA 98277 | % Ownership: | 100.0000000000% |
| | | Exemptions: | |
Taxes and Assessment Details
Values
| (+) Improvement Homesite Value: | + | $0 | |
| (+) Improvement Non-Homesite Value: | + | $712,091 | |
| (+) Land Homesite Value: | + | $0 | |
| (+) Land Non-Homesite Value: | + | $210,000 | |
| (+) Curr Use (HS): | + | $0 | $0 |
| (+) Curr Use (NHS): | + | $0 | $0 |
| | | -------------------------- | |
| (=) Market Value: | = | $922,091 | |
| (–) Productivity Loss: | – | $0 | |
| | | -------------------------- | |
| (=) Subtotal: | = | $922,091 | |
| (+) Senior Appraised Value: | + | $0 | |
| (+) Non-Senior Appraised Value: | + | $922,091 | |
| | | -------------------------- | |
| (=) Total Appraised Value: | = | $922,091 | |
| (–) Senior Exemption Loss: | – | $0 | |
| (–) Exemption Loss: | – | $0 | |
| | | -------------------------- | |
| (=) Taxable Value: | = | $922,091 | |
Taxing Jurisdiction
| Owner: | POPE, MATTHEW | | |
| % Ownership: | 100.0000000000% | | |
| Total Value: | $922,091 | | |
| Tax Area: | 112 - APPRAISER-OH Schl Dist, outside OH, improved, greater than 1 acre |
| CF | Conservation Futures | 0.0316035091 | $922,091 | $922,091 | $29.14 | | |
| CEM1 | Cemetery #1 | 0.0040320932 | $922,091 | $922,091 | $3.72 | | |
| FIRE2 | Fire & Rescue Dist #2 N Whidbey GEN | 0.5475949600 | $922,091 | $922,091 | $504.93 | | |
| HOBOND | Hospital BOND | 0.1910887512 | $922,091 | $922,091 | $176.20 | | |
| HOGEN | Hospital GEN | 0.3902502903 | $922,091 | $922,091 | $359.85 | | |
| CE | County Current Expense | 0.3708482477 | $922,091 | $922,091 | $341.96 | | |
| CR | County Roads | 0.4584763726 | $922,091 | $922,091 | $422.76 | | |
| ISLANDEMS | Hospital GEN (EMS) | 0.5000000000 | $922,091 | $922,091 | $461.05 | | |
| LIB | Library Sno-Isle GEN | 0.3153421757 | $922,091 | $922,091 | $290.77 | | |
| NWHIDPRMT | P & R N Whidbey GEN | 0.2004466701 | $922,091 | $922,091 | $184.83 | | |
| SCH201MO | School 201 Enrichment | 1.8559231640 | $922,091 | $922,091 | $1,711.33 | | |
| ST | State School | 1.3035497053 | $922,091 | $922,091 | $1,201.99 | | |
| ST2 | State School Part 2 | 0.8169543533 | $922,091 | $922,091 | $753.31 | | |
| | Total Tax Rate: | 6.9861102925 | | | | | |
| | | | | Taxes w/Current Exemptions: | $6,441.84 | | |
| | | | | Taxes w/o Exemptions: | $6,441.84 | | |
Improvement / Building
| Improvement #1: | RESIDENTIAL | State Code: | Y | 2240.0 sqft | Value: | $712,091 |
| Bathrooms: | 2.5 | Bedrooms: | 2 | | Ceiling: | DRYWALL PAINTED | Cooling: | HEAT PUMP/CONV/V | | Exterior Wall/Cover: | WOOD SIDING | Floor Covering: | CERAMIC TILE/HWD 40/60 | | Floor Structure: | WOOD W/SUBFLOOR | Foundation: | CONCRETE | | Interior Finish: | DRYWALL PAINT | Plumbing Fixture Cnt: | 13 | | Roof Slope: | 3" IN 12" | Roof Structure/Cover: | STEEL TERNE |
|
| | Type | Description | Class CD | Sub Class CD | Year Built | Area |
| | BAS | BASE/MAIN FLOOR | 4 | 0 | 2017 | 2240.0 |
| | DGR | DETACHED GARAGE | 4 | 0 | 2017 | 1296.0 |
| | OWP | OPEN WOOD PORCH W/STEPS | 4 | 0 | 2017 | 792.0 |
| | AGR | ATTACHED GARAGE | 4 | 0 | 2017 | 732.0 |
| | ENP | ENCLOSED PORCH | 4 | 0 | 2017 | 448.0 |
| | OP4 | OPEN PORCH W/CEILING-ROOF | 4 | 0 | 2017 | 32.0 |
Sketch
Property Image
Land
| 1 | 32 | AC (03.01-09.99) | 4.7400 | 0.00 | 0.00 | 0.00 | 1.00 | $210,000 | $0 |
Roll Value History
| 2026 | N/A | N/A | N/A | N/A | N/A |
| 2025 | $712,091 | $210,000 | $0 | $922,091 | $922,091 |
| 2024 | $717,716 | $210,000 | $0 | $927,716 | $927,716 |
| 2023 | $738,239 | $180,000 | $0 | $918,239 | $918,239 |
| 2022 | $676,133 | $180,000 | $0 | $856,133 | $856,133 |
| 2021 | $595,844 | $150,000 | $0 | $745,844 | $745,844 |
| 2020 | $579,582 | $140,000 | $0 | $719,582 | $719,582 |
| 2019 | $451,533 | $200,000 | $0 | $651,533 | $651,533 |
| 2018 | $452,615 | $170,000 | $0 | $622,615 | $622,615 |
| 2017 | $94,087 | $160,000 | $0 | $254,087 | $254,087 |
| 2016 | $69,634 | $160,000 | $0 | $229,634 | $229,634 |
| 2015 | $71,270 | $135,000 | $0 | $206,270 | $206,270 |
| 2014 | $73,725 | $118,500 | $0 | $192,225 | $192,225 |
| 2013 | $75,361 | $115,182 | $0 | $190,543 | $190,543 |
| 2012 | $76,998 | $115,182 | $0 | $192,180 | $192,180 |
| 2011 | $78,498 | $127,980 | $0 | $206,478 | $206,478 |
| 2010 | $59,342 | $127,980 | $0 | $187,322 | $187,322 |
| 2009 | $59,690 | $165,900 | $0 | $225,590 | $225,590 |
| 2008 | $69,850 | $177,750 | $0 | $247,600 | $247,600 |
| 2007 | $35,605 | $162,200 | $0 | $197,805 | $197,805 |
Deed and Sales History
| 1 | 07/24/2017 | QCD | Quit Claim Deed | POPE, MATTHEW T | POPE, MATTHEW | | | $0.00 | 30377 | 4427054 |
| 2 | 09/09/2010 | WD | Warranty Deed | LANDUSKY, SUSAN E | POPE, MATTHEW T | | | $223,000.00 | 2263 | 4280734 |
| 3 | 05/26/2006 | ESTSEPPROP | Establish Separate Property | LANDUSKY, PAUL M | LANDUSKY, SUSAN E | | | $0.00 | 62614 | 4173340 |
| 4 | 04/01/1990 | OTHER | Other - Misc. Documents | LANDUSKY, PAUL M | LANDUSKY, PAUL M | | | $16,663.00 | 2008 | 0 |
| 5 | 04/01/1990 | WD | Warranty Deed | OXE, CARL | LANDUSKY, PAUL M | | | $51,837.00 | 2009 | 90006552 |
| 6 | 01/01/1900 | OTHER | Other - Misc. Documents | OXE, CARL | OXE, CARL | | | $0.00 | 0 | 0 |
| 7 | 01/01/1900 | OTHER | Other - Misc. Documents | Unknown | OXE, CARL | | | $0.00 | 0 | 0 |
Payout Agreement
| No payout information available.. |