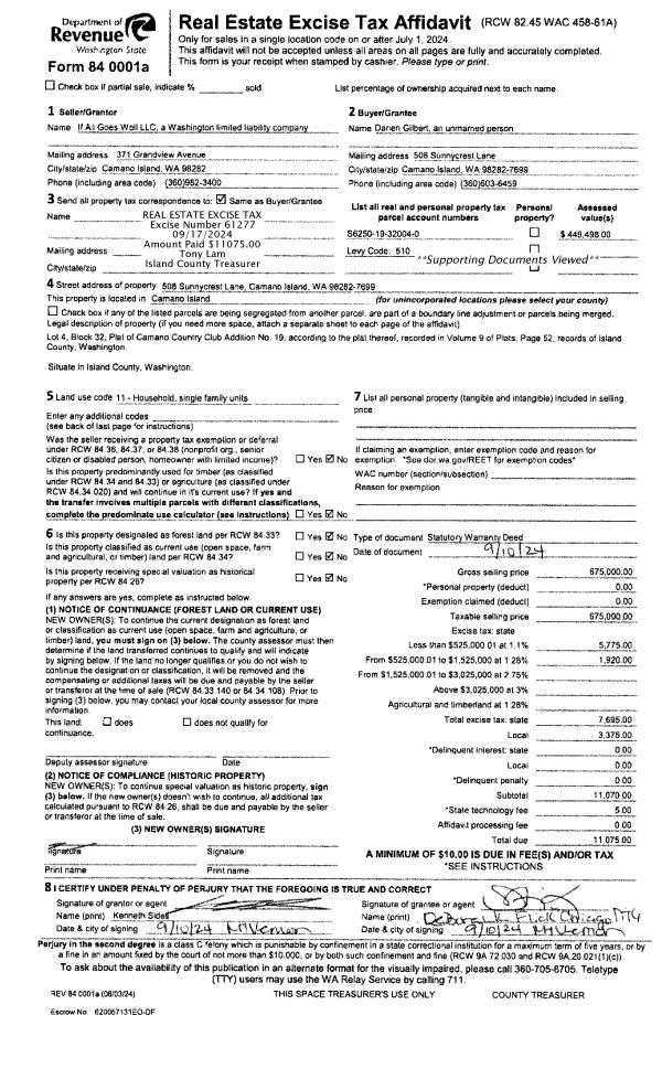
Property
Account |
| Property ID: | 197619 | Abbreviated Legal Description: | BRIARWOOD LOT 8 |
| Geographic ID: | S6170-00-00008-0 | Agent Code: | |
| Type: | Real | | |
| Tax Area: | 112 - APPRAISER-OH Schl Dist, outside OH, improved, greater than 1 acre | Land Use Code | 11 |
| Open Space: | N | DFL | N |
| Historic Property: | N | Remodel Property: | N |
| Multi-Family Redevelopment: | N | | |
| Township: | | Section: | |
| Range: | |
Location |
| Address: | 1290 ZYLSTRA RD OAK HARBOR, WA 98277 | Mapsco: | |
| Neighborhood: | Cycle 1 | Map ID: | 138 |
| Neighborhood CD: | 1 |
Owner |
| Name: | ARMSTRONG, DARRELL J | Owner ID: | 43481 |
| Mailing Address: | 1290 ZYLSTRA RD OAK HARBOR, WA 98277-8537 | % Ownership: | 100.0000000000% |
| | | Exemptions: | |
Taxes and Assessment Details
Values
| (+) Improvement Homesite Value: | + | $0 | |
| (+) Improvement Non-Homesite Value: | + | $141,282 | |
| (+) Land Homesite Value: | + | $0 | |
| (+) Land Non-Homesite Value: | + | $210,000 | |
| (+) Curr Use (HS): | + | $0 | $0 |
| (+) Curr Use (NHS): | + | $0 | $0 |
| | | -------------------------- | |
| (=) Market Value: | = | $351,282 | |
| (–) Productivity Loss: | – | $0 | |
| | | -------------------------- | |
| (=) Subtotal: | = | $351,282 | |
| (+) Senior Appraised Value: | + | $0 | |
| (+) Non-Senior Appraised Value: | + | $351,282 | |
| | | -------------------------- | |
| (=) Total Appraised Value: | = | $351,282 | |
| (–) Senior Exemption Loss: | – | $0 | |
| (–) Exemption Loss: | – | $0 | |
| | | -------------------------- | |
| (=) Taxable Value: | = | $351,282 | |
Taxing Jurisdiction
| Owner: | ARMSTRONG, DARRELL J | | |
| % Ownership: | 100.0000000000% | | |
| Total Value: | $351,282 | | |
| Tax Area: | 112 - APPRAISER-OH Schl Dist, outside OH, improved, greater than 1 acre |
| CF | Conservation Futures | 0.0316035091 | $351,282 | $351,282 | $11.10 | | |
| CEM1 | Cemetery #1 | 0.0040320932 | $351,282 | $351,282 | $1.42 | | |
| FIRE2 | Fire & Rescue Dist #2 N Whidbey GEN | 0.5475949600 | $351,282 | $351,282 | $192.36 | | |
| HOBOND | Hospital BOND | 0.1910887512 | $351,282 | $351,282 | $67.13 | | |
| HOGEN | Hospital GEN | 0.3902502903 | $351,282 | $351,282 | $137.09 | | |
| CE | County Current Expense | 0.3708482477 | $351,282 | $351,282 | $130.27 | | |
| CR | County Roads | 0.4584763726 | $351,282 | $351,282 | $161.05 | | |
| ISLANDEMS | Hospital GEN (EMS) | 0.5000000000 | $351,282 | $351,282 | $175.64 | | |
| LIB | Library Sno-Isle GEN | 0.3153421757 | $351,282 | $351,282 | $110.77 | | |
| NWHIDPRMT | P & R N Whidbey GEN | 0.2004466701 | $351,282 | $351,282 | $70.41 | | |
| SCH201MO | School 201 Enrichment | 1.8559231640 | $351,282 | $351,282 | $651.95 | | |
| ST | State School | 1.3035497053 | $351,282 | $351,282 | $457.91 | | |
| ST2 | State School Part 2 | 0.8169543533 | $351,282 | $351,282 | $286.98 | | |
| | Total Tax Rate: | 6.9861102925 | | | | | |
| | | | | Taxes w/Current Exemptions: | $2,454.08 | | |
| | | | | Taxes w/o Exemptions: | $2,454.08 | | |
Improvement / Building
| Improvement #1: | MANUFACTURED HOME | State Code: | Y | 1612.0 sqft | Value: | $141,282 |
| Bathrooms: | 2 | Bedrooms: | 3 | | Ceiling: | PLASTER PAINTED | Cooling: | EVAP NO DUCT | | Exterior Wall/Cover: | VINYL | Floor Covering: | CARPET 100% | | Floor Structure: | SLAB ON GRADE | Foundation: | SLAB | | Heating: | FHA ELECTRIC | Interior Finish: | PLASTER | | Plumbing Fixture Cnt: | 1 | Roof Slope: | FLAT | | Roof Structure/Cover: | CJ ALUMINIUM HEAVY |   |   |
|
| | Type | Description | Class CD | Sub Class CD | Year Built | Area |
| | BAS | BASE/MAIN FLOOR | 4 | 0 | 1991 | 1612.0 |
| | DGR | DETACHED GARAGE | 4 | 0 | 1991 | 1248.0 |
| | OWP | OPEN WOOD PORCH W/STEPS | 4 | 0 | 1991 | 56.3 |
| | OWP | OPEN WOOD PORCH W/STEPS | 4 | 0 | 1991 | 135.0 |
| | OP3 | OPEN PORCH W/ROOF | 4 | 0 | 1991 | 400.0 |
Sketch
Property Image
Land
| 1 | 32 | AC (03.01-09.99) | 3.6100 | 0.00 | 0.00 | 0.00 | 1.00 | $210,000 | $0 |
Roll Value History
| 2026 | N/A | N/A | N/A | N/A | N/A |
| 2025 | $141,282 | $210,000 | $0 | $351,282 | $351,282 |
| 2024 | $146,614 | $210,000 | $0 | $356,614 | $356,614 |
| 2023 | $114,484 | $180,000 | $0 | $294,484 | $294,484 |
| 2022 | $109,106 | $180,000 | $0 | $289,106 | $289,106 |
| 2021 | $98,040 | $150,000 | $0 | $248,040 | $248,040 |
| 2020 | $98,248 | $140,000 | $0 | $238,248 | $238,248 |
| 2019 | $79,817 | $200,000 | $0 | $279,817 | $279,817 |
| 2018 | $82,236 | $170,000 | $0 | $252,236 | $252,236 |
| 2017 | $63,045 | $150,000 | $0 | $213,045 | $213,045 |
| 2016 | $65,219 | $130,000 | $0 | $195,219 | $195,219 |
| 2015 | $66,668 | $100,000 | $0 | $166,668 | $166,668 |
| 2014 | $68,118 | $90,250 | $0 | $158,368 | $158,368 |
| 2013 | $69,567 | $87,723 | $0 | $157,290 | $157,290 |
| 2012 | $71,016 | $87,723 | $0 | $158,739 | $158,739 |
| 2011 | $72,699 | $97,470 | $0 | $170,169 | $170,169 |
| 2010 | $67,125 | $97,470 | $0 | $164,595 | $164,595 |
| 2009 | $71,143 | $126,350 | $0 | $197,493 | $197,493 |
| 2008 | $73,615 | $135,375 | $0 | $208,990 | $208,990 |
| 2007 | $76,067 | $135,375 | $0 | $211,442 | $211,442 |
Deed and Sales History
| 1 | 09/01/1990 | OTHER | Other - Misc. Documents | ARMSTRONG, DARRELL J | ARMSTRONG, DARRELL/ D | | | $41,647.00 | 11111111 | 0 |
| 2 | 09/01/1989 | REC | Real Estate Contract | WIELDRAAYER, ROBERT J | ARMSTRONG, DARRELL J | | | $13,400.00 | 93848 | 89012848 |
| 3 | 01/01/1982 | WD | Warranty Deed | BARGER, DAVID L | WIELDRAAYER, ROBERT J | | | $8,333.00 | 20026 | 391797 |
| 4 | 01/01/1900 | OTHER | Other - Misc. Documents | Unknown | BARGER, DAVID L | | | $0.00 | 0 | 0 |
Payout Agreement
| No payout information available.. |