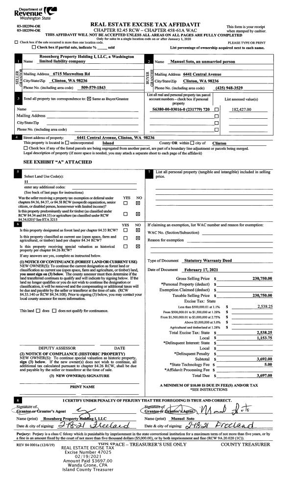
Property
Account |
| Property ID: | 197637 | Abbreviated Legal Description: | Brighton,s Lot SUBLOT 1,s Blk 1;s LOT A BLC AF#4408547s |
| Geographic ID: | S6175-00-01000-1 | Agent Code: | |
| Type: | Real | | |
| Tax Area: | 720 - APPRAISER-S Whid Schl Dist, Special District, improved & less than 1 acre | Land Use Code | 11 |
| Open Space: | N | DFL | N |
| Historic Property: | N | Remodel Property: | N |
| Multi-Family Redevelopment: | N | | |
| Township: | | Section: | |
| Range: | |
Location |
| Address: | 6222 BRIGHTON BEACH RD CLINTON, WA 98236 | Mapsco: | |
| Neighborhood: | Cycle 4 | Map ID: | 1000 |
| Neighborhood CD: | 4 |
Owner |
| Name: | WHITE, RANDALL H | Owner ID: | 95894 |
| Mailing Address: | STACIE A BURGUA 6222 BRIGHTON BEACH RD CLINTON, WA 98236-9502 | % Ownership: | 100.0000000000% |
| | | Exemptions: | |
Taxes and Assessment Details
Values
| (+) Improvement Homesite Value: | + | $0 | |
| (+) Improvement Non-Homesite Value: | + | $403,061 | |
| (+) Land Homesite Value: | + | $0 | |
| (+) Land Non-Homesite Value: | + | $725,890 | |
| (+) Curr Use (HS): | + | $0 | $0 |
| (+) Curr Use (NHS): | + | $0 | $0 |
| | | -------------------------- | |
| (=) Market Value: | = | $1,128,951 | |
| (–) Productivity Loss: | – | $0 | |
| | | -------------------------- | |
| (=) Subtotal: | = | $1,128,951 | |
| (+) Senior Appraised Value: | + | $0 | |
| (+) Non-Senior Appraised Value: | + | $1,128,951 | |
| | | -------------------------- | |
| (=) Total Appraised Value: | = | $1,128,951 | |
| (–) Senior Exemption Loss: | – | $0 | |
| (–) Exemption Loss: | – | $0 | |
| | | -------------------------- | |
| (=) Taxable Value: | = | $1,128,951 | |
Taxing Jurisdiction
| Owner: | WHITE, RANDALL H | | |
| % Ownership: | 100.0000000000% | | |
| Total Value: | $1,128,951 | | |
| Tax Area: | 720 - APPRAISER-S Whid Schl Dist, Special District, improved & less than 1 acre |
| CF | Conservation Futures | 0.0316035091 | $1,128,951 | $1,128,951 | $35.68 | | |
| FIRE3 | Fire & Rescue Dist #3 S Whidbey GEN | 1.2004855531 | $1,128,951 | $1,128,951 | $1,355.29 | | |
| HOBOND | Hospital BOND | 0.1910887512 | $1,128,951 | $1,128,951 | $215.73 | | |
| HOGEN | Hospital GEN | 0.3902502903 | $1,128,951 | $1,128,951 | $440.57 | | |
| CE | County Current Expense | 0.3708482477 | $1,128,951 | $1,128,951 | $418.67 | | |
| CR | County Roads | 0.4584763726 | $1,128,951 | $1,128,951 | $517.60 | | |
| ISLANDEMS | Hospital GEN (EMS) | 0.5000000000 | $1,128,951 | $1,128,951 | $564.48 | | |
| LIB | Library Sno-Isle GEN | 0.3153421757 | $1,128,951 | $1,128,951 | $356.01 | | |
| PORTWHID | Port of S Whidbey GEN | 0.1094540357 | $1,128,951 | $1,128,951 | $123.57 | | |
| SCH206BOND | School 206 BOND | 0.3161759235 | $1,128,951 | $1,128,951 | $356.95 | | |
| SCH206MO | School 206 Enrichment | 0.4547169547 | $1,128,951 | $1,128,951 | $513.35 | | |
| ST | State School | 1.3035497053 | $1,128,951 | $1,128,951 | $1,471.64 | | |
| ST2 | State School Part 2 | 0.8169543533 | $1,128,951 | $1,128,951 | $922.30 | | |
| SWHIDPRBD | P & R S Whidbey BOND | 0.0152817568 | $1,128,951 | $1,128,951 | $17.25 | | |
| SWHIDPRBD2 | P & R S Whidbey BOND2 | 0.0138911264 | $1,128,951 | $1,128,951 | $15.68 | | |
| SWHIDPRMT | P & R S Whidbey GEN | 0.2053334452 | $1,128,951 | $1,128,951 | $231.81 | | |
| | Total Tax Rate: | 6.6934522006 | | | | | |
| | | | | Taxes w/Current Exemptions: | $7,556.58 | | |
| | | | | Taxes w/o Exemptions: | $7,556.58 | | |
Improvement / Building
| Improvement #1: | RESIDENTIAL | State Code: | Y | 2775.5 sqft | Value: | $403,061 |
| Bathrooms: | 2 | Bedrooms: | 2 | | Ceiling: | DRYWALL PAINTED | Cooling: | HEAT PUMP/CONV/V | | Exterior Wall/Cover: | WOOD SIDING | Floor Covering: | CERAMIC TILE/HWD 40/60 | | Floor Structure: | WOOD W/SUBFLOOR | Foundation: | CONCRETE BLOCKS | | Interior Finish: | DRYWALL PAINT | Plumbing Fixture Cnt: | 9 | | Roof Slope: | 4" IN 12" | Roof Structure/Cover: | CJ ASPHALT |
|
| | Type | Description | Class CD | Sub Class CD | Year Built | Area |
| | BAS | BASE/MAIN FLOOR | 3 | 0 | 1940 | 1791.5 |
| | UB8 | BASEMENT UNFINISHED 8" | 3 | 0 | 1940 | 553.5 |
| | DWN | DOWNSTAIRS LIVING AREA | 3 | 0 | 1940 | 984.0 |
| | OWP | OPEN WOOD PORCH W/STEPS | 3 | 0 | 1940 | 342.0 |
| | OWP | OPEN WOOD PORCH W/STEPS | 3 | 0 | 1940 | 150.0 |
| | OWP | OPEN WOOD PORCH W/STEPS | 3 | 0 | 1940 | 82.0 |
| | OWC | OPEN WOOD PORCH W/STEPS/ROOF/C | 3 | 0 | 1940 | 50.0 |
| | OWC | OPEN WOOD PORCH W/STEPS/ROOF/C | 3 | 0 | 1940 | 65.0 |
Sketch
Property Image
Land
| 1 | LB | LOW BANK | 0.1400 | 6098.40 | 65.00 | 0.00 | 1.00 | $725,000 | $0 |
| 2 | 55 | TIDES | 0.0000 | 0.00 | 89.00 | 0.00 | 1.00 | $890 | $0 |
Roll Value History
| 2026 | N/A | N/A | N/A | N/A | N/A |
| 2025 | $403,061 | $725,890 | $0 | $1,128,951 | $1,128,951 |
| 2024 | $408,022 | $720,890 | $0 | $1,128,912 | $1,128,912 |
| 2023 | $417,616 | $770,890 | $0 | $1,188,506 | $1,188,506 |
| 2022 | $382,675 | $700,890 | $0 | $1,083,565 | $1,083,565 |
| 2021 | $336,716 | $430,890 | $0 | $767,606 | $767,606 |
| 2020 | $325,785 | $430,890 | $0 | $756,675 | $756,675 |
| 2019 | $243,920 | $400,890 | $0 | $644,810 | $644,810 |
| 2018 | $244,653 | $300,890 | $0 | $545,543 | $545,543 |
| 2017 | $246,118 | $300,890 | $0 | $547,008 | $547,008 |
| 2016 | $249,248 | $300,890 | $0 | $550,138 | $550,138 |
| 2015 | $252,179 | $350,890 | $0 | $603,069 | $603,069 |
| 2014 | $279,243 | $350,890 | $0 | $630,133 | $630,133 |
| 2013 | $282,508 | $305,118 | $0 | $587,626 | $587,626 |
| 2012 | $285,773 | $305,118 | $0 | $590,891 | $590,891 |
| 2011 | $289,038 | $358,805 | $0 | $647,843 | $647,843 |
| 2010 | $301,160 | $358,805 | $0 | $659,965 | $659,965 |
| 2009 | $314,009 | $448,283 | $0 | $762,292 | $762,292 |
| 2008 | $275,075 | $448,283 | $0 | $723,358 | $723,358 |
| 2007 | $275,838 | $447,660 | $0 | $723,498 | $723,498 |
Deed and Sales History
| 1 | 05/13/2016 | QCD | Quit Claim Deed | WHITE, RANDALL H | WHITE, RANDALL H | | | $0.00 | 26398 | 4408549 |
| 2 | 12/01/1991 | WD | Warranty Deed | TWOMEY, MYRNA O | WHITE, RANDALL H | | | $240,000.00 | 14325 | 91018827 |
| 3 | 04/01/1990 | OTHER | Other - Misc. Documents | ORR, VIOLET A | TWOMEY, MYRNA O | | | $0.00 | 63577 | 0 |
| 4 | 07/01/1986 | OTHER | Other - Misc. Documents | ORR, CONRAD W | ORR, VIOLET A | | | $0.00 | 61715 | 0 |
| 5 | 09/01/1981 | OTHER | Other - Misc. Documents | Unknown | ORR, CONRAD W | | | $0.00 | 59217 | 0 |
Payout Agreement
| No payout information available.. |