Property
Account |
| Property ID: | 197753 | Abbreviated Legal Description: | BRIGHTON LOT 1,2 & N1/2 LOT 3 BLK 2 ALSO TIDES ADJ TO LOT 2 & N1/2 LOT 3 & S16.9'LOT 1 BLK 2 TGW PT ADJ VAC WABASH AVE R-13-96 AF#96006015 DRAINFIELD FOR P# 02019-0 |
| Geographic ID: | S6175-00-02001-0 | Agent Code: | |
| Type: | Real | | |
| Tax Area: | 720 - APPRAISER-S Whid Schl Dist, Special District, improved & less than 1 acre | Land Use Code | 11 |
| Open Space: | N | DFL | N |
| Historic Property: | N | Remodel Property: | N |
| Multi-Family Redevelopment: | N | | |
| Township: | | Section: | |
| Range: | |
Location |
| Address: | 6250 BRIGHTON BEACH RD CLINTON, WA 98236 | Mapsco: | |
| Neighborhood: | Cycle 4 | Map ID: | 1000 |
| Neighborhood CD: | 4 |
Owner |
| Name: | GUNNING ET AL, COLLEEN R DEPHELPS | Owner ID: | 293687 |
| Mailing Address: | 21305 NE 6TH PL SAMMAMISH, WA 98074 | % Ownership: | 100.0000000000% |
| | | Exemptions: | |
Taxes and Assessment Details
Values
| (+) Improvement Homesite Value: | + | $0 | |
| (+) Improvement Non-Homesite Value: | + | $672,012 | |
| (+) Land Homesite Value: | + | $0 | |
| (+) Land Non-Homesite Value: | + | $750,670 | |
| (+) Curr Use (HS): | + | $0 | $0 |
| (+) Curr Use (NHS): | + | $0 | $0 |
| | | -------------------------- | |
| (=) Market Value: | = | $1,422,682 | |
| (–) Productivity Loss: | – | $0 | |
| | | -------------------------- | |
| (=) Subtotal: | = | $1,422,682 | |
| (+) Senior Appraised Value: | + | $0 | |
| (+) Non-Senior Appraised Value: | + | $1,422,682 | |
| | | -------------------------- | |
| (=) Total Appraised Value: | = | $1,422,682 | |
| (–) Senior Exemption Loss: | – | $0 | |
| (–) Exemption Loss: | – | $0 | |
| | | -------------------------- | |
| (=) Taxable Value: | = | $1,422,682 | |
Taxing Jurisdiction
| Owner: | GUNNING ET AL, COLLEEN R DEPHELPS | | |
| % Ownership: | 100.0000000000% | | |
| Total Value: | $1,422,682 | | |
| Tax Area: | 720 - APPRAISER-S Whid Schl Dist, Special District, improved & less than 1 acre |
| CF | Conservation Futures | 0.0316035091 | $1,422,682 | $1,422,682 | $44.96 | | |
| FIRE3 | Fire & Rescue Dist #3 S Whidbey GEN | 1.2004855531 | $1,422,682 | $1,422,682 | $1,707.91 | | |
| HOBOND | Hospital BOND | 0.1910887512 | $1,422,682 | $1,422,682 | $271.86 | | |
| HOGEN | Hospital GEN | 0.3902502903 | $1,422,682 | $1,422,682 | $555.20 | | |
| CE | County Current Expense | 0.3708482477 | $1,422,682 | $1,422,682 | $527.60 | | |
| CR | County Roads | 0.4584763726 | $1,422,682 | $1,422,682 | $652.27 | | |
| ISLANDEMS | Hospital GEN (EMS) | 0.5000000000 | $1,422,682 | $1,422,682 | $711.34 | | |
| LIB | Library Sno-Isle GEN | 0.3153421757 | $1,422,682 | $1,422,682 | $448.63 | | |
| PORTWHID | Port of S Whidbey GEN | 0.1094540357 | $1,422,682 | $1,422,682 | $155.72 | | |
| SCH206BOND | School 206 BOND | 0.3161759235 | $1,422,682 | $1,422,682 | $449.82 | | |
| SCH206MO | School 206 Enrichment | 0.4547169547 | $1,422,682 | $1,422,682 | $646.92 | | |
| ST | State School | 1.3035497053 | $1,422,682 | $1,422,682 | $1,854.54 | | |
| ST2 | State School Part 2 | 0.8169543533 | $1,422,682 | $1,422,682 | $1,162.27 | | |
| SWHIDPRBD | P & R S Whidbey BOND | 0.0152817568 | $1,422,682 | $1,422,682 | $21.74 | | |
| SWHIDPRBD2 | P & R S Whidbey BOND2 | 0.0138911264 | $1,422,682 | $1,422,682 | $19.76 | | |
| SWHIDPRMT | P & R S Whidbey GEN | 0.2053334452 | $1,422,682 | $1,422,682 | $292.12 | | |
| | Total Tax Rate: | 6.6934522006 | | | | | |
| | | | | Taxes w/Current Exemptions: | $9,522.66 | | |
| | | | | Taxes w/o Exemptions: | $9,522.66 | | |
Improvement / Building
| Improvement #1: | RESIDENTIAL | State Code: | Y | 3826.0 sqft | Value: | $672,012 |
| Bathrooms: | 4 | Bedrooms: | 3 | | Ceiling: | DRYWALL PAINTED | Cooling: | HEAT PUMP/CONV/V | | Exterior Wall/Cover: | CEMENT FIBER | Floor Covering: | CERAMIC TILE/CPT 40-60 | | Floor Structure: | WOOD W/SUBFLOOR | Foundation: | CONCRETE | | Interior Finish: | DRYWALL PAINT | Plumbing Fixture Cnt: | 15 | | Roof Slope: | 4" IN 12" | Roof Structure/Cover: | CJ CONCRETE TILE |
|
| | Type | Description | Class CD | Sub Class CD | Year Built | Area |
| | BAS | BASE/MAIN FLOOR | 4 | 0 | 1997 | 2124.0 |
| | OP3 | OPEN PORCH W/ROOF | 4 | 0 | 1997 | 27.5 |
| | OP4 | OPEN PORCH W/CEILING-ROOF | 4 | 0 | 1997 | 33.0 |
| | OP4 | OPEN PORCH W/CEILING-ROOF | 4 | 0 | 1997 | 70.0 |
| | AGR | ATTACHED GARAGE | 4 | 0 | 1997 | 543.0 |
| | UPS | UPPER STORY | 4 | 0 | 1997 | 1702.0 |
| | OWP | OPEN WOOD PORCH W/STEPS | 4 | 0 | 1997 | 465.5 |
Sketch
Property Image
Land
| 1 | LB | LOW BANK | 0.0000 | 0.00 | 67.00 | 0.00 | 1.00 | $750,000 | $0 |
| 2 | 55 | TIDES | 0.0000 | 0.00 | 67.00 | 0.00 | 1.00 | $670 | $0 |
Roll Value History
| 2026 | N/A | N/A | N/A | N/A | N/A |
| 2025 | $672,012 | $750,670 | $0 | $1,422,682 | $1,422,682 |
| 2024 | $680,085 | $720,670 | $0 | $1,400,755 | $1,400,755 |
| 2023 | $688,155 | $770,670 | $0 | $1,458,825 | $1,458,825 |
| 2022 | $630,452 | $700,670 | $0 | $1,331,122 | $1,331,122 |
| 2021 | $554,546 | $490,670 | $0 | $1,045,216 | $1,045,216 |
| 2020 | $505,870 | $490,670 | $0 | $996,540 | $996,540 |
| 2019 | $416,829 | $450,670 | $0 | $867,499 | $867,499 |
| 2018 | $418,082 | $350,670 | $0 | $768,752 | $768,752 |
| 2017 | $420,542 | $350,670 | $0 | $771,212 | $771,212 |
| 2016 | $425,549 | $350,670 | $0 | $776,219 | $776,219 |
| 2015 | $430,557 | $350,670 | $0 | $781,227 | $781,227 |
| 2014 | $425,549 | $350,670 | $0 | $776,219 | $776,219 |
| 2013 | $430,557 | $317,426 | $0 | $747,983 | $747,983 |
| 2012 | $435,562 | $317,426 | $0 | $752,988 | $752,988 |
| 2011 | $440,569 | $373,324 | $0 | $813,893 | $813,893 |
| 2010 | $453,124 | $373,324 | $0 | $826,448 | $826,448 |
| 2009 | $472,407 | $466,488 | $0 | $938,895 | $938,895 |
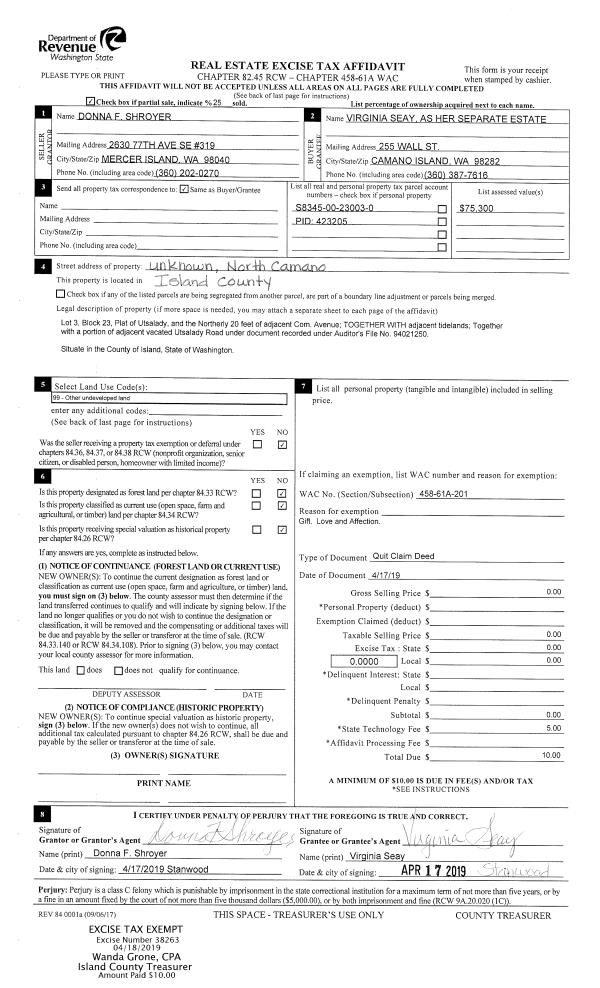
Deed and Sales History
| 1 | 07/14/2025 | QCD | Quit Claim Deed | DEN BESTE, JENNIFER L | DENBESTE TTEE, PAUL ANDREW | | | $0.00 | 64239 | 4588652 |
| 2 | 08/09/2019 | QCD | Quit Claim Deed | SMITH, CHRISTIAN L M | GUNNING ET AL, COLLEEN R DEPHELPS | | | $0.00 | 42317 | 4482589 |
| 3 | 05/30/2019 | QCD | Quit Claim Deed | DEPHELPS TRUSTEE, JAMES K | SMITH, CHRISTIAN L M | | | $0.00 | 39288 | 4466669 |
| 4 | 05/26/2009 | QCD | Quit Claim Deed | DEPHELPS, JAMES K | DEPHELPS TRUSTEE, JAMES K | | | $0.00 | 91275 | 4253365 |
| 5 | 03/17/2004 | PRD | Personal Representatives Deed | DEPHELPS, JAMES K | DEPHELPS, JAMES K | | | $0.00 | 41155 | 4095261 |
| 6 | 10/01/1988 | OTHER | Other - Misc. Documents | DEPHELPS, JAMES K | DEPHELPS, JAMES K | | | $0.00 | 62912 | 88013697 |
| 7 | 04/01/1984 | WD | Warranty Deed | OLSEN, OMER M | DEPHELPS, JAMES K | | | $110,080.00 | 41209 | 424011 |
| 8 | 01/01/1900 | OTHER | Other - Misc. Documents | Unknown | OLSEN, OMER M | | | $0.00 | 0 | 0 |
Payout Agreement
| No payout information available.. |