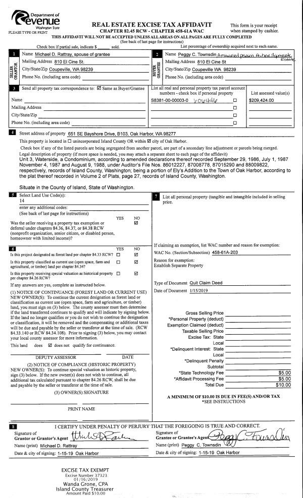
Property
Account |
| Property ID: | 197995 | Abbreviated Legal Description: | BRIGHTON N/2 LOTS 19, 20, 21 & 22 BLK 4 |
| Geographic ID: | S6175-00-04019-0 | Agent Code: | |
| Type: | Real | | |
| Tax Area: | 720 - APPRAISER-S Whid Schl Dist, Special District, improved & less than 1 acre | Land Use Code | 11 |
| Open Space: | N | DFL | N |
| Historic Property: | N | Remodel Property: | N |
| Multi-Family Redevelopment: | N | | |
| Township: | | Section: | |
| Range: | |
Location |
| Address: | | Mapsco: | |
| Neighborhood: | Cycle 4 | Map ID: | 1000 |
| Neighborhood CD: | 4 |
Owner |
| Name: | READING TTEE, DEREK L | Owner ID: | 314109 |
| Mailing Address: | MAUREEN R READING TTEE 3815- 119TH PL SE EVERETT, WA 98208 | % Ownership: | 100.0000000000% |
| | | Exemptions: | |
Taxes and Assessment Details
Values
| (+) Improvement Homesite Value: | + | $0 | |
| (+) Improvement Non-Homesite Value: | + | $2,500 | |
| (+) Land Homesite Value: | + | $0 | |
| (+) Land Non-Homesite Value: | + | $80,000 | |
| (+) Curr Use (HS): | + | $0 | $0 |
| (+) Curr Use (NHS): | + | $0 | $0 |
| | | -------------------------- | |
| (=) Market Value: | = | $82,500 | |
| (–) Productivity Loss: | – | $0 | |
| | | -------------------------- | |
| (=) Subtotal: | = | $82,500 | |
| (+) Senior Appraised Value: | + | $0 | |
| (+) Non-Senior Appraised Value: | + | $82,500 | |
| | | -------------------------- | |
| (=) Total Appraised Value: | = | $82,500 | |
| (–) Senior Exemption Loss: | – | $0 | |
| (–) Exemption Loss: | – | $0 | |
| | | -------------------------- | |
| (=) Taxable Value: | = | $82,500 | |
Taxing Jurisdiction
| Owner: | READING TTEE, DEREK L | | |
| % Ownership: | 100.0000000000% | | |
| Total Value: | $82,500 | | |
| Tax Area: | 720 - APPRAISER-S Whid Schl Dist, Special District, improved & less than 1 acre |
| CF | Conservation Futures | 0.0316035091 | $82,500 | $82,500 | $2.61 | | |
| FIRE3 | Fire & Rescue Dist #3 S Whidbey GEN | 1.2004855531 | $82,500 | $82,500 | $99.04 | | |
| HOBOND | Hospital BOND | 0.1910887512 | $82,500 | $82,500 | $15.76 | | |
| HOGEN | Hospital GEN | 0.3902502903 | $82,500 | $82,500 | $32.20 | | |
| CE | County Current Expense | 0.3708482477 | $82,500 | $82,500 | $30.59 | | |
| CR | County Roads | 0.4584763726 | $82,500 | $82,500 | $37.82 | | |
| ISLANDEMS | Hospital GEN (EMS) | 0.5000000000 | $82,500 | $82,500 | $41.25 | | |
| LIB | Library Sno-Isle GEN | 0.3153421757 | $82,500 | $82,500 | $26.02 | | |
| PORTWHID | Port of S Whidbey GEN | 0.1094540357 | $82,500 | $82,500 | $9.03 | | |
| SCH206BOND | School 206 BOND | 0.3161759235 | $82,500 | $82,500 | $26.08 | | |
| SCH206MO | School 206 Enrichment | 0.4547169547 | $82,500 | $82,500 | $37.51 | | |
| ST | State School | 1.3035497053 | $82,500 | $82,500 | $107.54 | | |
| ST2 | State School Part 2 | 0.8169543533 | $82,500 | $82,500 | $67.40 | | |
| SWHIDPRBD | P & R S Whidbey BOND | 0.0152817568 | $82,500 | $82,500 | $1.26 | | |
| SWHIDPRBD2 | P & R S Whidbey BOND2 | 0.0138911264 | $82,500 | $82,500 | $1.15 | | |
| SWHIDPRMT | P & R S Whidbey GEN | 0.2053334452 | $82,500 | $82,500 | $16.94 | | |
| | Total Tax Rate: | 6.6934522006 | | | | | |
| | | | | Taxes w/Current Exemptions: | $552.20 | | |
| | | | | Taxes w/o Exemptions: | $552.20 | | |
Improvement / Building
| Improvement #1: | RESIDENTIAL | State Code: | Y | 0.0 sqft | Value: | $2,500 |
Sketch
Property Image
Land
| 1 | 12 | SQ (00000-06000) | 0.1400 | 6098.40 | 0.00 | 0.00 | 1.00 | $80,000 | $0 |
Roll Value History
| 2026 | N/A | N/A | N/A | N/A | N/A |
| 2025 | $2,500 | $80,000 | $0 | $82,500 | $82,500 |
| 2024 | $2,500 | $85,000 | $0 | $87,500 | $87,500 |
| 2023 | $2,500 | $85,000 | $0 | $87,500 | $87,500 |
| 2022 | $2,500 | $85,000 | $0 | $87,500 | $87,500 |
| 2021 | $2,500 | $85,000 | $0 | $87,500 | $87,500 |
| 2020 | $0 | $70,000 | $0 | $70,000 | $70,000 |
| 2019 | $0 | $70,000 | $0 | $70,000 | $70,000 |
| 2018 | $0 | $65,000 | $0 | $65,000 | $65,000 |
| 2017 | $0 | $65,000 | $0 | $65,000 | $65,000 |
| 2016 | $0 | $65,000 | $0 | $65,000 | $65,000 |
| 2015 | $0 | $65,000 | $0 | $65,000 | $65,000 |
| 2014 | $0 | $65,000 | $0 | $65,000 | $65,000 |
| 2013 | $0 | $65,000 | $0 | $65,000 | $65,000 |
| 2012 | $0 | $65,000 | $0 | $65,000 | $65,000 |
| 2011 | $0 | $65,000 | $0 | $65,000 | $65,000 |
| 2010 | $0 | $65,000 | $0 | $65,000 | $65,000 |
| 2009 | $0 | $65,000 | $0 | $65,000 | $65,000 |
| 2008 | $0 | $65,000 | $0 | $65,000 | $65,000 |
| 2007 | $0 | $65,000 | $0 | $65,000 | $65,000 |
Deed and Sales History
| 1 | 08/28/2024 | QCD | Quit Claim Deed | READING, BRADFORD JOHN | READING TTEE, DEREK L | | | $0.00 | 61470 | 4577878 |
| 2 | 02/14/2019 | QCD | Quit Claim Deed | READING 63% INT, BRADFORD JOHN | READING, BRADFORD JOHN | | | $0.00 | 37685 | 4459706 |
| 3 | 05/26/2011 | QCD | Quit Claim Deed | RANDALL, MARY READING BRADFORD JOHN READING DEREK LEE READING | READING 63% INT, BRADFORD JOHN | | | $0.00 | 4951 | 4298008 |
| 4 | 07/21/2011 | TOD | Transfer On Death Deed | READING, GLORIA S | RANDALL, MARY READING BRADFORD JOHN READING DEREK LEE READING | | | | 82124 | |
| 5 | 02/26/1999 | QCD | Quit Claim Deed | READING, GLORIA S | READING, GLORIA S | | | $0.00 | 90964 | 99006647 |
| 6 | 02/01/1998 | QCD | Quit Claim Deed | READING, GLORIA S | READING, GLORIA S | | | $0.00 | 80565 | 98003043 |
| 7 | 01/01/1997 | QCD | Quit Claim Deed | READING, GLORIA S | READING, GLORIA S | | | $0.00 | 70380 | 97001709 |
| 8 | 02/01/1996 | QCD | Quit Claim Deed | READING, GLORIA S | READING, GLORIA S | | | $0.00 | 60561 | 96003008 |
| 9 | 10/01/1995 | QCD | Quit Claim Deed | READING, GLORIA S | READING, GLORIA S | | | $0.00 | 53888 | 95017789 |
| 10 | 09/01/1985 | PRD | Personal Representatives Deed | SUTTON, G S | READING, GLORIA S | | | $0.00 | 52440 | 85009629 |
| 11 | 01/01/1900 | OTHER | Other - Misc. Documents | Unknown | SUTTON, G S | | | $0.00 | 0 | 0 |
Payout Agreement
| No payout information available.. |