Property
Account |
| Property ID: | 198066 | Abbreviated Legal Description: | BRITTONS EST LOT 3 |
| Geographic ID: | S6180-00-00003-0 | Agent Code: | |
| Type: | Real | | |
| Tax Area: | 300 - APPRAISER-Cpvl Schl Dist, in Cpvl | Land Use Code | 11 |
| Open Space: | N | DFL | N |
| Historic Property: | N | Remodel Property: | N |
| Multi-Family Redevelopment: | N | | |
| Township: | | Section: | |
| Range: | |
Location |
| Address: | 2108 NE PARKER RD RD COUPEVILLE, WA 98239 | Mapsco: | |
| Neighborhood: | Cycle 2 | Map ID: | 183 |
| Neighborhood CD: | 2 |
Owner |
| Name: | MOTTET, BRADLEY J | Owner ID: | 285438 |
| Mailing Address: | KELSI K MOTTET 2108 NE PARKER RD COUPEVILLE, WA 98239 | % Ownership: | 100.0000000000% |
| | | Exemptions: | |
Taxes and Assessment Details
Values
| (+) Improvement Homesite Value: | + | $0 | |
| (+) Improvement Non-Homesite Value: | + | $338,349 | |
| (+) Land Homesite Value: | + | $0 | |
| (+) Land Non-Homesite Value: | + | $260,000 | |
| (+) Curr Use (HS): | + | $0 | $0 |
| (+) Curr Use (NHS): | + | $0 | $0 |
| | | -------------------------- | |
| (=) Market Value: | = | $598,349 | |
| (–) Productivity Loss: | – | $0 | |
| | | -------------------------- | |
| (=) Subtotal: | = | $598,349 | |
| (+) Senior Appraised Value: | + | $0 | |
| (+) Non-Senior Appraised Value: | + | $598,349 | |
| | | -------------------------- | |
| (=) Total Appraised Value: | = | $598,349 | |
| (–) Senior Exemption Loss: | – | $0 | |
| (–) Exemption Loss: | – | $0 | |
| | | -------------------------- | |
| (=) Taxable Value: | = | $598,349 | |
Taxing Jurisdiction
| Owner: | MOTTET, BRADLEY J | | |
| % Ownership: | 100.0000000000% | | |
| Total Value: | $598,349 | | |
| Tax Area: | 300 - APPRAISER-Cpvl Schl Dist, in Cpvl |
| CF | Conservation Futures | 0.0316035091 | $598,349 | $598,349 | $18.91 | | |
| CEM2 | Cemetery #2 | 0.0095056933 | $598,349 | $598,349 | $5.69 | | |
| COUP | City: Town of Coupeville | 0.8426414490 | $598,349 | $598,349 | $504.19 | | |
| FIRE5 | Fire & Rescue Dist #5 C Whidbey GEN | 1.2008080668 | $598,349 | $598,349 | $718.50 | | |
| FIRE5BOND | Fire & Rescue Dist #5 C Whidbey BOND | 0.1400090713 | $598,349 | $598,349 | $83.77 | | |
| HOBOND | Hospital BOND | 0.1910887512 | $598,349 | $598,349 | $114.34 | | |
| HOGEN | Hospital GEN | 0.3902502903 | $598,349 | $598,349 | $233.51 | | |
| CE | County Current Expense | 0.3708482477 | $598,349 | $598,349 | $221.90 | | |
| ISLANDEMS | Hospital GEN (EMS) | 0.5000000000 | $598,349 | $598,349 | $299.17 | | |
| LIB | Library Sno-Isle GEN | 0.3153421757 | $598,349 | $598,349 | $188.68 | | |
| LIBCAP | Library Sno-Isle BOND (Cap Fac Imp Area) | 0.0543427938 | $598,349 | $598,349 | $32.52 | | |
| POCOUP | Port of Coupeville GEN | 0.1093371703 | $598,349 | $598,349 | $65.42 | | |
| POCOUPIDD | Port of Coupeville IDD | 0.3409740022 | $598,349 | $598,349 | $204.02 | | |
| COUPSDTECH | School 204 CP (TECH) | 0.7545480007 | $598,349 | $598,349 | $451.48 | | |
| SCH204MO | School 204 Enrichment | 0.6716186034 | $598,349 | $598,349 | $401.86 | | |
| ST | State School | 1.3035497053 | $598,349 | $598,349 | $779.98 | | |
| ST2 | State School Part 2 | 0.8169543533 | $598,349 | $598,349 | $488.82 | | |
| | Total Tax Rate: | 8.0434218834 | | | | | |
| | | | | Taxes w/Current Exemptions: | $4,812.76 | | |
| | | | | Taxes w/o Exemptions: | $4,812.76 | | |
Improvement / Building
| Improvement #1: | RESIDENTIAL | State Code: | Y | 1658.0 sqft | Value: | $338,349 |
| Bathrooms: | 2 | Bedrooms: | 3 | | Ceiling: | DRYWALL PAINTED | Cooling: | HEAT PUMP/CONV/V | | Exterior Wall/Cover: | CEMENT FIBER | Floor Covering: | LAMINATE/LVP | | Floor Structure: | WOOD W/SUBFLOOR | Foundation: | CONCRETE | | Interior Finish: | DRYWALL PAINT | Plumbing Fixture Cnt: | 10 | | Roof Slope: | 5" IN 12" | Roof Structure/Cover: | CJ ASPHALT |
|
| | Type | Description | Class CD | Sub Class CD | Year Built | Area |
| | BAS | BASE/MAIN FLOOR | 3 | 0 | 2024 | 1658.0 |
| | AGR | ATTACHED GARAGE | 3 | 0 | 2024 | 484.0 |
| | OP4 | OPEN PORCH W/CEILING-ROOF | 3 | 0 | 2024 | 139.0 |
| | OP4 | OPEN PORCH W/CEILING-ROOF | 3 | 0 | 2024 | 105.0 |
Sketch
| No sketches available for this property. |
Property Image
Land
| 1 | HS | HOMESITE | 0.3400 | 14810.40 | 0.00 | 0.00 | 1.00 | $260,000 | $0 |
Roll Value History
| 2026 | N/A | N/A | N/A | N/A | N/A |
| 2025 | $338,349 | $260,000 | $0 | $598,349 | $598,349 |
| 2024 | $72,915 | $95,000 | $0 | $167,915 | $167,915 |
| 2023 | $0 | $95,000 | $0 | $95,000 | $95,000 |
| 2022 | $0 | $95,000 | $0 | $95,000 | $95,000 |
| 2021 | $0 | $75,000 | $0 | $75,000 | $75,000 |
| 2020 | $0 | $75,000 | $0 | $75,000 | $75,000 |
| 2019 | $0 | $75,000 | $0 | $75,000 | $75,000 |
| 2018 | $4,000 | $130,000 | $0 | $134,000 | $134,000 |
| 2017 | $4,000 | $130,000 | $0 | $134,000 | $134,000 |
| 2016 | $4,000 | $115,000 | $0 | $119,000 | $119,000 |
| 2015 | $4,000 | $90,000 | $0 | $94,000 | $94,000 |
| 2014 | $4,000 | $85,000 | $0 | $89,000 | $89,000 |
| 2013 | $4,000 | $85,000 | $0 | $89,000 | $89,000 |
| 2012 | $4,000 | $90,950 | $0 | $94,950 | $94,950 |
| 2011 | $4,000 | $107,000 | $0 | $111,000 | $111,000 |
| 2010 | $4,000 | $107,000 | $0 | $111,000 | $111,000 |
| 2009 | $4,000 | $75,000 | $0 | $79,000 | $79,000 |
| 2008 | $4,000 | $90,000 | $0 | $94,000 | $94,000 |
| 2007 | $4,000 | $90,000 | $0 | $94,000 | $94,000 |
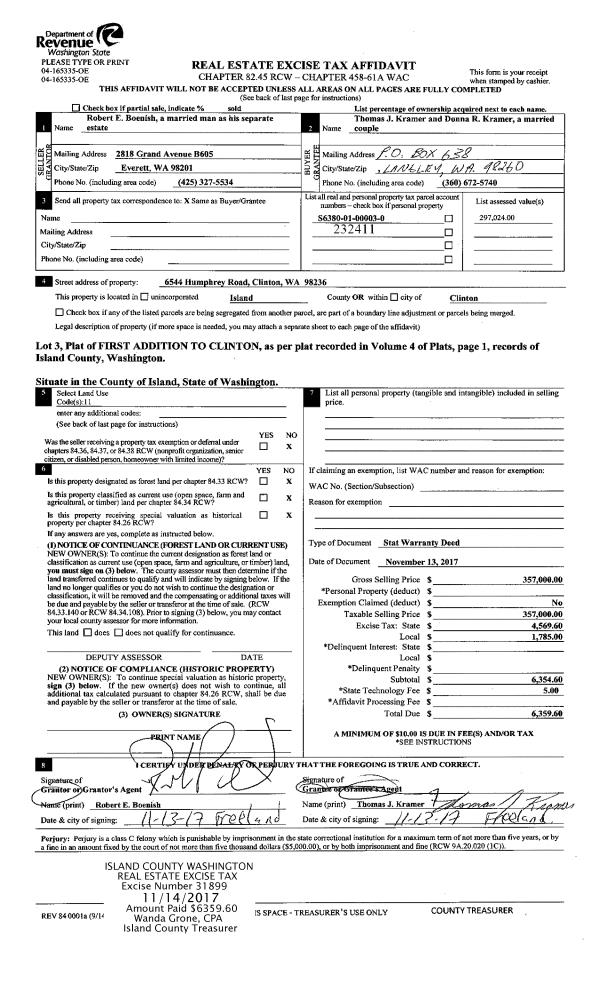
Deed and Sales History
| 1 | 12/15/2021 | WD | Warranty Deed | WALDRON CONSTRUCTION INC | MOTTET, BRADLEY J | | | $110,000.00 | 51361 | 4536128 |
| 2 | 05/28/2021 | WD | Warranty Deed | DDJ NIEDER, LLC | WALDRON CONSTRUCTION INC | | | $85,000.00 | 48569 | 4521145 |
| 3 | 09/25/2017 | TRUSTEED | Trustee's Deed | NIEDER TRUSTEE, DANIEL A | DDJ NIEDER, LLC | | | $0.00 | 31484 | 4431959 |
| 4 | 09/25/2017 | PRD | Personal Representatives Deed | NIEDER, DANIEL | NIEDER TRUSTEE, DANIEL A | | | $0.00 | 31482 | 4431957 |
| 5 | 05/28/2015 | QCD | Quit Claim Deed | RAYMOND, JESSE | NIEDER, DANIEL | | | $85,000.00 | 19905 | 4379784 |
| 6 | 06/25/2008 | WD | Warranty Deed | D AND G DEVELOPMENT LLC, | RAYMOND, JESSE | | | $84,000.00 | 81735 | 4232095 |
| 7 | 12/30/2005 | WD | Warranty Deed | GALANG, PETER & | D AND G DEVELOPMENT LLC, | | | $64,994.00 | 60206 | 4159959 |
| 8 | 11/01/1995 | WD | Warranty Deed | SZABO, TAEKO | GALANG, PETER & | | | $0.00 | 54176 | 95019216 |
| 9 | 05/01/1994 | WD | Warranty Deed | BRITTON, LOUISE M | SZABO, TAEKO | | | $3,500.00 | 41847 | 94010894 |
| 10 | 03/01/1984 | OTHER | Other - Misc. Documents | BRITTON, LOUISE M | BRITTON, LOUISE M | | | $0.00 | 60440 | 0 |
| 11 | 03/01/1984 | QCD | Quit Claim Deed | BRITTON, ROBERT B | BRITTON, LOUISE M | | | $0.00 | 40592 | 421832 |
| 12 | 01/01/1900 | OTHER | Other - Misc. Documents | Unknown | BRITTON, ROBERT B | | | $0.00 | 0 | 0 |
Payout Agreement
| No payout information available.. |