Property
Account |
| Property ID: | 198422 | Abbreviated Legal Description: | BROADVIEW 2 LOT 18 |
| Geographic ID: | S6185-02-00018-0 | Agent Code: | |
| Type: | Real | | |
| Tax Area: | 100 - APPRAISER-OH Schl Dist, in OH | Land Use Code | 11 |
| Open Space: | N | DFL | N |
| Historic Property: | N | Remodel Property: | N |
| Multi-Family Redevelopment: | N | | |
| Township: | | Section: | |
| Range: | |
Location |
| Address: | 283 SW 8TH AVE OAK HARBOR, WA 98277 | Mapsco: | |
| Neighborhood: | Cycle 1 | Map ID: | 93 |
| Neighborhood CD: | 1 |
Owner |
| Name: | KIM TTEE, LUANA (2/3) | Owner ID: | 298166 |
| Mailing Address: | MARK STEVEN HORN (1/3) 283 SW 8TH AVE OAK HARBOR, WA 98277 | % Ownership: | 100.0000000000% |
| | | Exemptions: | SNR/DSBL |
Taxes and Assessment Details
Values
| (+) Improvement Homesite Value: | + | $200,183 | |
| (+) Improvement Non-Homesite Value: | + | $0 | |
| (+) Land Homesite Value: | + | $200,000 | |
| (+) Land Non-Homesite Value: | + | $0 | |
| (+) Curr Use (HS): | + | $0 | $0 |
| (+) Curr Use (NHS): | + | $0 | $0 |
| | | -------------------------- | |
| (=) Market Value: | = | $400,183 | |
| (–) Productivity Loss: | – | $0 | |
| | | -------------------------- | |
| (=) Subtotal: | = | $400,183 | |
| (+) Senior Appraised Value: | + | $255,702 | |
| (+) Non-Senior Appraised Value: | + | $0 | |
| | | -------------------------- | |
| (=) Total Appraised Value: | = | $255,702 | |
| (–) Senior Exemption Loss: | – | $153,421 | |
| (–) Exemption Loss: | – | $0 | |
| | | -------------------------- | |
| (=) Taxable Value: | = | $102,281 | |
Taxing Jurisdiction
| Owner: | KIM TTEE, LUANA (2/3) | | |
| % Ownership: | 100.0000000000% | | |
| Total Value: | $400,183 | | |
| Tax Area: | 100 - APPRAISER-OH Schl Dist, in OH |
| CF | Conservation Futures | 0.0316035091 | $400,183 | $102,281 | $3.23 | | |
| CEM1 | Cemetery #1 | 0.0040320932 | $400,183 | $102,281 | $0.41 | | |
| COH | City of Oak Harbor | 2.3001546061 | $400,183 | $102,281 | $235.26 | | |
| OAKBOND | City of Oak Harbor BOND | 0.1926904192 | $400,183 | $102,281 | $19.71 | | |
| HOBOND | Hospital BOND | 0.0000000000 | $400,183 | $0 | $0.00 | | |
| HOGEN | Hospital GEN | 0.3902502903 | $400,183 | $102,281 | $39.92 | | |
| CE | County Current Expense | 0.3708482477 | $400,183 | $102,281 | $37.93 | | |
| ISLANDEMS | Hospital GEN (EMS) | 0.5000000000 | $400,183 | $102,281 | $51.14 | | |
| LIB | Library Sno-Isle GEN | 0.3153421757 | $400,183 | $102,281 | $32.25 | | |
| NWHIDPRMT | P & R N Whidbey GEN | 0.2004466701 | $400,183 | $102,281 | $20.50 | | |
| SCH201MO | School 201 Enrichment | 0.0000000000 | $400,183 | $0 | $0.00 | | |
| ST | State School | 1.3035497053 | $400,183 | $102,281 | $133.33 | | |
| ST2 | State School Part 2 | 0.0000000000 | $400,183 | $0 | $0.00 | | |
| | Total Tax Rate: | 5.6089177167 | | | | | |
| | | | | Taxes w/Current Exemptions: | $573.68 | | |
| | | | | Taxes w/o Exemptions: | $3,390.70 | | |
Improvement / Building
| Improvement #1: | RESIDENTIAL | State Code: | Y | 1066.0 sqft | Value: | $200,183 |
| Bathrooms: | 1 | Bedrooms: | 3 | | Ceiling: | DRYWALL PAINTED | Exterior Wall/Cover: | PLY/HARDBOARD T-111 | | Floor Covering: | VINYL/HARDWOOD 20-80 | Floor Structure: | WOOD W/SUBFLOOR | | Foundation: | CONCRETE | Heating: | FHA ELECTRIC | | Interior Finish: | DRYWALL PAINT | Plumbing Fixture Cnt: | 6 | | Roof Slope: | 4" IN 12" | Roof Structure/Cover: | CJ ALUMINIUM HEAVY |
|
| | Type | Description | Class CD | Sub Class CD | Year Built | Area |
| | BAS | BASE/MAIN FLOOR | 3 | 0 | 1958 | 1066.0 |
| | AGR | ATTACHED GARAGE | 3 | 0 | 1958 | 336.0 |
| | ENP | ENCLOSED PORCH | 3 | 0 | 1958 | 120.0 |
Sketch
Property Image
Land
| 1 | 14 | SQ (08001-12000) | 0.2303 | 10031.87 | 0.00 | 0.00 | 1.00 | $200,000 | $0 |
Roll Value History
| 2026 | N/A | N/A | N/A | N/A | N/A |
| 2025 | $200,183 | $200,000 | $0 | $400,183 | $102,281 |
| 2024 | $202,774 | $180,000 | $0 | $382,774 | $102,281 |
| 2023 | $187,320 | $190,000 | $0 | $377,320 | $102,281 |
| 2022 | $171,875 | $180,000 | $0 | $351,875 | $102,281 |
| 2021 | $151,411 | $120,000 | $0 | $271,411 | $102,281 |
| 2020 | $147,782 | $100,000 | $0 | $247,782 | $99,113 |
| 2019 | $105,702 | $150,000 | $0 | $255,702 | $102,281 |
| 2018 | $106,036 | $130,000 | $0 | $236,036 | $43,566 |
| 2017 | $92,349 | $110,000 | $0 | $202,349 | $43,566 |
| 2016 | $93,727 | $90,000 | $0 | $183,727 | $43,566 |
| 2015 | $95,106 | $70,000 | $0 | $165,106 | $43,566 |
| 2014 | $96,484 | $55,000 | $0 | $151,484 | $43,566 |
| 2013 | $97,862 | $55,000 | $0 | $152,862 | $43,566 |
| 2012 | $99,240 | $60,000 | $0 | $159,240 | $43,566 |
| 2011 | $101,353 | $50,000 | $0 | $151,353 | $43,566 |
| 2010 | $105,350 | $50,000 | $0 | $155,350 | $43,566 |
| 2009 | $109,986 | $60,000 | $0 | $169,986 | $43,566 |
| 2008 | $111,495 | $72,000 | $0 | $183,495 | $43,566 |
| 2007 | $113,006 | $72,000 | $0 | $185,006 | $43,566 |
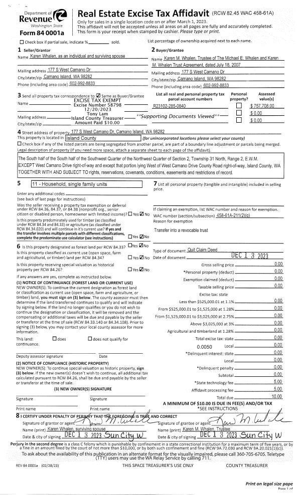
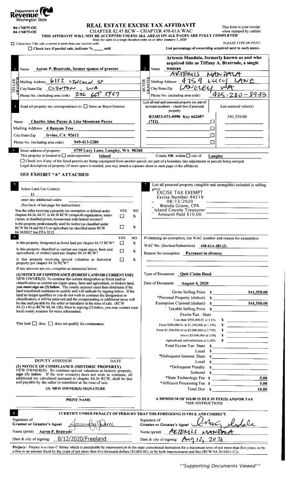
Deed and Sales History
| 1 | 12/09/2020 | QCD | Quit Claim Deed | KIM LE, LUANA (2/3) | KIM TTEE, LUANA (2/3) | | | $0.00 | 46219 | 4505947 |
| 2 | 12/26/2019 | QCD | Quit Claim Deed | KIM LE, LUANA | KIM LE, LUANA (2/3) | | | $0.00 | 41768 | 4479075 |
| 3 | 06/24/2019 | TOD | Transfer On Death Deed | HORN, GRACE J | KIM LE, LUANA | | | $0.00 | 41767 | 4466001 |
| 4 | 06/24/2019 | QCD | Quit Claim Deed | HORN, GRACE J | HORN, GRACE J | | | $0.00 | 39336 | 4466855 |
| 5 | 12/18/2000 | OTHER | Other - Misc. Documents | HORN, RUSSELL L | HORN, GRACE J | | | $0.00 | 68898 | 20020744 |
| 6 | 01/01/1900 | OTHER | Other - Misc. Documents | Unknown | HORN, RUSSELL L | | | $0.00 | 0 | 0 |
Payout Agreement
| No payout information available.. |