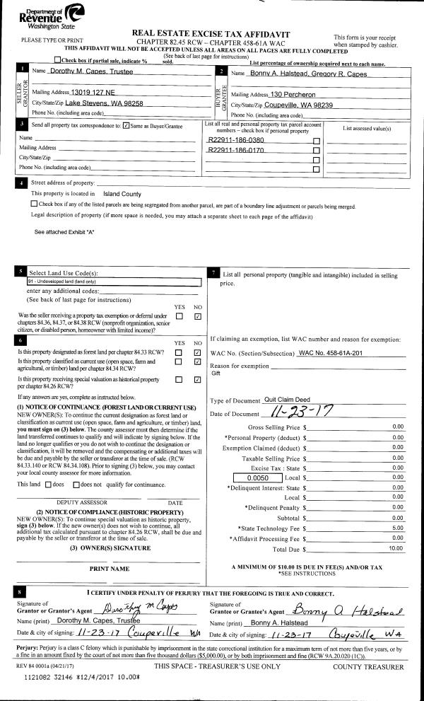
Property
Account |
| Property ID: | 198431 | Abbreviated Legal Description: | BROADVIEW 2 LOT 19 |
| Geographic ID: | S6185-02-00019-0 | Agent Code: | |
| Type: | Real | | |
| Tax Area: | 100 - APPRAISER-OH Schl Dist, in OH | Land Use Code | 11 |
| Open Space: | N | DFL | N |
| Historic Property: | N | Remodel Property: | N |
| Multi-Family Redevelopment: | N | | |
| Township: | | Section: | |
| Range: | |
Location |
| Address: | 255 SW 8TH AVE OAK HARBOR, WA 98277 | Mapsco: | |
| Neighborhood: | Cycle 1 | Map ID: | 93 |
| Neighborhood CD: | 1 |
Owner |
| Name: | KENDRICK, ANTHONY | Owner ID: | 282511 |
| Mailing Address: | VALERIE A KENDRICK 255 SW 8TH AVE OAK HARBOR, WA 98277 | % Ownership: | 100.0000000000% |
| | | Exemptions: | |
Taxes and Assessment Details
Values
| (+) Improvement Homesite Value: | + | $0 | |
| (+) Improvement Non-Homesite Value: | + | $215,384 | |
| (+) Land Homesite Value: | + | $0 | |
| (+) Land Non-Homesite Value: | + | $200,000 | |
| (+) Curr Use (HS): | + | $0 | $0 |
| (+) Curr Use (NHS): | + | $0 | $0 |
| | | -------------------------- | |
| (=) Market Value: | = | $415,384 | |
| (–) Productivity Loss: | – | $0 | |
| | | -------------------------- | |
| (=) Subtotal: | = | $415,384 | |
| (+) Senior Appraised Value: | + | $0 | |
| (+) Non-Senior Appraised Value: | + | $415,384 | |
| | | -------------------------- | |
| (=) Total Appraised Value: | = | $415,384 | |
| (–) Senior Exemption Loss: | – | $0 | |
| (–) Exemption Loss: | – | $0 | |
| | | -------------------------- | |
| (=) Taxable Value: | = | $415,384 | |
Taxing Jurisdiction
| Owner: | KENDRICK, ANTHONY | | |
| % Ownership: | 100.0000000000% | | |
| Total Value: | $415,384 | | |
| Tax Area: | 100 - APPRAISER-OH Schl Dist, in OH |
| CF | Conservation Futures | 0.0316035091 | $415,384 | $415,384 | $13.13 | | |
| CEM1 | Cemetery #1 | 0.0040320932 | $415,384 | $415,384 | $1.67 | | |
| COH | City of Oak Harbor | 2.3001546061 | $415,384 | $415,384 | $955.45 | | |
| OAKBOND | City of Oak Harbor BOND | 0.1926904192 | $415,384 | $415,384 | $80.04 | | |
| HOBOND | Hospital BOND | 0.1910887512 | $415,384 | $415,384 | $79.38 | | |
| HOGEN | Hospital GEN | 0.3902502903 | $415,384 | $415,384 | $162.10 | | |
| CE | County Current Expense | 0.3708482477 | $415,384 | $415,384 | $154.04 | | |
| ISLANDEMS | Hospital GEN (EMS) | 0.5000000000 | $415,384 | $415,384 | $207.69 | | |
| LIB | Library Sno-Isle GEN | 0.3153421757 | $415,384 | $415,384 | $130.99 | | |
| NWHIDPRMT | P & R N Whidbey GEN | 0.2004466701 | $415,384 | $415,384 | $83.26 | | |
| SCH201MO | School 201 Enrichment | 1.8559231640 | $415,384 | $415,384 | $770.92 | | |
| ST | State School | 1.3035497053 | $415,384 | $415,384 | $541.47 | | |
| ST2 | State School Part 2 | 0.8169543533 | $415,384 | $415,384 | $339.35 | | |
| | Total Tax Rate: | 8.4728839852 | | | | | |
| | | | | Taxes w/Current Exemptions: | $3,519.49 | | |
| | | | | Taxes w/o Exemptions: | $3,519.49 | | |
Improvement / Building
| Improvement #1: | RESIDENTIAL | State Code: | Y | 1392.0 sqft | Value: | $215,384 |
| Bathrooms: | 2 | Bedrooms: | 4 | | Ceiling: | DRYWALL PAINTED | Exterior Wall/Cover: | VINYL | | Floor Covering: | VINYL/HARDWOOD 60-40 | Floor Structure: | WOOD W/SUBFLOOR | | Foundation: | CONCRETE | Heating: | FHA OIL | | Interior Finish: | DRYWALL PAINT | Plumbing Fixture Cnt: | 9 | | Roof Slope: | 4" IN 12" | Roof Structure/Cover: | CJ ASPHALT |
|
| | Type | Description | Class CD | Sub Class CD | Year Built | Area |
| | BAS | BASE/MAIN FLOOR | 3 | 0 | 1958 | 1392.0 |
| | OP4 | OPEN PORCH W/CEILING-ROOF | 3 | 0 | 1958 | 16.0 |
| | OWP | OPEN WOOD PORCH W/STEPS | 3 | 0 | 1958 | 144.0 |
Sketch
Property Image
Land
| 1 | 14 | SQ (08001-12000) | 0.2159 | 9404.60 | 0.00 | 0.00 | 1.00 | $200,000 | $0 |
Roll Value History
| 2026 | N/A | N/A | N/A | N/A | N/A |
| 2025 | $215,384 | $200,000 | $0 | $415,384 | $415,384 |
| 2024 | $218,245 | $180,000 | $0 | $398,245 | $398,245 |
| 2023 | $215,384 | $190,000 | $0 | $405,384 | $405,384 |
| 2022 | $197,624 | $180,000 | $0 | $377,624 | $377,624 |
| 2021 | $174,096 | $120,000 | $0 | $294,096 | $294,096 |
| 2020 | $169,783 | $100,000 | $0 | $269,783 | $269,783 |
| 2019 | $121,718 | $150,000 | $0 | $271,718 | $271,718 |
| 2018 | $122,102 | $130,000 | $0 | $252,102 | $252,102 |
| 2017 | $126,556 | $110,000 | $0 | $236,556 | $236,556 |
| 2016 | $128,138 | $90,000 | $0 | $218,138 | $218,138 |
| 2015 | $97,554 | $70,000 | $0 | $167,554 | $167,554 |
| 2014 | $99,032 | $55,000 | $0 | $154,032 | $154,032 |
| 2013 | $100,511 | $55,000 | $0 | $155,511 | $155,511 |
| 2012 | $101,989 | $60,000 | $0 | $161,989 | $161,989 |
| 2011 | $101,505 | $50,000 | $0 | $151,505 | $151,505 |
| 2010 | $107,464 | $50,000 | $0 | $157,464 | $157,464 |
| 2009 | $112,363 | $60,000 | $0 | $172,363 | $172,363 |
| 2008 | $114,038 | $72,000 | $0 | $186,038 | $186,038 |
| 2007 | $115,726 | $72,000 | $0 | $187,726 | $187,726 |
Deed and Sales History
| 1 | 10/17/2017 | WD | Warranty Deed | DICKERSON, CHUCK F | KENDRICK, ANTHONY | | | $238,000.00 | 31569 | 4432403 |
| 2 | 01/28/2016 | WD | Warranty Deed | SIKES, JEANNIE M | DICKERSON, CHUCK F | | | $215,000.00 | 23088 | 4393832 |
| 3 | 10/01/2013 | ESTSEPPROP | Establish Separate Property | JARDET, JEANNIE MARIE | SIKES, JEANNIE M | | | $0.00 | 13046 | 4349250 |
| 4 | 10/28/2013 | DECREE | Divorce Decree/Legal Separation | JARDET, JAMES GORDON | JARDET, JEANNIE MARIE | | | | 82762 | |
| 5 | 11/09/2009 | WD | Warranty Deed | WALLS, JERRY L | JARDET, JAMES GORDON | | | $192,500.00 | 92775 | 4263634 |
| 6 | 10/05/2001 | ESTSEPPROP | Establish Separate Property | WALLS, JERRY L | WALLS, JERRY L | | | $2,000.00 | 41785 | 4099074 |
| 7 | 02/16/1999 | QCD | Quit Claim Deed | WALLS, JERRY L | WALLS, JERRY L | | | $0.00 | 90628 | 99004441 |
| 8 | 01/01/1995 | WD | Warranty Deed | WALLS, JERRY L | WALLS, JERRY L | | | $112,000.00 | 50166 | 95000852 |
| 9 | 12/01/1994 | QCD | Quit Claim Deed | SANKEY, THOMAS A | WALLS, JERRY L | | | $400.00 | 50167 | 95000853 |
| 10 | 12/01/1991 | WD | Warranty Deed | SMITH, TIMOTHY J | SANKEY, THOMAS A | | | $87,500.00 | 14586 | 91020061 |
| 11 | 04/01/1989 | WD | Warranty Deed | KNUTH, STEVEN C | SMITH, TIMOTHY J | | | $55,000.00 | 91183 | 89004138 |
| 12 | 01/01/1900 | OTHER | Other - Misc. Documents | Unknown | KNUTH, STEVEN C | | | $0.00 | 0 | 0 |
Payout Agreement
| No payout information available.. |