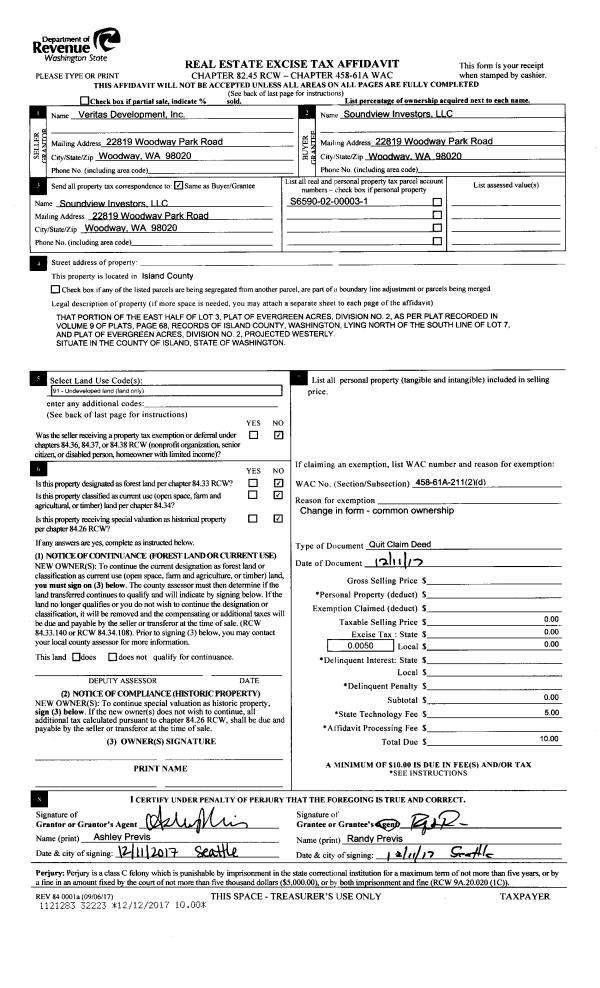
Property
Account |
| Property ID: | 198440 | Abbreviated Legal Description: | BROADVIEW 2 LOT 20 |
| Geographic ID: | S6185-02-00020-0 | Agent Code: | |
| Type: | Real | | |
| Tax Area: | 100 - APPRAISER-OH Schl Dist, in OH | Land Use Code | 11 |
| Open Space: | N | DFL | N |
| Historic Property: | N | Remodel Property: | N |
| Multi-Family Redevelopment: | N | | |
| Township: | | Section: | |
| Range: | |
Location |
| Address: | 230 SW 10TH AVE OAK HARBOR, WA 98277 | Mapsco: | |
| Neighborhood: | Cycle 1 | Map ID: | 93 |
| Neighborhood CD: | 1 |
Owner |
| Name: | TANNER, JON R | Owner ID: | 267767 |
| Mailing Address: | ADAIHA R TANNER 1690 WHISPERING CIR CUMMING, GA 30040-5570 | % Ownership: | 100.0000000000% |
| | | Exemptions: | |
Taxes and Assessment Details
Values
| (+) Improvement Homesite Value: | + | $0 | |
| (+) Improvement Non-Homesite Value: | + | $189,678 | |
| (+) Land Homesite Value: | + | $0 | |
| (+) Land Non-Homesite Value: | + | $200,000 | |
| (+) Curr Use (HS): | + | $0 | $0 |
| (+) Curr Use (NHS): | + | $0 | $0 |
| | | -------------------------- | |
| (=) Market Value: | = | $389,678 | |
| (–) Productivity Loss: | – | $0 | |
| | | -------------------------- | |
| (=) Subtotal: | = | $389,678 | |
| (+) Senior Appraised Value: | + | $0 | |
| (+) Non-Senior Appraised Value: | + | $389,678 | |
| | | -------------------------- | |
| (=) Total Appraised Value: | = | $389,678 | |
| (–) Senior Exemption Loss: | – | $0 | |
| (–) Exemption Loss: | – | $0 | |
| | | -------------------------- | |
| (=) Taxable Value: | = | $389,678 | |
Taxing Jurisdiction
| Owner: | TANNER, JON R | | |
| % Ownership: | 100.0000000000% | | |
| Total Value: | $389,678 | | |
| Tax Area: | 100 - APPRAISER-OH Schl Dist, in OH |
| CF | Conservation Futures | 0.0316035091 | $389,678 | $389,678 | $12.32 | | |
| CEM1 | Cemetery #1 | 0.0040320932 | $389,678 | $389,678 | $1.57 | | |
| COH | City of Oak Harbor | 2.3001546061 | $389,678 | $389,678 | $896.32 | | |
| OAKBOND | City of Oak Harbor BOND | 0.1926904192 | $389,678 | $389,678 | $75.09 | | |
| HOBOND | Hospital BOND | 0.1910887512 | $389,678 | $389,678 | $74.46 | | |
| HOGEN | Hospital GEN | 0.3902502903 | $389,678 | $389,678 | $152.07 | | |
| CE | County Current Expense | 0.3708482477 | $389,678 | $389,678 | $144.51 | | |
| ISLANDEMS | Hospital GEN (EMS) | 0.5000000000 | $389,678 | $389,678 | $194.84 | | |
| LIB | Library Sno-Isle GEN | 0.3153421757 | $389,678 | $389,678 | $122.88 | | |
| NWHIDPRMT | P & R N Whidbey GEN | 0.2004466701 | $389,678 | $389,678 | $78.11 | | |
| SCH201MO | School 201 Enrichment | 1.8559231640 | $389,678 | $389,678 | $723.21 | | |
| ST | State School | 1.3035497053 | $389,678 | $389,678 | $507.96 | | |
| ST2 | State School Part 2 | 0.8169543533 | $389,678 | $389,678 | $318.35 | | |
| | Total Tax Rate: | 8.4728839852 | | | | | |
| | | | | Taxes w/Current Exemptions: | $3,301.69 | | |
| | | | | Taxes w/o Exemptions: | $3,301.69 | | |
Improvement / Building
| Improvement #1: | RESIDENTIAL | State Code: | Y | 1092.0 sqft | Value: | $189,678 |
| Bathrooms: | 1.5 | Bedrooms: | 3 | | Ceiling: | DRYWALL PAINTED | Exterior Wall/Cover: | WOOD SIDING | | Floor Covering: | CARPET/VINYL 60-40 | Floor Structure: | WOOD W/SUBFLOOR | | Foundation: | CONCRETE | Heating: | FHA ELECTRIC | | Interior Finish: | DRYWALL PAINT | Plumbing Fixture Cnt: | 8 | | Roof Slope: | 4" IN 12" | Roof Structure/Cover: | CJ ASPHALT |
|
| | Type | Description | Class CD | Sub Class CD | Year Built | Area |
| | BAS | BASE/MAIN FLOOR | 3 | 0 | 1959 | 1092.0 |
| | OP3 | OPEN PORCH W/ROOF | 3 | 0 | 1959 | 264.0 |
| | AGR | ATTACHED GARAGE | 3 | 0 | 1959 | 338.0 |
Sketch
Property Image
Land
| 1 | 14 | SQ (08001-12000) | 0.2684 | 11691.50 | 0.00 | 0.00 | 1.00 | $200,000 | $0 |
Roll Value History
| 2026 | N/A | N/A | N/A | N/A | N/A |
| 2025 | $189,678 | $200,000 | $0 | $389,678 | $389,678 |
| 2024 | $192,197 | $180,000 | $0 | $372,197 | $372,197 |
| 2023 | $194,719 | $190,000 | $0 | $384,719 | $384,719 |
| 2022 | $178,600 | $180,000 | $0 | $358,600 | $358,600 |
| 2021 | $157,287 | $120,000 | $0 | $277,287 | $277,287 |
| 2020 | $153,096 | $100,000 | $0 | $253,096 | $253,096 |
| 2019 | $107,821 | $150,000 | $0 | $257,821 | $257,821 |
| 2018 | $108,153 | $130,000 | $0 | $238,153 | $238,153 |
| 2017 | $108,923 | $110,000 | $0 | $218,923 | $218,923 |
| 2016 | $110,251 | $90,000 | $0 | $200,251 | $200,251 |
| 2015 | $111,579 | $70,000 | $0 | $181,579 | $181,579 |
| 2014 | $112,908 | $55,000 | $0 | $167,908 | $167,908 |
| 2013 | $114,236 | $55,000 | $0 | $169,236 | $169,236 |
| 2012 | $115,565 | $60,000 | $0 | $175,565 | $175,565 |
| 2011 | $109,137 | $50,000 | $0 | $159,137 | $159,137 |
| 2010 | $106,709 | $50,000 | $0 | $156,709 | $156,709 |
| 2009 | $111,262 | $60,000 | $0 | $171,262 | $171,262 |
| 2008 | $112,622 | $72,000 | $0 | $184,622 | $184,622 |
| 2007 | $113,973 | $72,000 | $0 | $185,973 | $185,973 |
Deed and Sales History
| 1 | 09/18/2014 | WD | Warranty Deed | KING, TODD A | TANNER, JON R | | | $178,000.00 | 16860 | 4365755 |
| 2 | 03/22/2010 | WD | Warranty Deed | WATSON, ROBBIE W | KING, TODD A | | | $220,000.00 | 638 | 4270711 |
| 3 | 10/04/2004 | WD | Warranty Deed | ZIEMER, JASON W | WATSON, ROBBIE W | | | $142,000.00 | 44704 | 4114765 |
| 4 | 11/14/2001 | WD | Warranty Deed | SHOOK, MORRIS R | ZIEMER, JASON W | | | $117,500.00 | 14373 | 4002945 |
| 5 | 04/01/1991 | WD | Warranty Deed | PAULS, RODNEY K | SHOOK, MORRIS R | | | $83,900.00 | 11247 | 91005354 |
| 6 | 08/01/1989 | QCD | Quit Claim Deed | PAULS, RODNEY K | PAULS, RODNEY K | | | $0.00 | 93606 | 89012101 |
| 7 | 08/01/1986 | WD | Warranty Deed | GRUND, WILLIAM | PAULS, RODNEY K | | | $55,000.00 | 62150 | 86009969 |
| 8 | 06/01/1981 | WD | Warranty Deed | MOYER, ROBERT F | GRUND, WILLIAM | | | $52,000.00 | 11820 | 384287 |
| 9 | 01/01/1900 | OTHER | Other - Misc. Documents | Unknown | MOYER, ROBERT F | | | $0.00 | 0 | 0 |
Payout Agreement
| No payout information available.. |