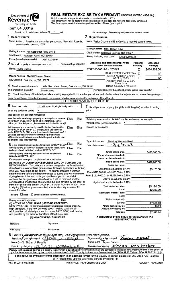
Property
Account |
| Property ID: | 199234 | Abbreviated Legal Description: | BUENA VISTA 1 LOT 3 BLK 1 |
| Geographic ID: | S6195-00-01003-0 | Agent Code: | |
| Type: | Real | | |
| Tax Area: | 590 - APPRAISER-Stan/Cam Schl Dist, Special Dist, improved & less than 1 acre | Land Use Code | 11 |
| Open Space: | N | DFL | N |
| Historic Property: | N | Remodel Property: | N |
| Multi-Family Redevelopment: | N | | |
| Township: | | Section: | |
| Range: | |
Location |
| Address: | 85 VISTA DEL MAR ST CAMANO ISLAND, WA 98282 | Mapsco: | |
| Neighborhood: | North Camano | Map ID: | 962 |
| Neighborhood CD: | 06-C |
Owner |
| Name: | ANDERSON, TERRY A | Owner ID: | 308632 |
| Mailing Address: | 85 VISTA DEL MAR ST CAMANO ISLAND, WA 98282 | % Ownership: | 100.0000000000% |
| | | Exemptions: | SNR/DSBL |
Taxes and Assessment Details
Values
| (+) Improvement Homesite Value: | + | $449,512 | |
| (+) Improvement Non-Homesite Value: | + | $0 | |
| (+) Land Homesite Value: | + | $365,000 | |
| (+) Land Non-Homesite Value: | + | $0 | |
| (+) Curr Use (HS): | + | $0 | $0 |
| (+) Curr Use (NHS): | + | $0 | $0 |
| | | -------------------------- | |
| (=) Market Value: | = | $814,512 | |
| (–) Productivity Loss: | – | $0 | |
| | | -------------------------- | |
| (=) Subtotal: | = | $814,512 | |
| (+) Senior Appraised Value: | + | $810,577 | |
| (+) Non-Senior Appraised Value: | + | $0 | |
| | | -------------------------- | |
| (=) Total Appraised Value: | = | $810,577 | |
| (–) Senior Exemption Loss: | – | $486,346 | |
| (–) Exemption Loss: | – | $0 | |
| | | -------------------------- | |
| (=) Taxable Value: | = | $324,231 | |
Taxing Jurisdiction
| Owner: | ANDERSON, TERRY A | | |
| % Ownership: | 100.0000000000% | | |
| Total Value: | $814,512 | | |
| Tax Area: | 590 - APPRAISER-Stan/Cam Schl Dist, Special Dist, improved & less than 1 acre |
| CF | Conservation Futures | 0.0316035091 | $814,512 | $324,231 | $10.25 | | |
| EMS1 | Fire & Rescue Dist #1 Camano GEN (EMS) | 0.3677864386 | $814,512 | $324,231 | $119.25 | | |
| FIRE1 | Fire & Rescue Dist #1 Camano GEN | 1.2502910536 | $814,512 | $324,231 | $405.38 | | |
| FIRE1BOND | Fire & Rescue Dist #1 Camano BOND | 0.0000000000 | $814,512 | $0 | $0.00 | | |
| CE | County Current Expense | 0.3708482477 | $814,512 | $324,231 | $120.24 | | |
| CR | County Roads | 0.4584763726 | $814,512 | $324,231 | $148.65 | | |
| LCIB | Library Sno-Isle BOND (Camano Island) | 0.0000000000 | $814,512 | $0 | $0.00 | | |
| LIB | Library Sno-Isle GEN | 0.3153421757 | $814,512 | $324,231 | $102.24 | | |
| SCH205_401 | School 205-401 Enrichment | 0.0000000000 | $814,512 | $0 | $0.00 | | |
| SCH205BOND | School 205-401 BOND | 0.0000000000 | $814,512 | $0 | $0.00 | | |
| ST | State School | 1.3035497053 | $814,512 | $324,231 | $422.65 | | |
| ST2 | State School Part 2 | 0.0000000000 | $814,512 | $0 | $0.00 | | |
| | Total Tax Rate: | 4.0978975026 | | | | | |
| | | | | Taxes w/Current Exemptions: | $1,328.66 | | |
| | | | | Taxes w/o Exemptions: | $5,963.03 | | |
Improvement / Building
| Improvement #1: | RESIDENTIAL | State Code: | Y | 3324.4 sqft | Value: | $449,512 |
| Bathrooms: | 3 | Bedrooms: | 3 | | Ceiling: | DRYWALL PAINTED | Exterior Wall/Cover: | VINYL | | Floor Covering: | HARDWOOD/CARP 80-20 | Floor Structure: | WOOD W/SUBFLOOR | | Foundation: | CONCRETE | Heating: | FHA GAS | | Interior Finish: | DRYWALL PAINT | Plumbing Fixture Cnt: | 12 | | Roof Slope: | 4" IN 12" | Roof Structure/Cover: | CJ ASPHALT |
|
| | Type | Description | Class CD | Sub Class CD | Year Built | Area |
| | BAS | BASE/MAIN FLOOR | 3 | 0 | 1993 | 1818.6 |
| | OP4 | OPEN PORCH W/CEILING-ROOF | 3 | 0 | 1993 | 60.0 |
| | AGR | ATTACHED GARAGE | 3 | 0 | 1993 | 528.0 |
| | UPS | UPPER STORY | 3 | 0 | 1993 | 258.6 |
| | OWP | OPEN WOOD PORCH W/STEPS | 3 | 0 | 1993 | 289.0 |
| | OWP | OPEN WOOD PORCH W/STEPS | 3 | 0 | 1993 | 347.2 |
| | DWN | DOWNSTAIRS LIVING AREA | 3 | 0 | 1993 | 1247.2 |
Sketch
Property Image
Land
| 1 | 14 | SQ (08001-12000) | 0.0000 | 0.00 | 0.00 | 0.00 | 1.00 | $365,000 | $0 |
Roll Value History
| 2026 | N/A | N/A | N/A | N/A | N/A |
| 2025 | $449,512 | $365,000 | $0 | $814,512 | $324,231 |
| 2024 | $455,044 | $350,000 | $0 | $805,044 | $322,018 |
| 2023 | $460,577 | $350,000 | $0 | $810,577 | $324,231 |
| 2022 | $415,750 | $310,000 | $0 | $725,750 | $725,750 |
| 2021 | $365,920 | $190,000 | $0 | $555,920 | $555,920 |
| 2020 | $357,733 | $190,000 | $0 | $547,733 | $547,733 |
| 2019 | $293,882 | $230,000 | $0 | $523,882 | $523,882 |
| 2018 | $294,744 | $200,000 | $0 | $494,744 | $475,993 |
| 2017 | $295,993 | $180,000 | $0 | $475,993 | $475,993 |
| 2016 | $282,431 | $115,000 | $0 | $397,431 | $397,431 |
| 2015 | $285,876 | $100,000 | $0 | $385,876 | $385,876 |
| 2014 | $289,320 | $85,000 | $0 | $374,320 | $374,320 |
| 2013 | $292,763 | $85,000 | $0 | $377,763 | $377,763 |
| 2012 | $296,208 | $80,000 | $0 | $376,208 | $376,208 |
| 2011 | $299,653 | $100,000 | $0 | $399,653 | $399,653 |
| 2010 | $312,591 | $103,230 | $0 | $415,821 | $415,821 |
| 2009 | $325,825 | $165,000 | $0 | $490,825 | $490,825 |
| 2008 | $329,648 | $250,000 | $0 | $579,648 | $579,648 |
| 2007 | $333,716 | $250,000 | $0 | $583,716 | $583,716 |
Deed and Sales History
| 1 | 05/11/2023 | QCD | Quit Claim Deed | ANDERSON, TERRY A | ANDERSON, TERRY A | | | $0.00 | 56733 | 4560034 |
| 2 | 05/25/2021 | QCD | Quit Claim Deed | ANDERSON, TERRY A | ANDERSON, TERRY A | | | $0.00 | 48477 | 4520562 |
| 3 | 04/05/2021 | QCD | Quit Claim Deed | ANDERSON, TERRY A (85%) | ANDERSON, TERRY A | | | $0.00 | 47759 | 4516438 |
| 4 | 10/31/2019 | QCD | Quit Claim Deed | ANDERSON, TERRY A | ANDERSON, TERRY A (85%) | | | $60,000.00 | 40994 | 4474907 |
| 5 | 01/30/2019 | QCD | Quit Claim Deed | ANDERSON, GARY E | ANDERSON, TERRY A | | | $0.00 | 37491 | 4458710 |
| 6 | 08/28/2000 | WD | Warranty Deed | DEL MAR MNGMT TRUST, DAVID J O | ANDERSON, GARY E | | | $0.00 | 3449 | 20015956 |
| 7 | 12/17/1999 | WD | Warranty Deed | ANDERSON, GARY E | DEL MAR MNGMT TRUST, DAVID J O | | | $0.00 | 24 | 20000140 |
| 8 | 10/01/1992 | WD | Warranty Deed | HALLIDAY, WALTER | ANDERSON, GARY E | | | $62,000.00 | 24248 | 92020752 |
| 9 | 01/01/1989 | WD | Warranty Deed | ANDERSON, CLARENCE N | HALLIDAY, WALTER | | | $15,000.00 | 90360 | 89001235 |
| 10 | 01/01/1900 | OTHER | Other - Misc. Documents | Unknown | ANDERSON, CLARENCE N | | | $0.00 | 0 | 0 |
Payout Agreement
| No payout information available.. |