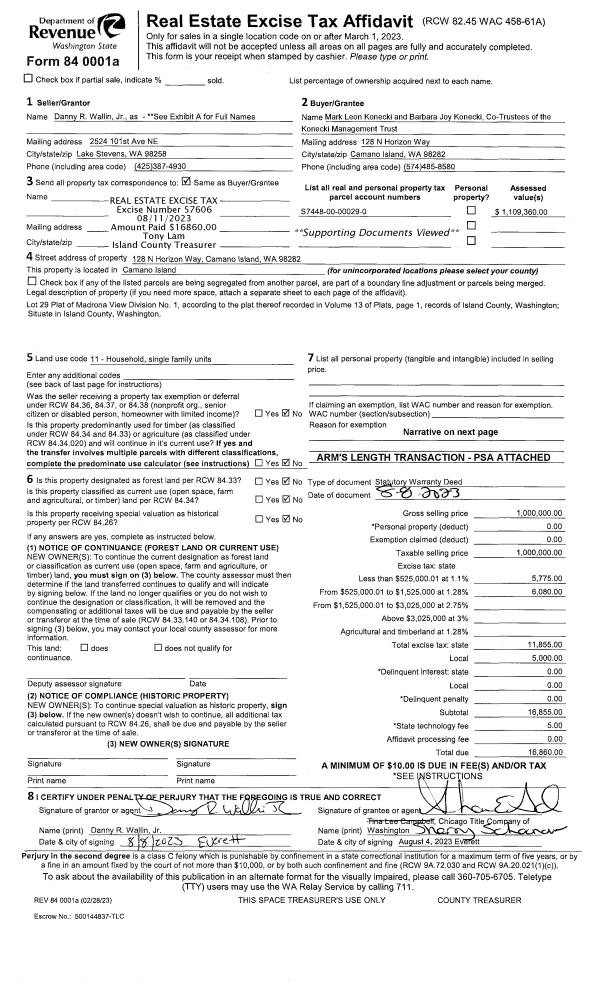
Property
Account |
| Property ID: | 199261 | Abbreviated Legal Description: | BUENA VISTA 1 LOT 6 BLK 1; SUBJ TO EZ DESC 112D493 |
| Geographic ID: | S6195-00-01006-0 | Agent Code: | |
| Type: | Real | | |
| Tax Area: | 590 - APPRAISER-Stan/Cam Schl Dist, Special Dist, improved & less than 1 acre | Land Use Code | 11 |
| Open Space: | N | DFL | N |
| Historic Property: | N | Remodel Property: | N |
| Multi-Family Redevelopment: | N | | |
| Township: | | Section: | |
| Range: | |
Location |
| Address: | 99 VISTA DEL MAR ST CAMANO ISLAND, WA 98282 | Mapsco: | |
| Neighborhood: | North Camano | Map ID: | 962 |
| Neighborhood CD: | 06-C |
Owner |
| Name: | CHEESMAN, MICHAEL D | Owner ID: | 29500 |
| Mailing Address: | 99 VISTA DEL MAR ST CAMANO ISLAND, WA 98282-8720 | % Ownership: | 100.0000000000% |
| | | Exemptions: | |
Taxes and Assessment Details
Values
| (+) Improvement Homesite Value: | + | $0 | |
| (+) Improvement Non-Homesite Value: | + | $313,687 | |
| (+) Land Homesite Value: | + | $0 | |
| (+) Land Non-Homesite Value: | + | $365,000 | |
| (+) Curr Use (HS): | + | $0 | $0 |
| (+) Curr Use (NHS): | + | $0 | $0 |
| | | -------------------------- | |
| (=) Market Value: | = | $678,687 | |
| (–) Productivity Loss: | – | $0 | |
| | | -------------------------- | |
| (=) Subtotal: | = | $678,687 | |
| (+) Senior Appraised Value: | + | $0 | |
| (+) Non-Senior Appraised Value: | + | $678,687 | |
| | | -------------------------- | |
| (=) Total Appraised Value: | = | $678,687 | |
| (–) Senior Exemption Loss: | – | $0 | |
| (–) Exemption Loss: | – | $0 | |
| | | -------------------------- | |
| (=) Taxable Value: | = | $678,687 | |
Taxing Jurisdiction
| Owner: | CHEESMAN, MICHAEL D | | |
| % Ownership: | 100.0000000000% | | |
| Total Value: | $678,687 | | |
| Tax Area: | 590 - APPRAISER-Stan/Cam Schl Dist, Special Dist, improved & less than 1 acre |
| CF | Conservation Futures | 0.0316035091 | $678,687 | $678,687 | $21.45 | | |
| EMS1 | Fire & Rescue Dist #1 Camano GEN (EMS) | 0.3677864386 | $678,687 | $678,687 | $249.61 | | |
| FIRE1 | Fire & Rescue Dist #1 Camano GEN | 1.2502910536 | $678,687 | $678,687 | $848.56 | | |
| FIRE1BOND | Fire & Rescue Dist #1 Camano BOND | 0.1570001679 | $678,687 | $678,687 | $106.55 | | |
| CE | County Current Expense | 0.3708482477 | $678,687 | $678,687 | $251.69 | | |
| CR | County Roads | 0.4584763726 | $678,687 | $678,687 | $311.16 | | |
| LCIB | Library Sno-Isle BOND (Camano Island) | 0.0396325772 | $678,687 | $678,687 | $26.90 | | |
| LIB | Library Sno-Isle GEN | 0.3153421757 | $678,687 | $678,687 | $214.02 | | |
| SCH205_401 | School 205-401 Enrichment | 1.2698420524 | $678,687 | $678,687 | $861.83 | | |
| SCH205BOND | School 205-401 BOND | 0.9396497583 | $678,687 | $678,687 | $637.73 | | |
| ST | State School | 1.3035497053 | $678,687 | $678,687 | $884.70 | | |
| ST2 | State School Part 2 | 0.8169543533 | $678,687 | $678,687 | $554.46 | | |
| | Total Tax Rate: | 7.3209764117 | | | | | |
| | | | | Taxes w/Current Exemptions: | $4,968.66 | | |
| | | | | Taxes w/o Exemptions: | $4,968.66 | | |
Improvement / Building
| Improvement #1: | RESIDENTIAL | State Code: | Y | 1562.0 sqft | Value: | $313,687 |
| Bathrooms: | 2.5 | Bedrooms: | 2 | | Ceiling: | DRYWALL PAINTED | Exterior Wall/Cover: | WOOD SIDING | | Floor Covering: | CARPET/VINYL 80-20 | Floor Structure: | WOOD W/SUBFLOOR | | Foundation: | CONCRETE | Heating: | BASEBOARD ELECTRIC | | Interior Finish: | DRYWALL PAINT | Plumbing Fixture Cnt: | 12 | | Roof Slope: | 5" IN 12" | Roof Structure/Cover: | BEAM ASPHALT |
|
| | Type | Description | Class CD | Sub Class CD | Year Built | Area |
| | BAS | BASE/MAIN FLOOR | 4 | 0 | 1978 | 649.0 |
| | AGR | ATTACHED GARAGE | 4 | 0 | 1978 | 463.0 |
| | UPS | UPPER STORY | 4 | 0 | 1978 | 308.0 |
| | OWP | OPEN WOOD PORCH W/STEPS | 4 | 0 | 1978 | 163.0 |
| | OWP | OPEN WOOD PORCH W/STEPS | 4 | 0 | 1978 | 160.0 |
| | OWR | OPEN WOOD PORCH W/STEPS/ROOF | 4 | 0 | 1978 | 30.0 |
| | DWN | DOWNSTAIRS LIVING AREA | 4 | 0 | 1978 | 605.0 |
Sketch
Property Image
Land
| 1 | 14 | SQ (08001-12000) | 0.0000 | 0.00 | 0.00 | 0.00 | 1.00 | $365,000 | $0 |
Roll Value History
| 2026 | N/A | N/A | N/A | N/A | N/A |
| 2025 | $313,687 | $365,000 | $0 | $678,687 | $678,687 |
| 2024 | $323,477 | $350,000 | $0 | $673,477 | $673,477 |
| 2023 | $327,409 | $350,000 | $0 | $677,409 | $677,409 |
| 2022 | $278,665 | $310,000 | $0 | $588,665 | $588,665 |
| 2021 | $245,415 | $190,000 | $0 | $435,415 | $435,415 |
| 2020 | $238,652 | $190,000 | $0 | $428,652 | $428,652 |
| 2019 | $172,127 | $230,000 | $0 | $402,127 | $402,127 |
| 2018 | $172,656 | $200,000 | $0 | $372,656 | $372,656 |
| 2017 | $173,625 | $180,000 | $0 | $353,625 | $353,625 |
| 2016 | $167,812 | $175,000 | $0 | $342,812 | $342,812 |
| 2015 | $169,963 | $100,000 | $0 | $269,963 | $269,963 |
| 2014 | $172,115 | $100,000 | $0 | $272,115 | $272,115 |
| 2013 | $174,267 | $100,000 | $0 | $274,267 | $274,267 |
| 2012 | $176,417 | $108,000 | $0 | $284,417 | $284,417 |
| 2011 | $178,570 | $135,000 | $0 | $313,570 | $313,570 |
| 2010 | $165,035 | $135,000 | $0 | $300,035 | $300,035 |
| 2009 | $172,287 | $200,000 | $0 | $372,287 | $372,287 |
| 2008 | $152,296 | $250,000 | $0 | $402,296 | $402,296 |
| 2007 | $154,338 | $250,000 | $0 | $404,338 | $404,338 |
Deed and Sales History
| 1 | 09/04/2008 | WD | Warranty Deed | JOHNSON, IRENE L | CHEESEMAN, MICHAEL D | | | $408,000.00 | 82341 | 4236176 |
| 2 | 03/03/2004 | WD | Warranty Deed | HAVENER, MARK E | JOHNSON, IRENE L | | | $245,000.00 | 40861 | 4093329 |
| 3 | 08/07/2002 | WD | Warranty Deed | STALF, JOHANN | HAVENER, MARK E | | | $200,000.00 | 23137 | 4028171 |
| 4 | 07/02/1998 | WD | Warranty Deed | CASSARA, MARGARET J | STALF, JOHANN | | | $166,500.00 | 82712 | 98014034 |
| 5 | 05/01/1989 | DECREE | Divorce Decree/Legal Separation | EKINS, MARGARET J | CASSARA, MARGARET J | | | $0.00 | 91953 | 89006738 |
| 6 | 01/01/1900 | OTHER | Other - Misc. Documents | Unknown | STALF, JOHANN | | | $0.00 | 82712 | 98014034 |
| 7 | 01/01/1900 | OTHER | Other - Misc. Documents | STALF, JOHANN | EKINS, MARGARET J | | | $0.00 | 0 | 0 |
Payout Agreement
| No payout information available.. |