Property
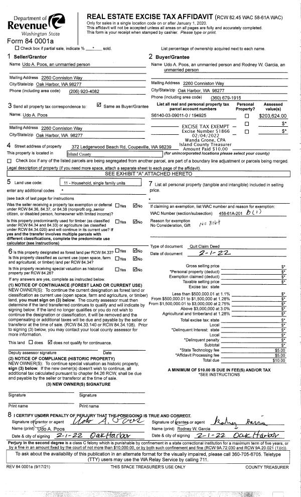
Account |
| Property ID: | 199270 | Abbreviated Legal Description: | BUENA VISTA 1 LOT 7 BLK 1 SUBJ TO EZ DESC 112D493 |
| Geographic ID: | S6195-00-01007-0 | Agent Code: | |
| Type: | Real | | |
| Tax Area: | 590 - APPRAISER-Stan/Cam Schl Dist, Special Dist, improved & less than 1 acre | Land Use Code | 11 |
| Open Space: | N | DFL | N |
| Historic Property: | N | Remodel Property: | N |
| Multi-Family Redevelopment: | N | | |
| Township: | | Section: | |
| Range: | |
Location |
| Address: | 103 VISTA DEL MAR ST CAMANO IS, WA 98282 | Mapsco: | |
| Neighborhood: | North Camano | Map ID: | 962 |
| Neighborhood CD: | 06-C |
Owner |
| Name: | WOO TTEE, TONY T | Owner ID: | 301611 |
| Mailing Address: | DEANNA WOO TTEE 848 N SUNRISE BLVD STE B PMB 130 CAMANO ISLAND, WA 98282 | % Ownership: | 100.0000000000% |
| | | Exemptions: | |
Taxes and Assessment Details
Values
| (+) Improvement Homesite Value: | + | $0 | |
| (+) Improvement Non-Homesite Value: | + | $651,408 | |
| (+) Land Homesite Value: | + | $0 | |
| (+) Land Non-Homesite Value: | + | $365,000 | |
| (+) Curr Use (HS): | + | $0 | $0 |
| (+) Curr Use (NHS): | + | $0 | $0 |
| | | -------------------------- | |
| (=) Market Value: | = | $1,016,408 | |
| (–) Productivity Loss: | – | $0 | |
| | | -------------------------- | |
| (=) Subtotal: | = | $1,016,408 | |
| (+) Senior Appraised Value: | + | $0 | |
| (+) Non-Senior Appraised Value: | + | $1,016,408 | |
| | | -------------------------- | |
| (=) Total Appraised Value: | = | $1,016,408 | |
| (–) Senior Exemption Loss: | – | $0 | |
| (–) Exemption Loss: | – | $0 | |
| | | -------------------------- | |
| (=) Taxable Value: | = | $1,016,408 | |
Taxing Jurisdiction
| Owner: | WOO TTEE, TONY T | | |
| % Ownership: | 100.0000000000% | | |
| Total Value: | $1,016,408 | | |
| Tax Area: | 590 - APPRAISER-Stan/Cam Schl Dist, Special Dist, improved & less than 1 acre |
| CF | Conservation Futures | 0.0316035091 | $1,016,408 | $1,016,408 | $32.12 | | |
| EMS1 | Fire & Rescue Dist #1 Camano GEN (EMS) | 0.3677864386 | $1,016,408 | $1,016,408 | $373.82 | | |
| FIRE1 | Fire & Rescue Dist #1 Camano GEN | 1.2502910536 | $1,016,408 | $1,016,408 | $1,270.81 | | |
| FIRE1BOND | Fire & Rescue Dist #1 Camano BOND | 0.1570001679 | $1,016,408 | $1,016,408 | $159.58 | | |
| CE | County Current Expense | 0.3708482477 | $1,016,408 | $1,016,408 | $376.93 | | |
| CR | County Roads | 0.4584763726 | $1,016,408 | $1,016,408 | $466.00 | | |
| LCIB | Library Sno-Isle BOND (Camano Island) | 0.0396325772 | $1,016,408 | $1,016,408 | $40.28 | | |
| LIB | Library Sno-Isle GEN | 0.3153421757 | $1,016,408 | $1,016,408 | $320.52 | | |
| SCH205_401 | School 205-401 Enrichment | 1.2698420524 | $1,016,408 | $1,016,408 | $1,290.68 | | |
| SCH205BOND | School 205-401 BOND | 0.9396497583 | $1,016,408 | $1,016,408 | $955.07 | | |
| ST | State School | 1.3035497053 | $1,016,408 | $1,016,408 | $1,324.94 | | |
| ST2 | State School Part 2 | 0.8169543533 | $1,016,408 | $1,016,408 | $830.36 | | |
| | Total Tax Rate: | 7.3209764117 | | | | | |
| | | | | Taxes w/Current Exemptions: | $7,441.11 | | |
| | | | | Taxes w/o Exemptions: | $7,441.11 | | |
Improvement / Building
| Improvement #1: | RESIDENTIAL | State Code: | Y | 3068.3 sqft | Value: | $651,408 |
| Bathrooms: | 2.5 | Bedrooms: | 3 | | Ceiling: | TONGUE & GROOVE | Cooling: | HEAT PUMP/CONV/V | | Exterior Wall/Cover: | CEMENT FIBER | Floor Covering: | VINYL TILE | | Floor Structure: | WOOD W/SUBFLOOR | Foundation: | CONCRETE | | Interior Finish: | DRYWALL PAINT | Plumbing Fixture Cnt: | 14 | | Roof Slope: | 3" IN 12" | Roof Structure/Cover: | CJ ASPHALT |
|
| | Type | Description | Class CD | Sub Class CD | Year Built | Area |
| | BAS | BASE/MAIN FLOOR | 4 | 0 | 2021 | 1630.0 |
| | AGR | ATTACHED GARAGE | 4 | 0 | 2021 | 400.0 |
| | DWN | DOWNSTAIRS LIVING AREA | 4 | 0 | 2021 | 1438.3 |
| | OWP | OPEN WOOD PORCH W/STEPS | 4 | 0 | 2021 | 320.0 |
| | OWC | OPEN WOOD PORCH W/STEPS/ROOF/C | 4 | 0 | 2021 | 280.0 |
| | OWP | OPEN WOOD PORCH W/STEPS | 4 | 0 | 2021 | 224.0 |
| | OWR | OPEN WOOD PORCH W/STEPS/ROOF | 4 | 0 | 2021 | 224.0 |
| | OP4 | OPEN PORCH W/CEILING-ROOF | 4 | 0 | 2021 | 105.0 |
Sketch
Property Image
Land
| 1 | 14 | SQ (08001-12000) | 0.0000 | 0.00 | 0.00 | 0.00 | 1.00 | $365,000 | $0 |
Roll Value History
| 2026 | N/A | N/A | N/A | N/A | N/A |
| 2025 | $651,408 | $365,000 | $0 | $1,016,408 | $1,016,408 |
| 2024 | $656,578 | $350,000 | $0 | $1,006,578 | $1,006,578 |
| 2023 | $663,472 | $350,000 | $0 | $1,013,472 | $1,013,472 |
| 2022 | $611,719 | $260,000 | $0 | $871,719 | $871,719 |
| 2021 | $488,493 | $120,000 | $0 | $608,493 | $608,493 |
| 2020 | $1 | $120,000 | $0 | $120,001 | $120,001 |
| 2019 | $1 | $100,000 | $0 | $100,001 | $100,001 |
| 2018 | $1 | $100,000 | $0 | $100,001 | $100,001 |
| 2017 | $1 | $100,000 | $0 | $100,001 | $100,001 |
| 2016 | $1 | $100,000 | $0 | $100,001 | $100,001 |
| 2015 | $1 | $100,000 | $0 | $100,001 | $100,001 |
| 2014 | $1 | $85,000 | $0 | $85,001 | $85,001 |
| 2013 | $1 | $85,000 | $0 | $85,001 | $85,001 |
| 2012 | $1 | $92,800 | $0 | $92,801 | $92,801 |
| 2011 | $1 | $116,000 | $0 | $116,001 | $116,001 |
| 2010 | $4,000 | $135,000 | $0 | $139,000 | $139,000 |
| 2009 | $4,000 | $200,000 | $0 | $204,000 | $204,000 |
| 2008 | $4,000 | $250,000 | $0 | $254,000 | $254,000 |
| 2007 | $4,000 | $250,000 | $0 | $254,000 | $254,000 |
Deed and Sales History
| 1 | 10/11/2021 | WD | Warranty Deed | ISLAND VIEW INVESTMENTS, LLC | WOO TTEE, TONY T | | | $1,199,000.00 | 50509 | 4531550 |
| 2 | 05/29/2020 | WD | Warranty Deed | BRADLEY, PATRICK J | ISLAND VIEW INVESTMENTS, LLC | | | $119,000.00 | 43220 | 4488066 |
| 3 | 05/01/1996 | WD | Warranty Deed | GRIMES, DONALD M | BRADLEY, PATRICK J | | | $64,000.00 | 61917 | 96009580 |
| 4 | 07/01/1992 | WD | Warranty Deed | WRIGHT, LEONARD E | GRIMES, DONALD M | | | $68,500.00 | 22595 | 92012535 |
| 5 | 01/01/1990 | WD | Warranty Deed | JANSEN, JOHN | WRIGHT, LEONARD E | | | $37,500.00 | 319 | 90000946 |
| 6 | 04/01/1989 | WD | Warranty Deed | SCHNEBELE, DAVID E | JANSEN, JOHN | | | $31,000.00 | 91623 | 89005640 |
| 7 | 01/01/1900 | OTHER | Other - Misc. Documents | Unknown | SCHNEBELE, DAVID E | | | $0.00 | 0 | 0 |
Payout Agreement
| No payout information available.. |