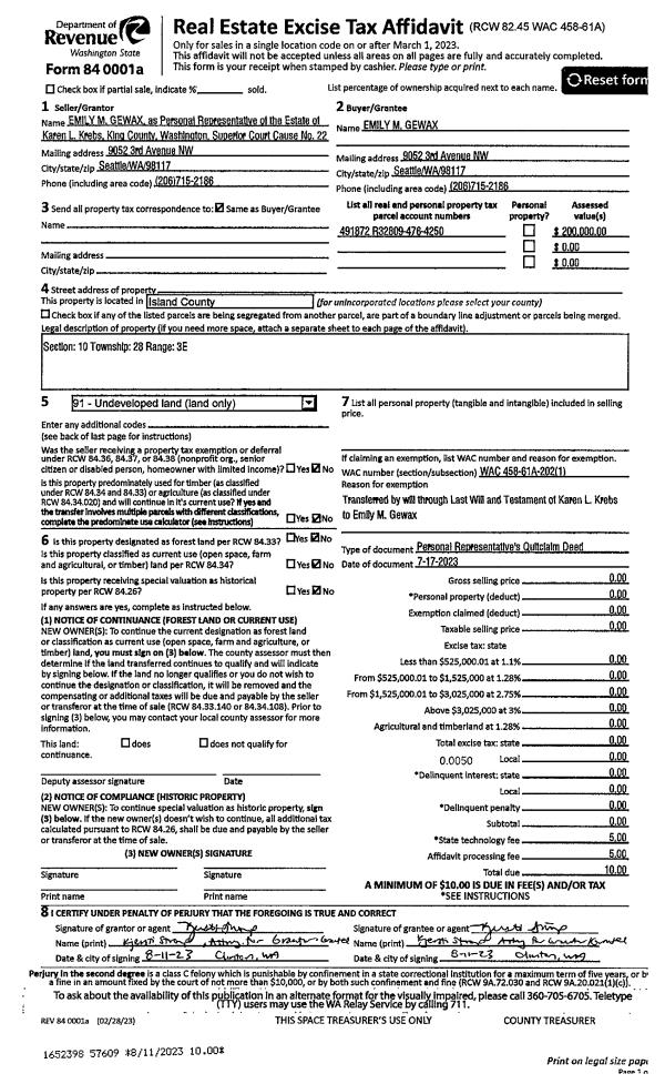
Property
Account |
| Property ID: | 199332 | Abbreviated Legal Description: | BUENA VISTA 1 LOT 13 BLK 1 |
| Geographic ID: | S6195-00-01013-0 | Agent Code: | |
| Type: | Real | | |
| Tax Area: | 590 - APPRAISER-Stan/Cam Schl Dist, Special Dist, improved & less than 1 acre | Land Use Code | 11 |
| Open Space: | N | DFL | N |
| Historic Property: | N | Remodel Property: | N |
| Multi-Family Redevelopment: | N | | |
| Township: | | Section: | |
| Range: | |
Location |
| Address: | 121 VISTA DEL MAR ST CAMANO ISLAND, WA 98282 | Mapsco: | |
| Neighborhood: | North Camano | Map ID: | 962 |
| Neighborhood CD: | 06-C |
Owner |
| Name: | CAMPBELL, DONALD G | Owner ID: | 29507 |
| Mailing Address: | 121 VISTA DEL MAR ST CAMANO ISLAND, WA 98282-7253 | % Ownership: | 100.0000000000% |
| | | Exemptions: | |
Taxes and Assessment Details
Values
| (+) Improvement Homesite Value: | + | $0 | |
| (+) Improvement Non-Homesite Value: | + | $361,705 | |
| (+) Land Homesite Value: | + | $0 | |
| (+) Land Non-Homesite Value: | + | $365,000 | |
| (+) Curr Use (HS): | + | $0 | $0 |
| (+) Curr Use (NHS): | + | $0 | $0 |
| | | -------------------------- | |
| (=) Market Value: | = | $726,705 | |
| (–) Productivity Loss: | – | $0 | |
| | | -------------------------- | |
| (=) Subtotal: | = | $726,705 | |
| (+) Senior Appraised Value: | + | $0 | |
| (+) Non-Senior Appraised Value: | + | $726,705 | |
| | | -------------------------- | |
| (=) Total Appraised Value: | = | $726,705 | |
| (–) Senior Exemption Loss: | – | $0 | |
| (–) Exemption Loss: | – | $0 | |
| | | -------------------------- | |
| (=) Taxable Value: | = | $726,705 | |
Taxing Jurisdiction
| Owner: | CAMPBELL, DONALD G | | |
| % Ownership: | 100.0000000000% | | |
| Total Value: | $726,705 | | |
| Tax Area: | 590 - APPRAISER-Stan/Cam Schl Dist, Special Dist, improved & less than 1 acre |
| CF | Conservation Futures | 0.0316035091 | $726,705 | $726,705 | $22.97 | | |
| EMS1 | Fire & Rescue Dist #1 Camano GEN (EMS) | 0.3677864386 | $726,705 | $726,705 | $267.27 | | |
| FIRE1 | Fire & Rescue Dist #1 Camano GEN | 1.2502910536 | $726,705 | $726,705 | $908.59 | | |
| FIRE1BOND | Fire & Rescue Dist #1 Camano BOND | 0.1570001679 | $726,705 | $726,705 | $114.09 | | |
| CE | County Current Expense | 0.3708482477 | $726,705 | $726,705 | $269.50 | | |
| CR | County Roads | 0.4584763726 | $726,705 | $726,705 | $333.18 | | |
| LCIB | Library Sno-Isle BOND (Camano Island) | 0.0396325772 | $726,705 | $726,705 | $28.80 | | |
| LIB | Library Sno-Isle GEN | 0.3153421757 | $726,705 | $726,705 | $229.16 | | |
| SCH205_401 | School 205-401 Enrichment | 1.2698420524 | $726,705 | $726,705 | $922.80 | | |
| SCH205BOND | School 205-401 BOND | 0.9396497583 | $726,705 | $726,705 | $682.85 | | |
| ST | State School | 1.3035497053 | $726,705 | $726,705 | $947.30 | | |
| ST2 | State School Part 2 | 0.8169543533 | $726,705 | $726,705 | $593.68 | | |
| | Total Tax Rate: | 7.3209764117 | | | | | |
| | | | | Taxes w/Current Exemptions: | $5,320.19 | | |
| | | | | Taxes w/o Exemptions: | $5,320.19 | | |
Improvement / Building
| Improvement #1: | RESIDENTIAL | State Code: | Y | 1941.0 sqft | Value: | $361,705 |
| Bathrooms: | 2.5 | Bedrooms: | 2 | | Ceiling: | DRYWALL PAINTED | Exterior Wall/Cover: | WOOD SIDING | | Floor Covering: | HARDWOOD/CARP 60-40 | Floor Structure: | WOOD W/SUBFLOOR | | Foundation: | CONCRETE | Heating: | WALL HEAT ELECTRIC | | Interior Finish: | DRYWALL PAINT | Plumbing Fixture Cnt: | 11 | | Roof Slope: | 5" IN 12" | Roof Structure/Cover: | CJ ASPHALT |
|
| | Type | Description | Class CD | Sub Class CD | Year Built | Area |
| | BAS | BASE/MAIN FLOOR | 3 | 0 | 1986 | 1473.0 |
| | UB8 | BASEMENT UNFINISHED 8" | 3 | 0 | 1986 | 879.0 |
| | DWN | DOWNSTAIRS LIVING AREA | 3 | 0 | 1986 | 468.0 |
| | OP3 | OPEN PORCH W/ROOF | 3 | 0 | 1986 | 60.0 |
| | AGR | ATTACHED GARAGE | 3 | 0 | 1986 | 520.0 |
| | OWP | OPEN WOOD PORCH W/STEPS | 3 | 0 | 1986 | 616.0 |
Sketch
Property Image
Land
| 1 | 14 | SQ (08001-12000) | 0.0000 | 0.00 | 0.00 | 0.00 | 1.00 | $365,000 | $0 |
Roll Value History
| 2026 | N/A | N/A | N/A | N/A | N/A |
| 2025 | $361,705 | $365,000 | $0 | $726,705 | $726,705 |
| 2024 | $366,156 | $350,000 | $0 | $716,156 | $716,156 |
| 2023 | $370,608 | $350,000 | $0 | $720,608 | $720,608 |
| 2022 | $291,043 | $310,000 | $0 | $601,043 | $601,043 |
| 2021 | $256,407 | $190,000 | $0 | $446,407 | $446,407 |
| 2020 | $250,168 | $190,000 | $0 | $440,168 | $440,168 |
| 2019 | $189,092 | $230,000 | $0 | $419,092 | $419,092 |
| 2018 | $189,690 | $200,000 | $0 | $389,690 | $389,690 |
| 2017 | $190,883 | $180,000 | $0 | $370,883 | $370,883 |
| 2016 | $174,215 | $115,000 | $0 | $289,215 | $289,215 |
| 2015 | $176,601 | $100,000 | $0 | $276,601 | $276,601 |
| 2014 | $178,989 | $85,000 | $0 | $263,989 | $263,989 |
| 2013 | $181,376 | $85,000 | $0 | $266,376 | $266,376 |
| 2012 | $183,761 | $80,000 | $0 | $263,761 | $263,761 |
| 2011 | $186,148 | $100,000 | $0 | $286,148 | $286,148 |
| 2010 | $185,671 | $135,000 | $0 | $320,671 | $320,671 |
| 2009 | $193,756 | $200,000 | $0 | $393,756 | $393,756 |
| 2008 | $196,176 | $250,000 | $0 | $446,176 | $446,176 |
| 2007 | $198,596 | $250,000 | $0 | $448,596 | $448,596 |
Deed and Sales History
| 1 | 11/01/1983 | WD | Warranty Deed | COTTON, MICHAEL G | CAMPBELL, DONALD G | | | $29,500.00 | 33506 | 418156 |
| 2 | 08/01/1983 | WD | Warranty Deed | COTTON, PERRY P | COTTON, MICHAEL G | | | $0.00 | 32797 | 415427 |
| 3 | 01/01/1900 | OTHER | Other - Misc. Documents | COTTON, PERRY P | COTTON, PERRY P | | | $0.00 | 0 | 0 |
| 4 | 01/01/1900 | CD | DNU - Correction Deed | Unknown | COTTON, PERRY P | | | $0.00 | 1603 | 368646 |
Payout Agreement
| No payout information available.. |