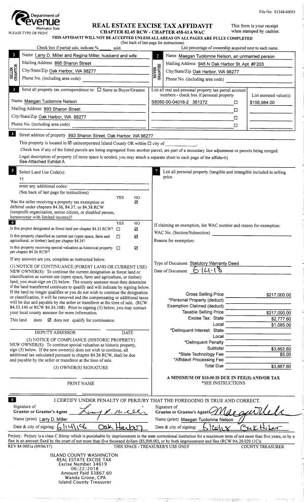
Property
Account |
| Property ID: | 199751 | Abbreviated Legal Description: | BLA BUENA VISTA 1 LOT 7 BLK 3 TGW N/2 LOT 6 BLK 3 |
| Geographic ID: | S6195-00-03007-0 | Agent Code: | |
| Type: | Real | | |
| Tax Area: | 590 - APPRAISER-Stan/Cam Schl Dist, Special Dist, improved & less than 1 acre | Land Use Code | 11 |
| Open Space: | N | DFL | N |
| Historic Property: | N | Remodel Property: | N |
| Multi-Family Redevelopment: | N | | |
| Township: | | Section: | |
| Range: | |
Location |
| Address: | 1040 VISTA DEL MONTE ST CAMANO ISLAND, WA 98282 | Mapsco: | |
| Neighborhood: | North Camano | Map ID: | 962 |
| Neighborhood CD: | 06-C |
Owner |
| Name: | WHEELWRIGHT, SIDNEE J | Owner ID: | 285685 |
| Mailing Address: | 1040 VISTA DEL MONTE ST CAMANO ISLAND, WA 98282 | % Ownership: | 100.0000000000% |
| | | Exemptions: | |
Taxes and Assessment Details
Values
| (+) Improvement Homesite Value: | + | $0 | |
| (+) Improvement Non-Homesite Value: | + | $357,986 | |
| (+) Land Homesite Value: | + | $0 | |
| (+) Land Non-Homesite Value: | + | $365,000 | |
| (+) Curr Use (HS): | + | $0 | $0 |
| (+) Curr Use (NHS): | + | $0 | $0 |
| | | -------------------------- | |
| (=) Market Value: | = | $722,986 | |
| (–) Productivity Loss: | – | $0 | |
| | | -------------------------- | |
| (=) Subtotal: | = | $722,986 | |
| (+) Senior Appraised Value: | + | $0 | |
| (+) Non-Senior Appraised Value: | + | $722,986 | |
| | | -------------------------- | |
| (=) Total Appraised Value: | = | $722,986 | |
| (–) Senior Exemption Loss: | – | $0 | |
| (–) Exemption Loss: | – | $0 | |
| | | -------------------------- | |
| (=) Taxable Value: | = | $722,986 | |
Taxing Jurisdiction
| Owner: | WHEELWRIGHT, SIDNEE J | | |
| % Ownership: | 100.0000000000% | | |
| Total Value: | $722,986 | | |
| Tax Area: | 590 - APPRAISER-Stan/Cam Schl Dist, Special Dist, improved & less than 1 acre |
| CF | Conservation Futures | 0.0316035091 | $722,986 | $722,986 | $22.85 | | |
| EMS1 | Fire & Rescue Dist #1 Camano GEN (EMS) | 0.3677864386 | $722,986 | $722,986 | $265.90 | | |
| FIRE1 | Fire & Rescue Dist #1 Camano GEN | 1.2502910536 | $722,986 | $722,986 | $903.94 | | |
| FIRE1BOND | Fire & Rescue Dist #1 Camano BOND | 0.1570001679 | $722,986 | $722,986 | $113.51 | | |
| CE | County Current Expense | 0.3708482477 | $722,986 | $722,986 | $268.12 | | |
| CR | County Roads | 0.4584763726 | $722,986 | $722,986 | $331.47 | | |
| LCIB | Library Sno-Isle BOND (Camano Island) | 0.0396325772 | $722,986 | $722,986 | $28.65 | | |
| LIB | Library Sno-Isle GEN | 0.3153421757 | $722,986 | $722,986 | $227.99 | | |
| SCH205_401 | School 205-401 Enrichment | 1.2698420524 | $722,986 | $722,986 | $918.08 | | |
| SCH205BOND | School 205-401 BOND | 0.9396497583 | $722,986 | $722,986 | $679.35 | | |
| ST | State School | 1.3035497053 | $722,986 | $722,986 | $942.45 | | |
| ST2 | State School Part 2 | 0.8169543533 | $722,986 | $722,986 | $590.65 | | |
| | Total Tax Rate: | 7.3209764117 | | | | | |
| | | | | Taxes w/Current Exemptions: | $5,292.96 | | |
| | | | | Taxes w/o Exemptions: | $5,292.96 | | |
Improvement / Building
| Improvement #1: | RESIDENTIAL | State Code: | Y | 2368.0 sqft | Value: | $357,986 |
| Bathrooms: | 2.5 | Bedrooms: | 3 | | Ceiling: | DRYWALL PAINTED | Cooling: | HEAT PUMP/CONV/V | | Exterior Wall/Cover: | WOOD SIDING | Floor Covering: | HARDWOOD/CARP 20-80 | | Floor Structure: | WOOD W/SUBFLOOR | Foundation: | CONCRETE | | Interior Finish: | DRYWALL PAINT | Plumbing Fixture Cnt: | 13 | | Roof Slope: | 4" IN 12" | Roof Structure/Cover: | CJ ASPHALT |
|
| | Type | Description | Class CD | Sub Class CD | Year Built | Area |
| | BAS | BASE/MAIN FLOOR | 3 | 0 | 1977 | 1312.0 |
| | OWP | OPEN WOOD PORCH W/STEPS | 3 | 0 | 1977 | 238.0 |
| | BIG | BUILT IN GARAGE | 3 | 0 | 1977 | 624.0 |
| | UPS | UPPER STORY | 3 | 0 | 1977 | 1056.0 |
| | OP4 | OPEN PORCH W/CEILING-ROOF | 3 | 0 | 1977 | 72.0 |
| | OWP | OPEN WOOD PORCH W/STEPS | 3 | 0 | 1977 | 150.0 |
Sketch
Property Image
Land
| 1 | 15 | SQ (12001-21780) | 0.0000 | 0.00 | 0.00 | 0.00 | 1.00 | $365,000 | $0 |
Roll Value History
| 2026 | N/A | N/A | N/A | N/A | N/A |
| 2025 | $357,986 | $365,000 | $0 | $722,986 | $722,986 |
| 2024 | $362,394 | $350,000 | $0 | $712,394 | $712,394 |
| 2023 | $360,466 | $350,000 | $0 | $710,466 | $710,466 |
| 2022 | $322,491 | $310,000 | $0 | $632,491 | $632,491 |
| 2021 | $283,837 | $190,000 | $0 | $473,837 | $473,837 |
| 2020 | $276,717 | $190,000 | $0 | $466,717 | $466,717 |
| 2019 | $212,646 | $230,000 | $0 | $442,646 | $442,646 |
| 2018 | $175,050 | $200,000 | $0 | $375,050 | $375,050 |
| 2017 | $176,179 | $180,000 | $0 | $356,179 | $356,179 |
| 2016 | $164,686 | $115,000 | $0 | $279,686 | $279,686 |
| 2015 | $167,005 | $100,000 | $0 | $267,005 | $267,005 |
| 2014 | $169,325 | $85,000 | $0 | $254,325 | $254,325 |
| 2013 | $171,644 | $85,000 | $0 | $256,644 | $256,644 |
| 2012 | $173,965 | $82,584 | $0 | $256,549 | $256,549 |
| 2011 | $176,284 | $103,230 | $0 | $279,514 | $279,514 |
| 2010 | $151,046 | $103,230 | $0 | $254,276 | $254,276 |
| 2009 | $157,855 | $165,000 | $0 | $322,855 | $322,855 |
| 2008 | $160,120 | $165,000 | $0 | $325,120 | $325,120 |
| 2007 | $162,474 | $165,000 | $0 | $327,474 | $327,474 |
Deed and Sales History
| 1 | 06/19/2018 | WD | Warranty Deed | MCMURTRY, LENORA H | WHEELWRIGHT, SIDNEE J | | | $499,000.00 | 34662 | 4446762 |
| 2 | 05/15/2006 | QCD | Quit Claim Deed | MCMURTRY, ROBERT L | MCMURTRY, LENORA H | | | $0.00 | 62231 | 4171152 |
| 3 | 06/01/1994 | WD | Warranty Deed | OLSEN, FRED A | MCMURTRY, ROBERT L | | | $175,000.00 | 42600 | 94014507 |
| 4 | 04/01/1992 | QCD | Quit Claim Deed | OLSEN, FRED A | OLSEN, FRED A | | | $0.00 | 21434 | 92006903 |
| 5 | 12/01/1988 | OTHER | Other - Misc. Documents | OLSEN, FRED A | OLSEN, FRED A | | | $0.00 | 62976 | 88016122 |
| 6 | 03/01/1988 | QCD | Quit Claim Deed | OLSEN, FRED A | OLSEN, FRED A | | | $0.00 | 80897 | 88003508 |
| 7 | 09/01/1980 | CD | DNU - Correction Deed | OLSEN, FRED A | OLSEN, FRED A | | | $0.00 | 3102 | 373790 |
| 8 | 01/01/1900 | OTHER | Other - Misc. Documents | Unknown | OLSEN, FRED A | | | $0.00 | 0 | 0 |
Payout Agreement
| No payout information available.. |