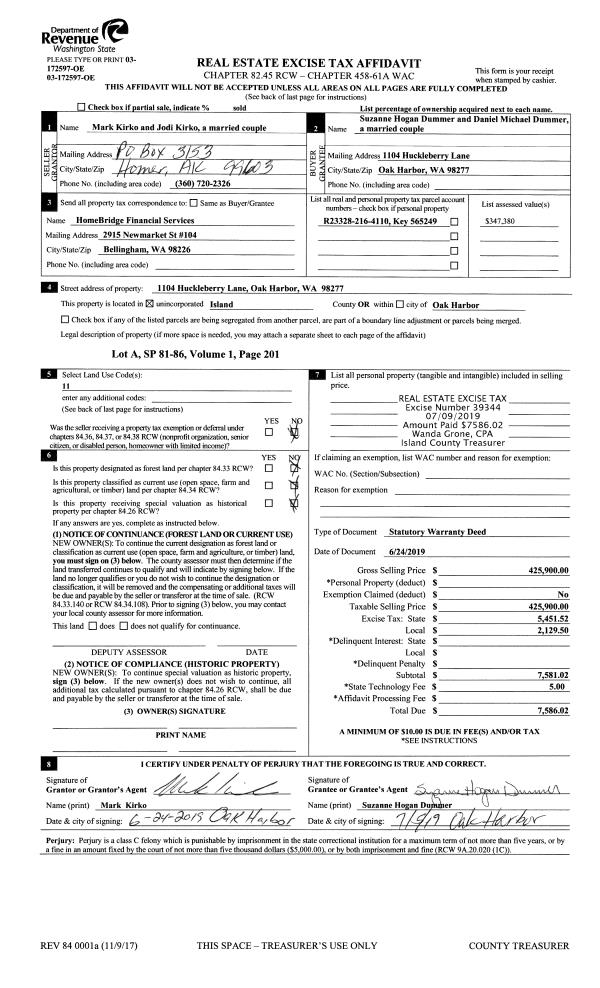
Property
Account |
| Property ID: | 199822 | Abbreviated Legal Description: | BUENA VISTA 2 LOT 2 BLK 4 |
| Geographic ID: | S6195-02-04002-0 | Agent Code: | |
| Type: | Real | | |
| Tax Area: | 590 - APPRAISER-Stan/Cam Schl Dist, Special Dist, improved & less than 1 acre | Land Use Code | 11 |
| Open Space: | N | DFL | N |
| Historic Property: | N | Remodel Property: | N |
| Multi-Family Redevelopment: | N | | |
| Township: | | Section: | |
| Range: | |
Location |
| Address: | 149 VISTA DEL MAR ST CAMANO ISLAND, WA 98282 | Mapsco: | |
| Neighborhood: | North Camano | Map ID: | 962 |
| Neighborhood CD: | 06-C |
Owner |
| Name: | MULLER, ERIK K | Owner ID: | 290684 |
| Mailing Address: | JULIANE R MULLER 149 VISTA DEL MAR ST CAMANO ISLAND, WA 98282 | % Ownership: | 100.0000000000% |
| | | Exemptions: | |
Taxes and Assessment Details
Values
| (+) Improvement Homesite Value: | + | $0 | |
| (+) Improvement Non-Homesite Value: | + | $248,470 | |
| (+) Land Homesite Value: | + | $0 | |
| (+) Land Non-Homesite Value: | + | $365,000 | |
| (+) Curr Use (HS): | + | $0 | $0 |
| (+) Curr Use (NHS): | + | $0 | $0 |
| | | -------------------------- | |
| (=) Market Value: | = | $613,470 | |
| (–) Productivity Loss: | – | $0 | |
| | | -------------------------- | |
| (=) Subtotal: | = | $613,470 | |
| (+) Senior Appraised Value: | + | $0 | |
| (+) Non-Senior Appraised Value: | + | $613,470 | |
| | | -------------------------- | |
| (=) Total Appraised Value: | = | $613,470 | |
| (–) Senior Exemption Loss: | – | $0 | |
| (–) Exemption Loss: | – | $0 | |
| | | -------------------------- | |
| (=) Taxable Value: | = | $613,470 | |
Taxing Jurisdiction
| Owner: | MULLER, ERIK K | | |
| % Ownership: | 100.0000000000% | | |
| Total Value: | $613,470 | | |
| Tax Area: | 590 - APPRAISER-Stan/Cam Schl Dist, Special Dist, improved & less than 1 acre |
| CF | Conservation Futures | 0.0316035091 | $613,470 | $613,470 | $19.39 | | |
| EMS1 | Fire & Rescue Dist #1 Camano GEN (EMS) | 0.3677864386 | $613,470 | $613,470 | $225.63 | | |
| FIRE1 | Fire & Rescue Dist #1 Camano GEN | 1.2502910536 | $613,470 | $613,470 | $767.02 | | |
| FIRE1BOND | Fire & Rescue Dist #1 Camano BOND | 0.1570001679 | $613,470 | $613,470 | $96.31 | | |
| CE | County Current Expense | 0.3708482477 | $613,470 | $613,470 | $227.50 | | |
| CR | County Roads | 0.4584763726 | $613,470 | $613,470 | $281.26 | | |
| LCIB | Library Sno-Isle BOND (Camano Island) | 0.0396325772 | $613,470 | $613,470 | $24.31 | | |
| LIB | Library Sno-Isle GEN | 0.3153421757 | $613,470 | $613,470 | $193.45 | | |
| SCH205_401 | School 205-401 Enrichment | 1.2698420524 | $613,470 | $613,470 | $779.01 | | |
| SCH205BOND | School 205-401 BOND | 0.9396497583 | $613,470 | $613,470 | $576.45 | | |
| ST | State School | 1.3035497053 | $613,470 | $613,470 | $799.69 | | |
| ST2 | State School Part 2 | 0.8169543533 | $613,470 | $613,470 | $501.18 | | |
| | Total Tax Rate: | 7.3209764117 | | | | | |
| | | | | Taxes w/Current Exemptions: | $4,491.20 | | |
| | | | | Taxes w/o Exemptions: | $4,491.20 | | |
Improvement / Building
| Improvement #1: | RESIDENTIAL | State Code: | Y | 1614.0 sqft | Value: | $248,470 |
| Bathrooms: | 1.5 | Bedrooms: | 2 | | Ceiling: | DRYWALL PAINTED | Exterior Wall/Cover: | WOOD SIDING | | Floor Covering: | VINYL/HARDWOOD 20-80 | Floor Structure: | WOOD W/SUBFLOOR | | Foundation: | CONCRETE | Heating: | BASEBOARD ELECTRIC | | Interior Finish: | DRYWALL PAINT | Plumbing Fixture Cnt: | 10 | | Roof Slope: | 4" IN 12" | Roof Structure/Cover: | CJ ASPHALT |
|
| | Type | Description | Class CD | Sub Class CD | Year Built | Area |
| | BAS | BASE/MAIN FLOOR | 3 | 0 | 1969 | 830.0 |
| | OWP | OPEN WOOD PORCH W/STEPS | 3 | 0 | 1969 | 539.0 |
| | DWN | DOWNSTAIRS LIVING AREA | 3 | 0 | 1969 | 784.0 |
| | DGR | DETACHED GARAGE | 3 | 0 | 1969 | 328.0 |
Sketch
Property Image
Land
| 1 | 14 | SQ (08001-12000) | 0.0000 | 0.00 | 0.00 | 0.00 | 1.00 | $365,000 | $0 |
Roll Value History
| 2026 | N/A | N/A | N/A | N/A | N/A |
| 2025 | $248,470 | $365,000 | $0 | $613,470 | $613,470 |
| 2024 | $256,706 | $350,000 | $0 | $606,706 | $606,706 |
| 2023 | $259,987 | $350,000 | $0 | $609,987 | $609,987 |
| 2022 | $226,501 | $310,000 | $0 | $536,501 | $536,501 |
| 2021 | $199,533 | $190,000 | $0 | $389,533 | $389,533 |
| 2020 | $194,625 | $190,000 | $0 | $384,625 | $384,625 |
| 2019 | $125,808 | $230,000 | $0 | $355,808 | $355,808 |
| 2018 | $126,227 | $200,000 | $0 | $326,227 | $63,691 |
| 2017 | $127,063 | $180,000 | $0 | $307,063 | $63,691 |
| 2016 | $114,402 | $175,000 | $0 | $289,402 | $63,691 |
| 2015 | $116,084 | $100,000 | $0 | $216,084 | $63,691 |
| 2014 | $117,767 | $100,000 | $0 | $217,767 | $63,691 |
| 2013 | $119,448 | $100,000 | $0 | $219,448 | $63,691 |
| 2012 | $121,131 | $108,000 | $0 | $229,131 | $63,691 |
| 2011 | $122,813 | $135,000 | $0 | $257,813 | $63,691 |
| 2010 | $114,206 | $135,000 | $0 | $249,206 | $63,691 |
| 2009 | $117,658 | $200,000 | $0 | $317,658 | $63,691 |
| 2008 | $119,464 | $250,000 | $0 | $369,464 | $63,691 |
| 2007 | $121,272 | $250,000 | $0 | $371,272 | $63,691 |
Deed and Sales History
| 1 | 06/11/2019 | WD | Warranty Deed | ELAM, PATRICIA | MULLER, ERIK K | | | $413,000.00 | 39031 | 4465633 |
| 2 | 06/06/2002 | WD | Warranty Deed | TURNER, LON C | ELAM, PATRICIA | | | $192,000.00 | 22216 | 4022430 |
| 3 | 09/01/1993 | WD | Warranty Deed | LIPPOLD, HARRY L | TURNER, LON C | | | $147,000.00 | 33821 | 93019841 |
| 4 | 01/01/1900 | OTHER | Other - Misc. Documents | Unknown | LIPPOLD, HARRY L | | | $0.00 | 0 | 0 |
Payout Agreement
| No payout information available.. |