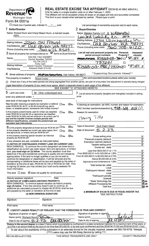
Property
Account |
| Property ID: | 200231 | Abbreviated Legal Description: | BUENA VISTA 2 LOT 1 BLK 6 |
| Geographic ID: | S6195-02-06001-0 | Agent Code: | |
| Type: | Real | | |
| Tax Area: | 590 - APPRAISER-Stan/Cam Schl Dist, Special Dist, improved & less than 1 acre | Land Use Code | 11 |
| Open Space: | N | DFL | N |
| Historic Property: | N | Remodel Property: | N |
| Multi-Family Redevelopment: | N | | |
| Township: | | Section: | |
| Range: | |
Location |
| Address: | 1064 VISTA DEL MONTE ST CAMANO ISLAND, WA 98282 | Mapsco: | |
| Neighborhood: | North Camano | Map ID: | 962 |
| Neighborhood CD: | 06-C |
Owner |
| Name: | AMENTA, EMANUEL N | Owner ID: | 253154 |
| Mailing Address: | JUDY A AMENTA 1064 VISTA DEL MONTE ST CAMANO ISLAND, WA 98282 | % Ownership: | 100.0000000000% |
| | | Exemptions: | |
Taxes and Assessment Details
Values
| (+) Improvement Homesite Value: | + | $0 | |
| (+) Improvement Non-Homesite Value: | + | $284,529 | |
| (+) Land Homesite Value: | + | $0 | |
| (+) Land Non-Homesite Value: | + | $275,000 | |
| (+) Curr Use (HS): | + | $0 | $0 |
| (+) Curr Use (NHS): | + | $0 | $0 |
| | | -------------------------- | |
| (=) Market Value: | = | $559,529 | |
| (–) Productivity Loss: | – | $0 | |
| | | -------------------------- | |
| (=) Subtotal: | = | $559,529 | |
| (+) Senior Appraised Value: | + | $0 | |
| (+) Non-Senior Appraised Value: | + | $559,529 | |
| | | -------------------------- | |
| (=) Total Appraised Value: | = | $559,529 | |
| (–) Senior Exemption Loss: | – | $0 | |
| (–) Exemption Loss: | – | $0 | |
| | | -------------------------- | |
| (=) Taxable Value: | = | $559,529 | |
Taxing Jurisdiction
| Owner: | AMENTA, EMANUEL N | | |
| % Ownership: | 100.0000000000% | | |
| Total Value: | $559,529 | | |
| Tax Area: | 590 - APPRAISER-Stan/Cam Schl Dist, Special Dist, improved & less than 1 acre |
| CF | Conservation Futures | 0.0316035091 | $559,529 | $559,529 | $17.68 | | |
| EMS1 | Fire & Rescue Dist #1 Camano GEN (EMS) | 0.3677864386 | $559,529 | $559,529 | $205.79 | | |
| FIRE1 | Fire & Rescue Dist #1 Camano GEN | 1.2502910536 | $559,529 | $559,529 | $699.57 | | |
| FIRE1BOND | Fire & Rescue Dist #1 Camano BOND | 0.1570001679 | $559,529 | $559,529 | $87.85 | | |
| CE | County Current Expense | 0.3708482477 | $559,529 | $559,529 | $207.50 | | |
| CR | County Roads | 0.4584763726 | $559,529 | $559,529 | $256.53 | | |
| LCIB | Library Sno-Isle BOND (Camano Island) | 0.0396325772 | $559,529 | $559,529 | $22.18 | | |
| LIB | Library Sno-Isle GEN | 0.3153421757 | $559,529 | $559,529 | $176.44 | | |
| SCH205_401 | School 205-401 Enrichment | 1.2698420524 | $559,529 | $559,529 | $710.51 | | |
| SCH205BOND | School 205-401 BOND | 0.9396497583 | $559,529 | $559,529 | $525.76 | | |
| ST | State School | 1.3035497053 | $559,529 | $559,529 | $729.37 | | |
| ST2 | State School Part 2 | 0.8169543533 | $559,529 | $559,529 | $457.11 | | |
| | Total Tax Rate: | 7.3209764117 | | | | | |
| | | | | Taxes w/Current Exemptions: | $4,096.29 | | |
| | | | | Taxes w/o Exemptions: | $4,096.29 | | |
Improvement / Building
| Improvement #1: | RESIDENTIAL | State Code: | Y | 1736.0 sqft | Value: | $284,529 |
| Bathrooms: | 2 | Bedrooms: | 2 | | Ceiling: | DRYWALL PAINTED | Exterior Wall/Cover: | WOOD SIDING | | Floor Covering: | CARPET/VINYL 80-20 | Floor Structure: | WOOD W/SUBFLOOR | | Foundation: | CONCRETE | Heating: | FHA GAS | | Interior Finish: | DRYWALL PAINT | Plumbing Fixture Cnt: | 9 | | Roof Slope: | 6" IN 12" | Roof Structure/Cover: | CJ ASPHALT |
|
| | Type | Description | Class CD | Sub Class CD | Year Built | Area |
| | BAS | BASE/MAIN FLOOR | 3 | 0 | 1985 | 1736.0 |
| | AGR | ATTACHED GARAGE | 3 | 0 | 1985 | 528.0 |
| | OWP | OPEN WOOD PORCH W/STEPS | 3 | 0 | 1985 | 433.0 |
| | OWP | OPEN WOOD PORCH W/STEPS | 3 | 0 | 1985 | 461.5 |
Sketch
Property Image
Land
| 1 | 14 | SQ (08001-12000) | 0.0000 | 0.00 | 0.00 | 0.00 | 1.00 | $275,000 | $0 |
Roll Value History
| 2026 | N/A | N/A | N/A | N/A | N/A |
| 2025 | $284,529 | $275,000 | $0 | $559,529 | $559,529 |
| 2024 | $288,362 | $260,000 | $0 | $548,362 | $548,362 |
| 2023 | $292,193 | $290,000 | $0 | $582,193 | $582,193 |
| 2022 | $257,647 | $280,000 | $0 | $537,647 | $537,647 |
| 2021 | $227,054 | $160,000 | $0 | $387,054 | $387,054 |
| 2020 | $221,746 | $130,000 | $0 | $351,746 | $351,746 |
| 2019 | $164,258 | $170,000 | $0 | $334,258 | $334,258 |
| 2018 | $164,790 | $150,000 | $0 | $314,790 | $314,790 |
| 2017 | $165,853 | $120,000 | $0 | $285,853 | $285,853 |
| 2016 | $153,069 | $115,000 | $0 | $268,069 | $268,069 |
| 2015 | $155,166 | $100,000 | $0 | $255,166 | $255,166 |
| 2014 | $157,263 | $85,000 | $0 | $242,263 | $242,263 |
| 2013 | $159,359 | $85,000 | $0 | $244,359 | $244,359 |
| 2012 | $161,456 | $80,000 | $0 | $241,456 | $241,456 |
| 2011 | $163,552 | $100,000 | $0 | $263,552 | $263,552 |
| 2010 | $160,947 | $135,000 | $0 | $295,947 | $295,947 |
| 2009 | $165,843 | $200,000 | $0 | $365,843 | $365,843 |
| 2008 | $167,938 | $165,000 | $0 | $332,938 | $332,938 |
| 2007 | $170,033 | $165,000 | $0 | $335,033 | $335,033 |
Deed and Sales History
| 1 | 01/07/2011 | WD | Warranty Deed | RARICK, LUELLA R | AMENTA, EMANUEL N | | | $258,000.00 | 3369 | 4288824 |
| 2 | 05/01/1985 | WD | Warranty Deed | SMYTHE, GEORGE H | RARICK, LUELLA R | | | $19,500.00 | 51163 | 85004734 |
| 3 | 01/01/1900 | OTHER | Other - Misc. Documents | Unknown | SMYTHE, GEORGE H | | | $0.00 | 0 | 0 |
Payout Agreement
| No payout information available.. |