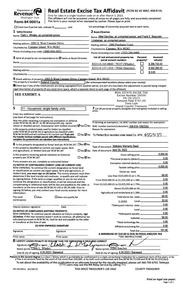
Property
Account |
| Property ID: | 200302 | Abbreviated Legal Description: | BUENA VISTA 3 LOT 1 BLK 7 |
| Geographic ID: | S6195-03-07001-0 | Agent Code: | |
| Type: | Real | | |
| Tax Area: | 590 - APPRAISER-Stan/Cam Schl Dist, Special Dist, improved & less than 1 acre | Land Use Code | 11 |
| Open Space: | N | DFL | N |
| Historic Property: | N | Remodel Property: | N |
| Multi-Family Redevelopment: | N | | |
| Township: | | Section: | |
| Range: | |
Location |
| Address: | 11 VISTA DEL MAR ST CAMANO ISLAND, WA 98282 | Mapsco: | |
| Neighborhood: | North Camano | Map ID: | 962 |
| Neighborhood CD: | 06-C |
Owner |
| Name: | WILLIAM TTEE, SWANKE | Owner ID: | 312592 |
| Mailing Address: | 26910 92ND AVE NW C5 #407 STANWOOD, WA 98292 | % Ownership: | 100.0000000000% |
| | | Exemptions: | |
Taxes and Assessment Details
Values
| (+) Improvement Homesite Value: | + | $0 | |
| (+) Improvement Non-Homesite Value: | + | $348,678 | |
| (+) Land Homesite Value: | + | $0 | |
| (+) Land Non-Homesite Value: | + | $365,000 | |
| (+) Curr Use (HS): | + | $0 | $0 |
| (+) Curr Use (NHS): | + | $0 | $0 |
| | | -------------------------- | |
| (=) Market Value: | = | $713,678 | |
| (–) Productivity Loss: | – | $0 | |
| | | -------------------------- | |
| (=) Subtotal: | = | $713,678 | |
| (+) Senior Appraised Value: | + | $0 | |
| (+) Non-Senior Appraised Value: | + | $713,678 | |
| | | -------------------------- | |
| (=) Total Appraised Value: | = | $713,678 | |
| (–) Senior Exemption Loss: | – | $0 | |
| (–) Exemption Loss: | – | $0 | |
| | | -------------------------- | |
| (=) Taxable Value: | = | $713,678 | |
Taxing Jurisdiction
| Owner: | WILLIAM TTEE, SWANKE | | |
| % Ownership: | 100.0000000000% | | |
| Total Value: | $713,678 | | |
| Tax Area: | 590 - APPRAISER-Stan/Cam Schl Dist, Special Dist, improved & less than 1 acre |
| CF | Conservation Futures | 0.0316035091 | $713,678 | $713,678 | $22.55 | | |
| EMS1 | Fire & Rescue Dist #1 Camano GEN (EMS) | 0.3677864386 | $713,678 | $713,678 | $262.48 | | |
| FIRE1 | Fire & Rescue Dist #1 Camano GEN | 1.2502910536 | $713,678 | $713,678 | $892.31 | | |
| FIRE1BOND | Fire & Rescue Dist #1 Camano BOND | 0.1570001679 | $713,678 | $713,678 | $112.05 | | |
| CE | County Current Expense | 0.3708482477 | $713,678 | $713,678 | $264.67 | | |
| CR | County Roads | 0.4584763726 | $713,678 | $713,678 | $327.20 | | |
| LCIB | Library Sno-Isle BOND (Camano Island) | 0.0396325772 | $713,678 | $713,678 | $28.28 | | |
| LIB | Library Sno-Isle GEN | 0.3153421757 | $713,678 | $713,678 | $225.05 | | |
| SCH205_401 | School 205-401 Enrichment | 1.2698420524 | $713,678 | $713,678 | $906.26 | | |
| SCH205BOND | School 205-401 BOND | 0.9396497583 | $713,678 | $713,678 | $670.61 | | |
| ST | State School | 1.3035497053 | $713,678 | $713,678 | $930.31 | | |
| ST2 | State School Part 2 | 0.8169543533 | $713,678 | $713,678 | $583.04 | | |
| | Total Tax Rate: | 7.3209764117 | | | | | |
| | | | | Taxes w/Current Exemptions: | $5,224.81 | | |
| | | | | Taxes w/o Exemptions: | $5,224.81 | | |
Improvement / Building
| Improvement #1: | RESIDENTIAL | State Code: | Y | 2261.0 sqft | Value: | $348,678 |
| Bathrooms: | 2.5 | Bedrooms: | 3 | | Ceiling: | DRYWALL PAINTED | Exterior Wall/Cover: | SHINGLE | | Floor Covering: | CARPET/VINYL 80-20 | Floor Structure: | WOOD W/SUBFLOOR | | Foundation: | CONCRETE | Heating: | FHA GAS | | Interior Finish: | DRYWALL PAINT | Plumbing Fixture Cnt: | 14 | | Roof Slope: | 5" IN 12" | Roof Structure/Cover: | CJ ASPHALT |
|
| | Type | Description | Class CD | Sub Class CD | Year Built | Area |
| | BAS | BASE/MAIN FLOOR | 3 | 0 | 1989 | 1264.0 |
| | OP4 | OPEN PORCH W/CEILING-ROOF | 3 | 0 | 1989 | 28.0 |
| | AGR | ATTACHED GARAGE | 3 | 0 | 1989 | 600.3 |
| | UPS | UPPER STORY | 3 | 0 | 1989 | 997.0 |
| | OWP | OPEN WOOD PORCH W/STEPS | 3 | 0 | 1989 | 144.0 |
Sketch
Property Image
Land
| 1 | 14 | SQ (08001-12000) | 0.0000 | 0.00 | 0.00 | 0.00 | 1.00 | $365,000 | $0 |
Roll Value History
| 2026 | N/A | N/A | N/A | N/A | N/A |
| 2025 | $348,678 | $365,000 | $0 | $713,678 | $713,678 |
| 2024 | $353,252 | $350,000 | $0 | $703,252 | $703,252 |
| 2023 | $357,824 | $350,000 | $0 | $707,824 | $707,824 |
| 2022 | $315,737 | $310,000 | $0 | $625,737 | $625,737 |
| 2021 | $278,155 | $190,000 | $0 | $468,155 | $468,155 |
| 2020 | $271,224 | $190,000 | $0 | $461,224 | $461,224 |
| 2019 | $207,040 | $230,000 | $0 | $437,040 | $437,040 |
| 2018 | $207,694 | $200,000 | $0 | $407,694 | $407,694 |
| 2017 | $209,000 | $180,000 | $0 | $389,000 | $389,000 |
| 2016 | $206,473 | $115,000 | $0 | $321,473 | $321,473 |
| 2015 | $209,155 | $100,000 | $0 | $309,155 | $309,155 |
| 2014 | $211,836 | $85,000 | $0 | $296,836 | $296,836 |
| 2013 | $214,518 | $85,000 | $0 | $299,518 | $299,518 |
| 2012 | $217,198 | $80,000 | $0 | $297,198 | $297,198 |
| 2011 | $219,881 | $100,000 | $0 | $319,881 | $319,881 |
| 2010 | $205,180 | $135,000 | $0 | $340,180 | $340,180 |
| 2009 | $214,060 | $200,000 | $0 | $414,060 | $414,060 |
| 2008 | $216,652 | $165,000 | $0 | $381,652 | $381,652 |
| 2007 | $219,243 | $165,000 | $0 | $384,243 | $384,243 |
Deed and Sales History
| 1 | 05/07/2024 | QCD | Quit Claim Deed | SWANKE, WILLIAM R | WILLIAM TTEE, SWANKE | | | $10.00 | 60167 | 4572980 |
|   | |
| 2 | 04/01/1992 | WD | Warranty Deed | CENCAK, THOMAS J | SWANKE, WILLIAM R | | | $207,000.00 | 21664 | 92007868 |
| 3 | 07/01/1989 | WD | Warranty Deed | HOLBECK, JEFFREY J | CENCAK, THOMAS J | | | $145,000.00 | 93103 | 89010461 |
| 4 | 09/01/1986 | WD | Warranty Deed | OLSON, ENGWALL A | HOLBECK, JEFFREY J | | | $10,000.00 | 62699 | 86012190 |
| 5 | 01/01/1900 | OTHER | Other - Misc. Documents | Unknown | OLSON, ENGWALL A | | | $0.00 | 0 | 0 |
Payout Agreement
| No payout information available.. |