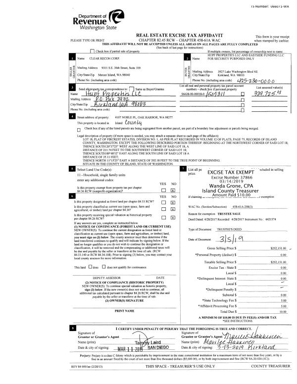
Property
Account |
| Property ID: | 200366 | Abbreviated Legal Description: | BUENA VISTA 3 LOT 1 BLK 8 |
| Geographic ID: | S6195-03-08001-0 | Agent Code: | |
| Type: | Real | | |
| Tax Area: | 590 - APPRAISER-Stan/Cam Schl Dist, Special Dist, improved & less than 1 acre | Land Use Code | 11 |
| Open Space: | N | DFL | N |
| Historic Property: | N | Remodel Property: | N |
| Multi-Family Redevelopment: | N | | |
| Township: | | Section: | |
| Range: | |
Location |
| Address: | 1030 D'JORUP ST CAMANO ISLAND, WA 98282 | Mapsco: | |
| Neighborhood: | North Camano | Map ID: | 962 |
| Neighborhood CD: | 06-C |
Owner |
| Name: | REEP, KYLE R | Owner ID: | 290057 |
| Mailing Address: | KELLY A REEP 1052 HANSTEAD RD CAMANO ISLAND, WA 98282 | % Ownership: | 100.0000000000% |
| | | Exemptions: | |
Taxes and Assessment Details
Values
| (+) Improvement Homesite Value: | + | $0 | |
| (+) Improvement Non-Homesite Value: | + | $695,180 | |
| (+) Land Homesite Value: | + | $0 | |
| (+) Land Non-Homesite Value: | + | $365,000 | |
| (+) Curr Use (HS): | + | $0 | $0 |
| (+) Curr Use (NHS): | + | $0 | $0 |
| | | -------------------------- | |
| (=) Market Value: | = | $1,060,180 | |
| (–) Productivity Loss: | – | $0 | |
| | | -------------------------- | |
| (=) Subtotal: | = | $1,060,180 | |
| (+) Senior Appraised Value: | + | $0 | |
| (+) Non-Senior Appraised Value: | + | $1,060,180 | |
| | | -------------------------- | |
| (=) Total Appraised Value: | = | $1,060,180 | |
| (–) Senior Exemption Loss: | – | $0 | |
| (–) Exemption Loss: | – | $0 | |
| | | -------------------------- | |
| (=) Taxable Value: | = | $1,060,180 | |
Taxing Jurisdiction
| Owner: | REEP, KYLE R | | |
| % Ownership: | 100.0000000000% | | |
| Total Value: | $1,060,180 | | |
| Tax Area: | 590 - APPRAISER-Stan/Cam Schl Dist, Special Dist, improved & less than 1 acre |
| CF | Conservation Futures | 0.0316035091 | $1,060,180 | $1,060,180 | $33.51 | | |
| EMS1 | Fire & Rescue Dist #1 Camano GEN (EMS) | 0.3677864386 | $1,060,180 | $1,060,180 | $389.92 | | |
| FIRE1 | Fire & Rescue Dist #1 Camano GEN | 1.2502910536 | $1,060,180 | $1,060,180 | $1,325.53 | | |
| FIRE1BOND | Fire & Rescue Dist #1 Camano BOND | 0.1570001679 | $1,060,180 | $1,060,180 | $166.45 | | |
| CE | County Current Expense | 0.3708482477 | $1,060,180 | $1,060,180 | $393.17 | | |
| CR | County Roads | 0.4584763726 | $1,060,180 | $1,060,180 | $486.07 | | |
| LCIB | Library Sno-Isle BOND (Camano Island) | 0.0396325772 | $1,060,180 | $1,060,180 | $42.02 | | |
| LIB | Library Sno-Isle GEN | 0.3153421757 | $1,060,180 | $1,060,180 | $334.32 | | |
| SCH205_401 | School 205-401 Enrichment | 1.2698420524 | $1,060,180 | $1,060,180 | $1,346.26 | | |
| SCH205BOND | School 205-401 BOND | 0.9396497583 | $1,060,180 | $1,060,180 | $996.20 | | |
| ST | State School | 1.3035497053 | $1,060,180 | $1,060,180 | $1,382.00 | | |
| ST2 | State School Part 2 | 0.8169543533 | $1,060,180 | $1,060,180 | $866.12 | | |
| | Total Tax Rate: | 7.3209764117 | | | | | |
| | | | | Taxes w/Current Exemptions: | $7,761.57 | | |
| | | | | Taxes w/o Exemptions: | $7,761.57 | | |
Improvement / Building
| Improvement #1: | RESIDENTIAL | State Code: | Y | 3897.0 sqft | Value: | $695,180 |
| Bathrooms: | 3 | Bedrooms: | 3 | | Ceiling: | DRYWALL PAINTED | Exterior Wall/Cover: | CEMENT FIBER | | Floor Covering: | HARDWOOD/CARP 80-20 | Floor Structure: | WOOD W/SUBFLOOR | | Foundation: | CONCRETE | Heating: | FHA GAS | | Interior Finish: | DRYWALL PAINT | Plumbing Fixture Cnt: | 18 | | Roof Slope: | 6" IN 12" | Roof Structure/Cover: | CJ ASPHALT |
|
| | Type | Description | Class CD | Sub Class CD | Year Built | Area |
| | BAS | BASE/MAIN FLOOR | 4 | 0 | 2009 | 2259.0 |
| | OP1 | OPEN PORCH SLAB | 4 | 0 | 2009 | 600.0 |
| | AGR | ATTACHED GARAGE | 4 | 0 | 2009 | 552.0 |
| | OWC | OPEN WOOD PORCH W/STEPS/ROOF/C | 4 | 0 | 2009 | 219.9 |
| | DWN | DOWNSTAIRS LIVING AREA | 4 | 0 | 2009 | 1638.0 |
| | OWP | OPEN WOOD PORCH W/STEPS | 4 | 0 | 2009 | 170.0 |
| | OWP | OPEN WOOD PORCH W/STEPS | 4 | 0 | 2009 | 239.9 |
Sketch
Property Image
Land
| 1 | 14 | SQ (08001-12000) | 0.0000 | 0.00 | 0.00 | 0.00 | 1.00 | $365,000 | $0 |
Roll Value History
| 2026 | N/A | N/A | N/A | N/A | N/A |
| 2025 | $695,180 | $365,000 | $0 | $1,060,180 | $1,060,180 |
| 2024 | $701,022 | $350,000 | $0 | $1,051,022 | $1,051,022 |
| 2023 | $707,254 | $350,000 | $0 | $1,057,254 | $1,057,254 |
| 2022 | $634,796 | $310,000 | $0 | $944,796 | $944,796 |
| 2021 | $556,886 | $190,000 | $0 | $746,886 | $746,886 |
| 2020 | $541,141 | $190,000 | $0 | $731,141 | $731,141 |
| 2019 | $386,095 | $230,000 | $0 | $616,095 | $616,095 |
| 2018 | $387,153 | $200,000 | $0 | $587,153 | $587,153 |
| 2017 | $389,269 | $180,000 | $0 | $569,269 | $569,269 |
| 2016 | $390,947 | $175,000 | $0 | $565,947 | $565,947 |
| 2015 | $395,196 | $100,000 | $0 | $495,196 | $495,196 |
| 2014 | $399,446 | $85,000 | $0 | $484,446 | $484,446 |
| 2013 | $403,694 | $85,000 | $0 | $488,694 | $488,694 |
| 2012 | $407,945 | $82,584 | $0 | $490,529 | $490,529 |
| 2011 | $412,193 | $103,230 | $0 | $515,423 | $515,423 |
| 2010 | $412,752 | $103,230 | $0 | $515,982 | $515,982 |
| 2009 | $345,845 | $165,000 | $0 | $510,845 | $510,845 |
| 2008 | $0 | $165,000 | $0 | $165,000 | $165,000 |
| 2007 | $0 | $165,000 | $0 | $165,000 | $165,000 |
Deed and Sales History
| 1 | 05/30/2019 | WD | Warranty Deed | STAR, JERRY L | REEP, KYLE R | | | $750,000.00 | 38798 | 4464597 |
| 2 | 08/15/2001 | WD | Warranty Deed | HENDRICKSON, JOHN E | STAR, JERRY L | | | $75,000.00 | 13130 | 20040632 |
| 3 | 08/01/2000 | WD | Warranty Deed | TANNER, RAYMOND D | HENDRICKSON, JOHN E | | | $62,000.00 | 3000 | 20014034 |
| 4 | 10/01/1996 | QCD | Quit Claim Deed | TANNER, RAYMOND D | TANNER, RAYMOND D | | | $0.00 | 63924 | 96018964 |
| 5 | 07/01/1980 | EXECUTORD | Executor Deed | SIMONSON, CHARLES H | TANNER, RAYMOND D | | | $21,500.00 | 2566 | 371819 |
| 6 | 03/01/1979 | OTHER | Other - Misc. Documents | Unknown | SIMONSON, CHARLES H | | | $17,500.00 | 91668 | 350753 |
Payout Agreement
| No payout information available.. |