Property
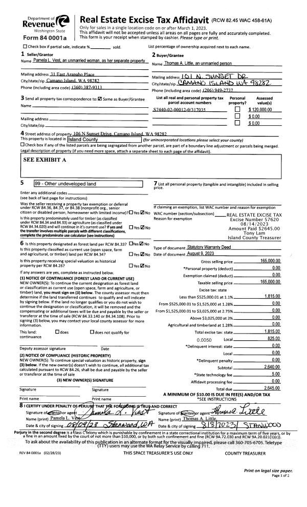
Account |
| Property ID: | 200473 | Abbreviated Legal Description: | BUENA VISTA 3 LOT 7 BLK 9 SUB EZ AF#392534 |
| Geographic ID: | S6195-03-09007-0 | Agent Code: | |
| Type: | Real | | |
| Tax Area: | 590 - APPRAISER-Stan/Cam Schl Dist, Special Dist, improved & less than 1 acre | Land Use Code | 11 |
| Open Space: | N | DFL | N |
| Historic Property: | N | Remodel Property: | N |
| Multi-Family Redevelopment: | N | | |
| Township: | | Section: | |
| Range: | |
Location |
| Address: | 42 VISTA DEL MAR ST CAMANO ISLAND, WA 98282 | Mapsco: | |
| Neighborhood: | North Camano | Map ID: | 962 |
| Neighborhood CD: | 06-C |
Owner |
| Name: | SIMICICH, JOEL | Owner ID: | 269211 |
| Mailing Address: | CLARISSA SIMICICH 42 VISTA DEL MAR ST CAMANO ISLAND, WA 98282 | % Ownership: | 100.0000000000% |
| | | Exemptions: | |
Taxes and Assessment Details
Values
| (+) Improvement Homesite Value: | + | $0 | |
| (+) Improvement Non-Homesite Value: | + | $254,362 | |
| (+) Land Homesite Value: | + | $0 | |
| (+) Land Non-Homesite Value: | + | $365,000 | |
| (+) Curr Use (HS): | + | $0 | $0 |
| (+) Curr Use (NHS): | + | $0 | $0 |
| | | -------------------------- | |
| (=) Market Value: | = | $619,362 | |
| (–) Productivity Loss: | – | $0 | |
| | | -------------------------- | |
| (=) Subtotal: | = | $619,362 | |
| (+) Senior Appraised Value: | + | $0 | |
| (+) Non-Senior Appraised Value: | + | $619,362 | |
| | | -------------------------- | |
| (=) Total Appraised Value: | = | $619,362 | |
| (–) Senior Exemption Loss: | – | $0 | |
| (–) Exemption Loss: | – | $0 | |
| | | -------------------------- | |
| (=) Taxable Value: | = | $619,362 | |
Taxing Jurisdiction
| Owner: | SIMICICH, JOEL | | |
| % Ownership: | 100.0000000000% | | |
| Total Value: | $619,362 | | |
| Tax Area: | 590 - APPRAISER-Stan/Cam Schl Dist, Special Dist, improved & less than 1 acre |
| CF | Conservation Futures | 0.0316035091 | $619,362 | $619,362 | $19.57 | | |
| EMS1 | Fire & Rescue Dist #1 Camano GEN (EMS) | 0.3677864386 | $619,362 | $619,362 | $227.79 | | |
| FIRE1 | Fire & Rescue Dist #1 Camano GEN | 1.2502910536 | $619,362 | $619,362 | $774.38 | | |
| FIRE1BOND | Fire & Rescue Dist #1 Camano BOND | 0.1570001679 | $619,362 | $619,362 | $97.24 | | |
| CE | County Current Expense | 0.3708482477 | $619,362 | $619,362 | $229.69 | | |
| CR | County Roads | 0.4584763726 | $619,362 | $619,362 | $283.96 | | |
| LCIB | Library Sno-Isle BOND (Camano Island) | 0.0396325772 | $619,362 | $619,362 | $24.55 | | |
| LIB | Library Sno-Isle GEN | 0.3153421757 | $619,362 | $619,362 | $195.31 | | |
| SCH205_401 | School 205-401 Enrichment | 1.2698420524 | $619,362 | $619,362 | $786.49 | | |
| SCH205BOND | School 205-401 BOND | 0.9396497583 | $619,362 | $619,362 | $581.98 | | |
| ST | State School | 1.3035497053 | $619,362 | $619,362 | $807.37 | | |
| ST2 | State School Part 2 | 0.8169543533 | $619,362 | $619,362 | $505.99 | | |
| | Total Tax Rate: | 7.3209764117 | | | | | |
| | | | | Taxes w/Current Exemptions: | $4,534.32 | | |
| | | | | Taxes w/o Exemptions: | $4,534.32 | | |
Improvement / Building
| Improvement #1: | RESIDENTIAL | State Code: | Y | 1668.0 sqft | Value: | $254,362 |
| Bathrooms: | 2 | Bedrooms: | 2 | | Ceiling: | BEAM PAINTED | Exterior Wall/Cover: | WOOD SIDING | | Floor Covering: | CARPET/VINYL 80-20 | Floor Structure: | WOOD W/SUBFLOOR | | Foundation: | CONCRETE | Heating: | BASEBOARD ELECTRIC | | Interior Finish: | DRYWALL PAINT | Plumbing Fixture Cnt: | 10 | | Roof Slope: | 4" IN 12" | Roof Structure/Cover: | BEAM ALUMINUM HEAVY |
|
| | Type | Description | Class CD | Sub Class CD | Year Built | Area |
| | BAS | BASE/MAIN FLOOR | 3 | 0 | 1978 | 992.0 |
| | AGR | ATTACHED GARAGE | 3 | 0 | 1978 | 624.0 |
| | OWP | OPEN WOOD PORCH W/STEPS | 3 | 0 | 1978 | 230.0 |
| | OWP | OPEN WOOD PORCH W/STEPS | 3 | 0 | 1978 | 376.0 |
| | DWN | DOWNSTAIRS LIVING AREA | 3 | 0 | 1978 | 676.0 |
| | OWP | OPEN WOOD PORCH W/STEPS | 3 | 0 | 1978 | 412.0 |
Sketch
Property Image
Land
| 1 | 14 | SQ (08001-12000) | 0.0000 | 0.00 | 0.00 | 0.00 | 1.00 | $365,000 | $0 |
Roll Value History
| 2026 | N/A | N/A | N/A | N/A | N/A |
| 2025 | $254,362 | $365,000 | $0 | $619,362 | $619,362 |
| 2024 | $258,699 | $350,000 | $0 | $608,699 | $608,699 |
| 2023 | $262,381 | $350,000 | $0 | $612,381 | $612,381 |
| 2022 | $227,578 | $310,000 | $0 | $537,578 | $537,578 |
| 2021 | $200,792 | $190,000 | $0 | $390,792 | $390,792 |
| 2020 | $196,147 | $190,000 | $0 | $386,147 | $386,147 |
| 2019 | $143,896 | $230,000 | $0 | $373,896 | $373,896 |
| 2018 | $144,402 | $200,000 | $0 | $344,402 | $344,402 |
| 2017 | $145,413 | $180,000 | $0 | $325,413 | $325,413 |
| 2016 | $151,598 | $175,000 | $0 | $326,598 | $326,598 |
| 2015 | $153,674 | $100,000 | $0 | $253,674 | $253,674 |
| 2014 | $155,752 | $100,000 | $0 | $255,752 | $255,752 |
| 2013 | $157,828 | $100,000 | $0 | $257,828 | $257,828 |
| 2012 | $159,905 | $108,000 | $0 | $267,905 | $267,905 |
| 2011 | $161,982 | $135,000 | $0 | $296,982 | $296,982 |
| 2010 | $145,109 | $135,000 | $0 | $280,109 | $280,109 |
| 2009 | $149,548 | $250,000 | $0 | $399,548 | $399,548 |
| 2008 | $151,489 | $250,000 | $0 | $401,489 | $401,489 |
| 2007 | $153,454 | $250,000 | $0 | $403,454 | $403,454 |
Deed and Sales History
| 1 | 02/12/2015 | WD | Warranty Deed | SUTHERLAND, ROBERT G | SIMICICH, JOEL | | | $255,000.00 | 18485 | 4373237 |
| 2 | 01/01/1985 | WD | Warranty Deed | DEL, VALLE, R | SUTHERLAND, ROBERT G | | | $75,000.00 | 50162 | 85000780 |
| 3 | 01/01/1900 | OTHER | Other - Misc. Documents | Unknown | DEL, VALLE, R | | | $0.00 | 0 | 0 |
Payout Agreement
| No payout information available.. |