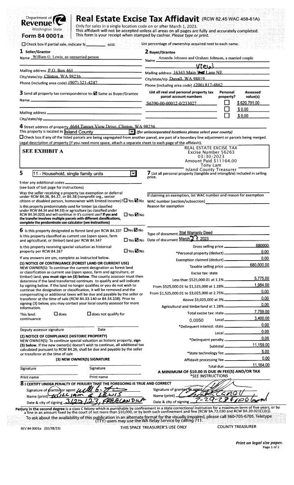
Property
Account |
| Property ID: | 200491 | Abbreviated Legal Description: | BUENA VISTA 3 LOT 9 BLK 9 |
| Geographic ID: | S6195-03-09009-0 | Agent Code: | |
| Type: | Real | | |
| Tax Area: | 590 - APPRAISER-Stan/Cam Schl Dist, Special Dist, improved & less than 1 acre | Land Use Code | 11 |
| Open Space: | N | DFL | N |
| Historic Property: | N | Remodel Property: | N |
| Multi-Family Redevelopment: | N | | |
| Township: | | Section: | |
| Range: | |
Location |
| Address: | 54 VISTA DEL MAR ST CAMANO ISLAND, WA 98282 | Mapsco: | |
| Neighborhood: | North Camano | Map ID: | 962 |
| Neighborhood CD: | 06-C |
Owner |
| Name: | HOVDA JR, KENNETH A | Owner ID: | 297869 |
| Mailing Address: | BEVERLY HOVDA 54 VISTA DEL MAR ST CAMANO ISLAND, WA 98282 | % Ownership: | 100.0000000000% |
| | | Exemptions: | |
Taxes and Assessment Details
Values
| (+) Improvement Homesite Value: | + | $0 | |
| (+) Improvement Non-Homesite Value: | + | $485,144 | |
| (+) Land Homesite Value: | + | $0 | |
| (+) Land Non-Homesite Value: | + | $365,000 | |
| (+) Curr Use (HS): | + | $0 | $0 |
| (+) Curr Use (NHS): | + | $0 | $0 |
| | | -------------------------- | |
| (=) Market Value: | = | $850,144 | |
| (–) Productivity Loss: | – | $0 | |
| | | -------------------------- | |
| (=) Subtotal: | = | $850,144 | |
| (+) Senior Appraised Value: | + | $0 | |
| (+) Non-Senior Appraised Value: | + | $850,144 | |
| | | -------------------------- | |
| (=) Total Appraised Value: | = | $850,144 | |
| (–) Senior Exemption Loss: | – | $0 | |
| (–) Exemption Loss: | – | $0 | |
| | | -------------------------- | |
| (=) Taxable Value: | = | $850,144 | |
Taxing Jurisdiction
| Owner: | HOVDA JR, KENNETH A | | |
| % Ownership: | 100.0000000000% | | |
| Total Value: | $850,144 | | |
| Tax Area: | 590 - APPRAISER-Stan/Cam Schl Dist, Special Dist, improved & less than 1 acre |
| CF | Conservation Futures | 0.0316035091 | $850,144 | $850,144 | $26.87 | | |
| EMS1 | Fire & Rescue Dist #1 Camano GEN (EMS) | 0.3677864386 | $850,144 | $850,144 | $312.67 | | |
| FIRE1 | Fire & Rescue Dist #1 Camano GEN | 1.2502910536 | $850,144 | $850,144 | $1,062.93 | | |
| FIRE1BOND | Fire & Rescue Dist #1 Camano BOND | 0.1570001679 | $850,144 | $850,144 | $133.47 | | |
| CE | County Current Expense | 0.3708482477 | $850,144 | $850,144 | $315.27 | | |
| CR | County Roads | 0.4584763726 | $850,144 | $850,144 | $389.77 | | |
| LCIB | Library Sno-Isle BOND (Camano Island) | 0.0396325772 | $850,144 | $850,144 | $33.69 | | |
| LIB | Library Sno-Isle GEN | 0.3153421757 | $850,144 | $850,144 | $268.09 | | |
| SCH205_401 | School 205-401 Enrichment | 1.2698420524 | $850,144 | $850,144 | $1,079.55 | | |
| SCH205BOND | School 205-401 BOND | 0.9396497583 | $850,144 | $850,144 | $798.84 | | |
| ST | State School | 1.3035497053 | $850,144 | $850,144 | $1,108.20 | | |
| ST2 | State School Part 2 | 0.8169543533 | $850,144 | $850,144 | $694.53 | | |
| | Total Tax Rate: | 7.3209764117 | | | | | |
| | | | | Taxes w/Current Exemptions: | $6,223.88 | | |
| | | | | Taxes w/o Exemptions: | $6,223.88 | | |
Improvement / Building
| Improvement #1: | RESIDENTIAL | State Code: | Y | 2715.0 sqft | Value: | $485,144 |
| Bathrooms: | 2.5 | Bedrooms: | 3 | | Ceiling: | DRYWALL PAINTED | Exterior Wall/Cover: | CEMENT FIBER | | Floor Covering: | HARDWOOD/CARP 20-80 | Floor Structure: | WOOD W/SUBFLOOR | | Foundation: | CONCRETE | Heating: | FHA GAS | | Interior Finish: | DRYWALL PAINT | Plumbing Fixture Cnt: | 14 | | Roof Slope: | 6" IN 12" | Roof Structure/Cover: | CJ ASPHALT |
|
| | Type | Description | Class CD | Sub Class CD | Year Built | Area |
| | BAS | BASE/MAIN FLOOR | 4 | 0 | 2003 | 1390.0 |
| | OP2 | OPEN PORCH W/STEPS | 4 | 0 | 2003 | 32.0 |
| | AGR | ATTACHED GARAGE | 4 | 0 | 2003 | 528.0 |
| | OWP | OPEN WOOD PORCH W/STEPS | 4 | 0 | 2003 | 140.0 |
| | OWC | OPEN WOOD PORCH W/STEPS/ROOF/C | 4 | 0 | 2003 | 128.0 |
| | DWN | DOWNSTAIRS LIVING AREA | 4 | 0 | 2003 | 1325.0 |
Sketch
Property Image
Land
| 1 | 14 | SQ (08001-12000) | 0.0000 | 0.00 | 0.00 | 0.00 | 1.00 | $365,000 | $0 |
Roll Value History
| 2026 | N/A | N/A | N/A | N/A | N/A |
| 2025 | $485,144 | $365,000 | $0 | $850,144 | $850,144 |
| 2024 | $490,770 | $350,000 | $0 | $840,770 | $840,770 |
| 2023 | $496,396 | $350,000 | $0 | $846,396 | $846,396 |
| 2022 | $454,589 | $310,000 | $0 | $764,589 | $764,589 |
| 2021 | $398,607 | $190,000 | $0 | $588,607 | $588,607 |
| 2020 | $379,394 | $190,000 | $0 | $569,394 | $569,394 |
| 2019 | $290,311 | $230,000 | $0 | $520,311 | $520,311 |
| 2018 | $291,144 | $200,000 | $0 | $491,144 | $491,144 |
| 2017 | $292,806 | $180,000 | $0 | $472,806 | $472,806 |
| 2016 | $295,258 | $175,000 | $0 | $470,258 | $470,258 |
| 2015 | $298,614 | $100,000 | $0 | $398,614 | $398,614 |
| 2014 | $301,969 | $100,000 | $0 | $401,969 | $401,969 |
| 2013 | $305,324 | $100,000 | $0 | $405,324 | $405,324 |
| 2012 | $308,680 | $108,000 | $0 | $416,680 | $416,680 |
| 2011 | $312,033 | $135,000 | $0 | $447,033 | $447,033 |
| 2010 | $304,859 | $135,000 | $0 | $439,859 | $439,859 |
| 2009 | $317,635 | $200,000 | $0 | $517,635 | $517,635 |
| 2008 | $324,397 | $250,000 | $0 | $574,397 | $574,397 |
| 2007 | $324,537 | $250,000 | $0 | $574,537 | $574,537 |
Deed and Sales History
| 1 | 01/25/2021 | WD | Warranty Deed | HEIDNER TRUSTEE, GARY M | HOVDA JR, KENNETH A | | | $700,000.00 | 46707 | 4509233 |
| 2 | 12/08/2017 | WD | Warranty Deed | HEIDNER, GARY MICHAEL | HEIDNER TRUSTEE, GARY M | | | $0.00 | 32535 | 4437069 |
| 3 | 01/31/2011 | ESTSEPPROP | Establish Separate Property | HEIDNER, GARY MICHAEL | HEIDNER, GARY MICHAEL | | | $0.00 | 3570 | 4290344 |
| 4 | 01/31/2011 | QCD | Quit Claim Deed | HEIDNER TTEE, GARY M | HEIDNER, GARY MICHAEL | | | $0.00 | 3569 | 4290343 |
| 5 | 02/02/2008 | QCD | Quit Claim Deed | HEIDNER, GARY MICHAEL | HEIDNER TTEE, GARY M | | | $0.00 | 80377 | 4222060 |
| 6 | 07/28/2003 | WD | Warranty Deed | SEACREST CUSTOM HOMES INC, | HEIDNER, GARY MICHAEL | | | $319,000.00 | 33399 | 4069706 |
| 7 | 05/23/2002 | WD | Warranty Deed | JOHNSON, MICHAEL C | SEACREST CUSTOM HOMES INC, | | | $60,000.00 | 22034 | 4021493 |
| 8 | 10/01/1992 | QCD | Quit Claim Deed | RICHARDSON, ENGLA | JOHNSON, MICHAEL C | | | $0.00 | 24437 | 92021699 |
| 9 | 01/01/1900 | OTHER | Other - Misc. Documents | Unknown | RICHARDSON, ENGLA | | | $0.00 | 0 | 0 |
Payout Agreement
| No payout information available.. |