Property
Account |
| Property ID: | 200650 | Abbreviated Legal Description: | BUENA VISTA 3 LOT 5 BLK 10 |
| Geographic ID: | S6195-03-10005-0 | Agent Code: | |
| Type: | Real | | |
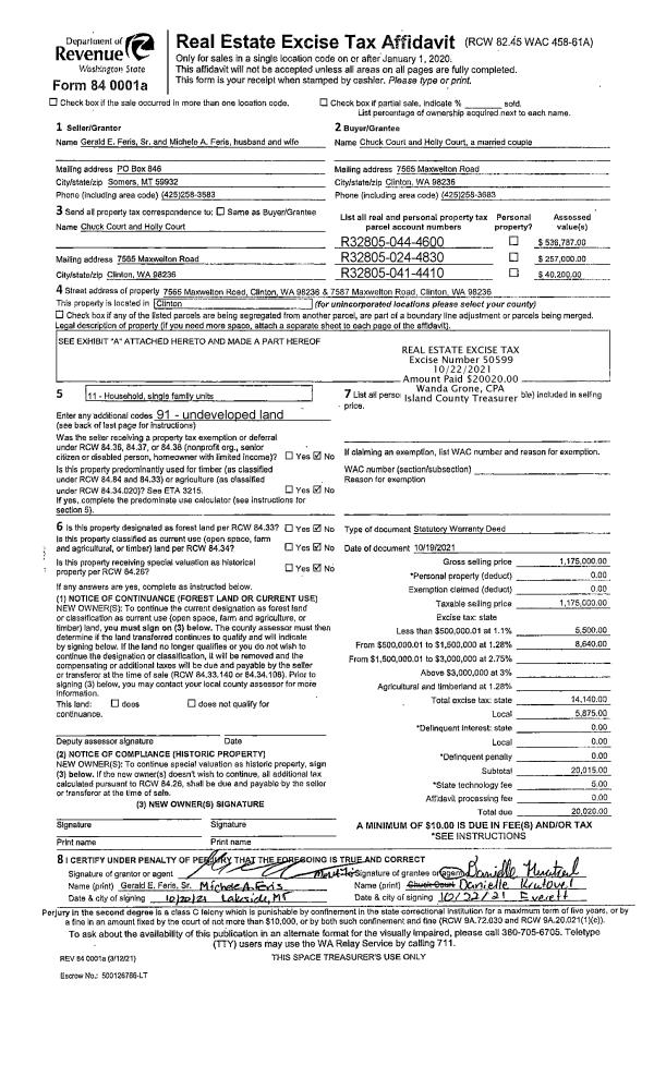
| Tax Area: | 590 - APPRAISER-Stan/Cam Schl Dist, Special Dist, improved & less than 1 acre | Land Use Code | 11 |
| Open Space: | N | DFL | N |
| Historic Property: | N | Remodel Property: | N |
| Multi-Family Redevelopment: | N | | |
| Township: | | Section: | |
| Range: | |
Location |
| Address: | 15 CHICK RD CAMANO ISLAND, WA 98282 | Mapsco: | |
| Neighborhood: | North Camano | Map ID: | 960 |
| Neighborhood CD: | 06-C |
Owner |
| Name: | ANDELIAN, BRADLEY N | Owner ID: | 29639 |
| Mailing Address: | LYNELL ANDELIAN 15 CHICK RD CAMANO ISLAND, WA 98282-8724 | % Ownership: | 100.0000000000% |
| | | Exemptions: | |
Taxes and Assessment Details
Values
| (+) Improvement Homesite Value: | + | $0 | |
| (+) Improvement Non-Homesite Value: | + | $342,464 | |
| (+) Land Homesite Value: | + | $0 | |
| (+) Land Non-Homesite Value: | + | $365,000 | |
| (+) Curr Use (HS): | + | $0 | $0 |
| (+) Curr Use (NHS): | + | $0 | $0 |
| | | -------------------------- | |
| (=) Market Value: | = | $707,464 | |
| (–) Productivity Loss: | – | $0 | |
| | | -------------------------- | |
| (=) Subtotal: | = | $707,464 | |
| (+) Senior Appraised Value: | + | $0 | |
| (+) Non-Senior Appraised Value: | + | $707,464 | |
| | | -------------------------- | |
| (=) Total Appraised Value: | = | $707,464 | |
| (–) Senior Exemption Loss: | – | $0 | |
| (–) Exemption Loss: | – | $0 | |
| | | -------------------------- | |
| (=) Taxable Value: | = | $707,464 | |
Taxing Jurisdiction
| Owner: | ANDELIAN, BRADLEY N | | |
| % Ownership: | 100.0000000000% | | |
| Total Value: | $707,464 | | |
| Tax Area: | 590 - APPRAISER-Stan/Cam Schl Dist, Special Dist, improved & less than 1 acre |
| CF | Conservation Futures | 0.0316035091 | $707,464 | $707,464 | $22.36 | | |
| EMS1 | Fire & Rescue Dist #1 Camano GEN (EMS) | 0.3677864386 | $707,464 | $707,464 | $260.20 | | |
| FIRE1 | Fire & Rescue Dist #1 Camano GEN | 1.2502910536 | $707,464 | $707,464 | $884.54 | | |
| FIRE1BOND | Fire & Rescue Dist #1 Camano BOND | 0.1570001679 | $707,464 | $707,464 | $111.07 | | |
| CE | County Current Expense | 0.3708482477 | $707,464 | $707,464 | $262.36 | | |
| CR | County Roads | 0.4584763726 | $707,464 | $707,464 | $324.36 | | |
| LCIB | Library Sno-Isle BOND (Camano Island) | 0.0396325772 | $707,464 | $707,464 | $28.04 | | |
| LIB | Library Sno-Isle GEN | 0.3153421757 | $707,464 | $707,464 | $223.09 | | |
| SCH205_401 | School 205-401 Enrichment | 1.2698420524 | $707,464 | $707,464 | $898.37 | | |
| SCH205BOND | School 205-401 BOND | 0.9396497583 | $707,464 | $707,464 | $664.77 | | |
| ST | State School | 1.3035497053 | $707,464 | $707,464 | $922.21 | | |
| ST2 | State School Part 2 | 0.8169543533 | $707,464 | $707,464 | $577.97 | | |
| | Total Tax Rate: | 7.3209764117 | | | | | |
| | | | | Taxes w/Current Exemptions: | $5,179.34 | | |
| | | | | Taxes w/o Exemptions: | $5,179.34 | | |
Improvement / Building
| Improvement #1: | RESIDENTIAL | State Code: | Y | 2688.0 sqft | Value: | $342,464 |
| Bathrooms: | 2.5 | Bedrooms: | 3 | | Ceiling: | DRY WALL SPRAYED | Exterior Wall/Cover: | CEMENT FIBER | | Floor Covering: | CARPET/VINYL 80-20 | Floor Structure: | WOOD W/SUBFLOOR | | Foundation: | CONCRETE | Heating: | FHA GAS | | Interior Finish: | DRYWALL PAINT | Plumbing Fixture Cnt: | 11 | | Roof Slope: | 4" IN 12" | Roof Structure/Cover: | CJ CLAY TILE |
|
| | Type | Description | Class CD | Sub Class CD | Year Built | Area |
| | BAS | BASE/MAIN FLOOR | 3 | 0 | 1978 | 1344.0 |
| | AGR | ATTACHED GARAGE | 3 | 0 | 1978 | 528.0 |
| | OWP | OPEN WOOD PORCH W/STEPS | 3 | 0 | 1978 | 552.0 |
| | DWN | DOWNSTAIRS LIVING AREA | 3 | 0 | 1978 | 1344.0 |
Sketch
Property Image
Land
| 1 | 14 | SQ (08001-12000) | 0.0000 | 0.00 | 0.00 | 0.00 | 1.00 | $365,000 | $0 |
Roll Value History
| 2026 | N/A | N/A | N/A | N/A | N/A |
| 2025 | $342,464 | $365,000 | $0 | $707,464 | $707,464 |
| 2024 | $347,015 | $350,000 | $0 | $697,015 | $697,015 |
| 2023 | $351,567 | $350,000 | $0 | $701,567 | $701,567 |
| 2022 | $305,984 | $310,000 | $0 | $615,984 | $615,984 |
| 2021 | $269,665 | $190,000 | $0 | $459,665 | $459,665 |
| 2020 | $263,763 | $190,000 | $0 | $453,763 | $453,763 |
| 2019 | $208,494 | $230,000 | $0 | $438,494 | $438,494 |
| 2018 | $209,169 | $200,000 | $0 | $409,169 | $409,169 |
| 2017 | $210,520 | $180,000 | $0 | $390,520 | $390,520 |
| 2016 | $198,495 | $115,000 | $0 | $313,495 | $313,495 |
| 2015 | $201,212 | $100,000 | $0 | $301,212 | $301,212 |
| 2014 | $203,933 | $85,000 | $0 | $288,933 | $288,933 |
| 2013 | $206,653 | $85,000 | $0 | $291,653 | $291,653 |
| 2012 | $209,371 | $82,584 | $0 | $291,955 | $291,955 |
| 2011 | $212,091 | $103,230 | $0 | $315,321 | $315,321 |
| 2010 | $223,723 | $103,230 | $0 | $326,953 | $326,953 |
| 2009 | $233,075 | $165,000 | $0 | $398,075 | $398,075 |
| 2008 | $235,807 | $165,000 | $0 | $400,807 | $400,807 |
| 2007 | $232,074 | $165,000 | $0 | $397,074 | $397,074 |
Deed and Sales History
| 1 | 05/04/2021 | QCD | Quit Claim Deed | ANDELIAN, BRADLEY N | ANDELIAN, BRADLEY N | | | $0.00 | 48159 | 4518663 |
| 2 | 04/26/2012 | ESTSEPPROP | Establish Separate Property | ANDELIAN, LYNELL | ANDELIAN, BRADLEY N | | | $0.00 | 9407 | 4326976 |
| 3 | 06/12/1998 | QCD | Quit Claim Deed | ANDELIAN, BRADLEY N | ANDELIAN, BRADLEY N | | | $0.00 | 82344 | 98012174 |
| 4 | 01/01/1994 | WD | Warranty Deed | TURNER, WILLIAM G | ANDELIAN, BRADLEY N | | | $155,000.00 | 40113 | 94000666 |
| 5 | 07/01/1989 | WD | Warranty Deed | LA, FAVE, L | TURNER, WILLIAM G | | | $115,000.00 | 92851 | 89009564 |
| 6 | 07/01/1978 | OTHER | Other - Misc. Documents | ANDELIAN, BRADLEY N | LA, FAVE, L | | | $7,250.00 | 83127 | 335555 |
| 7 | 01/01/1900 | OTHER | Other - Misc. Documents | Unknown | ANDELIAN, BRADLEY N | | | $0.00 | 82344 | 98012174 |
Payout Agreement
| No payout information available.. |