Property
Account |
| Property ID: | 200730 | Abbreviated Legal Description: | BUENA VISTA 4 LOT 7 |
| Geographic ID: | S6195-04-00007-0 | Agent Code: | |
| Type: | Real | | |
| Tax Area: | 590 - APPRAISER-Stan/Cam Schl Dist, Special Dist, improved & less than 1 acre | Land Use Code | 11 |
| Open Space: | N | DFL | N |
| Historic Property: | N | Remodel Property: | N |
| Multi-Family Redevelopment: | N | | |
| Township: | | Section: | |
| Range: | |
Location |
| Address: | 171 SKY VISTA PLACE CAMANO ISLAND, WA 98282 | Mapsco: | |
| Neighborhood: | North Camano | Map ID: | 962 |
| Neighborhood CD: | 06-C |
Owner |
| Name: | GARNES, OLINO K | Owner ID: | 279990 |
| Mailing Address: | JOSH GARNES 171 SKY VISTA PLACE CAMANO ISLAND, WA 98282 | % Ownership: | 100.0000000000% |
| | | Exemptions: | |
Taxes and Assessment Details
Values
| (+) Improvement Homesite Value: | + | $0 | |
| (+) Improvement Non-Homesite Value: | + | $325,665 | |
| (+) Land Homesite Value: | + | $0 | |
| (+) Land Non-Homesite Value: | + | $365,000 | |
| (+) Curr Use (HS): | + | $0 | $0 |
| (+) Curr Use (NHS): | + | $0 | $0 |
| | | -------------------------- | |
| (=) Market Value: | = | $690,665 | |
| (–) Productivity Loss: | – | $0 | |
| | | -------------------------- | |
| (=) Subtotal: | = | $690,665 | |
| (+) Senior Appraised Value: | + | $0 | |
| (+) Non-Senior Appraised Value: | + | $690,665 | |
| | | -------------------------- | |
| (=) Total Appraised Value: | = | $690,665 | |
| (–) Senior Exemption Loss: | – | $0 | |
| (–) Exemption Loss: | – | $0 | |
| | | -------------------------- | |
| (=) Taxable Value: | = | $690,665 | |
Taxing Jurisdiction
| Owner: | GARNES, OLINO K | | |
| % Ownership: | 100.0000000000% | | |
| Total Value: | $690,665 | | |
| Tax Area: | 590 - APPRAISER-Stan/Cam Schl Dist, Special Dist, improved & less than 1 acre |
| CF | Conservation Futures | 0.0316035091 | $690,665 | $690,665 | $21.83 | | |
| EMS1 | Fire & Rescue Dist #1 Camano GEN (EMS) | 0.3677864386 | $690,665 | $690,665 | $254.02 | | |
| FIRE1 | Fire & Rescue Dist #1 Camano GEN | 1.2502910536 | $690,665 | $690,665 | $863.53 | | |
| FIRE1BOND | Fire & Rescue Dist #1 Camano BOND | 0.1570001679 | $690,665 | $690,665 | $108.43 | | |
| CE | County Current Expense | 0.3708482477 | $690,665 | $690,665 | $256.13 | | |
| CR | County Roads | 0.4584763726 | $690,665 | $690,665 | $316.65 | | |
| LCIB | Library Sno-Isle BOND (Camano Island) | 0.0396325772 | $690,665 | $690,665 | $27.37 | | |
| LIB | Library Sno-Isle GEN | 0.3153421757 | $690,665 | $690,665 | $217.80 | | |
| SCH205_401 | School 205-401 Enrichment | 1.2698420524 | $690,665 | $690,665 | $877.04 | | |
| SCH205BOND | School 205-401 BOND | 0.9396497583 | $690,665 | $690,665 | $648.98 | | |
| ST | State School | 1.3035497053 | $690,665 | $690,665 | $900.32 | | |
| ST2 | State School Part 2 | 0.8169543533 | $690,665 | $690,665 | $564.24 | | |
| | Total Tax Rate: | 7.3209764117 | | | | | |
| | | | | Taxes w/Current Exemptions: | $5,056.34 | | |
| | | | | Taxes w/o Exemptions: | $5,056.34 | | |
Improvement / Building
| Improvement #1: | RESIDENTIAL | State Code: | Y | 2348.1 sqft | Value: | $325,665 |
| Bathrooms: | 2.5 | Bedrooms: | 2 | | Ceiling: | DRYWALL PAINTED | Exterior Wall/Cover: | WOOD SIDING | | Floor Covering: | CARPET/VINYL 80-20 | Floor Structure: | WOOD W/SUBFLOOR | | Foundation: | CONCRETE | Heating: | WALL HEAT ELECTRIC | | Interior Finish: | DRYWALL PAINT | Plumbing Fixture Cnt: | 14 | | Roof Slope: | 4" IN 12" | Roof Structure/Cover: | CJ ASPHALT |
|
| | Type | Description | Class CD | Sub Class CD | Year Built | Area |
| | BAS | BASE/MAIN FLOOR | 3 | 0 | 1990 | 1212.1 |
| | AGR | ATTACHED GARAGE | 3 | 0 | 1990 | 528.0 |
| | OWC | OPEN WOOD PORCH W/STEPS/ROOF/C | 3 | 0 | 1990 | 28.9 |
| | DWN | DOWNSTAIRS LIVING AREA | 3 | 0 | 1990 | 1136.0 |
| | OWP | OPEN WOOD PORCH W/STEPS | 3 | 0 | 1990 | 272.0 |
| | OWC | OPEN WOOD PORCH W/STEPS/ROOF/C | 3 | 0 | 1990 | 82.0 |
| | UTY | STORAGE/UTILITY | 3 | 0 | 1990 | 120.0 |
Sketch
Property Image
Land
| 1 | 14 | SQ (08001-12000) | 0.0000 | 0.00 | 0.00 | 0.00 | 1.00 | $365,000 | $0 |
Roll Value History
| 2026 | N/A | N/A | N/A | N/A | N/A |
| 2025 | $325,665 | $365,000 | $0 | $690,665 | $690,665 |
| 2024 | $329,723 | $350,000 | $0 | $679,723 | $679,723 |
| 2023 | $333,781 | $350,000 | $0 | $683,781 | $683,781 |
| 2022 | $294,889 | $310,000 | $0 | $604,889 | $604,889 |
| 2021 | $259,623 | $190,000 | $0 | $449,623 | $449,623 |
| 2020 | $252,959 | $190,000 | $0 | $442,959 | $442,959 |
| 2019 | $193,202 | $230,000 | $0 | $423,202 | $423,202 |
| 2018 | $193,782 | $200,000 | $0 | $393,782 | $393,782 |
| 2017 | $183,916 | $120,000 | $0 | $303,916 | $303,916 |
| 2016 | $179,272 | $115,000 | $0 | $294,272 | $294,272 |
| 2015 | $181,541 | $85,000 | $0 | $266,541 | $266,541 |
| 2014 | $183,811 | $65,000 | $0 | $248,811 | $248,811 |
| 2013 | $186,080 | $65,000 | $0 | $251,080 | $251,080 |
| 2012 | $202,824 | $80,000 | $0 | $282,824 | $282,824 |
| 2011 | $205,267 | $100,000 | $0 | $305,267 | $305,267 |
| 2010 | $233,363 | $103,230 | $0 | $336,593 | $336,593 |
| 2009 | $243,408 | $165,000 | $0 | $408,408 | $408,408 |
| 2008 | $246,341 | $165,000 | $0 | $411,341 | $411,341 |
| 2007 | $249,322 | $165,000 | $0 | $414,322 | $414,322 |
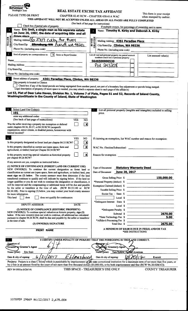
Deed and Sales History
| 1 | 05/13/2017 | WD | Warranty Deed | SCRONCE, JOSEPH K | GARNES, OLINO K | | | $374,500.00 | 29374 | 4422928 |
| 2 | 06/21/2012 | WD | Warranty Deed | BARROW, CLAUDE | SCRONCE, JOSEPH K | | | $251,700.00 | 8044 | 4317914 |
| 3 | 06/26/2001 | WD | Warranty Deed | ANDERSON, WILLIAM O | BARROW, CLAUDE | | | $282,000.00 | 12435 | 20036085 |
| 4 | 11/01/1989 | WD | Warranty Deed | ANDERSON, WILLIAM W | ANDERSON, WILLIAM O | | | $18,950.00 | 95464 | 89017501 |
| 5 | 01/01/1900 | OTHER | Other - Misc. Documents | Unknown | ANDERSON, WILLIAM W | | | $0.00 | 0 | 0 |
Payout Agreement
| No payout information available.. |