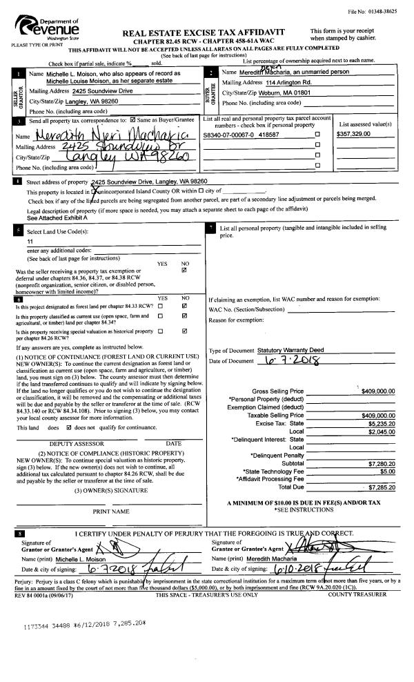
Property
Account |
| Property ID: | 200874 | Abbreviated Legal Description: | BUSH PT LOT 2 BLK 3 EX: BG SWCR LOT 2 E ALG SLN 25' NWLY TP ON WLN LOT 2 60'N OF SWCR S60' TPB EX: BG SECR LOT 2 N ALG ELN TO NECR LOT 2 SWLY ALG ML 15' SELY TPB TGW PT LOT 1 BLK 3 DESC: BG SECR LOT 1 N60'TPB CONT ON ELN TO ML SELY ALG SD ML 25 SELY TPB |
| Geographic ID: | S6205-00-03002-0 | Agent Code: | |
| Type: | Real | | |
| Tax Area: | 780 - APPRAISER-S Whid Schl Dist, Special District, improved & less than 1 acre | Land Use Code | 11 |
| Open Space: | N | DFL | N |
| Historic Property: | N | Remodel Property: | N |
| Multi-Family Redevelopment: | N | | |
| Township: | | Section: | |
| Range: | |
Location |
| Address: | 201 SANDPIPER RD FREELAND, WA 98249 | Mapsco: | |
| Neighborhood: | Cycle 3 | Map ID: | 300 |
| Neighborhood CD: | 3 |
Owner |
| Name: | TRAN, TRANG-THU | Owner ID: | 284216 |
| Mailing Address: | 2651 A NW 64TH ST SEATTLE, WA 98107 | % Ownership: | 100.0000000000% |
| | | Exemptions: | |
Taxes and Assessment Details
Values
| (+) Improvement Homesite Value: | + | $0 | |
| (+) Improvement Non-Homesite Value: | + | $431,528 | |
| (+) Land Homesite Value: | + | $0 | |
| (+) Land Non-Homesite Value: | + | $945,600 | |
| (+) Curr Use (HS): | + | $0 | $0 |
| (+) Curr Use (NHS): | + | $0 | $0 |
| | | -------------------------- | |
| (=) Market Value: | = | $1,377,128 | |
| (–) Productivity Loss: | – | $0 | |
| | | -------------------------- | |
| (=) Subtotal: | = | $1,377,128 | |
| (+) Senior Appraised Value: | + | $0 | |
| (+) Non-Senior Appraised Value: | + | $1,377,128 | |
| | | -------------------------- | |
| (=) Total Appraised Value: | = | $1,377,128 | |
| (–) Senior Exemption Loss: | – | $0 | |
| (–) Exemption Loss: | – | $0 | |
| | | -------------------------- | |
| (=) Taxable Value: | = | $1,377,128 | |
Taxing Jurisdiction
| Owner: | TRAN, TRANG-THU | | |
| % Ownership: | 100.0000000000% | | |
| Total Value: | $1,377,128 | | |
| Tax Area: | 780 - APPRAISER-S Whid Schl Dist, Special District, improved & less than 1 acre |
| CF | Conservation Futures | 0.0316035091 | $1,377,128 | $1,377,128 | $43.52 | | |
| FIRE3 | Fire & Rescue Dist #3 S Whidbey GEN | 1.2004855531 | $1,377,128 | $1,377,128 | $1,653.22 | | |
| HOBOND | Hospital BOND | 0.1910887512 | $1,377,128 | $1,377,128 | $263.15 | | |
| HOGEN | Hospital GEN | 0.3902502903 | $1,377,128 | $1,377,128 | $537.42 | | |
| CE | County Current Expense | 0.3708482477 | $1,377,128 | $1,377,128 | $510.71 | | |
| CR | County Roads | 0.4584763726 | $1,377,128 | $1,377,128 | $631.38 | | |
| ISLANDEMS | Hospital GEN (EMS) | 0.5000000000 | $1,377,128 | $1,377,128 | $688.56 | | |
| LIB | Library Sno-Isle GEN | 0.3153421757 | $1,377,128 | $1,377,128 | $434.27 | | |
| PORTWHID | Port of S Whidbey GEN | 0.1094540357 | $1,377,128 | $1,377,128 | $150.73 | | |
| SCH206BOND | School 206 BOND | 0.3161759235 | $1,377,128 | $1,377,128 | $435.41 | | |
| SCH206MO | School 206 Enrichment | 0.4547169547 | $1,377,128 | $1,377,128 | $626.20 | | |
| ST | State School | 1.3035497053 | $1,377,128 | $1,377,128 | $1,795.15 | | |
| ST2 | State School Part 2 | 0.8169543533 | $1,377,128 | $1,377,128 | $1,125.05 | | |
| SWHIDPRBD | P & R S Whidbey BOND | 0.0152817568 | $1,377,128 | $1,377,128 | $21.04 | | |
| SWHIDPRBD2 | P & R S Whidbey BOND2 | 0.0138911264 | $1,377,128 | $1,377,128 | $19.13 | | |
| SWHIDPRMT | P & R S Whidbey GEN | 0.2053334452 | $1,377,128 | $1,377,128 | $282.77 | | |
| | Total Tax Rate: | 6.6934522006 | | | | | |
| | | | | Taxes w/Current Exemptions: | $9,217.71 | | |
| | | | | Taxes w/o Exemptions: | $9,217.71 | | |
Improvement / Building
| Improvement #1: | RESIDENTIAL | State Code: | Y | 1810.1 sqft | Value: | $431,528 |
| Bathrooms: | 2.5 | Bedrooms: | 2 | | Ceiling: | DRYWALL PAINTED | Exterior Wall/Cover: | CEMENT FIBER | | Floor Covering: | HARDWOOD/CARP 80-20 | Floor Structure: | WOOD W/SUBFLOOR | | Foundation: | CONCRETE | Heating: | FHA GAS | | Interior Finish: | DRYWALL PAINT | Plumbing Fixture Cnt: | 15 | | Roof Slope: | 8" IN 12" | Roof Structure/Cover: | CJ ASPHALT |
|
| | Type | Description | Class CD | Sub Class CD | Year Built | Area |
| | BAS | BASE/MAIN FLOOR | 4 | 0 | 2005 | 842.3 |
| | OP4 | OPEN PORCH W/CEILING-ROOF | 4 | 0 | 2005 | 44.0 |
| | BIG | BUILT IN GARAGE | 4 | 0 | 2005 | 245.8 |
| | UPS | UPPER STORY | 4 | 0 | 2005 | 967.8 |
| | OWP | OPEN WOOD PORCH W/STEPS | 4 | 0 | 2005 | 159.5 |
| | OWP | OPEN WOOD PORCH W/STEPS | 4 | 0 | 2005 | 464.0 |
Sketch
Property Image
Land
| 1 | LB | LOW BANK | 0.0000 | 0.00 | 60.00 | 0.00 | 1.00 | $945,000 | $0 |
| 2 | 55 | TIDES | 0.0000 | 0.00 | 120.00 | 0.00 | 1.00 | $600 | $0 |
Roll Value History
| 2026 | N/A | N/A | N/A | N/A | N/A |
| 2025 | $431,528 | $945,600 | $0 | $1,377,128 | $1,377,128 |
| 2024 | $436,839 | $945,600 | $0 | $1,382,439 | $1,382,439 |
| 2023 | $442,150 | $945,600 | $0 | $1,387,750 | $1,387,750 |
| 2022 | $405,179 | $900,600 | $0 | $1,305,779 | $1,305,779 |
| 2021 | $356,510 | $750,600 | $0 | $1,107,110 | $1,107,110 |
| 2020 | $346,339 | $500,600 | $0 | $846,939 | $846,939 |
| 2019 | $252,875 | $550,600 | $0 | $803,475 | $803,475 |
| 2018 | $259,397 | $550,600 | $0 | $809,997 | $809,997 |
| 2017 | $299,487 | $500,600 | $0 | $800,087 | $800,087 |
| 2016 | $302,931 | $500,600 | $0 | $803,531 | $803,531 |
| 2015 | $306,373 | $500,600 | $0 | $806,973 | $806,973 |
| 2014 | $309,814 | $500,600 | $0 | $810,414 | $810,414 |
| 2013 | $313,257 | $421,458 | $0 | $734,715 | $734,715 |
| 2012 | $316,700 | $421,458 | $0 | $738,158 | $738,158 |
| 2011 | $320,142 | $421,458 | $0 | $741,600 | $741,600 |
| 2010 | $325,863 | $421,458 | $0 | $747,321 | $747,321 |
| 2009 | $335,977 | $556,800 | $0 | $892,777 | $892,777 |
| 2008 | $339,531 | $556,800 | $0 | $896,331 | $896,331 |
| 2007 | $343,026 | $556,380 | $0 | $899,406 | $899,406 |
Deed and Sales History
| 1 | 03/13/2018 | WD | Warranty Deed | TYACK-HUNT, PAULINE | TRAN, TRANG-THU | | | $841,000.00 | 33271 | 4440682 |
| 2 | 06/12/2006 | WD | Warranty Deed | SORENSEN, ORLIN GORDON | TYACK-HUNT, PAULINE | | | $950,000.00 | 62838 | 4174737 |
| 3 | 04/14/2005 | 5 | DNU - Marriage License/Name Change | TROWER, TANDY W | O'NEIL ET AL, MARGARET H | | | $0.00 | 51553 | 4131216 |
| 4 | 04/11/2005 | WD | Warranty Deed | O'NEIL ET AL, MARGARET H | SORENSEN, ORLIN GORDON | | | $305,000.00 | 51554 | 4131218 |
| 5 | 09/01/1994 | WD | Warranty Deed | IDDINS, ROBERT & | TROWER, TANDY W | | | $240,000.00 | 44175 | 94021514 |
| 6 | 07/01/1993 | QCD | Quit Claim Deed | IDDINS, ROBERT | IDDINS, ROBERT & | | | $0.00 | 32828 | 93014600 |
| 7 | 09/01/1979 | CD | DNU - Correction Deed | IDDINS, EARL T | IDDINS, ROBERT | | | $0.00 | 94741 | 359445 |
| 8 | 01/01/1900 | OTHER | Other - Misc. Documents | Unknown | IDDINS, EARL T | | | $0.00 | 0 | 0 |
Payout Agreement
| No payout information available.. |