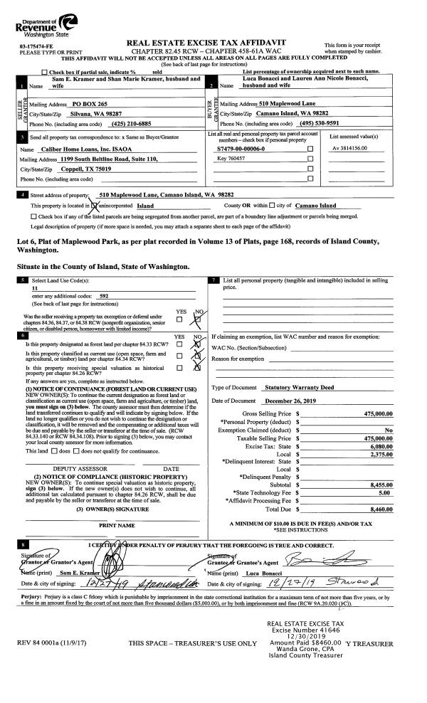
Property
Account |
| Property ID: | 201098 | Abbreviated Legal Description: | BUSH POINT LOT 19 BLK 5 EX W40' TGW: BG 77'W OF NECR LOT 19 S18' W8' N18' E TPB COMB 11/85 |
| Geographic ID: | S6205-00-05019-0 | Agent Code: | |
| Type: | Real | | |
| Tax Area: | 780 - APPRAISER-S Whid Schl Dist, Special District, improved & less than 1 acre | Land Use Code | 11 |
| Open Space: | N | DFL | N |
| Historic Property: | N | Remodel Property: | N |
| Multi-Family Redevelopment: | N | | |
| Township: | | Section: | |
| Range: | |
Location |
| Address: | 4888 MAGELLAN DR FREELAND, WA 98249 | Mapsco: | |
| Neighborhood: | Cycle 3 | Map ID: | 300 |
| Neighborhood CD: | 3 |
Owner |
| Name: | HORNING, RODNEY P | Owner ID: | 95952 |
| Mailing Address: | 287 ALOHA PLACE COUPEVILLE, WA 98239-4405 | % Ownership: | 100.0000000000% |
| | | Exemptions: | |
Taxes and Assessment Details
Values
| (+) Improvement Homesite Value: | + | $0 | |
| (+) Improvement Non-Homesite Value: | + | $77,336 | |
| (+) Land Homesite Value: | + | $0 | |
| (+) Land Non-Homesite Value: | + | $390,000 | |
| (+) Curr Use (HS): | + | $0 | $0 |
| (+) Curr Use (NHS): | + | $0 | $0 |
| | | -------------------------- | |
| (=) Market Value: | = | $467,336 | |
| (–) Productivity Loss: | – | $0 | |
| | | -------------------------- | |
| (=) Subtotal: | = | $467,336 | |
| (+) Senior Appraised Value: | + | $0 | |
| (+) Non-Senior Appraised Value: | + | $467,336 | |
| | | -------------------------- | |
| (=) Total Appraised Value: | = | $467,336 | |
| (–) Senior Exemption Loss: | – | $0 | |
| (–) Exemption Loss: | – | $0 | |
| | | -------------------------- | |
| (=) Taxable Value: | = | $467,336 | |
Taxing Jurisdiction
| Owner: | HORNING, RODNEY P | | |
| % Ownership: | 100.0000000000% | | |
| Total Value: | $467,336 | | |
| Tax Area: | 780 - APPRAISER-S Whid Schl Dist, Special District, improved & less than 1 acre |
| CF | Conservation Futures | 0.0316035091 | $467,336 | $467,336 | $14.77 | | |
| FIRE3 | Fire & Rescue Dist #3 S Whidbey GEN | 1.2004855531 | $467,336 | $467,336 | $561.03 | | |
| HOBOND | Hospital BOND | 0.1910887512 | $467,336 | $467,336 | $89.30 | | |
| HOGEN | Hospital GEN | 0.3902502903 | $467,336 | $467,336 | $182.38 | | |
| CE | County Current Expense | 0.3708482477 | $467,336 | $467,336 | $173.31 | | |
| CR | County Roads | 0.4584763726 | $467,336 | $467,336 | $214.26 | | |
| ISLANDEMS | Hospital GEN (EMS) | 0.5000000000 | $467,336 | $467,336 | $233.67 | | |
| LIB | Library Sno-Isle GEN | 0.3153421757 | $467,336 | $467,336 | $147.37 | | |
| PORTWHID | Port of S Whidbey GEN | 0.1094540357 | $467,336 | $467,336 | $51.15 | | |
| SCH206BOND | School 206 BOND | 0.3161759235 | $467,336 | $467,336 | $147.76 | | |
| SCH206MO | School 206 Enrichment | 0.4547169547 | $467,336 | $467,336 | $212.51 | | |
| ST | State School | 1.3035497053 | $467,336 | $467,336 | $609.20 | | |
| ST2 | State School Part 2 | 0.8169543533 | $467,336 | $467,336 | $381.79 | | |
| SWHIDPRBD | P & R S Whidbey BOND | 0.0152817568 | $467,336 | $467,336 | $7.14 | | |
| SWHIDPRBD2 | P & R S Whidbey BOND2 | 0.0138911264 | $467,336 | $467,336 | $6.49 | | |
| SWHIDPRMT | P & R S Whidbey GEN | 0.2053334452 | $467,336 | $467,336 | $95.96 | | |
| | Total Tax Rate: | 6.6934522006 | | | | | |
| | | | | Taxes w/Current Exemptions: | $3,128.09 | | |
| | | | | Taxes w/o Exemptions: | $3,128.09 | | |
Improvement / Building
| Improvement #1: | RESIDENTIAL | State Code: | Y | 612.0 sqft | Value: | $77,336 |
| Bathrooms: | 1 | Bedrooms: | 2 | | Ceiling: | DRYWALL PAINTED | Exterior Wall/Cover: | WOOD SIDING | | Floor Covering: | CARPET 100% | Floor Structure: | WOOD W/SUBFLOOR | | Foundation: | PIERS/CONCRETE | Heating: | BASEBOARD ELECTRIC | | Interior Finish: | DRYWALL PAINT | Plumbing Fixture Cnt: | 9 | | Roof Slope: | 5" IN 12" | Roof Structure/Cover: | CJ ASPHALT |
|
| | Type | Description | Class CD | Sub Class CD | Year Built | Area |
| | BAS | BASE/MAIN FLOOR | 3 | 0 | 1953 | 612.0 |
| | OWP | OPEN WOOD PORCH W/STEPS | 3 | 0 | 1953 | 356.0 |
| | DGR | DETACHED GARAGE | 3 | 0 | 1953 | 384.0 |
Sketch
Property Image
Land
| 1 | 12 | SQ (00000-06000) | 0.0000 | 0.00 | 0.00 | 0.00 | 1.00 | $390,000 | $0 |
Roll Value History
| 2026 | N/A | N/A | N/A | N/A | N/A |
| 2025 | $77,336 | $390,000 | $0 | $467,336 | $467,336 |
| 2024 | $80,717 | $340,000 | $0 | $420,717 | $420,717 |
| 2023 | $82,673 | $340,000 | $0 | $422,673 | $422,673 |
| 2022 | $76,632 | $290,000 | $0 | $366,632 | $366,632 |
| 2021 | $68,176 | $240,000 | $0 | $308,176 | $308,176 |
| 2020 | $66,474 | $170,000 | $0 | $236,474 | $236,474 |
| 2019 | $48,132 | $130,000 | $0 | $178,132 | $178,132 |
| 2018 | $44,740 | $130,000 | $0 | $174,740 | $174,740 |
| 2017 | $45,116 | $120,000 | $0 | $165,116 | $165,116 |
| 2016 | $45,867 | $100,000 | $0 | $145,867 | $145,867 |
| 2015 | $46,617 | $100,000 | $0 | $146,617 | $146,617 |
| 2014 | $47,368 | $85,000 | $0 | $132,368 | $132,368 |
| 2013 | $48,825 | $85,000 | $0 | $133,825 | $133,825 |
| 2012 | $49,575 | $85,000 | $0 | $134,575 | $134,575 |
| 2011 | $50,326 | $100,000 | $0 | $150,326 | $150,326 |
| 2010 | $53,513 | $100,000 | $0 | $153,513 | $153,513 |
| 2009 | $55,057 | $125,000 | $0 | $180,057 | $180,057 |
| 2008 | $56,027 | $125,000 | $0 | $181,027 | $181,027 |
| 2007 | $56,999 | $125,000 | $0 | $181,999 | $181,999 |
Deed and Sales History
| 1 | 06/01/1992 | WD | Warranty Deed | SCHNEIDER, LAWRENCE K | HORNING, RODNEY P | | | $89,000.00 | 22195 | 92010581 |
| 2 | 11/01/1985 | OTHER | Other - Misc. Documents | SCHNEIDER, LAWRENCE K | SCHNEIDER, LAWRENCE K | | | $0.00 | 61366 | 85011008 |
| 3 | 07/01/1979 | EXECUTORD | Executor Deed | GARDNER, EARL H | SCHNEIDER, LAWRENCE K | | | $25,000.00 | 93711 | 356389 |
| 4 | 01/01/1900 | OTHER | Other - Misc. Documents | Unknown | GARDNER, EARL H | | | $0.00 | 0 | 0 |
Payout Agreement
| No payout information available.. |