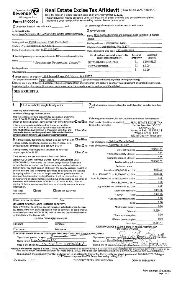
Property
Account |
| Property ID: | 201258 | Abbreviated Legal Description: | BUSH PT SUBLOT 12 BLK 7: S 1/2 OF E1/2 OF S152' OF W286' OF BLK 7 SUBJ TO EZ |
| Geographic ID: | S6205-00-07012-0 | Agent Code: | |
| Type: | Real | | |
| Tax Area: | 780 - APPRAISER-S Whid Schl Dist, Special District, improved & less than 1 acre | Land Use Code | 11 |
| Open Space: | N | DFL | N |
| Historic Property: | N | Remodel Property: | N |
| Multi-Family Redevelopment: | N | | |
| Township: | | Section: | |
| Range: | |
Location |
| Address: | 4940 THISTLE LN FREELAND, WA 98249 | Mapsco: | |
| Neighborhood: | Cycle 3 | Map ID: | 300 |
| Neighborhood CD: | 3 |
Owner |
| Name: | JOHNSON, DOUGLAS | Owner ID: | 304136 |
| Mailing Address: | CONSTANCE JOHNSON 4940 THISTLE LN FREELAND, WA 98249 | % Ownership: | 100.0000000000% |
| | | Exemptions: | |
Taxes and Assessment Details
Values
| (+) Improvement Homesite Value: | + | $0 | |
| (+) Improvement Non-Homesite Value: | + | $133,874 | |
| (+) Land Homesite Value: | + | $0 | |
| (+) Land Non-Homesite Value: | + | $390,000 | |
| (+) Curr Use (HS): | + | $0 | $0 |
| (+) Curr Use (NHS): | + | $0 | $0 |
| | | -------------------------- | |
| (=) Market Value: | = | $523,874 | |
| (–) Productivity Loss: | – | $0 | |
| | | -------------------------- | |
| (=) Subtotal: | = | $523,874 | |
| (+) Senior Appraised Value: | + | $0 | |
| (+) Non-Senior Appraised Value: | + | $523,874 | |
| | | -------------------------- | |
| (=) Total Appraised Value: | = | $523,874 | |
| (–) Senior Exemption Loss: | – | $0 | |
| (–) Exemption Loss: | – | $0 | |
| | | -------------------------- | |
| (=) Taxable Value: | = | $523,874 | |
Taxing Jurisdiction
| Owner: | JOHNSON, DOUGLAS | | |
| % Ownership: | 100.0000000000% | | |
| Total Value: | $523,874 | | |
| Tax Area: | 780 - APPRAISER-S Whid Schl Dist, Special District, improved & less than 1 acre |
| CF | Conservation Futures | 0.0316035091 | $523,874 | $523,874 | $16.56 | | |
| FIRE3 | Fire & Rescue Dist #3 S Whidbey GEN | 1.2004855531 | $523,874 | $523,874 | $628.90 | | |
| HOBOND | Hospital BOND | 0.1910887512 | $523,874 | $523,874 | $100.11 | | |
| HOGEN | Hospital GEN | 0.3902502903 | $523,874 | $523,874 | $204.44 | | |
| CE | County Current Expense | 0.3708482477 | $523,874 | $523,874 | $194.28 | | |
| CR | County Roads | 0.4584763726 | $523,874 | $523,874 | $240.18 | | |
| ISLANDEMS | Hospital GEN (EMS) | 0.5000000000 | $523,874 | $523,874 | $261.94 | | |
| LIB | Library Sno-Isle GEN | 0.3153421757 | $523,874 | $523,874 | $165.20 | | |
| PORTWHID | Port of S Whidbey GEN | 0.1094540357 | $523,874 | $523,874 | $57.34 | | |
| SCH206BOND | School 206 BOND | 0.3161759235 | $523,874 | $523,874 | $165.64 | | |
| SCH206MO | School 206 Enrichment | 0.4547169547 | $523,874 | $523,874 | $238.21 | | |
| ST | State School | 1.3035497053 | $523,874 | $523,874 | $682.90 | | |
| ST2 | State School Part 2 | 0.8169543533 | $523,874 | $523,874 | $427.98 | | |
| SWHIDPRBD | P & R S Whidbey BOND | 0.0152817568 | $523,874 | $523,874 | $8.01 | | |
| SWHIDPRBD2 | P & R S Whidbey BOND2 | 0.0138911264 | $523,874 | $523,874 | $7.28 | | |
| SWHIDPRMT | P & R S Whidbey GEN | 0.2053334452 | $523,874 | $523,874 | $107.57 | | |
| | Total Tax Rate: | 6.6934522006 | | | | | |
| | | | | Taxes w/Current Exemptions: | $3,506.54 | | |
| | | | | Taxes w/o Exemptions: | $3,506.54 | | |
Improvement / Building
| Improvement #1: | MANUFACTURED HOME | State Code: | Y | 1499.0 sqft | Value: | $133,874 |
| Bathrooms: | 0 | Bedrooms: | 0 | | Ceiling: | PLASTER PAINTED | Cooling: | EVAP NO DUCT | | Exterior Wall/Cover: | VINYL | Floor Covering: | CARPET 100% | | Floor Structure: | SLAB ON GRADE | Foundation: | SLAB | | Heating: | FHA ELECTRIC | Interior Finish: | PLASTER | | Plumbing Fixture Cnt: | 1 | Roof Slope: | FLAT | | Roof Structure/Cover: | CJ ALUMINIUM HEAVY |   |   |
|
| | Type | Description | Class CD | Sub Class CD | Year Built | Area |
| | BAS | BASE/MAIN FLOOR | 5 | 0 | 1984 | 1499.0 |
| | OWP | OPEN WOOD PORCH W/STEPS | 5 | 0 | 1984 | 637.0 |
| | AGR | ATTACHED GARAGE | 5 | 0 | 1984 | 468.0 |
Sketch
Property Image
Land
| 1 | 14 | SQ (08001-12000) | 0.0000 | 0.00 | 0.00 | 0.00 | 1.00 | $390,000 | $0 |
Roll Value History
| 2026 | N/A | N/A | N/A | N/A | N/A |
| 2025 | $133,874 | $390,000 | $0 | $523,874 | $523,874 |
| 2024 | $137,691 | $340,000 | $0 | $477,691 | $477,691 |
| 2023 | $124,571 | $340,000 | $0 | $464,571 | $464,571 |
| 2022 | $104,894 | $290,000 | $0 | $394,894 | $394,894 |
| 2021 | $95,349 | $240,000 | $0 | $335,349 | $335,349 |
| 2020 | $95,442 | $170,000 | $0 | $265,442 | $265,442 |
| 2019 | $79,663 | $200,000 | $0 | $279,663 | $279,663 |
| 2018 | $54,286 | $150,000 | $0 | $204,286 | $204,286 |
| 2017 | $56,021 | $150,000 | $0 | $206,021 | $206,021 |
| 2016 | $57,756 | $150,000 | $0 | $207,756 | $207,756 |
| 2015 | $59,491 | $150,000 | $0 | $209,491 | $209,491 |
| 2014 | $61,226 | $150,000 | $0 | $211,226 | $211,226 |
| 2013 | $68,412 | $119,000 | $0 | $187,412 | $187,412 |
| 2012 | $70,074 | $119,000 | $0 | $189,074 | $189,074 |
| 2011 | $71,737 | $140,000 | $0 | $211,737 | $211,737 |
| 2010 | $82,451 | $140,000 | $0 | $222,451 | $222,451 |
| 2009 | $85,481 | $190,000 | $0 | $275,481 | $275,481 |
| 2008 | $93,465 | $189,762 | $0 | $283,227 | $283,227 |
| 2007 | $83,214 | $190,000 | $0 | $273,214 | $273,214 |
Deed and Sales History
| 1 | 05/03/2022 | WD | Warranty Deed | BULGER, WAYNE | JOHNSON, DOUGLAS | | | $639,000.00 | 53012 | 4544776 |
| 2 | 11/09/2018 | WD | Warranty Deed | FLEM TRUSTEE, FRANK | BULGER, WAYNE | | | $400,000.00 | 36763 | 4455532 |
| 3 | 01/18/2017 | QCD | Quit Claim Deed | FLEM, FRANK B | FLEM TRUSTEE, FRANK | | | $0.00 | 28494 | 4419086 |
| 4 | 11/11/2013 | QCD | Quit Claim Deed | THORPE, TOVE | FLEM, FRANK B | | | $0.00 | 15616 | 4360771 |
| 5 | 06/14/2004 | WD | Warranty Deed | ENSEY, DEBRA A | THORPE, TOVE | | | $277,000.00 | 42594 | 4103814 |
| 6 | 10/04/2001 | QCD | Quit Claim Deed | COOK, JESS E | ENSEY, DEBRA A | | | $0.00 | 14017 | 4000214 |
| 7 | 10/01/1983 | OTHER | Other - Misc. Documents | COOK, JESS E | COOK, JESS E | | | $46,600.00 | 11111111 | 0 |
| 8 | 06/01/1981 | EXECUTORD | Executor Deed | SCHUMACHER, BENNO M | COOK, JESS E | | | $27,500.00 | 11804 | 384231 |
| 9 | 01/01/1900 | OTHER | Other - Misc. Documents | Unknown | SCHUMACHER, BENNO M | | | $0.00 | 0 | 0 |
Payout Agreement
| No payout information available.. |