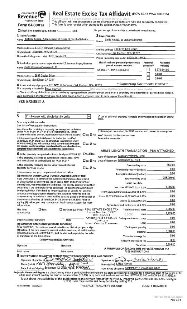
Property
Account |
| Property ID: | 201365 | Abbreviated Legal Description: | BUSH PT SUBLOT 11 BLK 8 N31' OF E72' OF W192' OF BLK 7, ALSO S 121' OF E72' OF W192' OF BLK 8 |
| Geographic ID: | S6205-00-08011-0 | Agent Code: | |
| Type: | Real | | |
| Tax Area: | 780 - APPRAISER-S Whid Schl Dist, Special District, improved & less than 1 acre | Land Use Code | 11 |
| Open Space: | N | DFL | N |
| Historic Property: | N | Remodel Property: | N |
| Multi-Family Redevelopment: | N | | |
| Township: | | Section: | |
| Range: | |
Location |
| Address: | 271 KAI RD FREELAND, WA 98249 | Mapsco: | |
| Neighborhood: | Cycle 3 | Map ID: | 300 |
| Neighborhood CD: | 3 |
Owner |
| Name: | TABBAL FAMILY LIVING TRUST | Owner ID: | 307830 |
| Mailing Address: | C/O JOHN C TABBAL AND JANICE R TABBAL TTEE 271 KAI RD FREELAND, WA 98249 | % Ownership: | 100.0000000000% |
| | | Exemptions: | |
Taxes and Assessment Details
Values
| (+) Improvement Homesite Value: | + | $0 | |
| (+) Improvement Non-Homesite Value: | + | $386,158 | |
| (+) Land Homesite Value: | + | $0 | |
| (+) Land Non-Homesite Value: | + | $390,000 | |
| (+) Curr Use (HS): | + | $0 | $0 |
| (+) Curr Use (NHS): | + | $0 | $0 |
| | | -------------------------- | |
| (=) Market Value: | = | $776,158 | |
| (–) Productivity Loss: | – | $0 | |
| | | -------------------------- | |
| (=) Subtotal: | = | $776,158 | |
| (+) Senior Appraised Value: | + | $0 | |
| (+) Non-Senior Appraised Value: | + | $776,158 | |
| | | -------------------------- | |
| (=) Total Appraised Value: | = | $776,158 | |
| (–) Senior Exemption Loss: | – | $0 | |
| (–) Exemption Loss: | – | $0 | |
| | | -------------------------- | |
| (=) Taxable Value: | = | $776,158 | |
Taxing Jurisdiction
| Owner: | TABBAL FAMILY LIVING TRUST | | |
| % Ownership: | 100.0000000000% | | |
| Total Value: | $776,158 | | |
| Tax Area: | 780 - APPRAISER-S Whid Schl Dist, Special District, improved & less than 1 acre |
| CF | Conservation Futures | 0.0316035091 | $776,158 | $776,158 | $24.53 | | |
| FIRE3 | Fire & Rescue Dist #3 S Whidbey GEN | 1.2004855531 | $776,158 | $776,158 | $931.77 | | |
| HOBOND | Hospital BOND | 0.1910887512 | $776,158 | $776,158 | $148.32 | | |
| HOGEN | Hospital GEN | 0.3902502903 | $776,158 | $776,158 | $302.90 | | |
| CE | County Current Expense | 0.3708482477 | $776,158 | $776,158 | $287.84 | | |
| CR | County Roads | 0.4584763726 | $776,158 | $776,158 | $355.85 | | |
| ISLANDEMS | Hospital GEN (EMS) | 0.5000000000 | $776,158 | $776,158 | $388.08 | | |
| LIB | Library Sno-Isle GEN | 0.3153421757 | $776,158 | $776,158 | $244.76 | | |
| PORTWHID | Port of S Whidbey GEN | 0.1094540357 | $776,158 | $776,158 | $84.95 | | |
| SCH206BOND | School 206 BOND | 0.3161759235 | $776,158 | $776,158 | $245.40 | | |
| SCH206MO | School 206 Enrichment | 0.4547169547 | $776,158 | $776,158 | $352.93 | | |
| ST | State School | 1.3035497053 | $776,158 | $776,158 | $1,011.76 | | |
| ST2 | State School Part 2 | 0.8169543533 | $776,158 | $776,158 | $634.09 | | |
| SWHIDPRBD | P & R S Whidbey BOND | 0.0152817568 | $776,158 | $776,158 | $11.86 | | |
| SWHIDPRBD2 | P & R S Whidbey BOND2 | 0.0138911264 | $776,158 | $776,158 | $10.78 | | |
| SWHIDPRMT | P & R S Whidbey GEN | 0.2053334452 | $776,158 | $776,158 | $159.37 | | |
| | Total Tax Rate: | 6.6934522006 | | | | | |
| | | | | Taxes w/Current Exemptions: | $5,195.19 | | |
| | | | | Taxes w/o Exemptions: | $5,195.19 | | |
Improvement / Building
| Improvement #1: | RESIDENTIAL | State Code: | Y | 1833.6 sqft | Value: | $386,158 |
| Bathrooms: | 2 | Bedrooms: | 2 | | Ceiling: | DRYWALL PAINTED | Exterior Wall/Cover: | CEMENT FIBER | | Floor Covering: | HARDWOOD/CARP 60-40 | Floor Structure: | WOOD W/SUBFLOOR | | Foundation: | CONCRETE | Heating: | FHA GAS | | Interior Finish: | DRYWALL PAINT | Plumbing Fixture Cnt: | 10 | | Roof Slope: | 6" IN 12" | Roof Structure/Cover: | CJ ASPHALT |
|
| | Type | Description | Class CD | Sub Class CD | Year Built | Area |
| | BAS | BASE/MAIN FLOOR | 3 | 0 | 2004 | 1833.6 |
| | UB8 | BASEMENT UNFINISHED 8" | 3 | 0 | 2004 | 704.0 |
| | BIG | BUILT IN GARAGE | 3 | 0 | 2004 | 1024.0 |
| | OWP | OPEN WOOD PORCH W/STEPS | 3 | 0 | 2004 | 176.0 |
| | OWP | OPEN WOOD PORCH W/STEPS | 3 | 0 | 2004 | 70.0 |
| | OWC | OPEN WOOD PORCH W/STEPS/ROOF/C | 3 | 0 | 2004 | 480.0 |
| | OWC | OPEN WOOD PORCH W/STEPS/ROOF/C | 3 | 0 | 2004 | 63.0 |
Sketch
Property Image
Land
| 1 | 14 | SQ (08001-12000) | 0.0000 | 0.00 | 0.00 | 0.00 | 1.00 | $390,000 | $0 |
Roll Value History
| 2026 | N/A | N/A | N/A | N/A | N/A |
| 2025 | $386,158 | $390,000 | $0 | $776,158 | $776,158 |
| 2024 | $390,910 | $340,000 | $0 | $730,910 | $730,910 |
| 2023 | $395,663 | $340,000 | $0 | $735,663 | $735,663 |
| 2022 | $362,574 | $290,000 | $0 | $652,574 | $652,574 |
| 2021 | $319,036 | $240,000 | $0 | $559,036 | $559,036 |
| 2020 | $311,039 | $170,000 | $0 | $481,039 | $481,039 |
| 2019 | $248,052 | $200,000 | $0 | $448,052 | $448,052 |
| 2018 | $248,777 | $150,000 | $0 | $398,777 | $398,777 |
| 2017 | $250,180 | $150,000 | $0 | $400,180 | $400,180 |
| 2016 | $253,089 | $150,000 | $0 | $403,089 | $403,089 |
| 2015 | $255,999 | $150,000 | $0 | $405,999 | $405,999 |
| 2014 | $258,907 | $150,000 | $0 | $408,907 | $408,907 |
| 2013 | $267,475 | $119,000 | $0 | $386,475 | $386,475 |
| 2012 | $270,419 | $119,000 | $0 | $389,419 | $389,419 |
| 2011 | $273,359 | $140,000 | $0 | $413,359 | $413,359 |
| 2010 | $281,524 | $140,000 | $0 | $421,524 | $421,524 |
| 2009 | $296,427 | $185,000 | $0 | $481,427 | $481,427 |
| 2008 | $296,812 | $190,000 | $0 | $486,812 | $486,812 |
| 2007 | $296,831 | $190,000 | $0 | $486,831 | $486,831 |
Deed and Sales History
| 1 | 10/20/2022 | QCD | Quit Claim Deed | TABBAL, JOHN C | TABBAL FAMILY LIVING TRUST | | | $0.00 | 56005 | 4557309 |
| 2 | 12/03/2003 | 5 | DNU - Marriage License/Name Change | TABBAL, JANICE R | TABBAL, JOHN C | | | $0.00 | 35511 | 4085376 |
| 3 | 11/16/2000 | OTHER | Other - Misc. Documents | COX, VERL M | TABBAL, JANICE R | | | $0.00 | 68843 | 0 |
| 4 | 08/01/1987 | OTHER | Other - Misc. Documents | COX, VERL M | COX, VERL M | | | $0.00 | 72613 | 0 |
| 5 | 10/01/1986 | QCD | Quit Claim Deed | COX, VERL M | COX, VERL M | | | $0.00 | 63054 | 86013800 |
| 6 | 04/01/1978 | PACD | Purchaser's Assignment | COX, CALVIN E | COX, VERL M | | | $0.00 | 59337 | 0 |
| 7 | 09/01/1974 | EXECUTORD | Executor Deed | FARRAR, CONN | COX, CALVIN E | | | $0.00 | 52320 | 0 |
| 8 | 08/01/1969 | EXECUTORD | Executor Deed | RUSSELL, BETTY J | FARRAR, CONN | | | $0.00 | 36326 | 0 |
| 9 | 01/01/1900 | OTHER | Other - Misc. Documents | Unknown | RUSSELL, BETTY J | | | $0.00 | 0 | 0 |
Payout Agreement
| No payout information available.. |