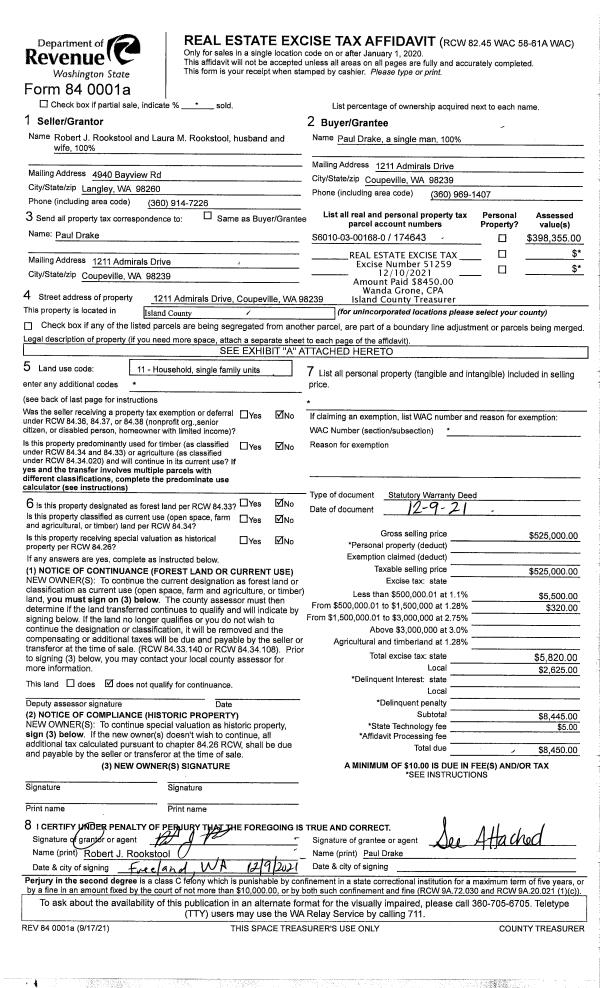
Property
Account |
| Property ID: | 201855 | Abbreviated Legal Description: | Bush Point,s Lot 001,s Blk 14;s LOT A LOT COMB AF#4466997s |
| Geographic ID: | S6205-00-14001-0 | Agent Code: | |
| Type: | Real | | |
| Tax Area: | 780 - APPRAISER-S Whid Schl Dist, Special District, improved & less than 1 acre | Land Use Code | 11 |
| Open Space: | N | DFL | N |
| Historic Property: | N | Remodel Property: | N |
| Multi-Family Redevelopment: | N | | |
| Township: | | Section: | |
| Range: | |
Location |
| Address: | 340 HIGH ST FREELAND, WA 98249 | Mapsco: | |
| Neighborhood: | Cycle 3 | Map ID: | 300 |
| Neighborhood CD: | 3 |
Owner |
| Name: | LOCKE TTEE, SCOTT RANDALL | Owner ID: | 315303 |
| Mailing Address: | LORI ANN HISAYASU TTEE 340 HIGH ST FREELAND, WA 98249 | % Ownership: | 100.0000000000% |
| | | Exemptions: | |
Taxes and Assessment Details
Values
| (+) Improvement Homesite Value: | + | $0 | |
| (+) Improvement Non-Homesite Value: | + | $478,477 | |
| (+) Land Homesite Value: | + | $0 | |
| (+) Land Non-Homesite Value: | + | $420,000 | |
| (+) Curr Use (HS): | + | $0 | $0 |
| (+) Curr Use (NHS): | + | $0 | $0 |
| | | -------------------------- | |
| (=) Market Value: | = | $898,477 | |
| (–) Productivity Loss: | – | $0 | |
| | | -------------------------- | |
| (=) Subtotal: | = | $898,477 | |
| (+) Senior Appraised Value: | + | $0 | |
| (+) Non-Senior Appraised Value: | + | $898,477 | |
| | | -------------------------- | |
| (=) Total Appraised Value: | = | $898,477 | |
| (–) Senior Exemption Loss: | – | $0 | |
| (–) Exemption Loss: | – | $0 | |
| | | -------------------------- | |
| (=) Taxable Value: | = | $898,477 | |
Taxing Jurisdiction
| Owner: | LOCKE TTEE, SCOTT RANDALL | | |
| % Ownership: | 100.0000000000% | | |
| Total Value: | $898,477 | | |
| Tax Area: | 780 - APPRAISER-S Whid Schl Dist, Special District, improved & less than 1 acre |
| CF | Conservation Futures | 0.0316035091 | $898,477 | $898,477 | $28.40 | | |
| FIRE3 | Fire & Rescue Dist #3 S Whidbey GEN | 1.2004855531 | $898,477 | $898,477 | $1,078.61 | | |
| HOBOND | Hospital BOND | 0.1910887512 | $898,477 | $898,477 | $171.69 | | |
| HOGEN | Hospital GEN | 0.3902502903 | $898,477 | $898,477 | $350.63 | | |
| CE | County Current Expense | 0.3708482477 | $898,477 | $898,477 | $333.20 | | |
| CR | County Roads | 0.4584763726 | $898,477 | $898,477 | $411.93 | | |
| ISLANDEMS | Hospital GEN (EMS) | 0.5000000000 | $898,477 | $898,477 | $449.24 | | |
| LIB | Library Sno-Isle GEN | 0.3153421757 | $898,477 | $898,477 | $283.33 | | |
| PORTWHID | Port of S Whidbey GEN | 0.1094540357 | $898,477 | $898,477 | $98.34 | | |
| SCH206BOND | School 206 BOND | 0.3161759235 | $898,477 | $898,477 | $284.08 | | |
| SCH206MO | School 206 Enrichment | 0.4547169547 | $898,477 | $898,477 | $408.55 | | |
| ST | State School | 1.3035497053 | $898,477 | $898,477 | $1,171.21 | | |
| ST2 | State School Part 2 | 0.8169543533 | $898,477 | $898,477 | $734.01 | | |
| SWHIDPRBD | P & R S Whidbey BOND | 0.0152817568 | $898,477 | $898,477 | $13.73 | | |
| SWHIDPRBD2 | P & R S Whidbey BOND2 | 0.0138911264 | $898,477 | $898,477 | $12.48 | | |
| SWHIDPRMT | P & R S Whidbey GEN | 0.2053334452 | $898,477 | $898,477 | $184.49 | | |
| | Total Tax Rate: | 6.6934522006 | | | | | |
| | | | | Taxes w/Current Exemptions: | $6,013.92 | | |
| | | | | Taxes w/o Exemptions: | $6,013.92 | | |
Improvement / Building
| Improvement #1: | RESIDENTIAL | State Code: | Y | 1304.0 sqft | Value: | $478,477 |
| Bathrooms: | 2 | Bedrooms: | 2 | | Ceiling: | TONGUE & GROOVE | Cooling: | HEAT PUMP/CONV/V | | Exterior Wall/Cover: | SHINGLE | Floor Covering: | HARDWOOD 100% | | Floor Structure: | WOOD W/SUBFLOOR | Foundation: | CONCRETE | | Interior Finish: | DRYWALL PAINT | Plumbing Fixture Cnt: | 10 | | Roof Slope: | 8" IN 12" | Roof Structure/Cover: | CJ ASPHALT |
|
| | Type | Description | Class CD | Sub Class CD | Year Built | Area |
| | BAS | BASE/MAIN FLOOR | 4 | 0 | 2003 | 1304.0 |
| | AGR | ATTACHED GARAGE | 4 | 0 | 2003 | 346.0 |
| | OWP | OPEN WOOD PORCH W/STEPS | 4 | 0 | 2003 | 279.0 |
| | OWC | OPEN WOOD PORCH W/STEPS/ROOF/C | 4 | 0 | 2003 | 415.0 |
| | ENP | ENCLOSED PORCH | 4 | 0 | 2003 | 544.0 |
| | UB1 | BASEMENT UNFINISHED 10" | 4 | 0 | 2003 | 544.0 |
| | OP4 | OPEN PORCH W/CEILING-ROOF | 4 | 0 | 2003 | 192.0 |
| | OP4 | OPEN PORCH W/CEILING-ROOF | 4 | 0 | 2003 | 252.0 |
Sketch
Property Image
Land
| 1 | 16 | AC (00.51-01.00) | 0.6540 | 28488.24 | 0.00 | 0.00 | 1.00 | $420,000 | $0 |
Roll Value History
| 2026 | N/A | N/A | N/A | N/A | N/A |
| 2025 | $478,477 | $420,000 | $0 | $898,477 | $898,477 |
| 2024 | $484,225 | $390,000 | $0 | $874,225 | $874,225 |
| 2023 | $489,974 | $390,000 | $0 | $879,974 | $879,974 |
| 2022 | $448,885 | $350,000 | $0 | $798,885 | $798,885 |
| 2021 | $281,050 | $250,000 | $0 | $531,050 | $531,050 |
| 2020 | $258,858 | $250,000 | $0 | $508,858 | $508,858 |
| 2019 | $176,523 | $200,000 | $0 | $376,523 | $376,523 |
| 2018 | $177,035 | $150,000 | $0 | $327,035 | $327,035 |
| 2017 | $178,058 | $150,000 | $0 | $328,058 | $328,058 |
| 2016 | $180,105 | $150,000 | $0 | $330,105 | $330,105 |
| 2015 | $182,152 | $150,000 | $0 | $332,152 | $332,152 |
| 2014 | $184,199 | $150,000 | $0 | $334,199 | $334,199 |
| 2013 | $171,462 | $153,000 | $0 | $324,462 | $324,462 |
| 2012 | $173,390 | $153,000 | $0 | $326,390 | $326,390 |
| 2011 | $175,316 | $180,000 | $0 | $355,316 | $355,316 |
| 2010 | $179,393 | $180,000 | $0 | $359,393 | $359,393 |
| 2009 | $186,932 | $190,000 | $0 | $376,932 | $376,932 |
| 2008 | $234,182 | $150,000 | $0 | $384,182 | $384,182 |
| 2007 | $234,311 | $150,000 | $0 | $384,311 | $384,311 |
Deed and Sales History
| 1 | 01/21/2025 | QCD | Quit Claim Deed | LOCKE, SCOTT RANDALL | LOCKE TTEE, SCOTT RANDALL | | | $10.00 | 62461 | 4581820 |
| 2 | 03/20/2013 | WD | Warranty Deed | CIOCCHETTI, WILLIAM M | LOCKE, SCOTT RANDALL | | | $420,000.00 | 10777 | 4336148 |
| 3 | 09/25/2000 | OTHER | Other - Misc. Documents | CIOCCHETTI, WILLIAM M | CIOCCHETTI, WILLIAM M | | | $0.00 | 3671 | 0 |
| 4 | 09/14/2000 | WD | Warranty Deed | LEAVITT, ELSA B | CIOCCHETTI, WILLIAM M | | | $103,000.00 | 3668 | 20016830 |
| 5 | 02/01/1990 | OTHER | Other - Misc. Documents | FERRIES, JAMES R | LEAVITT, ELSA B | | | $10,800.00 | 1054 | 0 |
| 6 | 02/01/1990 | WD | Warranty Deed | LEAVITT, ELSA B | LEAVITT, ELSA B | | | $49,200.00 | 1055 | 90003461 |
| 7 | 07/01/1985 | OTHER | Other - Misc. Documents | FERRIES, JAMES R | FERRIES, JAMES R | | | $4,752.00 | 51976 | 0 |
| 8 | 03/01/1985 | WD | Warranty Deed | MAY, MARIANNE | FERRIES, JAMES R | | | $25,248.00 | 50773 | 85003250 |
| 9 | 08/01/1978 | OTHER | Other - Misc. Documents | PULVER, MILTON & | MAY, MARIANNE | | | $0.00 | 83619 | 3371280 |
| 10 | 01/01/1900 | OTHER | Other - Misc. Documents | Unknown | PULVER, MILTON & | | | $0.00 | 0 | 0 |
Payout Agreement
| No payout information available.. |