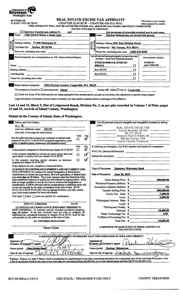
Property
Account |
| Property ID: | 202104 | Abbreviated Legal Description: | BUSH PT BCH LOT 9 INCL ADJ TIDES |
| Geographic ID: | S6210-00-00009-0 | Agent Code: | |
| Type: | Real | | |
| Tax Area: | 710 - APPRAISER-S Whid Schl Dist, outside Langley, improved & 1 acre or less | Land Use Code | 11 |
| Open Space: | N | DFL | N |
| Historic Property: | N | Remodel Property: | N |
| Multi-Family Redevelopment: | N | | |
| Township: | | Section: | |
| Range: | |
Location |
| Address: | 158 LAKE AVE FREELAND, WA 98249 | Mapsco: | |
| Neighborhood: | Cycle 3 | Map ID: | 300 |
| Neighborhood CD: | 3 |
Owner |
| Name: | DOYLE TTEE, WILFRED SCOTT | Owner ID: | 293560 |
| Mailing Address: | PATRICIA S DOYLE, TTEE 158 LAKE AVE FREELAND, WA 98249 | % Ownership: | 100.0000000000% |
| | | Exemptions: | |
Taxes and Assessment Details
Values
| (+) Improvement Homesite Value: | + | $0 | |
| (+) Improvement Non-Homesite Value: | + | $280,534 | |
| (+) Land Homesite Value: | + | $0 | |
| (+) Land Non-Homesite Value: | + | $945,600 | |
| (+) Curr Use (HS): | + | $0 | $0 |
| (+) Curr Use (NHS): | + | $0 | $0 |
| | | -------------------------- | |
| (=) Market Value: | = | $1,226,134 | |
| (–) Productivity Loss: | – | $0 | |
| | | -------------------------- | |
| (=) Subtotal: | = | $1,226,134 | |
| (+) Senior Appraised Value: | + | $0 | |
| (+) Non-Senior Appraised Value: | + | $1,226,134 | |
| | | -------------------------- | |
| (=) Total Appraised Value: | = | $1,226,134 | |
| (–) Senior Exemption Loss: | – | $0 | |
| (–) Exemption Loss: | – | $0 | |
| | | -------------------------- | |
| (=) Taxable Value: | = | $1,226,134 | |
Taxing Jurisdiction
| Owner: | DOYLE TTEE, WILFRED SCOTT | | |
| % Ownership: | 100.0000000000% | | |
| Total Value: | $1,226,134 | | |
| Tax Area: | 710 - APPRAISER-S Whid Schl Dist, outside Langley, improved & 1 acre or less |
| CF | Conservation Futures | 0.0316035091 | $1,226,134 | $1,226,134 | $38.75 | | |
| FIRE3 | Fire & Rescue Dist #3 S Whidbey GEN | 1.2004855531 | $1,226,134 | $1,226,134 | $1,471.96 | | |
| HOBOND | Hospital BOND | 0.1910887512 | $1,226,134 | $1,226,134 | $234.30 | | |
| HOGEN | Hospital GEN | 0.3902502903 | $1,226,134 | $1,226,134 | $478.50 | | |
| CE | County Current Expense | 0.3708482477 | $1,226,134 | $1,226,134 | $454.71 | | |
| CR | County Roads | 0.4584763726 | $1,226,134 | $1,226,134 | $562.15 | | |
| ISLANDEMS | Hospital GEN (EMS) | 0.5000000000 | $1,226,134 | $1,226,134 | $613.07 | | |
| LIB | Library Sno-Isle GEN | 0.3153421757 | $1,226,134 | $1,226,134 | $386.65 | | |
| PORTWHID | Port of S Whidbey GEN | 0.1094540357 | $1,226,134 | $1,226,134 | $134.21 | | |
| SCH206BOND | School 206 BOND | 0.3161759235 | $1,226,134 | $1,226,134 | $387.67 | | |
| SCH206MO | School 206 Enrichment | 0.4547169547 | $1,226,134 | $1,226,134 | $557.54 | | |
| ST | State School | 1.3035497053 | $1,226,134 | $1,226,134 | $1,598.33 | | |
| ST2 | State School Part 2 | 0.8169543533 | $1,226,134 | $1,226,134 | $1,001.70 | | |
| SWHIDPRBD | P & R S Whidbey BOND | 0.0152817568 | $1,226,134 | $1,226,134 | $18.74 | | |
| SWHIDPRBD2 | P & R S Whidbey BOND2 | 0.0138911264 | $1,226,134 | $1,226,134 | $17.03 | | |
| SWHIDPRMT | P & R S Whidbey GEN | 0.2053334452 | $1,226,134 | $1,226,134 | $251.77 | | |
| | Total Tax Rate: | 6.6934522006 | | | | | |
| | | | | Taxes w/Current Exemptions: | $8,207.08 | | |
| | | | | Taxes w/o Exemptions: | $8,207.08 | | |
Improvement / Building
| Improvement #1: | RESIDENTIAL | State Code: | Y | 1734.0 sqft | Value: | $280,534 |
| Bathrooms: | 2 | Bedrooms: | 2 | | Ceiling: | BEAM PAINTED | Exterior Wall/Cover: | CEMENT FIBER | | Floor Covering: | CARPET/VINYL 80-20 | Floor Structure: | WOOD W/SUBFLOOR | | Foundation: | CONCRETE | Heating: | FHA ELECTRIC | | Interior Finish: | DRYWALL PAINT | Plumbing Fixture Cnt: | 9 | | Roof Slope: | 4" IN 12" | Roof Structure/Cover: | BEAM WOOD SHAKES |
|
| | Type | Description | Class CD | Sub Class CD | Year Built | Area |
| | BAS | BASE/MAIN FLOOR | 3 | 0 | 1983 | 1734.0 |
| | AGR | ATTACHED GARAGE | 3 | 0 | 1983 | 360.0 |
| | OWP | OPEN WOOD PORCH W/STEPS | 3 | 0 | 1983 | 660.0 |
Sketch
Property Image
Land
| 1 | LB | LOW BANK | 0.0000 | 0.00 | 60.00 | 0.00 | 1.00 | $945,000 | $0 |
| 2 | 55 | TIDES | 0.0000 | 0.00 | 60.00 | 0.00 | 1.00 | $600 | $0 |
Roll Value History
| 2026 | N/A | N/A | N/A | N/A | N/A |
| 2025 | $280,534 | $945,600 | $0 | $1,226,134 | $1,226,134 |
| 2024 | $279,407 | $945,600 | $0 | $1,225,007 | $1,225,007 |
| 2023 | $283,275 | $945,600 | $0 | $1,228,875 | $1,228,875 |
| 2022 | $260,020 | $900,600 | $0 | $1,160,620 | $1,160,620 |
| 2021 | $229,151 | $750,600 | $0 | $979,751 | $979,751 |
| 2020 | $223,758 | $600,600 | $0 | $824,358 | $824,358 |
| 2019 | $148,901 | $675,600 | $0 | $824,501 | $824,501 |
| 2018 | $149,463 | $600,600 | $0 | $750,063 | $750,063 |
| 2017 | $150,586 | $600,600 | $0 | $751,186 | $751,186 |
| 2016 | $152,834 | $600,600 | $0 | $753,434 | $753,434 |
| 2015 | $155,081 | $600,600 | $0 | $755,681 | $755,681 |
| 2014 | $157,329 | $500,600 | $0 | $657,929 | $657,929 |
| 2013 | $160,305 | $421,458 | $0 | $581,763 | $581,763 |
| 2012 | $162,553 | $421,458 | $0 | $584,011 | $584,011 |
| 2011 | $164,801 | $421,458 | $0 | $586,259 | $586,259 |
| 2010 | $175,186 | $421,458 | $0 | $596,644 | $596,644 |
| 2009 | $180,448 | $603,150 | $0 | $783,598 | $783,598 |
| 2008 | $182,704 | $556,800 | $0 | $739,504 | $739,504 |
| 2007 | $184,416 | $556,380 | $0 | $740,796 | $740,796 |
Deed and Sales History
| 1 | 01/31/2020 | WD | Warranty Deed | DOYLE, W. SCOTT | DOYLE TTEE, WILFRED SCOTT | | | $0.00 | 42197 | 4481812 |
| 2 | 04/30/2019 | QCD | Quit Claim Deed | DOYLE JR, W S | DOYLE, W. SCOTT | | | $0.00 | 38534 | 4463602 |
| 3 | 05/01/1986 | WD | Warranty Deed | SLOANE, BERNARD | DOYLE, W S | | | $190,000.00 | 61283 | 86006060 |
| 4 | 02/01/1983 | PACD | Purchaser's Assignment | ANDERSON, EVANGELINE E | SLOANE, BERNARD | | | $80,000.00 | 30403 | 406045 |
| 5 | 01/01/1900 | OTHER | Other - Misc. Documents | Unknown | ANDERSON, EVANGELINE E | | | $0.00 | 0 | 0 |
Payout Agreement
| No payout information available.. |