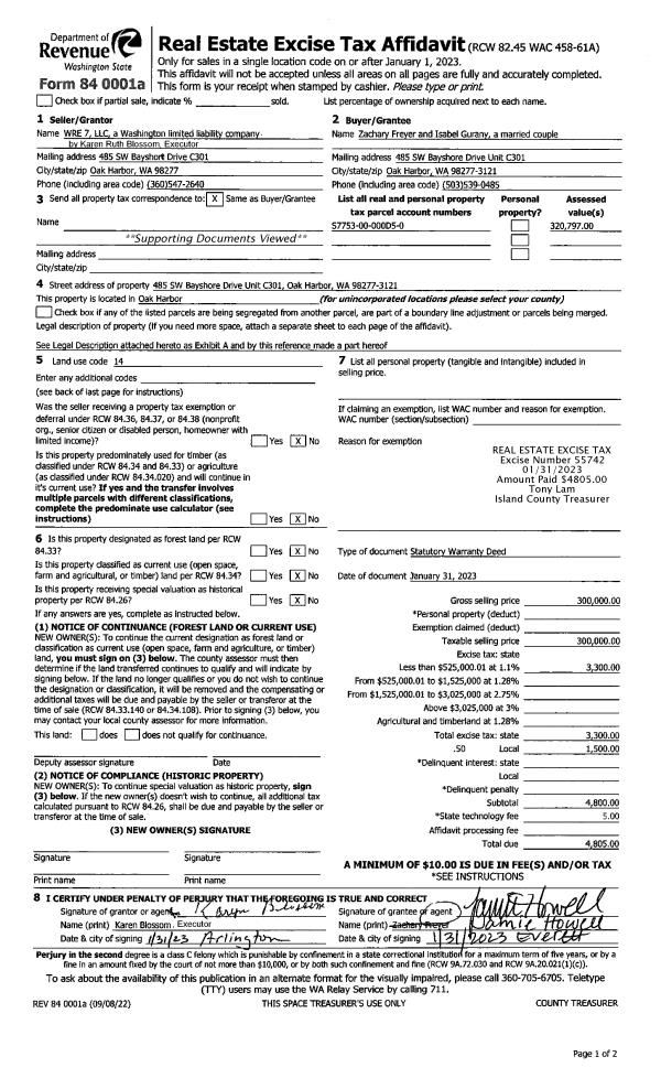
Property
Account |
| Property ID: | 202122 | Abbreviated Legal Description: | BUSH PT BCH LOT 11 INCL 1/6 INT IN COMM BCH & ADJ TIDES |
| Geographic ID: | S6210-00-00011-0 | Agent Code: | |
| Type: | Real | | |
| Tax Area: | 710 - APPRAISER-S Whid Schl Dist, outside Langley, improved & 1 acre or less | Land Use Code | 11 |
| Open Space: | N | DFL | N |
| Historic Property: | N | Remodel Property: | N |
| Multi-Family Redevelopment: | N | | |
| Township: | | Section: | |
| Range: | |
Location |
| Address: | 159 LAKE AVE FREELAND, WA 98249 | Mapsco: | |
| Neighborhood: | Cycle 3 | Map ID: | 300 |
| Neighborhood CD: | 3 |
Owner |
| Name: | O'NEIL, CHARLES R | Owner ID: | 305770 |
| Mailing Address: | FAYE M. O'NEIL 23812 31ST PL W BRIER, WA 98036 | % Ownership: | 100.0000000000% |
| | | Exemptions: | |
Taxes and Assessment Details
Values
| (+) Improvement Homesite Value: | + | $0 | |
| (+) Improvement Non-Homesite Value: | + | $1 | |
| (+) Land Homesite Value: | + | $0 | |
| (+) Land Non-Homesite Value: | + | $125,000 | |
| (+) Curr Use (HS): | + | $0 | $0 |
| (+) Curr Use (NHS): | + | $0 | $0 |
| | | -------------------------- | |
| (=) Market Value: | = | $125,001 | |
| (–) Productivity Loss: | – | $0 | |
| | | -------------------------- | |
| (=) Subtotal: | = | $125,001 | |
| (+) Senior Appraised Value: | + | $0 | |
| (+) Non-Senior Appraised Value: | + | $125,001 | |
| | | -------------------------- | |
| (=) Total Appraised Value: | = | $125,001 | |
| (–) Senior Exemption Loss: | – | $0 | |
| (–) Exemption Loss: | – | $0 | |
| | | -------------------------- | |
| (=) Taxable Value: | = | $125,001 | |
Taxing Jurisdiction
| Owner: | O'NEIL, CHARLES R | | |
| % Ownership: | 100.0000000000% | | |
| Total Value: | $125,001 | | |
| Tax Area: | 710 - APPRAISER-S Whid Schl Dist, outside Langley, improved & 1 acre or less |
| CF | Conservation Futures | 0.0316035091 | $125,001 | $125,001 | $3.95 | | |
| FIRE3 | Fire & Rescue Dist #3 S Whidbey GEN | 1.2004855531 | $125,001 | $125,001 | $150.06 | | |
| HOBOND | Hospital BOND | 0.1910887512 | $125,001 | $125,001 | $23.89 | | |
| HOGEN | Hospital GEN | 0.3902502903 | $125,001 | $125,001 | $48.78 | | |
| CE | County Current Expense | 0.3708482477 | $125,001 | $125,001 | $46.36 | | |
| CR | County Roads | 0.4584763726 | $125,001 | $125,001 | $57.31 | | |
| ISLANDEMS | Hospital GEN (EMS) | 0.5000000000 | $125,001 | $125,001 | $62.50 | | |
| LIB | Library Sno-Isle GEN | 0.3153421757 | $125,001 | $125,001 | $39.42 | | |
| PORTWHID | Port of S Whidbey GEN | 0.1094540357 | $125,001 | $125,001 | $13.68 | | |
| SCH206BOND | School 206 BOND | 0.3161759235 | $125,001 | $125,001 | $39.52 | | |
| SCH206MO | School 206 Enrichment | 0.4547169547 | $125,001 | $125,001 | $56.84 | | |
| ST | State School | 1.3035497053 | $125,001 | $125,001 | $162.95 | | |
| ST2 | State School Part 2 | 0.8169543533 | $125,001 | $125,001 | $102.12 | | |
| SWHIDPRBD | P & R S Whidbey BOND | 0.0152817568 | $125,001 | $125,001 | $1.91 | | |
| SWHIDPRBD2 | P & R S Whidbey BOND2 | 0.0138911264 | $125,001 | $125,001 | $1.74 | | |
| SWHIDPRMT | P & R S Whidbey GEN | 0.2053334452 | $125,001 | $125,001 | $25.67 | | |
| | Total Tax Rate: | 6.6934522006 | | | | | |
| | | | | Taxes w/Current Exemptions: | $836.70 | | |
| | | | | Taxes w/o Exemptions: | $836.70 | | |
Improvement / Building
| Improvement #1: | RESIDENTIAL | State Code: | Y | 0.0 sqft | Value: | $1 |
| Improvement #2: | RESIDENTIAL | State Code: | Y | 0.0 sqft | Value: | $0 |
| | Type | Description | Class CD | Sub Class CD | Year Built | Area |
| | BAS | BASE/MAIN FLOOR | 3 | 0 | 2025 | 0.0 |
| | UPS | UPPER STORY | 3 | 0 | 2025 | 0.0 |
| | AGR | ATTACHED GARAGE | 3 | 0 | 2025 | 0.0 |
| | OWP | OPEN WOOD PORCH W/STEPS | 3 | 0 | 2025 | 0.0 |
| | OWR | OPEN WOOD PORCH W/STEPS/ROOF | 3 | 0 | 2025 | 0.0 |
Sketch
Property Image
Land
| 1 | 13 | SQ (06001-08000) | 0.0000 | 0.00 | 0.00 | 0.00 | 1.00 | $125,000 | $0 |
Roll Value History
| 2026 | N/A | N/A | N/A | N/A | N/A |
| 2025 | $1 | $125,000 | $0 | $125,001 | $125,001 |
| 2024 | $1 | $125,000 | $0 | $125,001 | $125,001 |
| 2023 | $1 | $125,000 | $0 | $125,001 | $125,001 |
| 2022 | $1 | $120,000 | $0 | $120,001 | $120,001 |
| 2021 | $1 | $100,000 | $0 | $100,001 | $100,001 |
| 2020 | $1 | $100,000 | $0 | $100,001 | $100,001 |
| 2019 | $617 | $100,000 | $0 | $100,617 | $100,617 |
| 2018 | $617 | $100,000 | $0 | $100,617 | $100,617 |
| 2017 | $617 | $100,000 | $0 | $100,617 | $100,617 |
| 2016 | $617 | $100,000 | $0 | $100,617 | $100,617 |
| 2015 | $617 | $100,000 | $0 | $100,617 | $100,617 |
| 2014 | $617 | $21,250 | $0 | $21,867 | $21,867 |
| 2013 | $617 | $21,250 | $0 | $21,867 | $21,867 |
| 2012 | $617 | $21,250 | $0 | $21,867 | $21,867 |
| 2011 | $617 | $25,000 | $0 | $25,617 | $25,617 |
| 2010 | $617 | $25,000 | $0 | $25,617 | $25,617 |
| 2009 | $617 | $30,000 | $0 | $30,617 | $30,617 |
| 2008 | $617 | $30,000 | $0 | $30,617 | $30,617 |
| 2007 | $617 | $30,000 | $0 | $30,617 | $30,617 |
Deed and Sales History
| 1 | 08/23/2022 | BARGSLD | Bargain And Sale Deed | HANNAH G KELLY TRUST | O'NEIL, CHARLES R | | | $282,000.00 | 54440 | 4550787 |
| 2 | 10/15/2001 | QCD | Quit Claim Deed | KELLY, HANNAH G | KELLY TRUST, HANNAH G | | | $0.00 | 14095 | 4000698 |
| 3 | 06/01/1993 | OTHER | Other - Misc. Documents | KELLY, WOODROW W | KELLY, HANNAH G | | | $0.00 | 65388 | 92001363 |
| 4 | 01/01/1900 | OTHER | Other - Misc. Documents | Unknown | KELLY, WOODROW W | | | $0.00 | 0 | 0 |
Payout Agreement
| No payout information available.. |