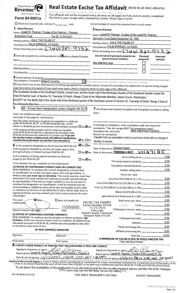
Property
Account |
| Property ID: | 203540 | Abbreviated Legal Description: | BUSH PT TERR LOT 52 |
| Geographic ID: | S6220-00-00052-0 | Agent Code: | |
| Type: | Real | | |
| Tax Area: | 710 - APPRAISER-S Whid Schl Dist, outside Langley, improved & 1 acre or less | Land Use Code | 11 |
| Open Space: | N | DFL | N |
| Historic Property: | N | Remodel Property: | N |
| Multi-Family Redevelopment: | N | | |
| Township: | | Section: | |
| Range: | |
Location |
| Address: | 553 DOLPHIN DR FREELAND, WA 98249 | Mapsco: | |
| Neighborhood: | Cycle 3 | Map ID: | 303 |
| Neighborhood CD: | 3 |
Owner |
| Name: | JOHNSTON, HARRIS | Owner ID: | 177601 |
| Mailing Address: | JANEEN JOHNSTON 553 DOLPHIN DR FREELAND, WA 98249-9695 | % Ownership: | 100.0000000000% |
| | | Exemptions: | |
Taxes and Assessment Details
Values
| (+) Improvement Homesite Value: | + | $0 | |
| (+) Improvement Non-Homesite Value: | + | $356,173 | |
| (+) Land Homesite Value: | + | $0 | |
| (+) Land Non-Homesite Value: | + | $380,000 | |
| (+) Curr Use (HS): | + | $0 | $0 |
| (+) Curr Use (NHS): | + | $0 | $0 |
| | | -------------------------- | |
| (=) Market Value: | = | $736,173 | |
| (–) Productivity Loss: | – | $0 | |
| | | -------------------------- | |
| (=) Subtotal: | = | $736,173 | |
| (+) Senior Appraised Value: | + | $0 | |
| (+) Non-Senior Appraised Value: | + | $736,173 | |
| | | -------------------------- | |
| (=) Total Appraised Value: | = | $736,173 | |
| (–) Senior Exemption Loss: | – | $0 | |
| (–) Exemption Loss: | – | $0 | |
| | | -------------------------- | |
| (=) Taxable Value: | = | $736,173 | |
Taxing Jurisdiction
| Owner: | JOHNSTON, HARRIS | | |
| % Ownership: | 100.0000000000% | | |
| Total Value: | $736,173 | | |
| Tax Area: | 710 - APPRAISER-S Whid Schl Dist, outside Langley, improved & 1 acre or less |
| CF | Conservation Futures | 0.0316035091 | $736,173 | $736,173 | $23.27 | | |
| FIRE3 | Fire & Rescue Dist #3 S Whidbey GEN | 1.2004855531 | $736,173 | $736,173 | $883.77 | | |
| HOBOND | Hospital BOND | 0.1910887512 | $736,173 | $736,173 | $140.67 | | |
| HOGEN | Hospital GEN | 0.3902502903 | $736,173 | $736,173 | $287.29 | | |
| CE | County Current Expense | 0.3708482477 | $736,173 | $736,173 | $273.01 | | |
| CR | County Roads | 0.4584763726 | $736,173 | $736,173 | $337.52 | | |
| ISLANDEMS | Hospital GEN (EMS) | 0.5000000000 | $736,173 | $736,173 | $368.09 | | |
| LIB | Library Sno-Isle GEN | 0.3153421757 | $736,173 | $736,173 | $232.15 | | |
| PORTWHID | Port of S Whidbey GEN | 0.1094540357 | $736,173 | $736,173 | $80.58 | | |
| SCH206BOND | School 206 BOND | 0.3161759235 | $736,173 | $736,173 | $232.76 | | |
| SCH206MO | School 206 Enrichment | 0.4547169547 | $736,173 | $736,173 | $334.75 | | |
| ST | State School | 1.3035497053 | $736,173 | $736,173 | $959.64 | | |
| ST2 | State School Part 2 | 0.8169543533 | $736,173 | $736,173 | $601.42 | | |
| SWHIDPRBD | P & R S Whidbey BOND | 0.0152817568 | $736,173 | $736,173 | $11.25 | | |
| SWHIDPRBD2 | P & R S Whidbey BOND2 | 0.0138911264 | $736,173 | $736,173 | $10.23 | | |
| SWHIDPRMT | P & R S Whidbey GEN | 0.2053334452 | $736,173 | $736,173 | $151.16 | | |
| | Total Tax Rate: | 6.6934522006 | | | | | |
| | | | | Taxes w/Current Exemptions: | $4,927.56 | | |
| | | | | Taxes w/o Exemptions: | $4,927.56 | | |
Improvement / Building
| Improvement #1: | RESIDENTIAL | State Code: | Y | 1725.6 sqft | Value: | $356,173 |
| Bathrooms: | 2 | Bedrooms: | 2 | | Ceiling: | DRYWALL PAINTED | Exterior Wall/Cover: | CEMENT FIBER | | Floor Covering: | HARDWOOD/CARP 20-80 | Floor Structure: | WOOD W/SUBFLOOR | | Foundation: | CONCRETE | Heating: | HEAT PUMP | | Interior Finish: | DRYWALL PAINT | Plumbing Fixture Cnt: | 10 | | Roof Slope: | 6" IN 12" | Roof Structure/Cover: | CJ ASPHALT |
|
| | Type | Description | Class CD | Sub Class CD | Year Built | Area |
| | BAS | BASE/MAIN FLOOR | 4 | 0 | 2000 | 1725.6 |
| | OP4 | OPEN PORCH W/CEILING-ROOF | 4 | 0 | 2000 | 135.0 |
| | AGR | ATTACHED GARAGE | 4 | 0 | 2000 | 462.0 |
| | OWP | OPEN WOOD PORCH W/STEPS | 4 | 0 | 2000 | 284.8 |
Sketch
Property Image
Land
| 1 | 14 | SQ (08001-12000) | 0.0000 | 0.00 | 0.00 | 0.00 | 1.00 | $380,000 | $0 |
Roll Value History
| 2026 | N/A | N/A | N/A | N/A | N/A |
| 2025 | $356,173 | $380,000 | $0 | $736,173 | $736,173 |
| 2024 | $356,273 | $380,000 | $0 | $736,273 | $736,273 |
| 2023 | $360,712 | $380,000 | $0 | $740,712 | $740,712 |
| 2022 | $330,643 | $360,000 | $0 | $690,643 | $690,643 |
| 2021 | $291,017 | $170,000 | $0 | $461,017 | $461,017 |
| 2020 | $283,478 | $170,000 | $0 | $453,478 | $453,478 |
| 2019 | $222,148 | $200,000 | $0 | $422,148 | $422,148 |
| 2018 | $222,811 | $180,000 | $0 | $402,811 | $402,811 |
| 2017 | $224,077 | $180,000 | $0 | $404,077 | $404,077 |
| 2016 | $226,726 | $180,000 | $0 | $406,726 | $406,726 |
| 2015 | $229,373 | $180,000 | $0 | $409,373 | $409,373 |
| 2014 | $232,020 | $157,250 | $0 | $389,270 | $389,270 |
| 2013 | $231,343 | $157,250 | $0 | $388,593 | $388,593 |
| 2012 | $233,994 | $157,250 | $0 | $391,244 | $391,244 |
| 2011 | $236,647 | $185,000 | $0 | $421,647 | $421,647 |
| 2010 | $244,572 | $185,000 | $0 | $429,572 | $429,572 |
| 2009 | $254,942 | $220,000 | $0 | $474,942 | $474,942 |
| 2008 | $257,912 | $223,000 | $0 | $480,912 | $480,912 |
| 2007 | $255,310 | $102,000 | $0 | $357,310 | $357,310 |
Deed and Sales History
| 1 | 07/21/1998 | WD | Warranty Deed | GUETLIN, DAVID M | JOHNSTON, HARRIS | | | $62,000.00 | 82915 | 98015268 |
| 2 | 04/01/1994 | WD | Warranty Deed | JENSEN, MICHAEL H | GUETLIN, DAVID M | | | $64,000.00 | 41856 | 94010947 |
| 3 | 01/01/1990 | WD | Warranty Deed | PETRASEK, PHILIP | JENSEN, MICHAEL H | | | $36,900.00 | 344 | 90001047 |
| 4 | 09/01/1986 | REC | Real Estate Contract | CRAWFORD, ROBERT B | PETRASEK, PHILIP | | | $18,000.00 | 62894 | 86013083 |
| 5 | 09/01/1980 | EXECUTORD | Executor Deed | REEH, NORMAN R | CRAWFORD, ROBERT B | | | $14,500.00 | 3417 | 375025 |
| 6 | 01/01/1900 | OTHER | Other - Misc. Documents | Unknown | JOHNSTON, HARRIS & | | | $0.00 | 82915 | 98015268 |
| 7 | 01/01/1900 | OTHER | Other - Misc. Documents | JOHNSTON, HARRIS & | REEH, NORMAN R | | | $0.00 | 0 | 0 |
Payout Agreement
| No payout information available.. |