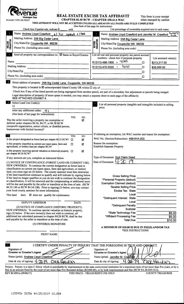
Property
Account |
| Property ID: | 203817 | Abbreviated Legal Description: | BUSH PT TRAC PK LOTS 18 & 19 |
| Geographic ID: | S6225-00-00019-0 | Agent Code: | |
| Type: | Real | | |
| Tax Area: | 710 - APPRAISER-S Whid Schl Dist, outside Langley, improved & 1 acre or less | Land Use Code | 11 |
| Open Space: | N | DFL | N |
| Historic Property: | N | Remodel Property: | N |
| Multi-Family Redevelopment: | N | | |
| Township: | | Section: | |
| Range: | |
Location |
| Address: | 554 SHIPPING VIEW DR FREELAND, WA 98249 | Mapsco: | |
| Neighborhood: | Cycle 3 | Map ID: | 303 |
| Neighborhood CD: | 3 |
Owner |
| Name: | BROUGHTON, JON ERIC KELLY | Owner ID: | 288209 |
| Mailing Address: | JOY LYNN BROUGHTON 554 SHIPPING VIEW DR FREELAND, WA 98249 | % Ownership: | 100.0000000000% |
| | | Exemptions: | |
Taxes and Assessment Details
Values
| (+) Improvement Homesite Value: | + | $0 | |
| (+) Improvement Non-Homesite Value: | + | $313,196 | |
| (+) Land Homesite Value: | + | $0 | |
| (+) Land Non-Homesite Value: | + | $270,000 | |
| (+) Curr Use (HS): | + | $0 | $0 |
| (+) Curr Use (NHS): | + | $0 | $0 |
| | | -------------------------- | |
| (=) Market Value: | = | $583,196 | |
| (–) Productivity Loss: | – | $0 | |
| | | -------------------------- | |
| (=) Subtotal: | = | $583,196 | |
| (+) Senior Appraised Value: | + | $0 | |
| (+) Non-Senior Appraised Value: | + | $583,196 | |
| | | -------------------------- | |
| (=) Total Appraised Value: | = | $583,196 | |
| (–) Senior Exemption Loss: | – | $0 | |
| (–) Exemption Loss: | – | $0 | |
| | | -------------------------- | |
| (=) Taxable Value: | = | $583,196 | |
Taxing Jurisdiction
| Owner: | BROUGHTON, JON ERIC KELLY | | |
| % Ownership: | 100.0000000000% | | |
| Total Value: | $583,196 | | |
| Tax Area: | 710 - APPRAISER-S Whid Schl Dist, outside Langley, improved & 1 acre or less |
| CF | Conservation Futures | 0.0316035091 | $583,196 | $583,196 | $18.43 | | |
| FIRE3 | Fire & Rescue Dist #3 S Whidbey GEN | 1.2004855531 | $583,196 | $583,196 | $700.12 | | |
| HOBOND | Hospital BOND | 0.1910887512 | $583,196 | $583,196 | $111.44 | | |
| HOGEN | Hospital GEN | 0.3902502903 | $583,196 | $583,196 | $227.59 | | |
| CE | County Current Expense | 0.3708482477 | $583,196 | $583,196 | $216.28 | | |
| CR | County Roads | 0.4584763726 | $583,196 | $583,196 | $267.38 | | |
| ISLANDEMS | Hospital GEN (EMS) | 0.5000000000 | $583,196 | $583,196 | $291.60 | | |
| LIB | Library Sno-Isle GEN | 0.3153421757 | $583,196 | $583,196 | $183.91 | | |
| PORTWHID | Port of S Whidbey GEN | 0.1094540357 | $583,196 | $583,196 | $63.83 | | |
| SCH206BOND | School 206 BOND | 0.3161759235 | $583,196 | $583,196 | $184.39 | | |
| SCH206MO | School 206 Enrichment | 0.4547169547 | $583,196 | $583,196 | $265.19 | | |
| ST | State School | 1.3035497053 | $583,196 | $583,196 | $760.22 | | |
| ST2 | State School Part 2 | 0.8169543533 | $583,196 | $583,196 | $476.44 | | |
| SWHIDPRBD | P & R S Whidbey BOND | 0.0152817568 | $583,196 | $583,196 | $8.91 | | |
| SWHIDPRBD2 | P & R S Whidbey BOND2 | 0.0138911264 | $583,196 | $583,196 | $8.10 | | |
| SWHIDPRMT | P & R S Whidbey GEN | 0.2053334452 | $583,196 | $583,196 | $119.75 | | |
| | Total Tax Rate: | 6.6934522006 | | | | | |
| | | | | Taxes w/Current Exemptions: | $3,903.58 | | |
| | | | | Taxes w/o Exemptions: | $3,903.58 | | |
Improvement / Building
| Improvement #1: | RESIDENTIAL | State Code: | Y | 1402.0 sqft | Value: | $313,196 |
| Bathrooms: | 2 | Bedrooms: | 2 | | Ceiling: | DRYWALL PAINTED | Cooling: | HEAT PUMP/CONV/V | | Exterior Wall/Cover: | WOOD SIDING | Floor Covering: | HARDWOOD 100% | | Floor Structure: | WOOD W/SUBFLOOR | Foundation: | CONCRETE | | Interior Finish: | DRYWALL PAINT | Plumbing Fixture Cnt: | 10 | | Roof Slope: | 5" IN 12" | Roof Structure/Cover: | BEAM ASPHALT |
|
| | Type | Description | Class CD | Sub Class CD | Year Built | Area |
| | BAS | BASE/MAIN FLOOR | 3 | 0 | 1995 | 1402.0 |
| | AGR | ATTACHED GARAGE | 3 | 0 | 1995 | 486.0 |
| | OWP | OPEN WOOD PORCH W/STEPS | 3 | 0 | 1995 | 513.0 |
| | OWC | OPEN WOOD PORCH W/STEPS/ROOF/C | 3 | 0 | 1995 | 32.0 |
| | UTY | STORAGE/UTILITY | 3 | 0 | 1995 | 240.0 |
Sketch
Property Image
Land
| 1 | 15 | SQ (12001-21780) | 0.0000 | 0.00 | 0.00 | 0.00 | 1.00 | $270,000 | $0 |
Roll Value History
| 2026 | N/A | N/A | N/A | N/A | N/A |
| 2025 | $313,196 | $270,000 | $0 | $583,196 | $583,196 |
| 2024 | $317,250 | $270,000 | $0 | $587,250 | $587,250 |
| 2023 | $321,304 | $260,000 | $0 | $581,304 | $581,304 |
| 2022 | $294,624 | $240,000 | $0 | $534,624 | $534,624 |
| 2021 | $259,381 | $140,000 | $0 | $399,381 | $399,381 |
| 2020 | $252,725 | $115,000 | $0 | $367,725 | $367,725 |
| 2019 | $182,853 | $180,000 | $0 | $362,853 | $362,853 |
| 2018 | $168,584 | $130,000 | $0 | $298,584 | $298,584 |
| 2017 | $169,619 | $110,000 | $0 | $279,619 | $279,619 |
| 2016 | $171,688 | $90,000 | $0 | $261,688 | $261,688 |
| 2015 | $167,588 | $90,000 | $0 | $257,588 | $257,588 |
| 2014 | $169,632 | $72,250 | $0 | $241,882 | $241,882 |
| 2013 | $171,128 | $72,250 | $0 | $243,378 | $243,378 |
| 2012 | $173,212 | $72,250 | $0 | $245,462 | $245,462 |
| 2011 | $175,296 | $85,000 | $0 | $260,296 | $260,296 |
| 2010 | $183,784 | $85,000 | $0 | $268,784 | $268,784 |
| 2009 | $191,933 | $100,000 | $0 | $291,933 | $291,933 |
| 2008 | $194,554 | $135,000 | $0 | $329,554 | $329,554 |
| 2007 | $193,878 | $102,000 | $0 | $295,878 | $295,878 |
Deed and Sales History
| 1 | 12/12/2018 | WD | Warranty Deed | CRUSE, JOANNA S | BROUGHTON, JON ERIC KELLY | | | $361,000.00 | 36985 | 4456535 |
| 2 | 08/01/1994 | QCD | Quit Claim Deed | CRUSE, JOANNA S | CRUSE, JOANNA S | | | $0.00 | 43319 | 94017747 |
| 3 | 07/01/1994 | OTHER | Other - Misc. Documents | CRUSE, JOANNA S | CRUSE, JOANNA S | | | $0.00 | 65973 | 94015611 |
| 4 | 06/01/1994 | OTHER | Other - Misc. Documents | CRUSE, JOANNA S | CRUSE, JOANNA S | | | $0.00 | 65932 | 0 |
| 5 | 06/01/1994 | OTHER | Other - Misc. Documents | SIERER, DORIS | CRUSE, JOANNA S | | | $0.00 | 65946 | 94012206 |
| 6 | 01/01/1900 | OTHER | Other - Misc. Documents | Unknown | SIERER, DORIS | | | $0.00 | 0 | 0 |
Payout Agreement
| No payout information available.. |