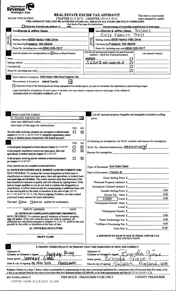
Property
Account |
| Property ID: | 20391 | Abbreviated Legal Description: | 30 - BG SECR NE N80' N89*W 20' TPB S80' N89*W908.71' N634.41' S89*E700' S554.41' S89*E208.71' TPB EX PT TO IS CO AF# 4141963 |
| Geographic ID: | R13216-295-4700 | Agent Code: | |
| Type: | Real | | |
| Tax Area: | 112 - APPRAISER-OH Schl Dist, outside OH, improved, greater than 1 acre | Land Use Code | 73 |
| Open Space: | N | DFL | N |
| Historic Property: | N | Remodel Property: | N |
| Multi-Family Redevelopment: | N | | |
| Township: | 32 | Section: | 16 |
| Range: | R1 |
Location |
| Address: | 1403 MONROE LANDING RD OAK HARBOR, WA 98277 | Mapsco: | |
| Neighborhood: | 3CcRR-highway 20 | Map ID: | 131 |
| Neighborhood CD: | 3CcRRhwy20 |
Owner |
| Name: | BRATT, DARRELL C | Owner ID: | 42386 |
| Mailing Address: | 1403 MONROE LANDING RD OAK HARBOR, WA 98277-8108 | % Ownership: | 100.0000000000% |
| | | Exemptions: | |
Taxes and Assessment Details
Values
| (+) Improvement Homesite Value: | + | $0 | |
| (+) Improvement Non-Homesite Value: | + | $552,687 | |
| (+) Land Homesite Value: | + | $0 | |
| (+) Land Non-Homesite Value: | + | $290,000 | |
| (+) Curr Use (HS): | + | $0 | $0 |
| (+) Curr Use (NHS): | + | $0 | $0 |
| | | -------------------------- | |
| (=) Market Value: | = | $842,687 | |
| (–) Productivity Loss: | – | $0 | |
| | | -------------------------- | |
| (=) Subtotal: | = | $842,687 | |
| (+) Senior Appraised Value: | + | $0 | |
| (+) Non-Senior Appraised Value: | + | $842,687 | |
| | | -------------------------- | |
| (=) Total Appraised Value: | = | $842,687 | |
| (–) Senior Exemption Loss: | – | $0 | |
| (–) Exemption Loss: | – | $0 | |
| | | -------------------------- | |
| (=) Taxable Value: | = | $842,687 | |
Taxing Jurisdiction
| Owner: | BRATT, DARRELL C | | |
| % Ownership: | 100.0000000000% | | |
| Total Value: | $842,687 | | |
| Tax Area: | 112 - APPRAISER-OH Schl Dist, outside OH, improved, greater than 1 acre |
| CF | Conservation Futures | 0.0316035091 | $842,687 | $842,687 | $26.63 | | |
| CEM1 | Cemetery #1 | 0.0040320932 | $842,687 | $842,687 | $3.40 | | |
| FIRE2 | Fire & Rescue Dist #2 N Whidbey GEN | 0.5475949600 | $842,687 | $842,687 | $461.45 | | |
| HOBOND | Hospital BOND | 0.1910887512 | $842,687 | $842,687 | $161.03 | | |
| HOGEN | Hospital GEN | 0.3902502903 | $842,687 | $842,687 | $328.86 | | |
| CE | County Current Expense | 0.3708482477 | $842,687 | $842,687 | $312.51 | | |
| CR | County Roads | 0.4584763726 | $842,687 | $842,687 | $386.35 | | |
| ISLANDEMS | Hospital GEN (EMS) | 0.5000000000 | $842,687 | $842,687 | $421.34 | | |
| LIB | Library Sno-Isle GEN | 0.3153421757 | $842,687 | $842,687 | $265.73 | | |
| NWHIDPRMT | P & R N Whidbey GEN | 0.2004466701 | $842,687 | $842,687 | $168.91 | | |
| SCH201MO | School 201 Enrichment | 1.8559231640 | $842,687 | $842,687 | $1,563.96 | | |
| ST | State School | 1.3035497053 | $842,687 | $842,687 | $1,098.48 | | |
| ST2 | State School Part 2 | 0.8169543533 | $842,687 | $842,687 | $688.44 | | |
| | Total Tax Rate: | 6.9861102925 | | | | | |
| | | | | Taxes w/Current Exemptions: | $5,887.09 | | |
| | | | | Taxes w/o Exemptions: | $5,887.09 | | |
Improvement / Building
| Improvement #1: | COMMERCIAL | State Code: | F1 | 2244.0 sqft | Value: | $346,805 |
| Bathrooms: | 0 | Bedrooms: | 0 | | Ceiling: | DRYWALL PAINTED | Exterior Wall/Cover: | 8" CONC BLK/CON FRAM | | Floor Covering: | CONCRETE SEALER | Floor Structure: | CONCRETE ON GROUND | | Foundation: | SLAB | Heating: | SPACE HEATERS | | Interior Finish: | RESTAURANT | Plumbing Fixture Cnt: | 1 | | Roof Structure/Cover: | BEAM BUILT-UP ROCK |   |   |
|
| | Type | Description | Class CD | Sub Class CD | Year Built | Area |
| | BAS | BASE/MAIN FLOOR | 2 | 0 | 1959 | 2004.0 |
| | UTY | STORAGE/UTILITY | 2 | 0 | 1959 | 204.0 |
| | DGR | DETACHED GARAGE | 2 | 0 | 1959 | 3580.5 |
| | oPOL | POLE BARN | 2 | 0 | 1959 | 1228.0 |
| | oPOL | POLE BARN | 2 | 0 | 1959 | 2520.0 |
| | UPS | UPPER STORY | 2 | 0 | 1959 | 240.0 |
| | OCP | OPEN CARPORT | 2 | 0 | 1959 | 738.0 |
| | OP1 | OPEN PORCH SLAB | 2 | 0 | 1959 | 5600.0 |
| | oPV2 | PV/ASPH 3" | 2 | 0 | 1959 | 4440.0 |
| Improvement #2: | MANUFACTURED HOME | State Code: | Y | 2638.0 sqft | Value: | $205,882 |
| Bathrooms: | 1 | Bedrooms: | 2 | | Ceiling: | PLASTER PAINTED | Cooling: | EVAP NO DUCT | | Exterior Wall/Cover: | VINYL | Floor Covering: | CARPET 100% | | Floor Structure: | SLAB ON GRADE | Foundation: | SLAB | | Heating: | FHA ELECTRIC | Interior Finish: | PLASTER | | Roof Slope: | FLAT | Roof Structure/Cover: | CJ ALUMINIUM HEAVY |
|
| | Type | Description | Class CD | Sub Class CD | Year Built | Area |
| | BAS | BASE/MAIN FLOOR | 4 | 0 | 2016 | 2638.0 |
| | OWC | OPEN WOOD PORCH W/STEPS/ROOF/C | 4 | 0 | 2016 | 162.0 |
| | OWP | OPEN WOOD PORCH W/STEPS | 4 | 0 | 2016 | 30.0 |
| | OWP | OPEN WOOD PORCH W/STEPS | 4 | 0 | 2016 | 40.0 |
| | OWP | OPEN WOOD PORCH W/STEPS | 4 | 0 | 2016 | 40.0 |
Sketch
Property Image
Land
| 1 | 68 | COMMERCIAL RETAIL | 8.0000 | 453024.00 | 0.00 | 0.00 | 1.00 | $290,000 | $0 |
Roll Value History
| 2026 | N/A | N/A | N/A | N/A | N/A |
| 2025 | $552,687 | $290,000 | $0 | $842,687 | $842,687 |
| 2024 | $557,009 | $260,000 | $0 | $817,009 | $817,009 |
| 2023 | $537,393 | $250,000 | $0 | $787,393 | $787,393 |
| 2022 | $481,706 | $200,000 | $0 | $681,706 | $681,706 |
| 2021 | $439,814 | $200,000 | $0 | $639,814 | $639,814 |
| 2020 | $436,442 | $200,000 | $0 | $636,442 | $636,442 |
| 2019 | $295,718 | $250,000 | $0 | $545,718 | $545,718 |
| 2018 | $297,204 | $170,000 | $0 | $467,204 | $467,204 |
| 2017 | $298,963 | $208,000 | $0 | $506,963 | $506,963 |
| 2016 | $301,479 | $208,000 | $0 | $509,479 | $509,479 |
| 2015 | $182,034 | $226,512 | $0 | $408,546 | $408,546 |
| 2014 | $182,477 | $226,512 | $0 | $408,989 | $408,989 |
| 2013 | $183,736 | $226,512 | $0 | $410,248 | $410,248 |
| 2012 | $280,868 | $227,868 | $0 | $508,736 | $508,736 |
| 2011 | $280,868 | $227,868 | $0 | $508,736 | $508,736 |
| 2010 | $228,992 | $227,868 | $0 | $456,860 | $456,860 |
| 2009 | $236,634 | $258,407 | $0 | $495,041 | $495,041 |
| 2008 | $246,585 | $256,649 | $0 | $503,234 | $503,234 |
| 2007 | $210,191 | $258,407 | $0 | $468,598 | $468,598 |
Deed and Sales History
| 1 | 10/27/2005 | QCD | Quit Claim Deed | BRATT, DARRELL C | BRATT, DARRELL C | | | $400.00 | 70723 | 4141963 |
| 2 | 08/01/1989 | OTHER | Other - Misc. Documents | BRATT, DARRELL C | BRATT, DARRELL C | | | $0.00 | 6215 | 0 |
| 3 | 08/01/1989 | WD | Warranty Deed | WASINGER, GREGORY O | BRATT, DARRELL C | | | $152,130.00 | 93642 | 89012168 |
| 4 | 04/01/1980 | CD | DNU - Correction Deed | WASINGER, GREGORY O | WASINGER, GREGORY O | | | $0.00 | 1411 | 368104 |
| 5 | 02/01/1980 | OTHER | Other - Misc. Documents | CECIL, WOODROW W | WASINGER, GREGORY O | | | $30,000.00 | 685 | 0 |
| 6 | 01/01/1900 | OTHER | Other - Misc. Documents | BLUE, FOX D | CECIL, WOODROW W | | | $0.00 | 0 | 0 |
| 7 | 01/01/1900 | OTHER | Other - Misc. Documents | Unknown | BLUE, FOX D | | | $0.00 | 0 | 0 |
Payout Agreement
| No payout information available.. |