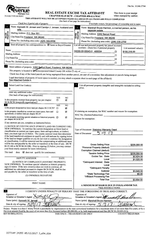
Property
Account |
| Property ID: | 203988 | Abbreviated Legal Description: | BUSH PT TRAC PK LOT 36 |
| Geographic ID: | S6225-00-00036-0 | Agent Code: | |
| Type: | Real | | |
| Tax Area: | 710 - APPRAISER-S Whid Schl Dist, outside Langley, improved & 1 acre or less | Land Use Code | 11 |
| Open Space: | N | DFL | N |
| Historic Property: | N | Remodel Property: | N |
| Multi-Family Redevelopment: | N | | |
| Township: | | Section: | |
| Range: | |
Location |
| Address: | 589 SHIPPING VIEW DR FREELAND, WA 98249 | Mapsco: | |
| Neighborhood: | Cycle 3 | Map ID: | 303 |
| Neighborhood CD: | 3 |
Owner |
| Name: | MESTEMACHER, FRANK T | Owner ID: | 192581 |
| Mailing Address: | 589 SHIPPING VIEW DR FREELAND, WA 98249 | % Ownership: | 100.0000000000% |
| | | Exemptions: | |
Taxes and Assessment Details
Values
| (+) Improvement Homesite Value: | + | $0 | |
| (+) Improvement Non-Homesite Value: | + | $375,795 | |
| (+) Land Homesite Value: | + | $0 | |
| (+) Land Non-Homesite Value: | + | $270,000 | |
| (+) Curr Use (HS): | + | $0 | $0 |
| (+) Curr Use (NHS): | + | $0 | $0 |
| | | -------------------------- | |
| (=) Market Value: | = | $645,795 | |
| (–) Productivity Loss: | – | $0 | |
| | | -------------------------- | |
| (=) Subtotal: | = | $645,795 | |
| (+) Senior Appraised Value: | + | $0 | |
| (+) Non-Senior Appraised Value: | + | $645,795 | |
| | | -------------------------- | |
| (=) Total Appraised Value: | = | $645,795 | |
| (–) Senior Exemption Loss: | – | $0 | |
| (–) Exemption Loss: | – | $0 | |
| | | -------------------------- | |
| (=) Taxable Value: | = | $645,795 | |
Taxing Jurisdiction
| Owner: | MESTEMACHER, FRANK T | | |
| % Ownership: | 100.0000000000% | | |
| Total Value: | $645,795 | | |
| Tax Area: | 710 - APPRAISER-S Whid Schl Dist, outside Langley, improved & 1 acre or less |
| CF | Conservation Futures | 0.0316035091 | $645,795 | $645,795 | $20.41 | | |
| FIRE3 | Fire & Rescue Dist #3 S Whidbey GEN | 1.2004855531 | $645,795 | $645,795 | $775.27 | | |
| HOBOND | Hospital BOND | 0.1910887512 | $645,795 | $645,795 | $123.40 | | |
| HOGEN | Hospital GEN | 0.3902502903 | $645,795 | $645,795 | $252.02 | | |
| CE | County Current Expense | 0.3708482477 | $645,795 | $645,795 | $239.49 | | |
| CR | County Roads | 0.4584763726 | $645,795 | $645,795 | $296.08 | | |
| ISLANDEMS | Hospital GEN (EMS) | 0.5000000000 | $645,795 | $645,795 | $322.90 | | |
| LIB | Library Sno-Isle GEN | 0.3153421757 | $645,795 | $645,795 | $203.65 | | |
| PORTWHID | Port of S Whidbey GEN | 0.1094540357 | $645,795 | $645,795 | $70.68 | | |
| SCH206BOND | School 206 BOND | 0.3161759235 | $645,795 | $645,795 | $204.18 | | |
| SCH206MO | School 206 Enrichment | 0.4547169547 | $645,795 | $645,795 | $293.65 | | |
| ST | State School | 1.3035497053 | $645,795 | $645,795 | $841.83 | | |
| ST2 | State School Part 2 | 0.8169543533 | $645,795 | $645,795 | $527.59 | | |
| SWHIDPRBD | P & R S Whidbey BOND | 0.0152817568 | $645,795 | $645,795 | $9.87 | | |
| SWHIDPRBD2 | P & R S Whidbey BOND2 | 0.0138911264 | $645,795 | $645,795 | $8.97 | | |
| SWHIDPRMT | P & R S Whidbey GEN | 0.2053334452 | $645,795 | $645,795 | $132.60 | | |
| | Total Tax Rate: | 6.6934522006 | | | | | |
| | | | | Taxes w/Current Exemptions: | $4,322.59 | | |
| | | | | Taxes w/o Exemptions: | $4,322.59 | | |
Improvement / Building
| Improvement #1: | RESIDENTIAL | State Code: | Y | 1788.2 sqft | Value: | $369,681 |
| Bathrooms: | 2 | Bedrooms: | 2 | | Ceiling: | DRYWALL PAINTED | Exterior Wall/Cover: | WOOD SIDING | | Floor Covering: | HARDWOOD 100% | Floor Structure: | WOOD W/SUBFLOOR | | Foundation: | CONCRETE | Heating: | RADIANT FLOOR | | Interior Finish: | DRYWALL PAINT | Plumbing Fixture Cnt: | 12 | | Roof Slope: | 12" IN 12" | Roof Structure/Cover: | CJ ASPHALT |
|
| | Type | Description | Class CD | Sub Class CD | Year Built | Area |
| | BAS | BASE/MAIN FLOOR | 3 | 0 | 2000 | 766.3 |
| | UPS | UPPER STORY | 3 | 0 | 2000 | 527.9 |
| | UTY | STORAGE/UTILITY | 3 | 0 | 2000 | 65.0 |
| | OWP | OPEN WOOD PORCH W/STEPS | 3 | 0 | 2000 | 48.0 |
| | OWP | OPEN WOOD PORCH W/STEPS | 3 | 0 | 2000 | 95.0 |
| | OWP | OPEN WOOD PORCH W/STEPS | 3 | 0 | 2000 | 334.9 |
| | OWR | OPEN WOOD PORCH W/STEPS/ROOF | 3 | 0 | 2000 | 240.4 |
| | OWR | OPEN WOOD PORCH W/STEPS/ROOF | 3 | 0 | 2000 | 25.2 |
| | UPH | HALF STORY | 3 | 0 | 2000 | 494.0 |
| | DGR | DETACHED GARAGE | 3 | 0 | 2000 | 480.0 |
| | UTY | STORAGE/UTILITY | 3 | 0 | 2000 | 112.0 |
| | UTY | STORAGE/UTILITY | 3 | 0 | 2000 | 114.5 |
| | OWR | OPEN WOOD PORCH W/STEPS/ROOF | 3 | 0 | 2000 | 112.0 |
| Improvement #2: | MANUFACTURED HOME | State Code: | Y | 684.0 sqft | Value: | $6,114 |
| Bathrooms: | 0 | Bedrooms: | 0 | | Ceiling: | PLASTER PAINTED | Cooling: | EVAP NO DUCT | | Exterior Wall/Cover: | VINYL | Floor Covering: | CARPET 100% | | Floor Structure: | SLAB ON GRADE | Foundation: | SLAB | | Heating: | FHA ELECTRIC | Interior Finish: | PLASTER | | Plumbing Fixture Cnt: | 1 | Roof Slope: | FLAT | | Roof Structure/Cover: | CJ ALUMINIUM HEAVY |   |   |
|
Sketch
Property Image
Land
| 1 | 15 | SQ (12001-21780) | 0.0000 | 0.00 | 0.00 | 0.00 | 1.00 | $270,000 | $0 |
Roll Value History
| 2026 | N/A | N/A | N/A | N/A | N/A |
| 2025 | $375,795 | $270,000 | $0 | $645,795 | $645,795 |
| 2024 | $380,288 | $270,000 | $0 | $650,288 | $650,288 |
| 2023 | $374,914 | $260,000 | $0 | $634,914 | $634,914 |
| 2022 | $343,462 | $240,000 | $0 | $583,462 | $583,462 |
| 2021 | $302,105 | $140,000 | $0 | $442,105 | $442,105 |
| 2020 | $294,638 | $115,000 | $0 | $409,638 | $409,638 |
| 2019 | $219,813 | $180,000 | $0 | $399,813 | $399,813 |
| 2018 | $220,428 | $130,000 | $0 | $350,428 | $350,428 |
| 2017 | $221,579 | $110,000 | $0 | $331,579 | $331,579 |
| 2016 | $197,469 | $90,000 | $0 | $287,469 | $287,469 |
| 2015 | $199,442 | $90,000 | $0 | $289,442 | $289,442 |
| 2014 | $201,417 | $72,250 | $0 | $273,667 | $273,667 |
| 2013 | $201,854 | $72,250 | $0 | $274,104 | $274,104 |
| 2012 | $203,828 | $72,250 | $0 | $276,078 | $276,078 |
| 2011 | $206,121 | $85,000 | $0 | $291,121 | $291,121 |
| 2010 | $213,863 | $85,000 | $0 | $298,863 | $298,863 |
| 2009 | $220,669 | $100,000 | $0 | $320,669 | $320,669 |
| 2008 | $225,191 | $135,000 | $0 | $360,191 | $360,191 |
| 2007 | $214,589 | $102,000 | $0 | $316,589 | $316,589 |
Deed and Sales History
| 1 | 04/30/2004 | QCD | Quit Claim Deed | LOCKHART, CHRISTINE M | WESTEMACHER, FRANK T | | | $0.00 | 41777 | 4099000 |
| 2 | 03/01/1994 | OTHER | Other - Misc. Documents | LOCKHART, CHRISTINE M | LOCKHART, CHRISTINE M | | | $14,000.00 | 41224 | 0 |
| 3 | 03/01/1994 | WD | Warranty Deed | ROSS, THOMAS N | LOCKHART, CHRISTINE M | | | $36,000.00 | 41223 | 94007693 |
| 4 | 05/01/1988 | OTHER | Other - Misc. Documents | ROSS, THOMAS N | ROSS, THOMAS N | | | $24,000.00 | 81529 | 0 |
| 5 | 05/01/1988 | WD | Warranty Deed | TALKE, HELEN G | ROSS, THOMAS N | | | $15,000.00 | 81530 | 88005817 |
| 6 | 03/01/1981 | OTHER | Other - Misc. Documents | TALKE, HELEN F | TALKE, HELEN G | | | $1.00 | 59057 | 0 |
| 7 | 12/01/1973 | QCD | Quit Claim Deed | FRANKLIN, MARION | TALKE, HELEN F | | | $0.00 | 61691 | 86007959 |
| 8 | 01/01/1900 | OTHER | Other - Misc. Documents | Unknown | FRANKLIN, MARION | | | $0.00 | 0 | 0 |
Payout Agreement
| No payout information available.. |