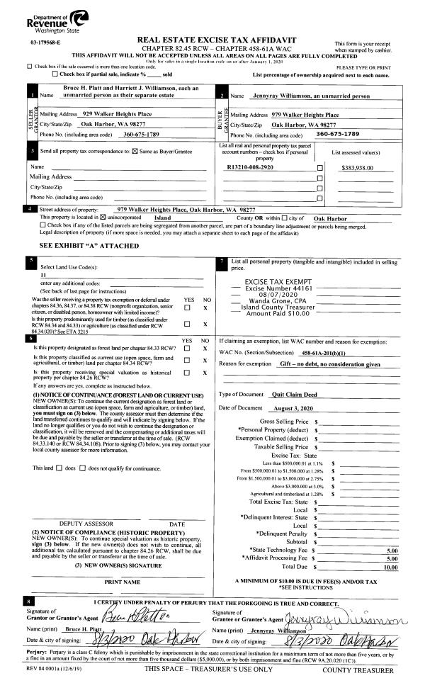
Property
Account |
| Property ID: | 204326 | Abbreviated Legal Description: | BUSH PT TRAC PK LOT 70 |
| Geographic ID: | S6225-00-00070-0 | Agent Code: | |
| Type: | Real | | |
| Tax Area: | 710 - APPRAISER-S Whid Schl Dist, outside Langley, improved & 1 acre or less | Land Use Code | 11 |
| Open Space: | N | DFL | N |
| Historic Property: | N | Remodel Property: | N |
| Multi-Family Redevelopment: | N | | |
| Township: | | Section: | |
| Range: | |
Location |
| Address: | 550 TANGLEWILDE LN FREELAND, WA 98249 | Mapsco: | |
| Neighborhood: | Cycle 3 | Map ID: | 303 |
| Neighborhood CD: | 3 |
Owner |
| Name: | MARTIN, DUANE T | Owner ID: | 193987 |
| Mailing Address: | LORETTA S MARTIN PO BOX 112 FREELAND, WA 98249-0112 | % Ownership: | 100.0000000000% |
| | | Exemptions: | |
Taxes and Assessment Details
Values
| (+) Improvement Homesite Value: | + | $0 | |
| (+) Improvement Non-Homesite Value: | + | $61,155 | |
| (+) Land Homesite Value: | + | $0 | |
| (+) Land Non-Homesite Value: | + | $370,000 | |
| (+) Curr Use (HS): | + | $0 | $0 |
| (+) Curr Use (NHS): | + | $0 | $0 |
| | | -------------------------- | |
| (=) Market Value: | = | $431,155 | |
| (–) Productivity Loss: | – | $0 | |
| | | -------------------------- | |
| (=) Subtotal: | = | $431,155 | |
| (+) Senior Appraised Value: | + | $0 | |
| (+) Non-Senior Appraised Value: | + | $431,155 | |
| | | -------------------------- | |
| (=) Total Appraised Value: | = | $431,155 | |
| (–) Senior Exemption Loss: | – | $0 | |
| (–) Exemption Loss: | – | $0 | |
| | | -------------------------- | |
| (=) Taxable Value: | = | $431,155 | |
Taxing Jurisdiction
| Owner: | MARTIN, DUANE T | | |
| % Ownership: | 100.0000000000% | | |
| Total Value: | $431,155 | | |
| Tax Area: | 710 - APPRAISER-S Whid Schl Dist, outside Langley, improved & 1 acre or less |
| CF | Conservation Futures | 0.0316035091 | $431,155 | $431,155 | $13.63 | | |
| FIRE3 | Fire & Rescue Dist #3 S Whidbey GEN | 1.2004855531 | $431,155 | $431,155 | $517.60 | | |
| HOBOND | Hospital BOND | 0.1910887512 | $431,155 | $431,155 | $82.39 | | |
| HOGEN | Hospital GEN | 0.3902502903 | $431,155 | $431,155 | $168.26 | | |
| CE | County Current Expense | 0.3708482477 | $431,155 | $431,155 | $159.89 | | |
| CR | County Roads | 0.4584763726 | $431,155 | $431,155 | $197.67 | | |
| ISLANDEMS | Hospital GEN (EMS) | 0.5000000000 | $431,155 | $431,155 | $215.58 | | |
| LIB | Library Sno-Isle GEN | 0.3153421757 | $431,155 | $431,155 | $135.96 | | |
| PORTWHID | Port of S Whidbey GEN | 0.1094540357 | $431,155 | $431,155 | $47.19 | | |
| SCH206BOND | School 206 BOND | 0.3161759235 | $431,155 | $431,155 | $136.32 | | |
| SCH206MO | School 206 Enrichment | 0.4547169547 | $431,155 | $431,155 | $196.05 | | |
| ST | State School | 1.3035497053 | $431,155 | $431,155 | $562.03 | | |
| ST2 | State School Part 2 | 0.8169543533 | $431,155 | $431,155 | $352.23 | | |
| SWHIDPRBD | P & R S Whidbey BOND | 0.0152817568 | $431,155 | $431,155 | $6.59 | | |
| SWHIDPRBD2 | P & R S Whidbey BOND2 | 0.0138911264 | $431,155 | $431,155 | $5.99 | | |
| SWHIDPRMT | P & R S Whidbey GEN | 0.2053334452 | $431,155 | $431,155 | $88.53 | | |
| | Total Tax Rate: | 6.6934522006 | | | | | |
| | | | | Taxes w/Current Exemptions: | $2,885.91 | | |
| | | | | Taxes w/o Exemptions: | $2,885.91 | | |
Improvement / Building
| Improvement #1: | MANUFACTURED HOME | State Code: | Y | 1756.0 sqft | Value: | $61,155 |
| Bathrooms: | 0 | Bedrooms: | 0 | | Ceiling: | PLASTER PAINTED | Cooling: | EVAP NO DUCT | | Exterior Wall/Cover: | VINYL | Floor Covering: | CARPET 100% | | Floor Structure: | SLAB ON GRADE | Foundation: | SLAB | | Heating: | FHA ELECTRIC | Interior Finish: | PLASTER | | Plumbing Fixture Cnt: | 1 | Roof Slope: | FLAT | | Roof Structure/Cover: | CJ ALUMINIUM HEAVY |   |   |
|
| | Type | Description | Class CD | Sub Class CD | Year Built | Area |
| | BAS | BASE/MAIN FLOOR | 4 | 0 | 1980 | 1756.0 |
| | DGR | DETACHED GARAGE | 4 | 0 | 1980 | 768.0 |
| | OWP | OPEN WOOD PORCH W/STEPS | 4 | 0 | 1980 | 340.0 |
| | OWR | OPEN WOOD PORCH W/STEPS/ROOF | 4 | 0 | 1980 | 112.0 |
Sketch
Property Image
Land
| 1 | 15 | SQ (12001-21780) | 0.0000 | 0.00 | 0.00 | 0.00 | 1.00 | $370,000 | $0 |
Roll Value History
| 2026 | N/A | N/A | N/A | N/A | N/A |
| 2025 | $61,155 | $370,000 | $0 | $431,155 | $431,155 |
| 2024 | $63,193 | $370,000 | $0 | $433,193 | $433,193 |
| 2023 | $58,497 | $360,000 | $0 | $418,497 | $418,497 |
| 2022 | $56,181 | $360,000 | $0 | $416,181 | $416,181 |
| 2021 | $53,037 | $170,000 | $0 | $223,037 | $223,037 |
| 2020 | $54,199 | $170,000 | $0 | $224,199 | $224,199 |
| 2019 | $33,784 | $180,000 | $0 | $213,784 | $213,784 |
| 2018 | $34,683 | $130,000 | $0 | $164,683 | $164,683 |
| 2017 | $36,482 | $110,000 | $0 | $146,482 | $146,482 |
| 2016 | $38,281 | $90,000 | $0 | $128,281 | $128,281 |
| 2015 | $40,979 | $90,000 | $0 | $130,979 | $130,979 |
| 2014 | $42,777 | $72,250 | $0 | $115,027 | $115,027 |
| 2013 | $53,494 | $72,250 | $0 | $125,744 | $125,744 |
| 2012 | $55,100 | $72,250 | $0 | $127,350 | $127,350 |
| 2011 | $56,706 | $85,000 | $0 | $141,706 | $141,706 |
| 2010 | $59,498 | $85,000 | $0 | $144,498 | $144,498 |
| 2009 | $63,556 | $100,000 | $0 | $163,556 | $163,556 |
| 2008 | $65,889 | $135,000 | $0 | $200,889 | $200,889 |
| 2007 | $58,106 | $135,000 | $0 | $193,106 | $193,106 |
Deed and Sales History
| 1 | 12/22/2004 | WD | Warranty Deed | HOUGH, WILLIAM & | MARTIN, DUANE T | | | $125,000.00 | 46011 | 4121799 |
| 2 | 04/01/1997 | QCD | Quit Claim Deed | HOUGH, FAMILY T | HOUGH, WILLIAM & | | | $0.00 | 71459 | 97006691 |
| 3 | 03/01/1991 | OTHER | Other - Misc. Documents | HOUGH, WILLIAM T | HOUGH, FAMILY T | | | $0.00 | 10873 | 0 |
| 4 | 11/01/1990 | QCD | Quit Claim Deed | FRYE, KATHRYN P | HOUGH, WILLIAM T | | | $0.00 | 10670 | 91003017 |
| 5 | 03/01/1989 | OTHER | Other - Misc. Documents | FRYE, KATHRYN P | FRYE, KATHRYN P | | | $0.00 | 90844 | 0 |
| 6 | 03/01/1989 | QCD | Quit Claim Deed | HOUGH, WILLIAM & | FRYE, KATHRYN P | | | $0.00 | 91453 | 89005098 |
| 7 | 06/01/1985 | OTHER | Other - Misc. Documents | HOUGH, WILLIAM/IRIS Y | HOUGH, WILLIAM & | | | $0.00 | 61206 | 197116 |
| 8 | 10/01/1981 | OTHER | Other - Misc. Documents | HOUGH, WILLIAM | HOUGH, WILLIAM/IRIS Y | | | $45,000.00 | 0 | 0 |
| 9 | 01/01/1900 | OTHER | Other - Misc. Documents | Unknown | HOUGH, WILLIAM | | | $0.00 | 0 | 0 |
Payout Agreement
| No payout information available.. |