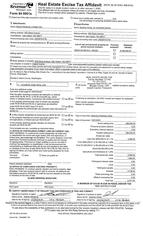
Property
Account |
| Property ID: | 204497 | Abbreviated Legal Description: | CAMALOCH 1 LOT 1 TGW: BG SWCR OF LOT 19-1 TPB N ALG WLN 15' E PARA/TO SLN 65' THENCE IN SELY DIRECTION TP 5'N OF WLY CR OF LOT 1 CAMALOCH CONT IN SELY DIRECTION 30' M/L TP ON SLY LN 77'W OF SECR OF LOT 19-1 W194' M/L TPB |
| Geographic ID: | S6235-00-00001-0 | Agent Code: | |
| Type: | Real | | |
| Tax Area: | 590 - APPRAISER-Stan/Cam Schl Dist, Special Dist, improved & less than 1 acre | Land Use Code | 11 |
| Open Space: | N | DFL | N |
| Historic Property: | N | Remodel Property: | N |
| Multi-Family Redevelopment: | N | | |
| Township: | | Section: | |
| Range: | |
Location |
| Address: | 396 CAMALOCH DR CAMANO ISLAND, WA 98282 | Mapsco: | |
| Neighborhood: | Cycle 5 | Map ID: | 995 |
| Neighborhood CD: | 5 |
Owner |
| Name: | CAMALOCH ASSOCIATION INC | Owner ID: | 61511 |
| Mailing Address: | 326 N EAST CAMANO DR CAMANO ISLAND, WA 98282-8790 | % Ownership: | 100.0000000000% |
| | | Exemptions: | EX |
Taxes and Assessment Details
Values
| (+) Improvement Homesite Value: | + | $0 | |
| (+) Improvement Non-Homesite Value: | + | $201,768 | |
| (+) Land Homesite Value: | + | $0 | |
| (+) Land Non-Homesite Value: | + | $310,000 | |
| (+) Curr Use (HS): | + | $0 | $0 |
| (+) Curr Use (NHS): | + | $0 | $0 |
| | | -------------------------- | |
| (=) Market Value: | = | $511,768 | |
| (–) Productivity Loss: | – | $0 | |
| | | -------------------------- | |
| (=) Subtotal: | = | $511,768 | |
| (+) Senior Appraised Value: | + | $0 | |
| (+) Non-Senior Appraised Value: | + | $511,768 | |
| | | -------------------------- | |
| (=) Total Appraised Value: | = | $511,768 | |
| (–) Senior Exemption Loss: | – | $0 | |
| (–) Exemption Loss: | – | $511,768 | |
| | | -------------------------- | |
| (=) Taxable Value: | = | $0 | |
Taxing Jurisdiction
| Owner: | CAMALOCH ASSOCIATION INC | | |
| % Ownership: | 100.0000000000% | | |
| Total Value: | $511,768 | | |
| Tax Area: | 590 - APPRAISER-Stan/Cam Schl Dist, Special Dist, improved & less than 1 acre |
| CF | Conservation Futures | 0.0316035091 | $511,768 | $0 | $0.00 | | |
| EMS1 | Fire & Rescue Dist #1 Camano GEN (EMS) | 0.3677864386 | $511,768 | $0 | $0.00 | | |
| FIRE1 | Fire & Rescue Dist #1 Camano GEN | 1.2502910536 | $511,768 | $0 | $0.00 | | |
| FIRE1BOND | Fire & Rescue Dist #1 Camano BOND | 0.1570001679 | $511,768 | $0 | $0.00 | | |
| CE | County Current Expense | 0.3708482477 | $511,768 | $0 | $0.00 | | |
| CR | County Roads | 0.4584763726 | $511,768 | $0 | $0.00 | | |
| LCIB | Library Sno-Isle BOND (Camano Island) | 0.0396325772 | $511,768 | $0 | $0.00 | | |
| LIB | Library Sno-Isle GEN | 0.3153421757 | $511,768 | $0 | $0.00 | | |
| SCH205_401 | School 205-401 Enrichment | 1.2698420524 | $511,768 | $0 | $0.00 | | |
| SCH205BOND | School 205-401 BOND | 0.9396497583 | $511,768 | $0 | $0.00 | | |
| ST | State School | 1.3035497053 | $511,768 | $0 | $0.00 | | |
| ST2 | State School Part 2 | 0.8169543533 | $511,768 | $0 | $0.00 | | |
| | Total Tax Rate: | 7.3209764117 | | | | | |
| | | | | Taxes w/Current Exemptions: | $0.00 | | |
| | | | | Taxes w/o Exemptions: | $3,746.63 | | |
Improvement / Building
| Improvement #1: | RESIDENTIAL | State Code: | Y | 1392.0 sqft | Value: | $201,768 |
| Bathrooms: | 2 | Bedrooms: | 1 | | Ceiling: | DRY WALL SPRAYED | Cooling: | HEAT PUMP/CONV/V | | Exterior Wall/Cover: | PLY/HARDBOARD T-111 | Floor Covering: | CARPET/VINYL 80-20 | | Floor Structure: | SLAB ON GRADE | Foundation: | SLAB | | Interior Finish: | DRYWALL PAINT | Plumbing Fixture Cnt: | 9 | | Roof Slope: | 4" IN 12" | Roof Structure/Cover: | BEAM ASPHALT |
|
| | Type | Description | Class CD | Sub Class CD | Year Built | Area |
| | BAS | BASE/MAIN FLOOR | 3 | 0 | 1978 | 1392.0 |
| | OP3 | OPEN PORCH W/ROOF | 3 | 0 | 1978 | 168.0 |
Sketch
Property Image
Land
| 1 | 14 | SQ (08001-12000) | 0.0000 | 0.00 | 0.00 | 0.00 | 1.00 | $310,000 | $0 |
Roll Value History
| 2026 | N/A | N/A | N/A | N/A | N/A |
| 2025 | $201,768 | $310,000 | $0 | $511,768 | $0 |
| 2024 | $204,314 | $300,000 | $0 | $504,314 | $0 |
| 2023 | $206,860 | $260,000 | $0 | $466,860 | $0 |
| 2022 | $189,625 | $210,000 | $0 | $399,625 | $0 |
| 2021 | $168,899 | $200,000 | $0 | $368,899 | $0 |
| 2020 | $164,337 | $140,000 | $0 | $304,337 | $0 |
| 2019 | $116,820 | $200,000 | $0 | $316,820 | $0 |
| 2018 | $117,158 | $145,000 | $0 | $262,158 | $0 |
| 2017 | $80,491 | $100,000 | $0 | $180,491 | $0 |
| 2016 | $81,749 | $85,000 | $0 | $166,749 | $0 |
| 2015 | $87,370 | $65,000 | $0 | $152,370 | $0 |
| 2014 | $88,665 | $55,000 | $0 | $143,665 | $0 |
| 2013 | $89,961 | $55,000 | $0 | $144,961 | $0 |
| 2012 | $91,256 | $60,000 | $0 | $151,256 | $0 |
| 2011 | $92,552 | $82,000 | $0 | $174,552 | $0 |
| 2010 | $97,270 | $82,000 | $0 | $179,270 | $0 |
| 2009 | $116,826 | $126,561 | $0 | $243,387 | $0 |
| 2008 | $94,719 | $175,000 | $0 | $269,719 | $0 |
| 2007 | $96,051 | $150,000 | $0 | $246,051 | $0 |
Deed and Sales History
| 1 | 04/04/2018 | QCD | Quit Claim Deed | CAMALOCH ASSOCIATION INC | | | | | 33573 | 4442076 |
| 2 | 01/01/1900 | OTHER | Other - Misc. Documents | Unknown | CAMALOCH ASSOCIATION INC, | | | $0.00 | 0 | 0 |
Payout Agreement
| No payout information available.. |