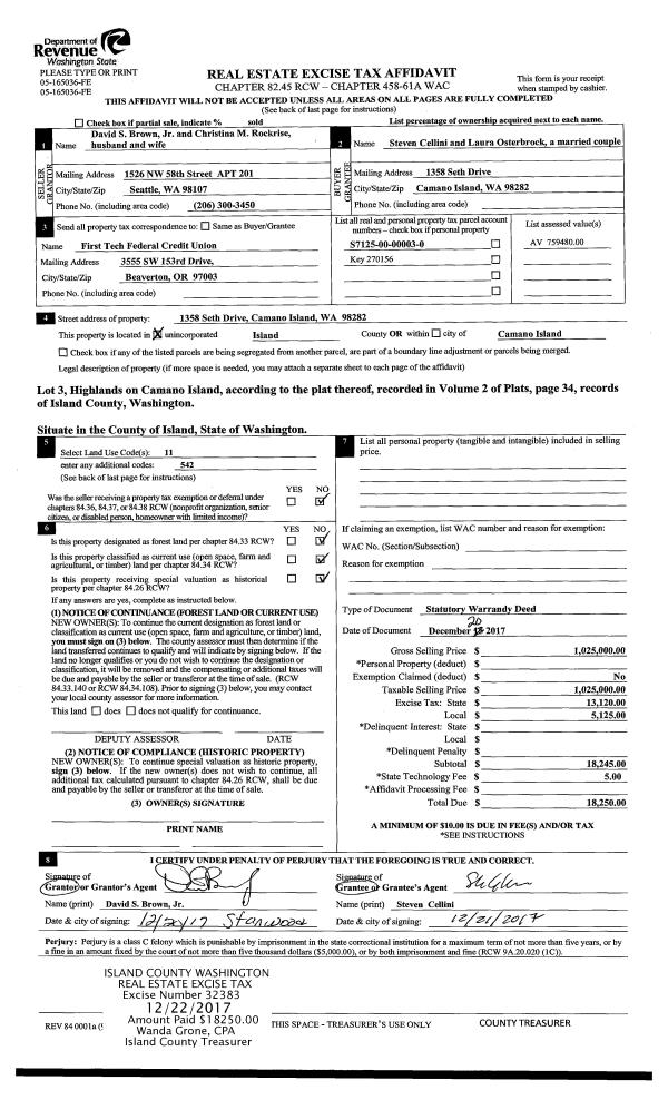
Property
Account |
| Property ID: | 20453 | Abbreviated Legal Description: | 36 - IN SE NE: BG SECR SE NE W928.71' N634.41' TPB E200' N TO CLN HWY SWLY ALG SD CLN TP N OF TPB SLY TPB |
| Geographic ID: | R13216-341-4460 | Agent Code: | |
| Type: | Real | | |
| Tax Area: | 112 - APPRAISER-OH Schl Dist, outside OH, improved, greater than 1 acre | Land Use Code | 11 |
| Open Space: | N | DFL | N |
| Historic Property: | N | Remodel Property: | N |
| Multi-Family Redevelopment: | N | | |
| Township: | 32 | Section: | 16 |
| Range: | R1 |
Location |
| Address: | 29104 SR20 OAK HARBOR, WA 98277 | Mapsco: | |
| Neighborhood: | Cycle 1 | Map ID: | 131 |
| Neighborhood CD: | 1 |
Owner |
| Name: | BRATT, NICOLAS CRAIG | Owner ID: | 284028 |
| Mailing Address: | KELSEY JOANN BRATT 29104 STATE ROUTE 20 OAK HARBOR, WA 98277 | % Ownership: | 100.0000000000% |
| | | Exemptions: | |
Taxes and Assessment Details
Values
| (+) Improvement Homesite Value: | + | $0 | |
| (+) Improvement Non-Homesite Value: | + | $144,426 | |
| (+) Land Homesite Value: | + | $0 | |
| (+) Land Non-Homesite Value: | + | $240,000 | |
| (+) Curr Use (HS): | + | $0 | $0 |
| (+) Curr Use (NHS): | + | $0 | $0 |
| | | -------------------------- | |
| (=) Market Value: | = | $384,426 | |
| (–) Productivity Loss: | – | $0 | |
| | | -------------------------- | |
| (=) Subtotal: | = | $384,426 | |
| (+) Senior Appraised Value: | + | $0 | |
| (+) Non-Senior Appraised Value: | + | $384,426 | |
| | | -------------------------- | |
| (=) Total Appraised Value: | = | $384,426 | |
| (–) Senior Exemption Loss: | – | $0 | |
| (–) Exemption Loss: | – | $0 | |
| | | -------------------------- | |
| (=) Taxable Value: | = | $384,426 | |
Taxing Jurisdiction
| Owner: | BRATT, NICOLAS CRAIG | | |
| % Ownership: | 100.0000000000% | | |
| Total Value: | $384,426 | | |
| Tax Area: | 112 - APPRAISER-OH Schl Dist, outside OH, improved, greater than 1 acre |
| CF | Conservation Futures | 0.0316035091 | $384,426 | $384,426 | $12.15 | | |
| CEM1 | Cemetery #1 | 0.0040320932 | $384,426 | $384,426 | $1.55 | | |
| FIRE2 | Fire & Rescue Dist #2 N Whidbey GEN | 0.5475949600 | $384,426 | $384,426 | $210.51 | | |
| HOBOND | Hospital BOND | 0.1910887512 | $384,426 | $384,426 | $73.46 | | |
| HOGEN | Hospital GEN | 0.3902502903 | $384,426 | $384,426 | $150.02 | | |
| CE | County Current Expense | 0.3708482477 | $384,426 | $384,426 | $142.56 | | |
| CR | County Roads | 0.4584763726 | $384,426 | $384,426 | $176.25 | | |
| ISLANDEMS | Hospital GEN (EMS) | 0.5000000000 | $384,426 | $384,426 | $192.21 | | |
| LIB | Library Sno-Isle GEN | 0.3153421757 | $384,426 | $384,426 | $121.23 | | |
| NWHIDPRMT | P & R N Whidbey GEN | 0.2004466701 | $384,426 | $384,426 | $77.06 | | |
| SCH201MO | School 201 Enrichment | 1.8559231640 | $384,426 | $384,426 | $713.47 | | |
| ST | State School | 1.3035497053 | $384,426 | $384,426 | $501.12 | | |
| ST2 | State School Part 2 | 0.8169543533 | $384,426 | $384,426 | $314.06 | | |
| | Total Tax Rate: | 6.9861102925 | | | | | |
| | | | | Taxes w/Current Exemptions: | $2,685.65 | | |
| | | | | Taxes w/o Exemptions: | $2,685.65 | | |
Improvement / Building
| Improvement #1: | MANUFACTURED HOME | State Code: | Y | 1768.0 sqft | Value: | $144,426 |
| Bathrooms: | 2 | Bedrooms: | 3 | | Ceiling: | PLASTER PAINTED | Cooling: | EVAP NO DUCT | | Exterior Wall/Cover: | VINYL | Floor Covering: | CARPET 100% | | Floor Structure: | SLAB ON GRADE | Foundation: | SLAB | | Heating: | FHA ELECTRIC | Interior Finish: | PLASTER | | Roof Slope: | FLAT | Roof Structure/Cover: | CJ ALUMINIUM HEAVY |
|
Sketch
Property Image
Land
| 1 | 17 | AC (01.01-02.00) | 1.0600 | 46173.60 | 0.00 | 0.00 | 1.00 | $240,000 | $0 |
Roll Value History
| 2026 | N/A | N/A | N/A | N/A | N/A |
| 2025 | $144,426 | $240,000 | $0 | $384,426 | $384,426 |
| 2024 | $147,906 | $220,000 | $0 | $367,906 | $367,906 |
| 2023 | $128,609 | $220,000 | $0 | $348,609 | $348,609 |
| 2022 | $117,837 | $200,000 | $0 | $317,837 | $317,837 |
| 2021 | $103,657 | $170,000 | $0 | $273,657 | $273,657 |
| 2020 | $102,908 | $130,000 | $0 | $232,908 | $232,908 |
| 2019 | $82,026 | $200,000 | $0 | $282,026 | $282,026 |
| 2018 | $83,849 | $160,000 | $0 | $243,849 | $243,849 |
| 2017 | $77,664 | $150,000 | $0 | $227,664 | $227,664 |
| 2016 | $78,472 | $120,000 | $0 | $198,472 | $198,472 |
| 2015 | $80,088 | $90,000 | $0 | $170,088 | $170,088 |
| 2014 | $80,897 | $90,000 | $0 | $170,897 | $170,897 |
| 2013 | $81,705 | $102,000 | $0 | $183,705 | $183,705 |
| 2012 | $81,827 | $102,000 | $0 | $183,827 | $183,827 |
| 2011 | $83,893 | $120,000 | $0 | $203,893 | $203,893 |
| 2010 | $86,340 | $120,000 | $0 | $206,340 | $206,340 |
| 2009 | $90,668 | $120,000 | $0 | $210,668 | $210,668 |
| 2008 | $100,707 | $115,870 | $0 | $216,577 | $216,577 |
| 2007 | $102,455 | $115,870 | $0 | $218,325 | $218,325 |
Deed and Sales History
| 1 | 02/23/2018 | WD | Warranty Deed | BRATT, NICOLAS CRAIG | BRATT, NICOLAS CRAIG | | | $0.00 | 33095 | 4439910 |
| 2 | 02/23/2018 | WD | Warranty Deed | PCM HOLDINGS, LLC | BRATT, NICOLAS CRAIG | | | $295,000.00 | 33076 | 4439821 |
| 3 | 09/17/2007 | WD | Warranty Deed | HUFF, LISA M | PCM HOLDINGS, LLC, | | | $78,141.00 | 73146 | 4212018 |
| 4 | 04/01/1995 | QCD | Quit Claim Deed | TUCKER, RANDALL L | HUFF, LISA M | | | $0.00 | 51236 | 95005852 |
| 5 | 02/01/1986 | TRUSTEED | Trustee's Deed | RIDGE, WILLIAM J | TUCKER, RANDALL L | | | $0.00 | 60413 | 86002118 |
| 6 | 07/01/1981 | WD | Warranty Deed | BECK, NANCY K | RIDGE, WILLIAM J | | | $31,400.00 | 12173 | 385483 |
| 7 | 01/01/1900 | OTHER | Other - Misc. Documents | Unknown | BECK, NANCY K | | | $0.00 | 0 | 0 |
Payout Agreement
| No payout information available.. |