Property
Account |
| Property ID: | 204709 | Abbreviated Legal Description: | CAMALOCH 1 LOT 22 |
| Geographic ID: | S6235-00-00022-0 | Agent Code: | |
| Type: | Real | | |
| Tax Area: | 590 - APPRAISER-Stan/Cam Schl Dist, Special Dist, improved & less than 1 acre | Land Use Code | 11 |
| Open Space: | N | DFL | N |
| Historic Property: | N | Remodel Property: | N |
| Multi-Family Redevelopment: | N | | |
| Township: | | Section: | |
| Range: | |
Location |
| Address: | 277 LOCHWOOD DR CAMANO ISLAND, WA 98282 | Mapsco: | |
| Neighborhood: | Cycle 5 | Map ID: | 995 |
| Neighborhood CD: | 5 |
Owner |
| Name: | MORRISSON, KATHERINE S | Owner ID: | 309550 |
| Mailing Address: | 277 E LOCHWOOD DR CAMANO ISLAND, WA 98282 | % Ownership: | 100.0000000000% |
| | | Exemptions: | |
Taxes and Assessment Details
Values
| (+) Improvement Homesite Value: | + | $0 | |
| (+) Improvement Non-Homesite Value: | + | $315,480 | |
| (+) Land Homesite Value: | + | $0 | |
| (+) Land Non-Homesite Value: | + | $330,000 | |
| (+) Curr Use (HS): | + | $0 | $0 |
| (+) Curr Use (NHS): | + | $0 | $0 |
| | | -------------------------- | |
| (=) Market Value: | = | $645,480 | |
| (–) Productivity Loss: | – | $0 | |
| | | -------------------------- | |
| (=) Subtotal: | = | $645,480 | |
| (+) Senior Appraised Value: | + | $0 | |
| (+) Non-Senior Appraised Value: | + | $645,480 | |
| | | -------------------------- | |
| (=) Total Appraised Value: | = | $645,480 | |
| (–) Senior Exemption Loss: | – | $0 | |
| (–) Exemption Loss: | – | $0 | |
| | | -------------------------- | |
| (=) Taxable Value: | = | $645,480 | |
Taxing Jurisdiction
| Owner: | MORRISSON, KATHERINE S | | |
| % Ownership: | 100.0000000000% | | |
| Total Value: | $645,480 | | |
| Tax Area: | 590 - APPRAISER-Stan/Cam Schl Dist, Special Dist, improved & less than 1 acre |
| CF | Conservation Futures | 0.0316035091 | $645,480 | $645,480 | $20.40 | | |
| EMS1 | Fire & Rescue Dist #1 Camano GEN (EMS) | 0.3677864386 | $645,480 | $645,480 | $237.40 | | |
| FIRE1 | Fire & Rescue Dist #1 Camano GEN | 1.2502910536 | $645,480 | $645,480 | $807.04 | | |
| FIRE1BOND | Fire & Rescue Dist #1 Camano BOND | 0.1570001679 | $645,480 | $645,480 | $101.34 | | |
| CE | County Current Expense | 0.3708482477 | $645,480 | $645,480 | $239.38 | | |
| CR | County Roads | 0.4584763726 | $645,480 | $645,480 | $295.94 | | |
| LCIB | Library Sno-Isle BOND (Camano Island) | 0.0396325772 | $645,480 | $645,480 | $25.58 | | |
| LIB | Library Sno-Isle GEN | 0.3153421757 | $645,480 | $645,480 | $203.55 | | |
| SCH205_401 | School 205-401 Enrichment | 1.2698420524 | $645,480 | $645,480 | $819.66 | | |
| SCH205BOND | School 205-401 BOND | 0.9396497583 | $645,480 | $645,480 | $606.53 | | |
| ST | State School | 1.3035497053 | $645,480 | $645,480 | $841.42 | | |
| ST2 | State School Part 2 | 0.8169543533 | $645,480 | $645,480 | $527.33 | | |
| | Total Tax Rate: | 7.3209764117 | | | | | |
| | | | | Taxes w/Current Exemptions: | $4,725.57 | | |
| | | | | Taxes w/o Exemptions: | $4,725.57 | | |
Improvement / Building
| Improvement #1: | RESIDENTIAL | State Code: | Y | 2240.0 sqft | Value: | $315,480 |
| Bathrooms: | 2 | Bedrooms: | 2 | | Ceiling: | DRYWALL PAINTED | Cooling: | HEAT PUMP/CONV/V | | Exterior Wall/Cover: | WOOD SIDING | Floor Covering: | CARPET/VINYL 80-20 | | Floor Structure: | WOOD W/SUBFLOOR | Foundation: | CONCRETE | | Interior Finish: | DRYWALL PAINT | Plumbing Fixture Cnt: | 11 | | Roof Slope: | 4" IN 12" | Roof Structure/Cover: | CJ ALUMINIUM HEAVY |
|
| | Type | Description | Class CD | Sub Class CD | Year Built | Area |
| | BAS | BASE/MAIN FLOOR | 3 | 0 | 1982 | 1360.0 |
| | DWN | DOWNSTAIRS LIVING AREA | 3 | 0 | 1982 | 880.0 |
| | OWP | OPEN WOOD PORCH W/STEPS | 3 | 0 | 1982 | 670.0 |
Sketch
Property Image
Land
| 1 | 14 | SQ (08001-12000) | 0.0000 | 0.00 | 0.00 | 0.00 | 1.00 | $330,000 | $0 |
Roll Value History
| 2026 | N/A | N/A | N/A | N/A | N/A |
| 2025 | $315,480 | $330,000 | $0 | $645,480 | $645,480 |
| 2024 | $319,269 | $320,000 | $0 | $639,269 | $639,269 |
| 2023 | $307,901 | $300,000 | $0 | $607,901 | $607,901 |
| 2022 | $282,234 | $280,000 | $0 | $562,234 | $562,234 |
| 2021 | $224,631 | $175,000 | $0 | $399,631 | $399,631 |
| 2020 | $217,211 | $135,000 | $0 | $352,211 | $352,211 |
| 2019 | $162,727 | $175,000 | $0 | $337,727 | $337,727 |
| 2018 | $163,240 | $145,000 | $0 | $308,240 | $308,240 |
| 2017 | $164,264 | $125,000 | $0 | $289,264 | $289,264 |
| 2016 | $166,317 | $125,000 | $0 | $291,317 | $291,317 |
| 2015 | $152,627 | $95,000 | $0 | $247,627 | $247,627 |
| 2014 | $154,680 | $80,000 | $0 | $234,680 | $234,680 |
| 2013 | $156,732 | $80,000 | $0 | $236,732 | $236,732 |
| 2012 | $158,785 | $80,000 | $0 | $238,785 | $238,785 |
| 2011 | $160,840 | $100,000 | $0 | $260,840 | $260,840 |
| 2010 | $171,603 | $100,000 | $0 | $271,603 | $271,603 |
| 2009 | $171,069 | $125,000 | $0 | $296,069 | $296,069 |
| 2008 | $171,108 | $150,000 | $0 | $321,108 | $321,108 |
| 2007 | $173,301 | $135,000 | $0 | $308,301 | $308,301 |
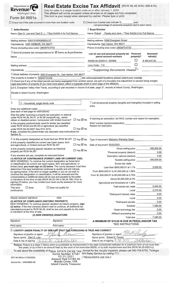
Deed and Sales History
| 1 | 07/28/2023 | WD | Warranty Deed | MESTL, DAVID | MORRISSON, KATHERINE S | | | $678,000.00 | 57532 | 4563101 |
| 2 | 11/13/2020 | WD | Warranty Deed | SCHMIDT, RICHARD L | MESTL, DAVID | | | $437,500.00 | 45810 | 4503010 |
| 3 | 09/17/2013 | WD | Warranty Deed | OLSEN, GAIL PATRICIA | SCHMIDT, RICHARD L | | | $230,000.00 | 12848 | 4348343 |
| 4 | 12/15/2004 | 5 | DNU - Marriage License/Name Change | BOSKOVICH, GAIL P | OLSEN, GAIL PATRICIA | | | $0.00 | 70418 | 0 |
| 5 | 12/07/2001 | DECREE | Divorce Decree/Legal Separation | BOSKOVICH, STEPHEN F | BOSKOVICH, GAIL P | | | $0.00 | 14645 | 4005216 |
| 6 | 05/01/1988 | WD | Warranty Deed | VEZZANI, CORT | BOSKOVICH, STEPHEN F | | | $77,500.00 | 81742 | 88006470 |
| 7 | 11/01/1981 | CD | DNU - Correction Deed | VEZZANI, LOUIS D | VEZZANI, CORT | | | $1.00 | 13637 | 390579 |
| 8 | 05/01/1979 | OTHER | Other - Misc. Documents | , | VEZZANI, LOUIS D | | | $10,800.00 | 92444 | 352757 |
| 9 | 08/01/1978 | OTHER | Other - Misc. Documents | Unknown | , | | | $8,500.00 | 840710 | 3385530 |
Payout Agreement
| No payout information available.. |