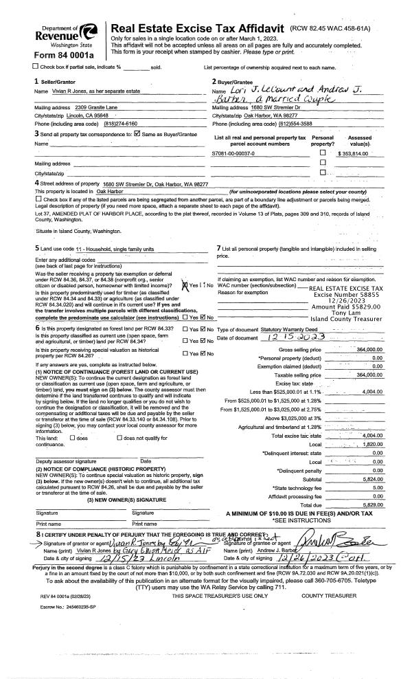
Property
Account |
| Property ID: | 205058 | Abbreviated Legal Description: | CAMALOCH 1 LOT 57 |
| Geographic ID: | S6235-00-00057-0 | Agent Code: | |
| Type: | Real | | |
| Tax Area: | 590 - APPRAISER-Stan/Cam Schl Dist, Special Dist, improved & less than 1 acre | Land Use Code | 11 |
| Open Space: | N | DFL | N |
| Historic Property: | N | Remodel Property: | N |
| Multi-Family Redevelopment: | N | | |
| Township: | | Section: | |
| Range: | |
Location |
| Address: | 298 PRESTWICK DR CAMANO ISLAND, WA 98282 | Mapsco: | |
| Neighborhood: | Cycle 5 | Map ID: | 995 |
| Neighborhood CD: | 5 |
Owner |
| Name: | RICHARDS, DON L | Owner ID: | 307448 |
| Mailing Address: | SHARON B RICHARDS PO BOX 275 STANWOOD, WA 98292 | % Ownership: | 100.0000000000% |
| | | Exemptions: | |
Taxes and Assessment Details
Values
| (+) Improvement Homesite Value: | + | $0 | |
| (+) Improvement Non-Homesite Value: | + | $271,332 | |
| (+) Land Homesite Value: | + | $0 | |
| (+) Land Non-Homesite Value: | + | $260,000 | |
| (+) Curr Use (HS): | + | $0 | $0 |
| (+) Curr Use (NHS): | + | $0 | $0 |
| | | -------------------------- | |
| (=) Market Value: | = | $531,332 | |
| (–) Productivity Loss: | – | $0 | |
| | | -------------------------- | |
| (=) Subtotal: | = | $531,332 | |
| (+) Senior Appraised Value: | + | $0 | |
| (+) Non-Senior Appraised Value: | + | $531,332 | |
| | | -------------------------- | |
| (=) Total Appraised Value: | = | $531,332 | |
| (–) Senior Exemption Loss: | – | $0 | |
| (–) Exemption Loss: | – | $0 | |
| | | -------------------------- | |
| (=) Taxable Value: | = | $531,332 | |
Taxing Jurisdiction
| Owner: | RICHARDS, DON L | | |
| % Ownership: | 100.0000000000% | | |
| Total Value: | $531,332 | | |
| Tax Area: | 590 - APPRAISER-Stan/Cam Schl Dist, Special Dist, improved & less than 1 acre |
| CF | Conservation Futures | 0.0316035091 | $531,332 | $531,332 | $16.79 | | |
| EMS1 | Fire & Rescue Dist #1 Camano GEN (EMS) | 0.3677864386 | $531,332 | $531,332 | $195.42 | | |
| FIRE1 | Fire & Rescue Dist #1 Camano GEN | 1.2502910536 | $531,332 | $531,332 | $664.32 | | |
| FIRE1BOND | Fire & Rescue Dist #1 Camano BOND | 0.1570001679 | $531,332 | $531,332 | $83.42 | | |
| CE | County Current Expense | 0.3708482477 | $531,332 | $531,332 | $197.04 | | |
| CR | County Roads | 0.4584763726 | $531,332 | $531,332 | $243.60 | | |
| LCIB | Library Sno-Isle BOND (Camano Island) | 0.0396325772 | $531,332 | $531,332 | $21.06 | | |
| LIB | Library Sno-Isle GEN | 0.3153421757 | $531,332 | $531,332 | $167.55 | | |
| SCH205_401 | School 205-401 Enrichment | 1.2698420524 | $531,332 | $531,332 | $674.71 | | |
| SCH205BOND | School 205-401 BOND | 0.9396497583 | $531,332 | $531,332 | $499.27 | | |
| ST | State School | 1.3035497053 | $531,332 | $531,332 | $692.62 | | |
| ST2 | State School Part 2 | 0.8169543533 | $531,332 | $531,332 | $434.07 | | |
| | Total Tax Rate: | 7.3209764117 | | | | | |
| | | | | Taxes w/Current Exemptions: | $3,889.87 | | |
| | | | | Taxes w/o Exemptions: | $3,889.87 | | |
Improvement / Building
| Improvement #1: | RESIDENTIAL | State Code: | Y | 1346.0 sqft | Value: | $271,332 |
| Bathrooms: | 2 | Bedrooms: | 2 | | Ceiling: | DRYWALL PAINTED | Exterior Wall/Cover: | PLY/HARDBOARD T-111 | | Floor Covering: | HARDWOOD/CARP 60-40 | Floor Structure: | WOOD W/SUBFLOOR | | Foundation: | CONCRETE | Heating: | FHA GAS | | Interior Finish: | DRYWALL PAINT | Plumbing Fixture Cnt: | 9 | | Roof Slope: | 4" IN 12" | Roof Structure/Cover: | CJ ASPHALT |
|
| | Type | Description | Class CD | Sub Class CD | Year Built | Area |
| | BAS | BASE/MAIN FLOOR | 3 | 0 | 1990 | 1346.0 |
| | OP3 | OPEN PORCH W/ROOF | 3 | 0 | 1990 | 33.0 |
| | AGR | ATTACHED GARAGE | 3 | 0 | 1990 | 550.0 |
| | OWR | OPEN WOOD PORCH W/STEPS/ROOF | 3 | 0 | 1990 | 220.0 |
| | OWC | OPEN WOOD PORCH W/STEPS/ROOF/C | 3 | 0 | 1990 | 48.0 |
Sketch
Property Image
Land
| 1 | 14 | SQ (08001-12000) | 0.0000 | 0.00 | 0.00 | 0.00 | 1.00 | $260,000 | $0 |
Roll Value History
| 2026 | N/A | N/A | N/A | N/A | N/A |
| 2025 | $271,332 | $260,000 | $0 | $531,332 | $531,332 |
| 2024 | $274,845 | $250,000 | $0 | $524,845 | $524,845 |
| 2023 | $278,357 | $250,000 | $0 | $528,357 | $528,357 |
| 2022 | $248,878 | $210,000 | $0 | $458,878 | $458,878 |
| 2021 | $219,181 | $165,000 | $0 | $384,181 | $384,181 |
| 2020 | $213,549 | $135,000 | $0 | $348,549 | $348,549 |
| 2019 | $153,915 | $175,000 | $0 | $328,915 | $328,915 |
| 2018 | $154,387 | $145,000 | $0 | $299,387 | $299,387 |
| 2017 | $155,335 | $100,000 | $0 | $255,335 | $255,335 |
| 2016 | $157,229 | $85,000 | $0 | $242,229 | $242,229 |
| 2015 | $150,015 | $65,000 | $0 | $215,015 | $215,015 |
| 2014 | $151,920 | $55,000 | $0 | $206,920 | $206,920 |
| 2013 | $153,824 | $55,000 | $0 | $208,824 | $208,824 |
| 2012 | $155,728 | $60,000 | $0 | $215,728 | $215,728 |
| 2011 | $157,632 | $65,000 | $0 | $222,632 | $222,632 |
| 2010 | $164,205 | $76,000 | $0 | $240,205 | $240,205 |
| 2009 | $168,986 | $100,000 | $0 | $268,986 | $268,986 |
| 2008 | $171,133 | $125,000 | $0 | $296,133 | $296,133 |
| 2007 | $173,258 | $100,000 | $0 | $273,258 | $273,258 |
Deed and Sales History
| 1 | 01/19/2023 | WD | Warranty Deed | HOLMAN, RALPH P | RICHARDS, DON L | | | $534,500.00 | 55660 | 4555872 |
| 2 | 08/29/2012 | WD | Warranty Deed | SHAY, ROBERT L | HOLMAN, RALPH P | | | $192,000.00 | 8781 | 4322562 |
| 3 | 05/01/1990 | WD | Warranty Deed | MACKAY, HOMES I | SHAY, ROBERT L | | | $115,000.00 | 2632 | 90008498 |
| 4 | 07/01/1989 | WD | Warranty Deed | HOWELL, W D | MACKAY, HOMES I | | | $10,500.00 | 92696 | 89009085 |
| 5 | 05/01/1981 | TRUSTEED | Trustee's Deed | DILL, GERALD B | HOWELL, W D | | | $8,000.00 | 11596 | 383431 |
| 6 | 01/01/1900 | OTHER | Other - Misc. Documents | Unknown | DILL, GERALD B | | | $0.00 | 0 | 0 |
Payout Agreement
| No payout information available.. |