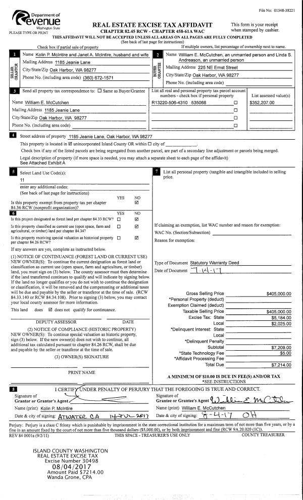
Property
Account |
| Property ID: | 205414 | Abbreviated Legal Description: | CAMALOCH 1 LOT 93 |
| Geographic ID: | S6235-00-00093-0 | Agent Code: | |
| Type: | Real | | |
| Tax Area: | 590 - APPRAISER-Stan/Cam Schl Dist, Special Dist, improved & less than 1 acre | Land Use Code | 11 |
| Open Space: | N | DFL | N |
| Historic Property: | N | Remodel Property: | N |
| Multi-Family Redevelopment: | N | | |
| Township: | | Section: | |
| Range: | |
Location |
| Address: | 289 MACKENZIE DR CAMANO ISLAND, WA 98282 | Mapsco: | |
| Neighborhood: | Cycle 5 | Map ID: | 995 |
| Neighborhood CD: | 5 |
Owner |
| Name: | DAVIS, HALEN | Owner ID: | 299053 |
| Mailing Address: | ISABELLA SEDA 289 MACKENZIE DR CAMANO ISLAND, WA 98282 | % Ownership: | 100.0000000000% |
| | | Exemptions: | |
Taxes and Assessment Details
Values
| (+) Improvement Homesite Value: | + | $0 | |
| (+) Improvement Non-Homesite Value: | + | $265,690 | |
| (+) Land Homesite Value: | + | $0 | |
| (+) Land Non-Homesite Value: | + | $260,000 | |
| (+) Curr Use (HS): | + | $0 | $0 |
| (+) Curr Use (NHS): | + | $0 | $0 |
| | | -------------------------- | |
| (=) Market Value: | = | $525,690 | |
| (–) Productivity Loss: | – | $0 | |
| | | -------------------------- | |
| (=) Subtotal: | = | $525,690 | |
| (+) Senior Appraised Value: | + | $0 | |
| (+) Non-Senior Appraised Value: | + | $525,690 | |
| | | -------------------------- | |
| (=) Total Appraised Value: | = | $525,690 | |
| (–) Senior Exemption Loss: | – | $0 | |
| (–) Exemption Loss: | – | $0 | |
| | | -------------------------- | |
| (=) Taxable Value: | = | $525,690 | |
Taxing Jurisdiction
| Owner: | DAVIS, HALEN | | |
| % Ownership: | 100.0000000000% | | |
| Total Value: | $525,690 | | |
| Tax Area: | 590 - APPRAISER-Stan/Cam Schl Dist, Special Dist, improved & less than 1 acre |
| CF | Conservation Futures | 0.0316035091 | $525,690 | $525,690 | $16.61 | | |
| EMS1 | Fire & Rescue Dist #1 Camano GEN (EMS) | 0.3677864386 | $525,690 | $525,690 | $193.34 | | |
| FIRE1 | Fire & Rescue Dist #1 Camano GEN | 1.2502910536 | $525,690 | $525,690 | $657.27 | | |
| FIRE1BOND | Fire & Rescue Dist #1 Camano BOND | 0.1570001679 | $525,690 | $525,690 | $82.53 | | |
| CE | County Current Expense | 0.3708482477 | $525,690 | $525,690 | $194.95 | | |
| CR | County Roads | 0.4584763726 | $525,690 | $525,690 | $241.02 | | |
| LCIB | Library Sno-Isle BOND (Camano Island) | 0.0396325772 | $525,690 | $525,690 | $20.83 | | |
| LIB | Library Sno-Isle GEN | 0.3153421757 | $525,690 | $525,690 | $165.77 | | |
| SCH205_401 | School 205-401 Enrichment | 1.2698420524 | $525,690 | $525,690 | $667.54 | | |
| SCH205BOND | School 205-401 BOND | 0.9396497583 | $525,690 | $525,690 | $493.96 | | |
| ST | State School | 1.3035497053 | $525,690 | $525,690 | $685.26 | | |
| ST2 | State School Part 2 | 0.8169543533 | $525,690 | $525,690 | $429.46 | | |
| | Total Tax Rate: | 7.3209764117 | | | | | |
| | | | | Taxes w/Current Exemptions: | $3,848.54 | | |
| | | | | Taxes w/o Exemptions: | $3,848.54 | | |
Improvement / Building
| Improvement #1: | RESIDENTIAL | State Code: | Y | 1402.0 sqft | Value: | $265,690 |
| Bathrooms: | 1.75 | Bedrooms: | 2 | | Ceiling: | DRYWALL PAINTED | Exterior Wall/Cover: | PLY/HARDBOARD T-111 | | Floor Covering: | VINYL/HARDWOOD 20-80 | Floor Structure: | WOOD W/SUBFLOOR | | Foundation: | CONCRETE | Heating: | WALL HEAT ELECTRIC | | Interior Finish: | DRYWALL PAINT | Plumbing Fixture Cnt: | 9 | | Roof Slope: | 4" IN 12" | Roof Structure/Cover: | CJ ASPHALT |
|
| | Type | Description | Class CD | Sub Class CD | Year Built | Area |
| | BAS | BASE/MAIN FLOOR | 3 | 0 | 1988 | 1402.0 |
| | AGR | ATTACHED GARAGE | 3 | 0 | 1988 | 504.0 |
| | OWP | OPEN WOOD PORCH W/STEPS | 3 | 0 | 1988 | 252.0 |
| | OWC | OPEN WOOD PORCH W/STEPS/ROOF/C | 3 | 0 | 1988 | 126.0 |
Sketch
Property Image
Land
| 1 | 14 | SQ (08001-12000) | 0.0000 | 0.00 | 0.00 | 0.00 | 1.00 | $260,000 | $0 |
Roll Value History
| 2026 | N/A | N/A | N/A | N/A | N/A |
| 2025 | $265,690 | $260,000 | $0 | $525,690 | $525,690 |
| 2024 | $268,960 | $250,000 | $0 | $518,960 | $518,960 |
| 2023 | $272,229 | $250,000 | $0 | $522,229 | $522,229 |
| 2022 | $249,465 | $210,000 | $0 | $459,465 | $459,465 |
| 2021 | $209,525 | $165,000 | $0 | $374,525 | $374,525 |
| 2020 | $204,189 | $135,000 | $0 | $339,189 | $339,189 |
| 2019 | $147,692 | $175,000 | $0 | $322,692 | $322,692 |
| 2018 | $148,146 | $145,000 | $0 | $293,146 | $293,146 |
| 2017 | $149,056 | $100,000 | $0 | $249,056 | $249,056 |
| 2016 | $150,874 | $85,000 | $0 | $235,874 | $235,874 |
| 2015 | $157,623 | $65,000 | $0 | $222,623 | $222,623 |
| 2014 | $159,543 | $55,000 | $0 | $214,543 | $214,543 |
| 2013 | $161,465 | $55,000 | $0 | $216,465 | $216,465 |
| 2012 | $163,385 | $60,000 | $0 | $223,385 | $223,385 |
| 2011 | $165,305 | $65,000 | $0 | $230,305 | $230,305 |
| 2010 | $171,720 | $76,000 | $0 | $247,720 | $247,720 |
| 2009 | $161,191 | $100,000 | $0 | $261,191 | $261,191 |
| 2008 | $163,408 | $125,000 | $0 | $288,408 | $288,408 |
| 2007 | $165,639 | $100,000 | $0 | $265,639 | $265,639 |
Deed and Sales History
| 1 | 04/25/2021 | WD | Warranty Deed | BRAUNEIS, MARGARET APRIL PANSY | DAVIS, HALEN | | | $465,000.00 | 47957 | 4517475 |
| 2 | 07/07/2017 | WD | Warranty Deed | STANG, TROY | BRAUNEIS, MARGARET APRIL PANSY | | | $337,500.00 | 30174 | 4426172 |
| 3 | 05/30/2007 | WD | Warranty Deed | ALEXANDER, MYLES | STANG, TROY | | | $303,000.00 | 71834 | 4203534 |
| 4 | 03/21/2006 | QCD | Quit Claim Deed | GRAFF, VIOLA L | ALEXANDER, MYLES | | | $0.00 | 61318 | 4166205 |
| 5 | 05/13/2002 | WD | Warranty Deed | FURNAS, EDNA C | GRAFF, VIOLA L | | | $153,000.00 | 21835 | 4020089 |
| 6 | 06/01/1997 | WD | Warranty Deed | WRIGHT, CHESTER M | FURNAS, EDNA C | | | $137,000.00 | 71855 | 97008527 |
| 7 | 05/01/1988 | WD | Warranty Deed | HALE, J F | WRIGHT, CHESTER M | | | $66,750.00 | 81401 | 88005235 |
| 8 | 10/01/1987 | WD | Warranty Deed | CURRIE, JACK B | HALE, J F | | | $8,500.00 | 73323 | 87014552 |
| 9 | 01/01/1900 | OTHER | Other - Misc. Documents | Unknown | CURRIE, JACK B | | | $0.00 | 0 | 0 |
Payout Agreement
| No payout information available.. |