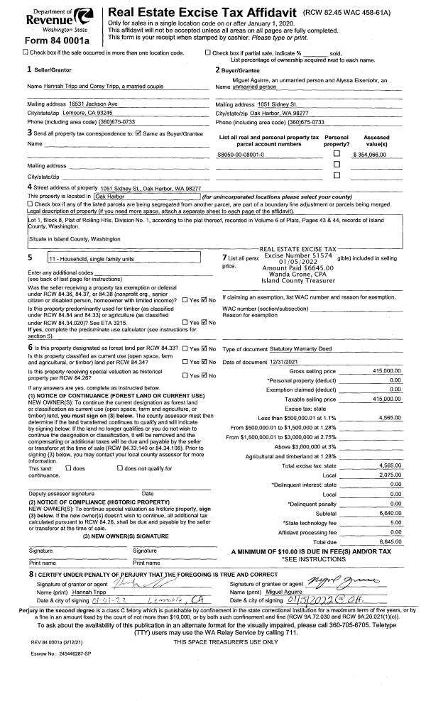
Property
Account |
| Property ID: | 205593 | Abbreviated Legal Description: | CAMALOCH 1 LOT 111 |
| Geographic ID: | S6235-00-00111-0 | Agent Code: | |
| Type: | Real | | |
| Tax Area: | 590 - APPRAISER-Stan/Cam Schl Dist, Special Dist, improved & less than 1 acre | Land Use Code | 11 |
| Open Space: | N | DFL | N |
| Historic Property: | N | Remodel Property: | N |
| Multi-Family Redevelopment: | N | | |
| Township: | | Section: | |
| Range: | |
Location |
| Address: | 331 CAMALOCH DR CAMANO ISLAND, WA 98282 | Mapsco: | |
| Neighborhood: | Cycle 5 | Map ID: | 995 |
| Neighborhood CD: | 5 |
Owner |
| Name: | DIERS, THOMAS | Owner ID: | 301671 |
| Mailing Address: | MARCIA DIERS 331 CAMALOCH DR CAMANO ISLAND, WA 98282 | % Ownership: | 100.0000000000% |
| | | Exemptions: | |
Taxes and Assessment Details
Values
| (+) Improvement Homesite Value: | + | $0 | |
| (+) Improvement Non-Homesite Value: | + | $558,335 | |
| (+) Land Homesite Value: | + | $0 | |
| (+) Land Non-Homesite Value: | + | $310,000 | |
| (+) Curr Use (HS): | + | $0 | $0 |
| (+) Curr Use (NHS): | + | $0 | $0 |
| | | -------------------------- | |
| (=) Market Value: | = | $868,335 | |
| (–) Productivity Loss: | – | $0 | |
| | | -------------------------- | |
| (=) Subtotal: | = | $868,335 | |
| (+) Senior Appraised Value: | + | $0 | |
| (+) Non-Senior Appraised Value: | + | $868,335 | |
| | | -------------------------- | |
| (=) Total Appraised Value: | = | $868,335 | |
| (–) Senior Exemption Loss: | – | $0 | |
| (–) Exemption Loss: | – | $0 | |
| | | -------------------------- | |
| (=) Taxable Value: | = | $868,335 | |
Taxing Jurisdiction
| Owner: | DIERS, THOMAS | | |
| % Ownership: | 100.0000000000% | | |
| Total Value: | $868,335 | | |
| Tax Area: | 590 - APPRAISER-Stan/Cam Schl Dist, Special Dist, improved & less than 1 acre |
| CF | Conservation Futures | 0.0316035091 | $868,335 | $868,335 | $27.44 | | |
| EMS1 | Fire & Rescue Dist #1 Camano GEN (EMS) | 0.3677864386 | $868,335 | $868,335 | $319.36 | | |
| FIRE1 | Fire & Rescue Dist #1 Camano GEN | 1.2502910536 | $868,335 | $868,335 | $1,085.67 | | |
| FIRE1BOND | Fire & Rescue Dist #1 Camano BOND | 0.1570001679 | $868,335 | $868,335 | $136.33 | | |
| CE | County Current Expense | 0.3708482477 | $868,335 | $868,335 | $322.02 | | |
| CR | County Roads | 0.4584763726 | $868,335 | $868,335 | $398.11 | | |
| LCIB | Library Sno-Isle BOND (Camano Island) | 0.0396325772 | $868,335 | $868,335 | $34.41 | | |
| LIB | Library Sno-Isle GEN | 0.3153421757 | $868,335 | $868,335 | $273.82 | | |
| SCH205_401 | School 205-401 Enrichment | 1.2698420524 | $868,335 | $868,335 | $1,102.65 | | |
| SCH205BOND | School 205-401 BOND | 0.9396497583 | $868,335 | $868,335 | $815.93 | | |
| ST | State School | 1.3035497053 | $868,335 | $868,335 | $1,131.92 | | |
| ST2 | State School Part 2 | 0.8169543533 | $868,335 | $868,335 | $709.39 | | |
| | Total Tax Rate: | 7.3209764117 | | | | | |
| | | | | Taxes w/Current Exemptions: | $6,357.05 | | |
| | | | | Taxes w/o Exemptions: | $6,357.05 | | |
Improvement / Building
| Improvement #1: | RESIDENTIAL | State Code: | Y | 3430.0 sqft | Value: | $558,335 |
| Bathrooms: | 2 | Bedrooms: | 2 | | Ceiling: | DRYWALL PAINTED | Cooling: | HEAT PUMP/CONV/V | | Exterior Wall/Cover: | CEMENT FIBER | Floor Covering: | HARDWOOD/CARP 20-80 | | Floor Structure: | WOOD W/SUBFLOOR | Foundation: | CONCRETE | | Interior Finish: | DRYWALL PAINT | Plumbing Fixture Cnt: | 12 | | Roof Slope: | 5" IN 12" | Roof Structure/Cover: | CJ ASPHALT |
|
| | Type | Description | Class CD | Sub Class CD | Year Built | Area |
| | BAS | BASE/MAIN FLOOR | 4 | 0 | 1997 | 2130.0 |
| | DWN | DOWNSTAIRS LIVING AREA | 4 | 0 | 1997 | 1300.0 |
| | OP1 | OPEN PORCH SLAB | 4 | 0 | 1997 | 260.0 |
| | OP4 | OPEN PORCH W/CEILING-ROOF | 4 | 0 | 1997 | 162.0 |
| | AGR | ATTACHED GARAGE | 4 | 0 | 1997 | 528.0 |
| | BIG | BUILT IN GARAGE | 4 | 0 | 1997 | 182.0 |
| | OWP | OPEN WOOD PORCH W/STEPS | 4 | 0 | 1997 | 216.0 |
| | OWC | OPEN WOOD PORCH W/STEPS/ROOF/C | 4 | 0 | 1997 | 260.0 |
Sketch
Property Image
Land
| 1 | 15 | SQ (12001-21780) | 0.0000 | 0.00 | 0.00 | 0.00 | 1.00 | $310,000 | $0 |
Roll Value History
| 2026 | N/A | N/A | N/A | N/A | N/A |
| 2025 | $558,335 | $310,000 | $0 | $868,335 | $868,335 |
| 2024 | $564,883 | $300,000 | $0 | $864,883 | $864,883 |
| 2023 | $571,433 | $260,000 | $0 | $831,433 | $831,433 |
| 2022 | $523,374 | $210,000 | $0 | $733,374 | $733,374 |
| 2021 | $394,609 | $200,000 | $0 | $594,609 | $594,609 |
| 2020 | $385,683 | $140,000 | $0 | $525,683 | $525,683 |
| 2019 | $308,999 | $200,000 | $0 | $508,999 | $508,999 |
| 2018 | $309,928 | $145,000 | $0 | $454,928 | $454,928 |
| 2017 | $311,781 | $120,000 | $0 | $431,781 | $431,781 |
| 2016 | $315,494 | $115,000 | $0 | $430,494 | $430,494 |
| 2015 | $283,124 | $115,000 | $0 | $398,124 | $398,124 |
| 2014 | $286,578 | $100,000 | $0 | $386,578 | $386,578 |
| 2013 | $290,033 | $100,000 | $0 | $390,033 | $390,033 |
| 2012 | $293,490 | $100,000 | $0 | $393,490 | $393,490 |
| 2011 | $296,944 | $125,000 | $0 | $421,944 | $421,944 |
| 2010 | $307,874 | $125,000 | $0 | $432,874 | $432,874 |
| 2009 | $322,535 | $150,000 | $0 | $472,535 | $472,535 |
| 2008 | $326,703 | $175,000 | $0 | $501,703 | $501,703 |
| 2007 | $330,857 | $150,000 | $0 | $480,857 | $480,857 |
Deed and Sales History
| 1 | 10/18/2021 | WD | Warranty Deed | ZAHNER TRUSTEE, FRANK M | DIERS, THOMAS | | | $700,000.00 | 50571 | 4531868 |
| 2 | 10/19/2005 | 5 | DNU - Marriage License/Name Change | ZAHNER, SHIRLEY J | ZAHNER TRUSTEE, FRANK M | | | $0.00 | 55395 | 4152138 |
| 3 | 07/01/1997 | WD | Warranty Deed | ZAHNER, SHIRLEY J | ZAHNER, SHIRLEY J | | | $284,000.00 | 72361 | 97011168 |
| 4 | 07/01/1997 | ESTSEPPROP | Establish Separate Property | CLASSIC, DESIGN C | ZAHNER, SHIRLEY J | | | $0.00 | 72362 | 97011169 |
| 5 | 03/01/1996 | WD | Warranty Deed | FLEEHART, EARL W | CLASSIC, DESIGN C | | | $68,000.00 | 60833 | 96004399 |
| 6 | 01/01/1900 | OTHER | Other - Misc. Documents | Unknown | FLEEHART, EARL W | | | $0.00 | 0 | 0 |
Payout Agreement
| No payout information available.. |