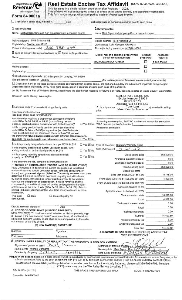
Property
Account |
| Property ID: | 205628 | Abbreviated Legal Description: | CAMALOCH 1 LOT 114 |
| Geographic ID: | S6235-00-00114-0 | Agent Code: | |
| Type: | Real | | |
| Tax Area: | 599 - APPRAISER-Stan/Cam Schl Dist, Special Dist, vacant & 50 acres or less | Land Use Code | 99 |
| Open Space: | N | DFL | N |
| Historic Property: | N | Remodel Property: | N |
| Multi-Family Redevelopment: | N | | |
| Township: | | Section: | |
| Range: | |
Location |
| Address: | | Mapsco: | |
| Neighborhood: | Cycle 5 | Map ID: | 995 |
| Neighborhood CD: | 5 |
Owner |
| Name: | SHUMATE, GREGORY L | Owner ID: | 264757 |
| Mailing Address: | JEAN I SHUMATE 1633 COUNTRY CLUB DR CAMANO ISLAND, WA 98282 | % Ownership: | 100.0000000000% |
| | | Exemptions: | |
Taxes and Assessment Details
Values
| (+) Improvement Homesite Value: | + | $0 | |
| (+) Improvement Non-Homesite Value: | + | $0 | |
| (+) Land Homesite Value: | + | $0 | |
| (+) Land Non-Homesite Value: | + | $170,000 | |
| (+) Curr Use (HS): | + | $0 | $0 |
| (+) Curr Use (NHS): | + | $0 | $0 |
| | | -------------------------- | |
| (=) Market Value: | = | $170,000 | |
| (–) Productivity Loss: | – | $0 | |
| | | -------------------------- | |
| (=) Subtotal: | = | $170,000 | |
| (+) Senior Appraised Value: | + | $0 | |
| (+) Non-Senior Appraised Value: | + | $170,000 | |
| | | -------------------------- | |
| (=) Total Appraised Value: | = | $170,000 | |
| (–) Senior Exemption Loss: | – | $0 | |
| (–) Exemption Loss: | – | $0 | |
| | | -------------------------- | |
| (=) Taxable Value: | = | $170,000 | |
Taxing Jurisdiction
| Owner: | SHUMATE, GREGORY L | | |
| % Ownership: | 100.0000000000% | | |
| Total Value: | $170,000 | | |
| Tax Area: | 599 - APPRAISER-Stan/Cam Schl Dist, Special Dist, vacant & 50 acres or less |
| CF | Conservation Futures | 0.0316035091 | $170,000 | $170,000 | $5.37 | | |
| EMS1 | Fire & Rescue Dist #1 Camano GEN (EMS) | 0.3677864386 | $170,000 | $170,000 | $62.52 | | |
| CE | County Current Expense | 0.3708482477 | $170,000 | $170,000 | $63.04 | | |
| CR | County Roads | 0.4584763726 | $170,000 | $170,000 | $77.94 | | |
| LCIB | Library Sno-Isle BOND (Camano Island) | 0.0396325772 | $170,000 | $170,000 | $6.74 | | |
| LIB | Library Sno-Isle GEN | 0.3153421757 | $170,000 | $170,000 | $53.61 | | |
| SCH205_401 | School 205-401 Enrichment | 1.2698420524 | $170,000 | $170,000 | $215.87 | | |
| SCH205BOND | School 205-401 BOND | 0.9396497583 | $170,000 | $170,000 | $159.74 | | |
| ST | State School | 1.3035497053 | $170,000 | $170,000 | $221.60 | | |
| ST2 | State School Part 2 | 0.8169543533 | $170,000 | $170,000 | $138.88 | | |
| | Total Tax Rate: | 5.9136851902 | | | | | |
| | | | | Taxes w/Current Exemptions: | $1,005.31 | | |
| | | | | Taxes w/o Exemptions: | $1,005.31 | | |
Improvement / Building
Sketch
| No sketches available for this property. |
Property Image
Land
| 1 | 15 | SQ (12001-21780) | 0.1500 | 6534.00 | 0.00 | 0.00 | 1.00 | $170,000 | $0 |
Roll Value History
| 2026 | N/A | N/A | N/A | N/A | N/A |
| 2025 | $0 | $170,000 | $0 | $170,000 | $170,000 |
| 2024 | $0 | $160,000 | $0 | $160,000 | $160,000 |
| 2023 | $0 | $150,000 | $0 | $150,000 | $150,000 |
| 2022 | $0 | $150,000 | $0 | $150,000 | $150,000 |
| 2021 | $0 | $130,000 | $0 | $130,000 | $130,000 |
| 2020 | $0 | $120,000 | $0 | $120,000 | $120,000 |
| 2019 | $0 | $120,000 | $0 | $120,000 | $120,000 |
| 2018 | $0 | $120,000 | $0 | $120,000 | $120,000 |
| 2017 | $0 | $115,000 | $0 | $115,000 | $115,000 |
| 2016 | $0 | $115,000 | $0 | $115,000 | $115,000 |
| 2015 | $0 | $115,000 | $0 | $115,000 | $115,000 |
| 2014 | $0 | $100,000 | $0 | $100,000 | $100,000 |
| 2013 | $0 | $100,000 | $0 | $100,000 | $100,000 |
| 2012 | $0 | $100,000 | $0 | $100,000 | $100,000 |
| 2011 | $0 | $125,000 | $0 | $125,000 | $125,000 |
| 2010 | $0 | $125,000 | $0 | $125,000 | $125,000 |
| 2009 | $0 | $150,000 | $0 | $150,000 | $150,000 |
| 2008 | $0 | $175,000 | $0 | $175,000 | $175,000 |
| 2007 | $0 | $150,000 | $0 | $150,000 | $150,000 |
Deed and Sales History
| 1 | 12/16/2013 | WD | Warranty Deed | RAND, GERAL R | SHUMATE, GREGORY L | | | $124,000.00 | 13916 | 4353384 |
| 2 | 01/17/2003 | WD | Warranty Deed | NORTH PUTGET CONSTRUCTION INC, | RAND, GERAL R | | | $110,000.00 | 30438 | 4046728 |
| 3 | 10/18/2000 | WD | Warranty Deed | DENTON, DAVID L | NORTH PUTGET CONSTRUCTION INC, | | | $75,000.00 | 4098 | 20018870 |
| 4 | 08/01/1996 | WD | Warranty Deed | DIMMERMAN, HARRY T | DENTON, DAVID L | | | $79,500.00 | 63129 | 96015366 |
| 5 | 08/01/1993 | WD | Warranty Deed | WRIGHT, THOMAS | DIMMERMAN, HARRY T | | | $69,000.00 | 33210 | 93016746 |
| 6 | 01/01/1900 | OTHER | Other - Misc. Documents | Unknown | WRIGHT, THOMAS | | | $0.00 | 0 | 0 |
Payout Agreement
| No payout information available.. |