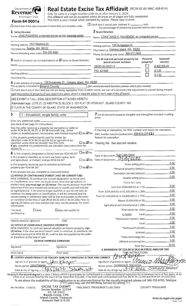
Property
Account |
| Property ID: | 205986 | Abbreviated Legal Description: | CAMALOCH 1 LOT 150 |
| Geographic ID: | S6235-00-00150-0 | Agent Code: | |
| Type: | Real | | |
| Tax Area: | 590 - APPRAISER-Stan/Cam Schl Dist, Special Dist, improved & less than 1 acre | Land Use Code | 11 |
| Open Space: | N | DFL | N |
| Historic Property: | N | Remodel Property: | N |
| Multi-Family Redevelopment: | N | | |
| Township: | | Section: | |
| Range: | |
Location |
| Address: | 326 PRESTWICK DR CAMANO ISLAND, WA 98282 | Mapsco: | |
| Neighborhood: | Cycle 5 | Map ID: | 995 |
| Neighborhood CD: | 5 |
Owner |
| Name: | MORGAN, LUCILLE A | Owner ID: | 316887 |
| Mailing Address: | 326 PRESTWICK DR CAMANO ISLAND, WA 98282 | % Ownership: | 100.0000000000% |
| | | Exemptions: | |
Taxes and Assessment Details
Values
| (+) Improvement Homesite Value: | + | $0 | |
| (+) Improvement Non-Homesite Value: | + | $249,309 | |
| (+) Land Homesite Value: | + | $0 | |
| (+) Land Non-Homesite Value: | + | $260,000 | |
| (+) Curr Use (HS): | + | $0 | $0 |
| (+) Curr Use (NHS): | + | $0 | $0 |
| | | -------------------------- | |
| (=) Market Value: | = | $509,309 | |
| (–) Productivity Loss: | – | $0 | |
| | | -------------------------- | |
| (=) Subtotal: | = | $509,309 | |
| (+) Senior Appraised Value: | + | $0 | |
| (+) Non-Senior Appraised Value: | + | $509,309 | |
| | | -------------------------- | |
| (=) Total Appraised Value: | = | $509,309 | |
| (–) Senior Exemption Loss: | – | $0 | |
| (–) Exemption Loss: | – | $0 | |
| | | -------------------------- | |
| (=) Taxable Value: | = | $509,309 | |
Taxing Jurisdiction
| Owner: | MORGAN, LUCILLE A | | |
| % Ownership: | 100.0000000000% | | |
| Total Value: | $509,309 | | |
| Tax Area: | 590 - APPRAISER-Stan/Cam Schl Dist, Special Dist, improved & less than 1 acre |
| CF | Conservation Futures | 0.0316035091 | $509,309 | $509,309 | $16.10 | | |
| EMS1 | Fire & Rescue Dist #1 Camano GEN (EMS) | 0.3677864386 | $509,309 | $509,309 | $187.32 | | |
| FIRE1 | Fire & Rescue Dist #1 Camano GEN | 1.2502910536 | $509,309 | $509,309 | $636.78 | | |
| FIRE1BOND | Fire & Rescue Dist #1 Camano BOND | 0.1570001679 | $509,309 | $509,309 | $79.96 | | |
| CE | County Current Expense | 0.3708482477 | $509,309 | $509,309 | $188.88 | | |
| CR | County Roads | 0.4584763726 | $509,309 | $509,309 | $233.51 | | |
| LCIB | Library Sno-Isle BOND (Camano Island) | 0.0396325772 | $509,309 | $509,309 | $20.19 | | |
| LIB | Library Sno-Isle GEN | 0.3153421757 | $509,309 | $509,309 | $160.61 | | |
| SCH205_401 | School 205-401 Enrichment | 1.2698420524 | $509,309 | $509,309 | $646.74 | | |
| SCH205BOND | School 205-401 BOND | 0.9396497583 | $509,309 | $509,309 | $478.57 | | |
| ST | State School | 1.3035497053 | $509,309 | $509,309 | $663.91 | | |
| ST2 | State School Part 2 | 0.8169543533 | $509,309 | $509,309 | $416.08 | | |
| | Total Tax Rate: | 7.3209764117 | | | | | |
| | | | | Taxes w/Current Exemptions: | $3,728.65 | | |
| | | | | Taxes w/o Exemptions: | $3,728.65 | | |
Improvement / Building
| Improvement #1: | RESIDENTIAL | State Code: | Y | 1418.0 sqft | Value: | $249,309 |
| Bathrooms: | 1.5 | Bedrooms: | 2 | | Ceiling: | DRYWALL PAINTED | Exterior Wall/Cover: | VINYL | | Floor Covering: | CARPET/VINYL 60-40 | Floor Structure: | WOOD W/SUBFLOOR | | Foundation: | CONCRETE | Heating: | FHA GAS | | Interior Finish: | DRYWALL PAINT | Plumbing Fixture Cnt: | 9 | | Roof Slope: | 4" IN 12" | Roof Structure/Cover: | CJ ALUMINIUM HEAVY |
|
| | Type | Description | Class CD | Sub Class CD | Year Built | Area |
| | BAS | BASE/MAIN FLOOR | 3 | 0 | 1991 | 1418.0 |
| | OWP | OPEN WOOD PORCH W/STEPS | 3 | 0 | 1991 | 180.0 |
| | OWR | OPEN WOOD PORCH W/STEPS/ROOF | 3 | 0 | 1991 | 354.0 |
| | oOBD | Out Buildings | 3 | 0 | 1991 | 0.0 |
Sketch
Property Image
Land
| 1 | 14 | SQ (08001-12000) | 0.0000 | 0.00 | 0.00 | 0.00 | 1.00 | $260,000 | $0 |
Roll Value History
| 2026 | N/A | N/A | N/A | N/A | N/A |
| 2025 | $249,309 | $260,000 | $0 | $509,309 | $509,309 |
| 2024 | $252,643 | $250,000 | $0 | $502,643 | $502,643 |
| 2023 | $255,980 | $250,000 | $0 | $505,980 | $505,980 |
| 2022 | $235,285 | $210,000 | $0 | $445,285 | $445,285 |
| 2021 | $207,873 | $165,000 | $0 | $372,873 | $372,873 |
| 2020 | $202,872 | $135,000 | $0 | $337,872 | $337,872 |
| 2019 | $148,601 | $175,000 | $0 | $323,601 | $323,601 |
| 2018 | $149,054 | $145,000 | $0 | $294,054 | $294,054 |
| 2017 | $149,960 | $100,000 | $0 | $249,960 | $249,960 |
| 2016 | $151,772 | $85,000 | $0 | $236,772 | $236,772 |
| 2015 | $151,216 | $65,000 | $0 | $216,216 | $216,216 |
| 2014 | $153,017 | $55,000 | $0 | $208,017 | $208,017 |
| 2013 | $154,818 | $55,000 | $0 | $209,818 | $209,818 |
| 2012 | $156,618 | $60,000 | $0 | $216,618 | $216,618 |
| 2011 | $158,420 | $65,000 | $0 | $223,420 | $223,420 |
| 2010 | $164,124 | $76,000 | $0 | $240,124 | $240,124 |
| 2009 | $172,074 | $100,000 | $0 | $272,074 | $272,074 |
| 2008 | $174,569 | $125,000 | $0 | $299,569 | $299,569 |
| 2007 | $176,977 | $100,000 | $0 | $276,977 | $276,977 |
Deed and Sales History
| 1 | 05/06/2025 | LACPROBATE | Lack of Probate | MORGAN, GARY D | MORGAN, LUCILLE A | | | $0.00 | 63758 | 4586860 |
| 2 | 09/02/2005 | WD | Warranty Deed | TOGERSON JTWROS, RICHARD S | MORGAN, GARY D | | | $227,000.00 | 54573 | 4147449 |
| 3 | 04/21/2003 | QCD | Quit Claim Deed | TOGERSON, RICHARD S | TOGERSON JTWROS, RICHARD S | | | $0.00 | 31630 | 4055735 |
| 4 | 08/01/1995 | QCD | Quit Claim Deed | TOGERSON, RICHARD S | TOGERSON, RICHARD S | | | $0.00 | 52622 | 95012015 |
| 5 | 11/01/1993 | DECREE | Divorce Decree/Legal Separation | TOGERSON, RICHARD S | TOGERSON, RICHARD S | | | $0.00 | 34830 | 93025182 |
| 6 | 12/01/1990 | WD | Warranty Deed | DEFFRIES, GEORGE S | TOGERSON, RICHARD S | | | $39,500.00 | 6642 | 90023178 |
| 7 | 01/01/1900 | OTHER | Other - Misc. Documents | Unknown | DEFFRIES, GEORGE S | | | $0.00 | 0 | 0 |
Payout Agreement
| No payout information available.. |