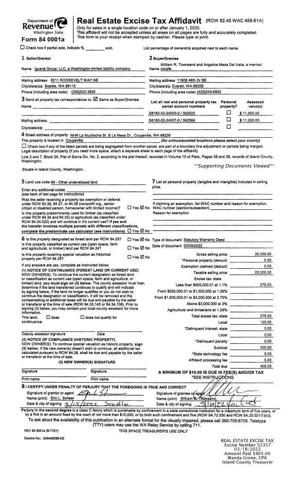
Property
Account |
| Property ID: | 206011 | Abbreviated Legal Description: | CAMALOCH 1 LOT 153 |
| Geographic ID: | S6235-00-00153-0 | Agent Code: | |
| Type: | Real | | |
| Tax Area: | 590 - APPRAISER-Stan/Cam Schl Dist, Special Dist, improved & less than 1 acre | Land Use Code | 11 |
| Open Space: | N | DFL | N |
| Historic Property: | N | Remodel Property: | N |
| Multi-Family Redevelopment: | N | | |
| Township: | | Section: | |
| Range: | |
Location |
| Address: | 342 EDINBURGH DR CAMANO ISLAND, WA 98282 | Mapsco: | |
| Neighborhood: | Cycle 5 | Map ID: | 995 |
| Neighborhood CD: | 5 |
Owner |
| Name: | NELSON, DAVID B | Owner ID: | 62134 |
| Mailing Address: | SHARON M NELSON 342 EDINBURGH DR CAMANO ISLAND, WA 98282 | % Ownership: | 100.0000000000% |
| | | Exemptions: | |
Taxes and Assessment Details
Values
| (+) Improvement Homesite Value: | + | $0 | |
| (+) Improvement Non-Homesite Value: | + | $410,272 | |
| (+) Land Homesite Value: | + | $0 | |
| (+) Land Non-Homesite Value: | + | $260,000 | |
| (+) Curr Use (HS): | + | $0 | $0 |
| (+) Curr Use (NHS): | + | $0 | $0 |
| | | -------------------------- | |
| (=) Market Value: | = | $670,272 | |
| (–) Productivity Loss: | – | $0 | |
| | | -------------------------- | |
| (=) Subtotal: | = | $670,272 | |
| (+) Senior Appraised Value: | + | $0 | |
| (+) Non-Senior Appraised Value: | + | $670,272 | |
| | | -------------------------- | |
| (=) Total Appraised Value: | = | $670,272 | |
| (–) Senior Exemption Loss: | – | $0 | |
| (–) Exemption Loss: | – | $0 | |
| | | -------------------------- | |
| (=) Taxable Value: | = | $670,272 | |
Taxing Jurisdiction
| Owner: | NELSON, DAVID B | | |
| % Ownership: | 100.0000000000% | | |
| Total Value: | $670,272 | | |
| Tax Area: | 590 - APPRAISER-Stan/Cam Schl Dist, Special Dist, improved & less than 1 acre |
| CF | Conservation Futures | 0.0316035091 | $670,272 | $670,272 | $21.18 | | |
| EMS1 | Fire & Rescue Dist #1 Camano GEN (EMS) | 0.3677864386 | $670,272 | $670,272 | $246.52 | | |
| FIRE1 | Fire & Rescue Dist #1 Camano GEN | 1.2502910536 | $670,272 | $670,272 | $838.04 | | |
| FIRE1BOND | Fire & Rescue Dist #1 Camano BOND | 0.1570001679 | $670,272 | $670,272 | $105.23 | | |
| CE | County Current Expense | 0.3708482477 | $670,272 | $670,272 | $248.57 | | |
| CR | County Roads | 0.4584763726 | $670,272 | $670,272 | $307.30 | | |
| LCIB | Library Sno-Isle BOND (Camano Island) | 0.0396325772 | $670,272 | $670,272 | $26.56 | | |
| LIB | Library Sno-Isle GEN | 0.3153421757 | $670,272 | $670,272 | $211.37 | | |
| SCH205_401 | School 205-401 Enrichment | 1.2698420524 | $670,272 | $670,272 | $851.14 | | |
| SCH205BOND | School 205-401 BOND | 0.9396497583 | $670,272 | $670,272 | $629.82 | | |
| ST | State School | 1.3035497053 | $670,272 | $670,272 | $873.73 | | |
| ST2 | State School Part 2 | 0.8169543533 | $670,272 | $670,272 | $547.58 | | |
| | Total Tax Rate: | 7.3209764117 | | | | | |
| | | | | Taxes w/Current Exemptions: | $4,907.04 | | |
| | | | | Taxes w/o Exemptions: | $4,907.04 | | |
Improvement / Building
| Improvement #1: | RESIDENTIAL | State Code: | Y | 1745.0 sqft | Value: | $410,272 |
| Bathrooms: | 2 | Bedrooms: | 2 | | Ceiling: | DRYWALL PAINTED | Cooling: | HEAT PUMP/CONV/V | | Exterior Wall/Cover: | PLY/HARDBOARD T-111 | Floor Covering: | HARDWOOD/CARP 20-80 | | Floor Structure: | WOOD W/SUBFLOOR | Foundation: | CONCRETE | | Interior Finish: | DRYWALL PAINT | Plumbing Fixture Cnt: | 10 | | Roof Slope: | 5" IN 12" | Roof Structure/Cover: | CJ ASPHALT |
|
| | Type | Description | Class CD | Sub Class CD | Year Built | Area |
| | BAS | BASE/MAIN FLOOR | 4 | 0 | 1991 | 1745.0 |
| | OP1 | OPEN PORCH SLAB | 4 | 0 | 1991 | 160.0 |
| | OP4 | OPEN PORCH W/CEILING-ROOF | 4 | 0 | 1991 | 104.0 |
| | AGR | ATTACHED GARAGE | 4 | 0 | 1991 | 1380.0 |
| | OWP | OPEN WOOD PORCH W/STEPS | 4 | 0 | 1991 | 18.0 |
| | OWP | OPEN WOOD PORCH W/STEPS | 4 | 0 | 1991 | 120.0 |
| | OWR | OPEN WOOD PORCH W/STEPS/ROOF | 4 | 0 | 1991 | 120.0 |
| | OWC | OPEN WOOD PORCH W/STEPS/ROOF/C | 4 | 0 | 1991 | 60.0 |
Sketch
Property Image
Land
| 1 | 15 | SQ (12001-21780) | 0.0000 | 0.00 | 0.00 | 0.00 | 1.00 | $260,000 | $0 |
Roll Value History
| 2026 | N/A | N/A | N/A | N/A | N/A |
| 2025 | $410,272 | $260,000 | $0 | $670,272 | $670,272 |
| 2024 | $415,582 | $250,000 | $0 | $665,582 | $665,582 |
| 2023 | $420,894 | $250,000 | $0 | $670,894 | $670,894 |
| 2022 | $385,914 | $210,000 | $0 | $595,914 | $595,914 |
| 2021 | $331,407 | $165,000 | $0 | $496,407 | $496,407 |
| 2020 | $323,054 | $135,000 | $0 | $458,054 | $458,054 |
| 2019 | $237,003 | $175,000 | $0 | $412,003 | $412,003 |
| 2018 | $237,730 | $145,000 | $0 | $382,730 | $382,730 |
| 2017 | $239,189 | $100,000 | $0 | $339,189 | $339,189 |
| 2016 | $242,106 | $85,000 | $0 | $327,106 | $327,106 |
| 2015 | $226,629 | $65,000 | $0 | $291,629 | $291,629 |
| 2014 | $229,324 | $55,000 | $0 | $284,324 | $284,324 |
| 2013 | $232,023 | $55,000 | $0 | $287,023 | $287,023 |
| 2012 | $234,721 | $60,000 | $0 | $294,721 | $294,721 |
| 2011 | $237,418 | $65,000 | $0 | $302,418 | $302,418 |
| 2010 | $244,773 | $76,000 | $0 | $320,773 | $320,773 |
| 2009 | $230,165 | $100,000 | $0 | $330,165 | $330,165 |
| 2008 | $240,928 | $125,000 | $0 | $365,928 | $365,928 |
| 2007 | $243,780 | $100,000 | $0 | $343,780 | $343,780 |
Deed and Sales History
| 1 | 04/26/2021 | QCD | Quit Claim Deed | NELSON, SHARON M | NELSON, DAVID B | | | $0.00 | 55344 | 4554726 |
| 2 | 04/28/2010 | WD | Warranty Deed | SNO, JONATHAN M | NELSON, DAVID B | | | $365,000.00 | 1222 | 4274245 |
| 3 | 01/13/2005 | WD | Warranty Deed | STORKSON, DOUGLAS L | SNO, JONATHAN M | | | $330,000.00 | 50248 | 4123689 |
| 4 | 07/01/1989 | QCD | Quit Claim Deed | RONEY, JAMES D | STORKSON, DOUGLAS L | | | $0.00 | 93238 | 89010865 |
| 5 | 07/01/1989 | WD | Warranty Deed | STORKSON, DOUGLAS L | RONEY, JAMES D | | | $10,500.00 | 93239 | 89010866 |
| 6 | 10/01/1987 | QCD | Quit Claim Deed | STORKSON, DOUGLAS L | STORKSON, DOUGLAS L | | | $0.00 | 73343 | 87014613 |
| 7 | 01/01/1900 | OTHER | Other - Misc. Documents | Unknown | STORKSON, DOUGLAS L | | | $0.00 | 0 | 0 |
Payout Agreement
| No payout information available.. |