Property
Account |
| Property ID: | 206173 | Abbreviated Legal Description: | CAMALOCH 2 LOT 14 |
| Geographic ID: | S6235-02-00014-0 | Agent Code: | |
| Type: | Real | | |
| Tax Area: | 590 - APPRAISER-Stan/Cam Schl Dist, Special Dist, improved & less than 1 acre | Land Use Code | 11 |
| Open Space: | N | DFL | N |
| Historic Property: | N | Remodel Property: | N |
| Multi-Family Redevelopment: | N | | |
| Township: | | Section: | |
| Range: | |
Location |
| Address: | 233 MACKENZIE DR CAMANO ISLAND, WA 98282 | Mapsco: | |
| Neighborhood: | Cycle 5 | Map ID: | 995 |
| Neighborhood CD: | 5 |
Owner |
| Name: | RAMEY-WOOLLEY, LISA | Owner ID: | 295184 |
| Mailing Address: | WILLIAM K WOOLLEY, JR 233 MACKENZIE DR CAMANO ISLAND, WA 98282 | % Ownership: | 100.0000000000% |
| | | Exemptions: | |
Taxes and Assessment Details
Values
| (+) Improvement Homesite Value: | + | $0 | |
| (+) Improvement Non-Homesite Value: | + | $532,383 | |
| (+) Land Homesite Value: | + | $0 | |
| (+) Land Non-Homesite Value: | + | $310,000 | |
| (+) Curr Use (HS): | + | $0 | $0 |
| (+) Curr Use (NHS): | + | $0 | $0 |
| | | -------------------------- | |
| (=) Market Value: | = | $842,383 | |
| (–) Productivity Loss: | – | $0 | |
| | | -------------------------- | |
| (=) Subtotal: | = | $842,383 | |
| (+) Senior Appraised Value: | + | $0 | |
| (+) Non-Senior Appraised Value: | + | $842,383 | |
| | | -------------------------- | |
| (=) Total Appraised Value: | = | $842,383 | |
| (–) Senior Exemption Loss: | – | $0 | |
| (–) Exemption Loss: | – | $0 | |
| | | -------------------------- | |
| (=) Taxable Value: | = | $842,383 | |
Taxing Jurisdiction
| Owner: | RAMEY-WOOLLEY, LISA | | |
| % Ownership: | 100.0000000000% | | |
| Total Value: | $842,383 | | |
| Tax Area: | 590 - APPRAISER-Stan/Cam Schl Dist, Special Dist, improved & less than 1 acre |
| CF | Conservation Futures | 0.0316035091 | $842,383 | $842,383 | $26.62 | | |
| EMS1 | Fire & Rescue Dist #1 Camano GEN (EMS) | 0.3677864386 | $842,383 | $842,383 | $309.82 | | |
| FIRE1 | Fire & Rescue Dist #1 Camano GEN | 1.2502910536 | $842,383 | $842,383 | $1,053.22 | | |
| FIRE1BOND | Fire & Rescue Dist #1 Camano BOND | 0.1570001679 | $842,383 | $842,383 | $132.25 | | |
| CE | County Current Expense | 0.3708482477 | $842,383 | $842,383 | $312.40 | | |
| CR | County Roads | 0.4584763726 | $842,383 | $842,383 | $386.21 | | |
| LCIB | Library Sno-Isle BOND (Camano Island) | 0.0396325772 | $842,383 | $842,383 | $33.39 | | |
| LIB | Library Sno-Isle GEN | 0.3153421757 | $842,383 | $842,383 | $265.64 | | |
| SCH205_401 | School 205-401 Enrichment | 1.2698420524 | $842,383 | $842,383 | $1,069.69 | | |
| SCH205BOND | School 205-401 BOND | 0.9396497583 | $842,383 | $842,383 | $791.54 | | |
| ST | State School | 1.3035497053 | $842,383 | $842,383 | $1,098.09 | | |
| ST2 | State School Part 2 | 0.8169543533 | $842,383 | $842,383 | $688.19 | | |
| | Total Tax Rate: | 7.3209764117 | | | | | |
| | | | | Taxes w/Current Exemptions: | $6,167.06 | | |
| | | | | Taxes w/o Exemptions: | $6,167.06 | | |
Improvement / Building
| Improvement #1: | RESIDENTIAL | State Code: | Y | 2621.0 sqft | Value: | $532,383 |
| Bathrooms: | 3.5 | Bedrooms: | 4 | | Ceiling: | DRYWALL PAINTED | Cooling: | HEAT PUMP/CONV/V | | Exterior Wall/Cover: | CEMENT FIBER | Floor Covering: | CARPET/VINYL 60-40 | | Floor Structure: | WOOD W/SUBFLOOR | Foundation: | CONCRETE | | Interior Finish: | DRYWALL PAINT | Plumbing Fixture Cnt: | 14 | | Roof Slope: | FLAT | Roof Structure/Cover: | CJ ASPHALT |
|
| | Type | Description | Class CD | Sub Class CD | Year Built | Area |
| | BAS | BASE/MAIN FLOOR | 4 | 0 | 1974 | 1008.0 |
| | OP2 | OPEN PORCH W/STEPS | 4 | 0 | 1974 | 192.0 |
| | DGR | DETACHED GARAGE | 4 | 0 | 1974 | 440.0 |
| | UPS | UPPER STORY | 4 | 0 | 1974 | 1613.0 |
| | OWR | OPEN WOOD PORCH W/STEPS/ROOF | 4 | 0 | 1974 | 192.0 |
| | OP4 | OPEN PORCH W/CEILING-ROOF | 4 | 0 | 1974 | 294.0 |
| | OWP | OPEN WOOD PORCH W/STEPS | 4 | 0 | 1974 | 152.0 |
| | BAW | BALCONY WOOD RAIL | 4 | 0 | 1974 | 30.0 |
Sketch
Property Image
Land
| 1 | 14 | SQ (08001-12000) | 0.0000 | 0.00 | 0.00 | 0.00 | 1.00 | $310,000 | $0 |
Roll Value History
| 2026 | N/A | N/A | N/A | N/A | N/A |
| 2025 | $532,383 | $310,000 | $0 | $842,383 | $842,383 |
| 2024 | $536,711 | $300,000 | $0 | $836,711 | $836,711 |
| 2023 | $541,038 | $260,000 | $0 | $801,038 | $801,038 |
| 2022 | $493,841 | $210,000 | $0 | $703,841 | $703,841 |
| 2021 | $409,998 | $200,000 | $0 | $609,998 | $609,998 |
| 2020 | $398,645 | $140,000 | $0 | $538,645 | $538,645 |
| 2019 | $83,787 | $200,000 | $0 | $283,787 | $283,787 |
| 2018 | $51,110 | $145,000 | $0 | $196,110 | $196,110 |
| 2017 | $126,244 | $120,000 | $0 | $246,244 | $246,244 |
| 2016 | $128,280 | $115,000 | $0 | $243,280 | $243,280 |
| 2015 | $130,032 | $115,000 | $0 | $245,032 | $245,032 |
| 2014 | $132,064 | $100,000 | $0 | $232,064 | $232,064 |
| 2013 | $134,098 | $100,000 | $0 | $234,098 | $234,098 |
| 2012 | $136,130 | $100,000 | $0 | $236,130 | $236,130 |
| 2011 | $138,161 | $125,000 | $0 | $263,161 | $263,161 |
| 2010 | $142,420 | $125,000 | $0 | $267,420 | $267,420 |
| 2009 | $177,817 | $150,000 | $0 | $327,817 | $327,817 |
| 2008 | $180,158 | $175,000 | $0 | $355,158 | $355,158 |
| 2007 | $182,550 | $150,000 | $0 | $332,550 | $332,550 |
Deed and Sales History
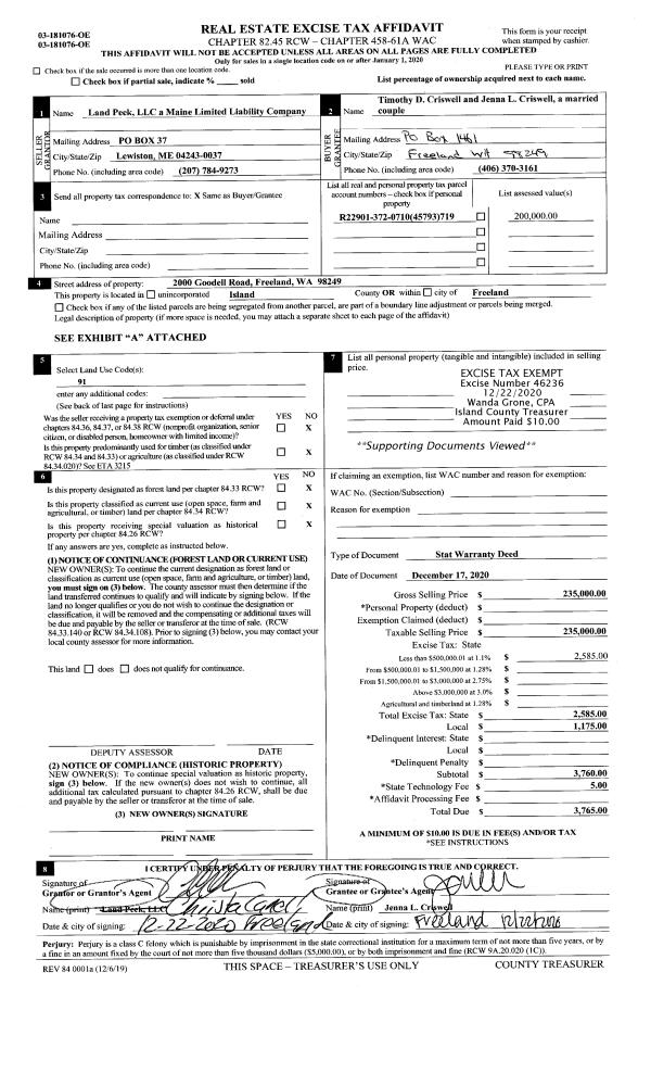
| 1 | 07/13/2020 | WD | Warranty Deed | SWENSON, JEFF | RAMEY-WOOLLEY, LISA | | | $689,000.00 | 43798 | 4491292 |
| 2 | 06/28/2017 | WD | Warranty Deed | PENG, MARIA Y L | SWENSON, JEFF | | | $185,000.00 | 30170 | 4426191 |
| 3 | 09/01/1997 | WD | Warranty Deed | DAVIS, GLENN G | PENG, MARIA Y | | | $148,900.00 | 73344 | 97015773 |
| 4 | 02/01/1993 | QCD | Quit Claim Deed | PINKHAM, LINDA J | DAVIS, GLENN G | | | $0.00 | 30611 | 93003237 |
| 5 | 07/01/1989 | OTHER | Other - Misc. Documents | DAVIS, YVONNE E | PINKHAM, LINDA J | | | $0.00 | 63238 | 0 |
| 6 | 10/01/1988 | WD | Warranty Deed | BUESTAD, RICHARD P | DAVIS, YVONNE E | | | $0.00 | 84156 | 88015536 |
| 7 | 10/01/1987 | OTHER | Other - Misc. Documents | DAVIS, YVONNE E | BUESTAD, RICHARD P | | | $0.00 | 74025 | 0 |
| 8 | 10/01/1987 | WD | Warranty Deed | BUESTAD, RICHARD P | DAVIS, YVONNE E | | | $93,000.00 | 80086 | 88000346 |
| 9 | 06/01/1985 | QCD | Quit Claim Deed | BOLDRIN, RICHARD S | BUESTAD, RICHARD P | | | $0.00 | 51644 | 85006585 |
| 10 | 05/01/1985 | QCD | Quit Claim Deed | BUESTAD, RICHARD P | BOLDRIN, RICHARD S | | | $0.00 | 51170 | 0 |
| 11 | 08/01/1974 | EZ | Easement | BERFIELD, WILLIAM G | BUESTAD, RICHARD P | | | $8,000.00 | 52006 | 0 |
| 12 | 01/01/1900 | OTHER | Other - Misc. Documents | Unknown | BERFIELD, WILLIAM G | | | $0.00 | 0 | 0 |
Payout Agreement
| No payout information available.. |