Property
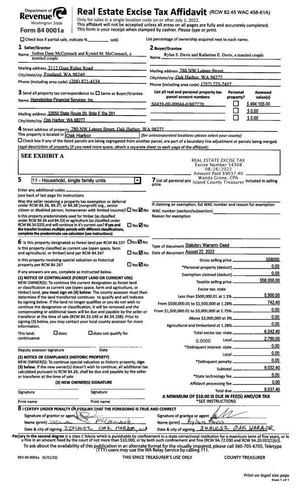
Account |
| Property ID: | 206208 | Abbreviated Legal Description: | CAMALOCH 2 LOT 17 |
| Geographic ID: | S6235-02-00017-0 | Agent Code: | |
| Type: | Real | | |
| Tax Area: | 590 - APPRAISER-Stan/Cam Schl Dist, Special Dist, improved & less than 1 acre | Land Use Code | 11 |
| Open Space: | N | DFL | N |
| Historic Property: | N | Remodel Property: | N |
| Multi-Family Redevelopment: | N | | |
| Township: | | Section: | |
| Range: | |
Location |
| Address: | 221 MACKENZIE DR CAMANO ISLAND, WA 98282 | Mapsco: | |
| Neighborhood: | Cycle 5 | Map ID: | 995 |
| Neighborhood CD: | 5 |
Owner |
| Name: | THAYER, JAMES | Owner ID: | 297222 |
| Mailing Address: | HELEN ANN THAYER PO BOX 1486 MARYSVILLE, WA 98270 | % Ownership: | 100.0000000000% |
| | | Exemptions: | |
Taxes and Assessment Details
Values
| (+) Improvement Homesite Value: | + | $0 | |
| (+) Improvement Non-Homesite Value: | + | $528,970 | |
| (+) Land Homesite Value: | + | $0 | |
| (+) Land Non-Homesite Value: | + | $310,000 | |
| (+) Curr Use (HS): | + | $0 | $0 |
| (+) Curr Use (NHS): | + | $0 | $0 |
| | | -------------------------- | |
| (=) Market Value: | = | $838,970 | |
| (–) Productivity Loss: | – | $0 | |
| | | -------------------------- | |
| (=) Subtotal: | = | $838,970 | |
| (+) Senior Appraised Value: | + | $0 | |
| (+) Non-Senior Appraised Value: | + | $838,970 | |
| | | -------------------------- | |
| (=) Total Appraised Value: | = | $838,970 | |
| (–) Senior Exemption Loss: | – | $0 | |
| (–) Exemption Loss: | – | $0 | |
| | | -------------------------- | |
| (=) Taxable Value: | = | $838,970 | |
Taxing Jurisdiction
| Owner: | THAYER, JAMES | | |
| % Ownership: | 100.0000000000% | | |
| Total Value: | $838,970 | | |
| Tax Area: | 590 - APPRAISER-Stan/Cam Schl Dist, Special Dist, improved & less than 1 acre |
| CF | Conservation Futures | 0.0316035091 | $838,970 | $838,970 | $26.51 | | |
| EMS1 | Fire & Rescue Dist #1 Camano GEN (EMS) | 0.3677864386 | $838,970 | $838,970 | $308.56 | | |
| FIRE1 | Fire & Rescue Dist #1 Camano GEN | 1.2502910536 | $838,970 | $838,970 | $1,048.96 | | |
| FIRE1BOND | Fire & Rescue Dist #1 Camano BOND | 0.1570001679 | $838,970 | $838,970 | $131.72 | | |
| CE | County Current Expense | 0.3708482477 | $838,970 | $838,970 | $311.13 | | |
| CR | County Roads | 0.4584763726 | $838,970 | $838,970 | $384.65 | | |
| LCIB | Library Sno-Isle BOND (Camano Island) | 0.0396325772 | $838,970 | $838,970 | $33.25 | | |
| LIB | Library Sno-Isle GEN | 0.3153421757 | $838,970 | $838,970 | $264.56 | | |
| SCH205_401 | School 205-401 Enrichment | 1.2698420524 | $838,970 | $838,970 | $1,065.36 | | |
| SCH205BOND | School 205-401 BOND | 0.9396497583 | $838,970 | $838,970 | $788.34 | | |
| ST | State School | 1.3035497053 | $838,970 | $838,970 | $1,093.64 | | |
| ST2 | State School Part 2 | 0.8169543533 | $838,970 | $838,970 | $685.40 | | |
| | Total Tax Rate: | 7.3209764117 | | | | | |
| | | | | Taxes w/Current Exemptions: | $6,142.08 | | |
| | | | | Taxes w/o Exemptions: | $6,142.08 | | |
Improvement / Building
| Improvement #1: | RESIDENTIAL | State Code: | Y | 1992.8 sqft | Value: | $528,970 |
| Bathrooms: | 2 | Ceiling: | DRYWALL PAINTED | | Cooling: | HEAT PUMP/CONV/V | Exterior Wall/Cover: | CEMENT FIBER | | Floor Covering: | CERAMIC TILE/HWD 40/60 | Floor Structure: | WOOD W/SUBFLOOR | | Foundation: | CONCRETE | Interior Finish: | DRYWALL PAINT | | Plumbing Fixture Cnt: | 12 | Roof Slope: | 6" IN 12" | | Roof Structure/Cover: | CJ ASPHALT |   |   |
|
| | Type | Description | Class CD | Sub Class CD | Year Built | Area |
| | BAS | BASE/MAIN FLOOR | 4 | 0 | 2015 | 1992.8 |
| | AGR | ATTACHED GARAGE | 4 | 0 | 2015 | 454.0 |
| | OWP | OPEN WOOD PORCH W/STEPS | 4 | 0 | 2015 | 766.0 |
| | OP4 | OPEN PORCH W/CEILING-ROOF | 4 | 0 | 2015 | 42.0 |
| | OWC | OPEN WOOD PORCH W/STEPS/ROOF/C | 4 | 0 | 2015 | 208.0 |
Sketch
Property Image
Land
| 1 | 14 | SQ (08001-12000) | 0.0000 | 0.00 | 0.00 | 0.00 | 1.00 | $310,000 | $0 |
Roll Value History
| 2026 | N/A | N/A | N/A | N/A | N/A |
| 2025 | $528,970 | $310,000 | $0 | $838,970 | $838,970 |
| 2024 | $533,048 | $300,000 | $0 | $833,048 | $833,048 |
| 2023 | $537,418 | $260,000 | $0 | $797,418 | $797,418 |
| 2022 | $490,591 | $210,000 | $0 | $700,591 | $700,591 |
| 2021 | $421,757 | $200,000 | $0 | $621,757 | $621,757 |
| 2020 | $409,341 | $140,000 | $0 | $549,341 | $549,341 |
| 2019 | $311,028 | $200,000 | $0 | $511,028 | $511,028 |
| 2018 | $311,836 | $145,000 | $0 | $456,836 | $456,836 |
| 2017 | $313,452 | $120,000 | $0 | $433,452 | $433,452 |
| 2016 | $300,418 | $115,000 | $0 | $415,418 | $415,418 |
| 2015 | $181,433 | $75,000 | $0 | $256,433 | $256,433 |
| 2014 | $0 | $17,500 | $0 | $17,500 | $17,500 |
| 2013 | $0 | $17,500 | $0 | $17,500 | $17,500 |
| 2012 | $0 | $17,500 | $0 | $17,500 | $17,500 |
| 2011 | $0 | $31,250 | $0 | $31,250 | $31,250 |
| 2010 | $0 | $31,250 | $0 | $31,250 | $31,250 |
| 2009 | $0 | $37,500 | $0 | $37,500 | $37,500 |
| 2008 | $0 | $43,750 | $0 | $43,750 | $43,750 |
| 2007 | $0 | $50,000 | $0 | $50,000 | $50,000 |
Deed and Sales History
| 1 | 10/28/2020 | WD | Warranty Deed | ANDERSON, STEVEN G | THAYER, JAMES | | | $643,000.00 | 45496 | 4501047 |
| 2 | 09/24/2015 | WD | Warranty Deed | RELIABLE HOLDINGS, INC | ANDERSON, STEVEN G | | | $409,000.00 | 21554 | 4386845 |
| 3 | 12/16/2014 | WD | Warranty Deed | MOA TRUSTEE, DONALD K | RELIABLE HOLDINGS, INC | | | $80,000.00 | 17986 | 4370594 |
| 4 | 10/02/2014 | TRUSTEED | Trustee's Deed | MOA, DONALD K | MOA TRUSTEE, DONALD K | | | $0.00 | 17319 | 4367545 |
| 5 | 11/01/1987 | WD | Warranty Deed | ROBILLARD, ROBERT | MOA, DONALD K | | | $3,500.00 | 73647 | 87015884 |
| 6 | 01/01/1900 | OTHER | Other - Misc. Documents | Unknown | ROBILLARD, ROBERT | | | $0.00 | 0 | 0 |
Payout Agreement
| No payout information available.. |