Property
Account |
| Property ID: | 206280 | Abbreviated Legal Description: | CAMALOCH 2 LOT 25 |
| Geographic ID: | S6235-02-00025-0 | Agent Code: | |
| Type: | Real | | |
| Tax Area: | 590 - APPRAISER-Stan/Cam Schl Dist, Special Dist, improved & less than 1 acre | Land Use Code | 11 |
| Open Space: | N | DFL | N |
| Historic Property: | N | Remodel Property: | N |
| Multi-Family Redevelopment: | N | | |
| Township: | | Section: | |
| Range: | |
Location |
| Address: | 203 EDINBURGH DR CAMANO ISLAND, WA 98282 | Mapsco: | |
| Neighborhood: | Cycle 5 | Map ID: | 995 |
| Neighborhood CD: | 5 |
Owner |
| Name: | LOVE, STEVEN G | Owner ID: | 281456 |
| Mailing Address: | JULIE R LOVE 203 EDINBURGH DR CAMANO ISLAND, WA 98282 | % Ownership: | 100.0000000000% |
| | | Exemptions: | |
Taxes and Assessment Details
Values
| (+) Improvement Homesite Value: | + | $0 | |
| (+) Improvement Non-Homesite Value: | + | $183,530 | |
| (+) Land Homesite Value: | + | $0 | |
| (+) Land Non-Homesite Value: | + | $310,000 | |
| (+) Curr Use (HS): | + | $0 | $0 |
| (+) Curr Use (NHS): | + | $0 | $0 |
| | | -------------------------- | |
| (=) Market Value: | = | $493,530 | |
| (–) Productivity Loss: | – | $0 | |
| | | -------------------------- | |
| (=) Subtotal: | = | $493,530 | |
| (+) Senior Appraised Value: | + | $0 | |
| (+) Non-Senior Appraised Value: | + | $493,530 | |
| | | -------------------------- | |
| (=) Total Appraised Value: | = | $493,530 | |
| (–) Senior Exemption Loss: | – | $0 | |
| (–) Exemption Loss: | – | $0 | |
| | | -------------------------- | |
| (=) Taxable Value: | = | $493,530 | |
Taxing Jurisdiction
| Owner: | LOVE, STEVEN G | | |
| % Ownership: | 100.0000000000% | | |
| Total Value: | $493,530 | | |
| Tax Area: | 590 - APPRAISER-Stan/Cam Schl Dist, Special Dist, improved & less than 1 acre |
| CF | Conservation Futures | 0.0316035091 | $493,530 | $493,530 | $15.60 | | |
| EMS1 | Fire & Rescue Dist #1 Camano GEN (EMS) | 0.3677864386 | $493,530 | $493,530 | $181.51 | | |
| FIRE1 | Fire & Rescue Dist #1 Camano GEN | 1.2502910536 | $493,530 | $493,530 | $617.06 | | |
| FIRE1BOND | Fire & Rescue Dist #1 Camano BOND | 0.1570001679 | $493,530 | $493,530 | $77.48 | | |
| CE | County Current Expense | 0.3708482477 | $493,530 | $493,530 | $183.02 | | |
| CR | County Roads | 0.4584763726 | $493,530 | $493,530 | $226.27 | | |
| LCIB | Library Sno-Isle BOND (Camano Island) | 0.0396325772 | $493,530 | $493,530 | $19.56 | | |
| LIB | Library Sno-Isle GEN | 0.3153421757 | $493,530 | $493,530 | $155.63 | | |
| SCH205_401 | School 205-401 Enrichment | 1.2698420524 | $493,530 | $493,530 | $626.71 | | |
| SCH205BOND | School 205-401 BOND | 0.9396497583 | $493,530 | $493,530 | $463.75 | | |
| ST | State School | 1.3035497053 | $493,530 | $493,530 | $643.34 | | |
| ST2 | State School Part 2 | 0.8169543533 | $493,530 | $493,530 | $403.19 | | |
| | Total Tax Rate: | 7.3209764117 | | | | | |
| | | | | Taxes w/Current Exemptions: | $3,613.12 | | |
| | | | | Taxes w/o Exemptions: | $3,613.12 | | |
Improvement / Building
| Improvement #1: | RESIDENTIAL | State Code: | Y | 900.0 sqft | Value: | $183,530 |
| Bathrooms: | 2 | Bedrooms: | 2 | | Ceiling: | DRY WALL SPRAYED | Exterior Wall/Cover: | WOOD SIDING | | Floor Covering: | CARPET/VINYL 80-20 | Floor Structure: | WOOD W/SUBFLOOR | | Foundation: | CONCRETE | Heating: | BASEBOARD ELECTRIC | | Interior Finish: | DRYWALL PAINT | Plumbing Fixture Cnt: | 9 | | Roof Slope: | 4" IN 12" | Roof Structure/Cover: | CJ ASPHALT |
|
| | Type | Description | Class CD | Sub Class CD | Year Built | Area |
| | BAS | BASE/MAIN FLOOR | 3 | 0 | 1975 | 900.0 |
| | DGR | DETACHED GARAGE | 3 | 0 | 1975 | 400.0 |
| | OWP | OPEN WOOD PORCH W/STEPS | 3 | 0 | 1975 | 409.2 |
| | OP4 | OPEN PORCH W/CEILING-ROOF | 3 | 0 | 1975 | 89.3 |
Sketch
Property Image
Land
| 1 | 14 | SQ (08001-12000) | 0.0000 | 0.00 | 0.00 | 0.00 | 1.00 | $310,000 | $0 |
Roll Value History
| 2026 | N/A | N/A | N/A | N/A | N/A |
| 2025 | $183,530 | $310,000 | $0 | $493,530 | $493,530 |
| 2024 | $189,632 | $300,000 | $0 | $489,632 | $489,632 |
| 2023 | $192,186 | $260,000 | $0 | $452,186 | $452,186 |
| 2022 | $176,339 | $210,000 | $0 | $386,339 | $386,339 |
| 2021 | $151,332 | $200,000 | $0 | $351,332 | $351,332 |
| 2020 | $146,967 | $140,000 | $0 | $286,967 | $286,967 |
| 2019 | $102,219 | $200,000 | $0 | $302,219 | $302,219 |
| 2018 | $102,550 | $145,000 | $0 | $247,550 | $247,550 |
| 2017 | $70,584 | $120,000 | $0 | $190,584 | $190,584 |
| 2016 | $71,822 | $115,000 | $0 | $186,822 | $186,822 |
| 2015 | $77,282 | $115,000 | $0 | $192,282 | $192,282 |
| 2014 | $78,591 | $100,000 | $0 | $178,591 | $178,591 |
| 2013 | $79,900 | $100,000 | $0 | $179,900 | $179,900 |
| 2012 | $81,211 | $100,000 | $0 | $181,211 | $181,211 |
| 2011 | $82,520 | $125,000 | $0 | $207,520 | $207,520 |
| 2010 | $89,627 | $125,000 | $0 | $214,627 | $214,627 |
| 2009 | $91,414 | $150,000 | $0 | $241,414 | $241,414 |
| 2008 | $92,699 | $175,000 | $0 | $267,699 | $267,699 |
| 2007 | $93,984 | $150,000 | $0 | $243,984 | $243,984 |
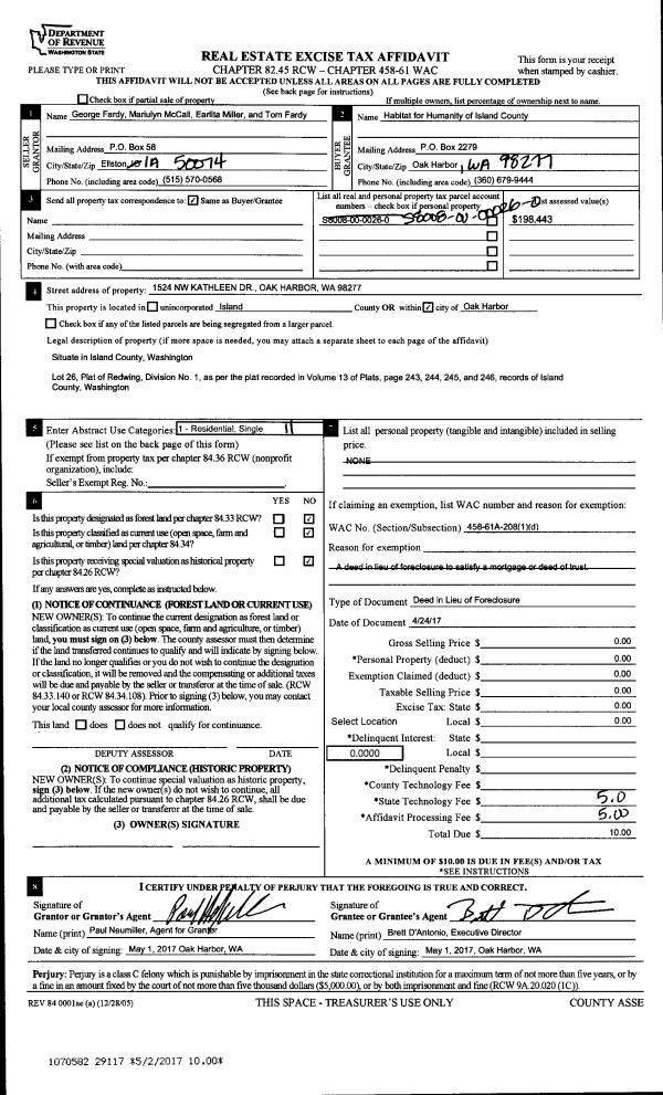
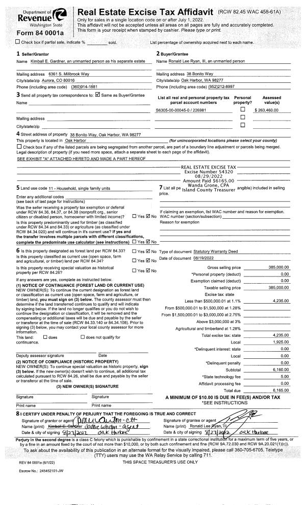
Deed and Sales History
| 1 | 08/10/2017 | WD | Warranty Deed | METZ, BRUCE D | LOVE, STEVEN G | | | $269,000.00 | 30664 | 4428265 |
| 2 | 12/06/2001 | QCD | Quit Claim Deed | METZ, ROBERT L | METZ, BRUCE D | | | $0.00 | 14641 | 4005170 |
| 3 | 07/01/1987 | QCD | Quit Claim Deed | FLEURY, ALFRED R | METZ, ROBERT L | | | $58,000.00 | 72381 | 87010896 |
| 4 | 04/01/1987 | QCD | Quit Claim Deed | SCHWINN, JOYCE C | FLEURY, ALFRED R | | | $0.00 | 71152 | 87005750 |
| 5 | 03/01/1986 | QCD | Quit Claim Deed | FLEURY, ALFRED R | SCHWINN, JOYCE C | | | $0.00 | 60585 | 86002880 |
| 6 | 01/01/1900 | OTHER | Other - Misc. Documents | Unknown | FLEURY, ALFRED R | | | $0.00 | 0 | 0 |
Payout Agreement
| No payout information available.. |