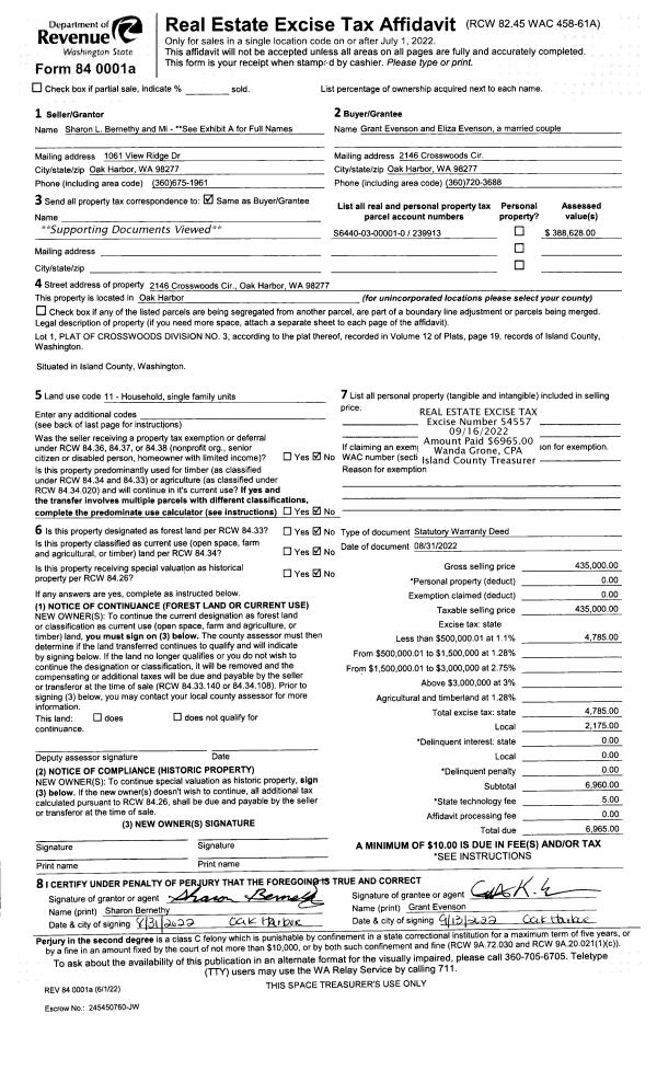
Property
Account |
| Property ID: | 206397 | Abbreviated Legal Description: | CAMALOCH 2 LOT 36 |
| Geographic ID: | S6235-02-00036-0 | Agent Code: | |
| Type: | Real | | |
| Tax Area: | 590 - APPRAISER-Stan/Cam Schl Dist, Special Dist, improved & less than 1 acre | Land Use Code | 11 |
| Open Space: | N | DFL | N |
| Historic Property: | N | Remodel Property: | N |
| Multi-Family Redevelopment: | N | | |
| Township: | | Section: | |
| Range: | |
Location |
| Address: | 396 MACBRAE DR CAMANO ISLAND, WA 98282 | Mapsco: | |
| Neighborhood: | Cycle 5 | Map ID: | 995 |
| Neighborhood CD: | 5 |
Owner |
| Name: | LAUN, HERBERT E | Owner ID: | 273432 |
| Mailing Address: | 396 MACBRAE DR CAMANO ISLAND, WA 98282 | % Ownership: | 100.0000000000% |
| | | Exemptions: | |
Taxes and Assessment Details
Values
| (+) Improvement Homesite Value: | + | $0 | |
| (+) Improvement Non-Homesite Value: | + | $227,627 | |
| (+) Land Homesite Value: | + | $0 | |
| (+) Land Non-Homesite Value: | + | $260,000 | |
| (+) Curr Use (HS): | + | $0 | $0 |
| (+) Curr Use (NHS): | + | $0 | $0 |
| | | -------------------------- | |
| (=) Market Value: | = | $487,627 | |
| (–) Productivity Loss: | – | $0 | |
| | | -------------------------- | |
| (=) Subtotal: | = | $487,627 | |
| (+) Senior Appraised Value: | + | $0 | |
| (+) Non-Senior Appraised Value: | + | $487,627 | |
| | | -------------------------- | |
| (=) Total Appraised Value: | = | $487,627 | |
| (–) Senior Exemption Loss: | – | $0 | |
| (–) Exemption Loss: | – | $0 | |
| | | -------------------------- | |
| (=) Taxable Value: | = | $487,627 | |
Taxing Jurisdiction
| Owner: | LAUN, HERBERT E | | |
| % Ownership: | 100.0000000000% | | |
| Total Value: | $487,627 | | |
| Tax Area: | 590 - APPRAISER-Stan/Cam Schl Dist, Special Dist, improved & less than 1 acre |
| CF | Conservation Futures | 0.0316035091 | $487,627 | $487,627 | $15.41 | | |
| EMS1 | Fire & Rescue Dist #1 Camano GEN (EMS) | 0.3677864386 | $487,627 | $487,627 | $179.34 | | |
| FIRE1 | Fire & Rescue Dist #1 Camano GEN | 1.2502910536 | $487,627 | $487,627 | $609.68 | | |
| FIRE1BOND | Fire & Rescue Dist #1 Camano BOND | 0.1570001679 | $487,627 | $487,627 | $76.56 | | |
| CE | County Current Expense | 0.3708482477 | $487,627 | $487,627 | $180.84 | | |
| CR | County Roads | 0.4584763726 | $487,627 | $487,627 | $223.57 | | |
| LCIB | Library Sno-Isle BOND (Camano Island) | 0.0396325772 | $487,627 | $487,627 | $19.33 | | |
| LIB | Library Sno-Isle GEN | 0.3153421757 | $487,627 | $487,627 | $153.77 | | |
| SCH205_401 | School 205-401 Enrichment | 1.2698420524 | $487,627 | $487,627 | $619.21 | | |
| SCH205BOND | School 205-401 BOND | 0.9396497583 | $487,627 | $487,627 | $458.20 | | |
| ST | State School | 1.3035497053 | $487,627 | $487,627 | $635.65 | | |
| ST2 | State School Part 2 | 0.8169543533 | $487,627 | $487,627 | $398.37 | | |
| | Total Tax Rate: | 7.3209764117 | | | | | |
| | | | | Taxes w/Current Exemptions: | $3,569.93 | | |
| | | | | Taxes w/o Exemptions: | $3,569.93 | | |
Improvement / Building
| Improvement #1: | RESIDENTIAL | State Code: | Y | 1138.0 sqft | Value: | $227,627 |
| Bathrooms: | 1 | Bedrooms: | 2 | | Ceiling: | DRYWALL PAINTED | Exterior Wall/Cover: | CEMENT FIBER | | Floor Covering: | CARPET/VINYL 60-40 | Floor Structure: | WOOD W/SUBFLOOR | | Foundation: | CONCRETE | Heating: | WALL HEAT ELECTRIC | | Interior Finish: | DRYWALL PAINT | Plumbing Fixture Cnt: | 7 | | Roof Slope: | 4" IN 12" | Roof Structure/Cover: | CJ ASPHALT |
|
| | Type | Description | Class CD | Sub Class CD | Year Built | Area |
| | BAS | BASE/MAIN FLOOR | 3 | 0 | 2000 | 1138.0 |
| | OP4 | OPEN PORCH W/CEILING-ROOF | 3 | 0 | 2000 | 115.0 |
| | AGR | ATTACHED GARAGE | 3 | 0 | 2000 | 528.0 |
Sketch
Property Image
Land
| 1 | 14 | SQ (08001-12000) | 0.0000 | 0.00 | 0.00 | 0.00 | 1.00 | $260,000 | $0 |
Roll Value History
| 2026 | N/A | N/A | N/A | N/A | N/A |
| 2025 | $227,627 | $260,000 | $0 | $487,627 | $487,627 |
| 2024 | $230,236 | $250,000 | $0 | $480,236 | $480,236 |
| 2023 | $232,844 | $250,000 | $0 | $482,844 | $482,844 |
| 2022 | $212,617 | $210,000 | $0 | $422,617 | $422,617 |
| 2021 | $184,267 | $165,000 | $0 | $349,267 | $349,267 |
| 2020 | $178,769 | $135,000 | $0 | $313,769 | $313,769 |
| 2019 | $128,246 | $175,000 | $0 | $303,246 | $303,246 |
| 2018 | $128,598 | $145,000 | $0 | $273,598 | $273,598 |
| 2017 | $129,303 | $100,000 | $0 | $229,303 | $229,303 |
| 2016 | $130,707 | $85,000 | $0 | $215,707 | $215,707 |
| 2015 | $127,357 | $65,000 | $0 | $192,357 | $192,357 |
| 2014 | $128,873 | $55,000 | $0 | $183,873 | $183,873 |
| 2013 | $130,389 | $55,000 | $0 | $185,389 | $185,389 |
| 2012 | $131,905 | $60,000 | $0 | $191,905 | $191,905 |
| 2011 | $133,422 | $65,000 | $0 | $198,422 | $198,422 |
| 2010 | $138,098 | $76,000 | $0 | $214,098 | $214,098 |
| 2009 | $143,921 | $100,000 | $0 | $243,921 | $243,921 |
| 2008 | $145,497 | $125,000 | $0 | $270,497 | $270,497 |
| 2007 | $145,537 | $100,000 | $0 | $245,537 | $245,537 |
Deed and Sales History
| 1 | 01/14/2016 | WD | Warranty Deed | LIEN, DAN H | LAUN, HERBERT E | | | $227,000.00 | 22849 | 4392622 |
| 2 | 06/14/2012 | CCOMPROP | Create Community Property | LIEN, DAN H | LIEN, DAN H | | | $0.00 | 7993 | 4317569 |
| 3 | 09/27/2011 | DECREE | Divorce Decree/Legal Separation | LIEN, DAN H | LIEN, DAN H | | | $0.00 | 5747 | 4302458 |
| 4 | 12/14/2005 | WD | Warranty Deed | WICKSTROM, DAVID S | LIEN, DAN H | | | $195,000.00 | 56247 | 4157323 |
| 5 | 07/01/1997 | WD | Warranty Deed | ELLIS, DON L | WICKSTROM, DAVID S | | | $34,000.00 | 72654 | 97012548 |
| 6 | 01/01/1900 | OTHER | Other - Misc. Documents | Unknown | ELLIS, DON L | | | $0.00 | 0 | 0 |
Payout Agreement
| No payout information available.. |