Property
Account |
| Property ID: | 206574 | Abbreviated Legal Description: | CAMALOCH 2 LOT 54 |
| Geographic ID: | S6235-02-00054-0 | Agent Code: | |
| Type: | Real | | |
| Tax Area: | 590 - APPRAISER-Stan/Cam Schl Dist, Special Dist, improved & less than 1 acre | Land Use Code | 11 |
| Open Space: | N | DFL | N |
| Historic Property: | N | Remodel Property: | N |
| Multi-Family Redevelopment: | N | | |
| Township: | | Section: | |
| Range: | |
Location |
| Address: | 291 EDINBURGH DR CAMANO ISLAND, WA 98282 | Mapsco: | |
| Neighborhood: | Cycle 5 | Map ID: | 995 |
| Neighborhood CD: | 5 |
Owner |
| Name: | WOLFE, ELAINE R | Owner ID: | 284770 |
| Mailing Address: | 291 EDINBURGH DR CAMANO ISLAND, WA 98282 | % Ownership: | 100.0000000000% |
| | | Exemptions: | |
Taxes and Assessment Details
Values
| (+) Improvement Homesite Value: | + | $0 | |
| (+) Improvement Non-Homesite Value: | + | $501,525 | |
| (+) Land Homesite Value: | + | $0 | |
| (+) Land Non-Homesite Value: | + | $260,000 | |
| (+) Curr Use (HS): | + | $0 | $0 |
| (+) Curr Use (NHS): | + | $0 | $0 |
| | | -------------------------- | |
| (=) Market Value: | = | $761,525 | |
| (–) Productivity Loss: | – | $0 | |
| | | -------------------------- | |
| (=) Subtotal: | = | $761,525 | |
| (+) Senior Appraised Value: | + | $0 | |
| (+) Non-Senior Appraised Value: | + | $761,525 | |
| | | -------------------------- | |
| (=) Total Appraised Value: | = | $761,525 | |
| (–) Senior Exemption Loss: | – | $0 | |
| (–) Exemption Loss: | – | $0 | |
| | | -------------------------- | |
| (=) Taxable Value: | = | $761,525 | |
Taxing Jurisdiction
| Owner: | WOLFE, ELAINE R | | |
| % Ownership: | 100.0000000000% | | |
| Total Value: | $761,525 | | |
| Tax Area: | 590 - APPRAISER-Stan/Cam Schl Dist, Special Dist, improved & less than 1 acre |
| CF | Conservation Futures | 0.0316035091 | $761,525 | $761,525 | $24.07 | | |
| EMS1 | Fire & Rescue Dist #1 Camano GEN (EMS) | 0.3677864386 | $761,525 | $761,525 | $280.08 | | |
| FIRE1 | Fire & Rescue Dist #1 Camano GEN | 1.2502910536 | $761,525 | $761,525 | $952.13 | | |
| FIRE1BOND | Fire & Rescue Dist #1 Camano BOND | 0.1570001679 | $761,525 | $761,525 | $119.56 | | |
| CE | County Current Expense | 0.3708482477 | $761,525 | $761,525 | $282.41 | | |
| CR | County Roads | 0.4584763726 | $761,525 | $761,525 | $349.14 | | |
| LCIB | Library Sno-Isle BOND (Camano Island) | 0.0396325772 | $761,525 | $761,525 | $30.18 | | |
| LIB | Library Sno-Isle GEN | 0.3153421757 | $761,525 | $761,525 | $240.14 | | |
| SCH205_401 | School 205-401 Enrichment | 1.2698420524 | $761,525 | $761,525 | $967.02 | | |
| SCH205BOND | School 205-401 BOND | 0.9396497583 | $761,525 | $761,525 | $715.57 | | |
| ST | State School | 1.3035497053 | $761,525 | $761,525 | $992.69 | | |
| ST2 | State School Part 2 | 0.8169543533 | $761,525 | $761,525 | $622.13 | | |
| | Total Tax Rate: | 7.3209764117 | | | | | |
| | | | | Taxes w/Current Exemptions: | $5,575.12 | | |
| | | | | Taxes w/o Exemptions: | $5,575.12 | | |
Improvement / Building
| Improvement #1: | RESIDENTIAL | State Code: | Y | 2067.8 sqft | Value: | $501,525 |
| Bathrooms: | 2.5 | Bedrooms: | 3 | | Ceiling: | DRYWALL PAINTED | Exterior Wall/Cover: | CEMENT FIBER | | Floor Covering: | VINYL TILE | Floor Structure: | WOOD W/SUBFLOOR | | Foundation: | CONCRETE | Heating: | FHA ELECTRIC | | Interior Finish: | DRYWALL PAINT | Plumbing Fixture Cnt: | 14 | | Roof Slope: | 6" IN 12" | Roof Structure/Cover: | CJ ASPHALT |
|
| | Type | Description | Class CD | Sub Class CD | Year Built | Area |
| | BAS | BASE/MAIN FLOOR | 4 | 0 | 2018 | 2067.8 |
| | OWC | OPEN WOOD PORCH W/STEPS/ROOF/C | 4 | 0 | 2018 | 200.0 |
| | AGR | ATTACHED GARAGE | 4 | 0 | 2018 | 644.0 |
| | OP4 | OPEN PORCH W/CEILING-ROOF | 4 | 0 | 2018 | 48.0 |
Sketch
Property Image
Land
| 1 | 15 | SQ (12001-21780) | 0.1500 | 6534.00 | 0.00 | 0.00 | 1.00 | $260,000 | $0 |
Roll Value History
| 2026 | N/A | N/A | N/A | N/A | N/A |
| 2025 | $501,525 | $260,000 | $0 | $761,525 | $761,525 |
| 2024 | $505,603 | $250,000 | $0 | $755,603 | $755,603 |
| 2023 | $509,680 | $250,000 | $0 | $759,680 | $759,680 |
| 2022 | $465,210 | $210,000 | $0 | $675,210 | $675,210 |
| 2021 | $407,746 | $165,000 | $0 | $572,746 | $572,746 |
| 2020 | $396,098 | $135,000 | $0 | $531,098 | $531,098 |
| 2019 | $299,354 | $175,000 | $0 | $474,354 | $474,354 |
| 2018 | $301,617 | $145,000 | $0 | $446,617 | $446,617 |
| 2017 | $0 | $70,000 | $0 | $70,000 | $70,000 |
| 2016 | $0 | $50,000 | $0 | $50,000 | $50,000 |
| 2015 | $0 | $50,000 | $0 | $50,000 | $50,000 |
| 2014 | $0 | $55,000 | $0 | $55,000 | $55,000 |
| 2013 | $0 | $17,500 | $0 | $17,500 | $17,500 |
| 2012 | $0 | $17,500 | $0 | $17,500 | $17,500 |
| 2011 | $0 | $24,750 | $0 | $24,750 | $24,750 |
| 2010 | $0 | $24,750 | $0 | $24,750 | $24,750 |
| 2009 | $0 | $27,060 | $0 | $27,060 | $27,060 |
| 2008 | $0 | $41,250 | $0 | $41,250 | $41,250 |
| 2007 | $0 | $40,000 | $0 | $40,000 | $40,000 |
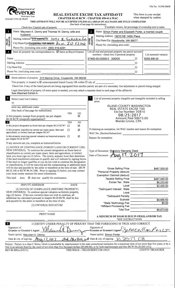
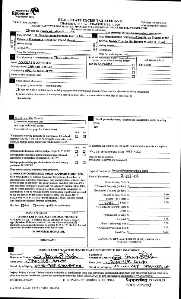
Deed and Sales History
| 1 | 04/13/2018 | WD | Warranty Deed | N W BUILDERS INC | WOLFE, ELAINE R | | | $510,000.00 | 33844 | 4443327 |
| 2 | 07/28/2017 | QCD | Quit Claim Deed | SEWNSON, JEFFREY | N W BUILDERS INC | | | $0.00 | 30461 | 4427412 |
| 3 | 01/09/2014 | WD | Warranty Deed | FREY, RONALD P | SEWNSON, JEFFREY | | | $45,000.00 | 14002 | 4353869 |
| 4 | 01/13/1999 | WD | Warranty Deed | POULTER, ROLLIE C | FREY, RONALD P | | | $23,000.00 | 90268 | 99001718 |
| 5 | 04/01/1991 | WD | Warranty Deed | BIESEN, EVA | POULTER, ROLLIE C | | | $11,000.00 | 11227 | 91005248 |
| 6 | 12/01/1990 | OTHER | Other - Misc. Documents | CUSHING, DANIEL & | BIESEN, EVA | | | $0.00 | 63985 | 0 |
| 7 | 04/01/1990 | QCD | Quit Claim Deed | CUSHING, DANIEL & | CUSHING, DANIEL & | | | $0.00 | 11226 | 91005247 |
| 8 | 03/01/1990 | QCD | Quit Claim Deed | BIESEN, BERTRAND B | CUSHING, DANIEL & | | | $0.00 | 1333 | 90004260 |
| 9 | 03/01/1968 | EXECUTORD | Executor Deed | CAMALOCH, ESTATES | BIESEN, BERTRAND B | | | $2,350.00 | 30025 | 0 |
| 10 | 01/01/1900 | OTHER | Other - Misc. Documents | Unknown | CAMALOCH, ESTATES | | | $0.00 | 0 | 0 |
Payout Agreement
| No payout information available.. |